Property
Account |
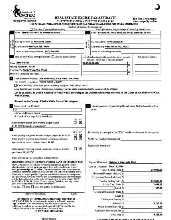
| Property ID: | 28433 | Abbreviated Legal Description: | DEAN'S ADDITION LOT 11 BLOCK 1 |
| Parcel Number: | 360727520134 | Agent Code: | |
| Type: | Real | | |
| Tax Area: | 105 - 140-F-4 | Land Use Code | 11 |
| Open Space: | N | DFL | N |
| Historic Property: | N | Remodel Property: | N |
| Multi-Family Redevelopment: | N | | |
| Township: | 7 | Section: | 27 |
| Range: | 36 |
Location |
| Address: | 1608 EDMOND ST WA 99362 | Mapsco: | |
| Neighborhood: | A Res | Map ID: | |
| Neighborhood CD: | 613011 |
Owner |
| Name: | SWANT BRANDON W & LACY | Owner ID: | 54883 |
| Mailing Address: | 1608 EDMOND ST WALLA WALLA, WA 99362 | % Ownership: | 100.0000000000% |
| | | Exemptions: | |
Taxes and Assessment Details
Property Tax Information as of
04/19/2026
Click on "Statement Details" to expand or collapse a tax statement.
* Please enter a valid date ** Please enter a valid date *
Statement Details |
| | TOTAL: | $0.00 | $0.00 | $0.00 | $0.00 | $0.00 | $0.00 |
|
| | $0.00 | $0.00 | $0.00 | $0.00 | $0.00 | $0.00 |
Values
| (+) Improvement Homesite Value: | + | $361,230 | |
| (+) Improvement Non-Homesite Value: | + | $0 | |
| (+) Land Homesite Value: | + | $56,250 | |
| (+) Land Non-Homesite Value: | + | $0 | |
| (+) Curr Use (HS): | + | $0 | $0 |
| (+) Curr Use (NHS): | + | $0 | $0 |
| | | -------------------------- | |
| (=) Market Value: | = | $417,480 | |
| (–) Productivity Loss: | – | $0 | |
| | | -------------------------- | |
| (=) Subtotal: | = | $417,480 | |
| (+) Senior Appraised Value: | + | $0 | |
| (+) Non-Senior Appraised Value: | + | $417,480 | |
| | | -------------------------- | |
| (=) Total Appraised Value: | = | $417,480 | |
| (–) Senior Exemption Loss: | – | $0 | |
| (–) Exemption Loss: | – | $0 | |
| | | -------------------------- | |
| (=) Taxable Value: | = | $417,480 | |
Taxing Jurisdiction
| Owner: | SWANT BRANDON W & LACY | | |
| % Ownership: | 100.0000000000% | | |
| Total Value: | $417,480 | | |
| Tax Area: | 105 - 140-F-4 |
| CERFD | CURRENT EXPENSE REFUND 010 | 0.0000000000 | $417,480 | $417,480 | $0.00 | | |
| CURREXP | CURRENT EXPENSE 010 | 1.0175366760 | $417,480 | $417,480 | $424.80 | | |
| HUMNSERV | HUMAN SERVICES 119 | 0.0250000000 | $417,480 | $417,480 | $10.44 | | |
| SLDREL | SOLDIERS RELIEF 121 | 0.0155990005 | $417,480 | $417,480 | $6.51 | | |
| EMERGSER | EMS 147 | 0.3792580840 | $417,480 | $417,480 | $158.33 | | |
| EMSRFD | EMS REFUND 147 | 0.0000000000 | $417,480 | $417,480 | $0.00 | | |
| FD4EXP | FD #4 EXPENSE 686 | 0.8836993059 | $417,480 | $417,480 | $368.93 | | |
| RLBRFD | RURAL LIBRARY REFUND 623 | 0.0000000000 | $417,480 | $417,480 | $0.00 | | |
| RURALLIB | RURAL LIBRARY 623 | 0.3710609029 | $417,480 | $417,480 | $154.91 | | |
| PORTRFD | PORT REFUND 640 | 0.0000000000 | $417,480 | $417,480 | $0.00 | | |
| PORTWWGEN | PORT OF WW 640 | 0.2460186015 | $417,480 | $417,480 | $102.71 | | |
| SD140BOND | SD #140 BOND 764 | 0.8342371393 | $417,480 | $417,480 | $348.28 | | |
| SD140GEN | SD #140 GENERAL 760 | 2.0646500647 | $417,480 | $417,480 | $861.95 | | |
| ST2 | STATE SCHOOL PART 2 600 | 0.8131451643 | $417,480 | $417,480 | $339.47 | | |
| STATESCHL | STATE SCHOOL 600 | 1.5158548041 | $417,480 | $417,480 | $632.84 | | |
| STREFUND | STATE REFUND LEVY 603 | 0.0000000000 | $417,480 | $417,480 | $0.00 | | |
| COROAD | COUNTY ROAD 115 | 1.6549953990 | $417,480 | $417,480 | $690.93 | | |
| CRPRD | COUNTY ROAD REFUND 115 | 0.0000000000 | $417,480 | $417,480 | $0.00 | | |
| | Total Tax Rate: | 9.8210551422 | | | | | |
| | | | | Taxes w/Current Exemptions: | $4,100.10 | | |
| | | | | Taxes w/o Exemptions: | $4,100.10 | | |
Improvement / Building
| Improvement #1: | RESIDENTIAL | State Code: | 11 | 1700.0 sqft | Value: | $361,230 |
| Exterior Wall: | HARDBOARD | Heating/Cooling: | WARM & COOLED AIR | | Number of Bathrooms: | 2 | Number of Bedrooms: | 3 | | Plumbing: | 9 | Roof Covering: | COMP SHINGLE |
|
| | Type | Description | Class CD | Sub Class CD | Year Built | Area |
| | MA | Main Area | 1 | 35 | 2007 | 1700.0 |
| | SI1 | SITE IMPROVEMENT | 1 | 35 | 2007 | 2.0 |
| | GFP | GAS FIREPLACE | 1 | 35 | 2007 | 1.0 |
| | ATG | Attached Garage | 1 | 35 | 2007 | 520.0 |
Sketch
Property Image
Land
| 1 | RES 1 | Converted: Residential | 0.1435 | 6250.00 | 0.00 | 0.00 | 1.00 | $56,250 | $0 |
Roll Value History
| 2026 | N/A | N/A | N/A | N/A | N/A |
| 2025 | $373,590 | $68,750 | $0 | $442,340 | $442,340 |
| 2024 | $361,230 | $56,250 | $0 | $417,480 | $417,480 |
| 2023 | $361,230 | $56,250 | $0 | $417,480 | $417,480 |
| 2022 | $314,120 | $45,310 | $0 | $359,430 | $359,430 |
| 2021 | $251,290 | $45,310 | $0 | $296,600 | $296,600 |
| 2020 | $209,410 | $45,310 | $0 | $254,720 | $254,720 |
| 2019 | $209,410 | $45,310 | $0 | $254,720 | $254,720 |
| 2018 | $217,220 | $37,500 | $0 | $254,720 | $254,720 |
| 2017 | $206,880 | $37,500 | $0 | $244,380 | $244,380 |
| 2016 | $172,400 | $37,500 | $0 | $209,900 | $209,900 |
| 2015 | $172,400 | $37,500 | $0 | $209,900 | $209,900 |
| 2014 | $172,400 | $37,500 | $0 | $209,900 | $209,900 |
| 2013 | $172,400 | $37,500 | $0 | $209,900 | $130,800 |
| 2012 | $172,400 | $37,500 | $0 | $0 | $0 |
| 2011 | $183,400 | $37,500 | $0 | $0 | $0 |
| 2010 | $163,300 | $37,500 | $0 | $0 | $0 |
| 2009 | $185,600 | $37,500 | $0 | $0 | $0 |
| 2008 | $53,700 | $37,500 | $0 | $0 | $0 |
| 2007 | $0 | $8,000 | $0 | $0 | $0 |
Deed and Sales History
| 1 | 05/16/2014 | SWD | STATUTORY WARRANTY DEED | SCAFARIELLO MARIA | SWANT BRANDON W & LACY | | | $210,000.00 | 125904 | 2014-03347 |
| 2 | 04/13/2009 | QCD | QUIT CLAIM DEED | SPULER, DOLORES M | SCAFARIELLO, MARIA | | | $43,276.00 | 116609 | 2009-03675 |
| 3 | 03/24/2008 | WARRANTY D | WARRANTY DEED | THONNEY, DAVID & LUCIANA | SPULER, DOLORES M. | | | $227,900.00 | 114717 | 2008-02763 |
Payout Agreement
| No payout information available.. |