Property
Account |
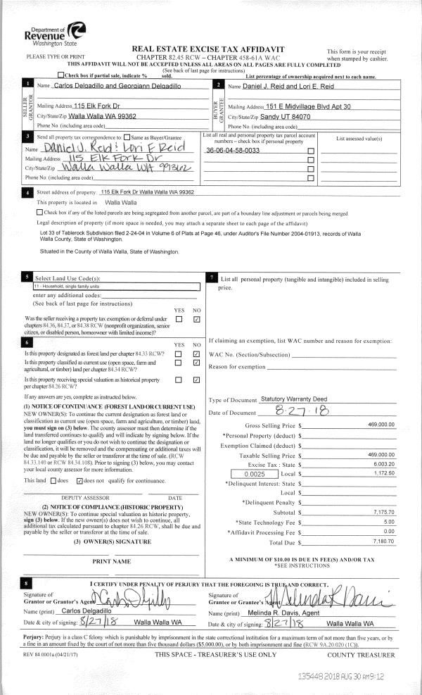
| Property ID: | 28426 | Abbreviated Legal Description: | TABLEROCK SUBD LOT 33 |
| Parcel Number: | 360604580033 | Agent Code: | |
| Type: | Real | | |
| Tax Area: | 5 - OL-140 | Land Use Code | 11 |
| Open Space: | N | DFL | N |
| Historic Property: | N | Remodel Property: | N |
| Multi-Family Redevelopment: | N | | |
| Township: | 6 | Section: | 4 |
| Range: | 36 |
Location |
| Address: | 115 ELK FORK DR WA 99362 | Mapsco: | |
| Neighborhood: | VG Res | Map ID: | |
| Neighborhood CD: | 615011 |
Owner |
| Name: | REID DANIEL J & LORI E | Owner ID: | 12853 |
| Mailing Address: | 115 ELK FORK DR WALLA WALLA, WA 99362 | % Ownership: | 100.0000000000% |
| | | Exemptions: | |
Taxes and Assessment Details
Property Tax Information as of
02/21/2026
Click on "Statement Details" to expand or collapse a tax statement.
* Please enter a valid date ** Please enter a valid date *
Statement Details |
| | TOTAL: | $0.00 | $0.00 | $0.00 | $0.00 | $0.00 | $0.00 |
|
| | $0.00 | $0.00 | $0.00 | $0.00 | $0.00 | $0.00 |
Values
| (+) Improvement Homesite Value: | + | $0 | |
| (+) Improvement Non-Homesite Value: | + | $524,030 | |
| (+) Land Homesite Value: | + | $0 | |
| (+) Land Non-Homesite Value: | + | $180,000 | |
| (+) Curr Use (HS): | + | $0 | $0 |
| (+) Curr Use (NHS): | + | $0 | $0 |
| | | -------------------------- | |
| (=) Market Value: | = | $704,030 | |
| (–) Productivity Loss: | – | $0 | |
| | | -------------------------- | |
| (=) Subtotal: | = | $704,030 | |
| (+) Senior Appraised Value: | + | $0 | |
| (+) Non-Senior Appraised Value: | + | $704,030 | |
| | | -------------------------- | |
| (=) Total Appraised Value: | = | $704,030 | |
| (–) Senior Exemption Loss: | – | $0 | |
| (–) Exemption Loss: | – | $0 | |
| | | -------------------------- | |
| (=) Taxable Value: | = | $704,030 | |
Taxing Jurisdiction
| Owner: | REID DANIEL J & LORI E | | |
| % Ownership: | 100.0000000000% | | |
| Total Value: | $704,030 | | |
| Tax Area: | 5 - OL-140 |
| CERFD | CURRENT EXPENSE REFUND 010 | 0.0000000000 | $704,030 | $704,030 | $0.00 | | |
| CURREXP | CURRENT EXPENSE 010 | 0.9851088983 | $704,030 | $704,030 | $693.55 | | |
| HUMNSERV | HUMAN SERVICES 119 | 0.0250000000 | $704,030 | $704,030 | $17.60 | | |
| SLDREL | SOLDIERS RELIEF 121 | 0.0155990000 | $704,030 | $704,030 | $10.98 | | |
| EMERGSER | EMS 147 | 0.3676811629 | $704,030 | $704,030 | $258.86 | | |
| EMSRFD | EMS REFUND 147 | 0.0000000000 | $704,030 | $704,030 | $0.00 | | |
| PORTRFD | PORT REFUND 640 | 0.0000000000 | $704,030 | $704,030 | $0.00 | | |
| PORTWWGEN | PORT OF WW 640 | 0.2344301070 | $704,030 | $704,030 | $165.05 | | |
| SD140BOND | SD #140 BOND 764 | 0.8032434458 | $704,030 | $704,030 | $565.51 | | |
| SD140CAP | SD #140 CAP 762 | 0.3840034221 | $704,030 | $704,030 | $270.35 | | |
| SD140GEN | SD #140 GENERAL 760 | 2.4999999996 | $704,030 | $704,030 | $1,760.08 | | |
| ST2 | STATE SCHOOL PART 2 600 | 0.8853714103 | $704,030 | $704,030 | $623.33 | | |
| STATESCHL | STATE SCHOOL 600 | 1.6424571473 | $704,030 | $704,030 | $1,156.34 | | |
| STREFUND | STATE REFUND LEVY 603 | 0.0000000000 | $704,030 | $704,030 | $0.00 | | |
| CWWBOND | C OF WW BOND 643 | 0.2642134255 | $704,030 | $704,030 | $186.01 | | |
| CWWGEN | CITY OF WW 631 | 1.6110494978 | $704,030 | $704,030 | $1,134.23 | | |
| CWWRFD | CITY OF WALLA WALLA REFUND 631 | 0.0000000000 | $704,030 | $704,030 | $0.00 | | |
| | Total Tax Rate: | 9.7181575166 | | | | | |
| | | | | Taxes w/Current Exemptions: | $6,841.89 | | |
| | | | | Taxes w/o Exemptions: | $6,841.89 | | |
Improvement / Building
| Improvement #1: | RESIDENTIAL | State Code: | 11 | 2309.0 sqft | Value: | $524,030 |
| Exterior Wall: | HARDBOARD | Heating/Cooling: | HEAT PUMP | | Number of Bathrooms: | 3 | Number of Bedrooms: | 4 | | Plumbing: | 14 | Roof Covering: | COMP SHINGLE |
|
| | Type | Description | Class CD | Sub Class CD | Year Built | Area |
| | MA | Main Area | 1 | 45 | 2009 | 2309.0 |
| | GFP | GAS FIREPLACE | 1 | 45 | 2009 | 1.0 |
| | PRC | PORCH W STEPS, ROOF,CEILED | 1 | 45 | 2009 | 56.0 |
| | PRC | PORCH W STEPS, ROOF,CEILED | 1 | 45 | 2009 | 112.0 |
| | SI1 | SITE IMPROVEMENT | 1 | 45 | 2009 | 5.0 |
| | ATG | Attached Garage | 1 | 45 | 2009 | 812.0 |
Sketch
Property Image
Land
| 1 | RES 1 | Converted: Residential | 0.2224 | 9686.00 | 0.00 | 0.00 | 1.00 | $180,000 | $0 |
Roll Value History
| 2026 | N/A | N/A | N/A | N/A | N/A |
| 2025 | $524,030 | $180,000 | $0 | $704,030 | $704,030 |
| 2024 | $533,920 | $120,000 | $0 | $653,920 | $653,920 |
| 2023 | $508,490 | $120,000 | $0 | $628,490 | $628,490 |
| 2022 | $462,260 | $95,000 | $0 | $557,260 | $557,260 |
| 2021 | $420,240 | $95,000 | $0 | $515,240 | $515,240 |
| 2020 | $350,200 | $95,000 | $0 | $445,200 | $445,200 |
| 2019 | $350,200 | $95,000 | $0 | $445,200 | $445,200 |
| 2018 | $292,620 | $50,000 | $0 | $342,620 | $342,620 |
| 2017 | $284,100 | $50,000 | $0 | $334,100 | $334,100 |
| 2016 | $284,100 | $50,000 | $0 | $334,100 | $334,100 |
| 2015 | $284,100 | $50,000 | $0 | $334,100 | $334,100 |
| 2014 | $284,100 | $50,000 | $0 | $334,100 | $334,100 |
| 2013 | $284,100 | $50,000 | $0 | $334,100 | $334,100 |
| 2012 | $284,600 | $55,000 | $0 | $0 | $0 |
| 2011 | $269,600 | $70,000 | $0 | $0 | $0 |
| 2010 | $119,400 | $70,000 | $0 | $0 | $0 |
| 2009 | $0 | $70,000 | $0 | $0 | $0 |
| 2008 | $0 | $70,000 | $0 | $0 | $0 |
| 2007 | $0 | $1,900 | $0 | $0 | $0 |
Deed and Sales History
| 1 | 08/30/2018 | SWD | STATUTORY WARRANTY DEED | DELGADILLO CARLOS E & GEORGIANN | REID DANIEL J & LORI E | | | $469,000.00 | 135448 | 2018-07185 |
| 2 | 04/15/2010 | WARRANTY D | WARRANTY DEED | WALLA WALLA COMMUNITY | DELGADILLO, CARLOS E & GEORGIA | | | $342,000.00 | 118348 | 2010-02999 |
| 3 | 04/08/2004 | WARRANTY D | WARRANTY DEED | GATEWOOD, W PAUL | WALLA WALLA COMMUNITY | | | $200,000.00 | 104453 | 2004-03700 |
|   | |
Payout Agreement
| No payout information available.. |