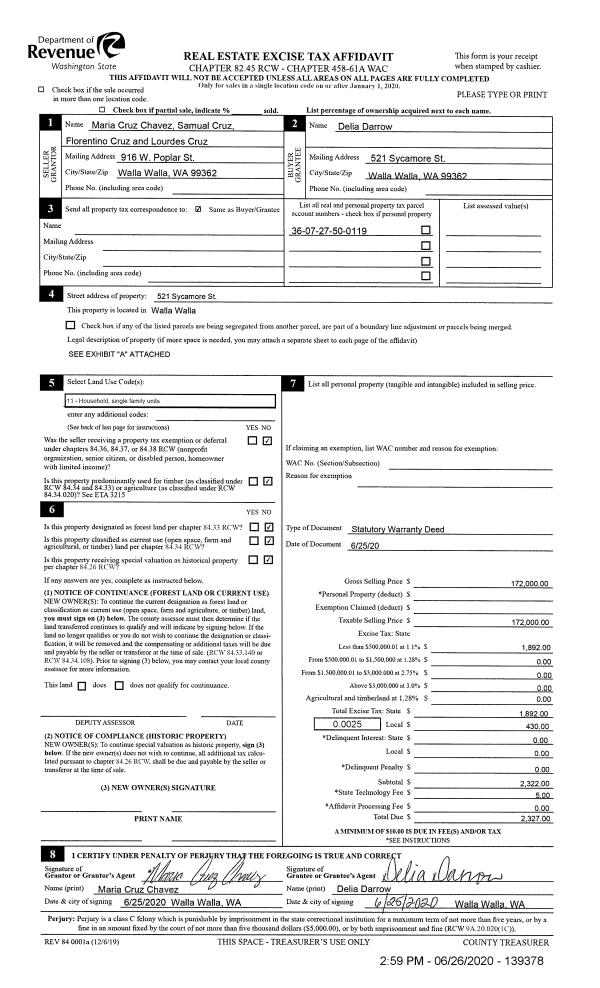
| 1 | 06/26/2020 | SWD | STATUTORY WARRANTY DEED | CRUZ SAMUEL & MARIA CRUZ CHAVEZ | DARROW DELIA | | | $172,000.00 | 139378 | 2020-05961 |
| 2 | 08/02/2017 | FUL | FULFILLMENT DEED | CRISS BRENDA MARIE | CRISS JOEY E | | | | 0 | 2017-05877 |
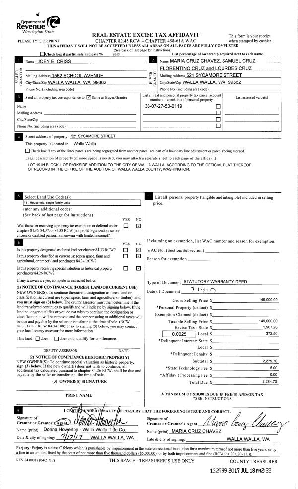
| 3 | 07/18/2017 | SWD | STATUTORY WARRANTY DEED | CRISS JOEY E | CRUZ SAMUEL & MARIA CRUZ CHAVEZ | | | $149,000.00 | 132799 | 2017-05505 |
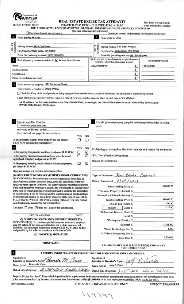
| 4 | 02/28/2011 | WARRANTY D | WARRANTY DEED | CRISS, BRENDA MARIE | CRISS, JOEY E | | | $86,000.00 | 119797 | 2011-01815 |
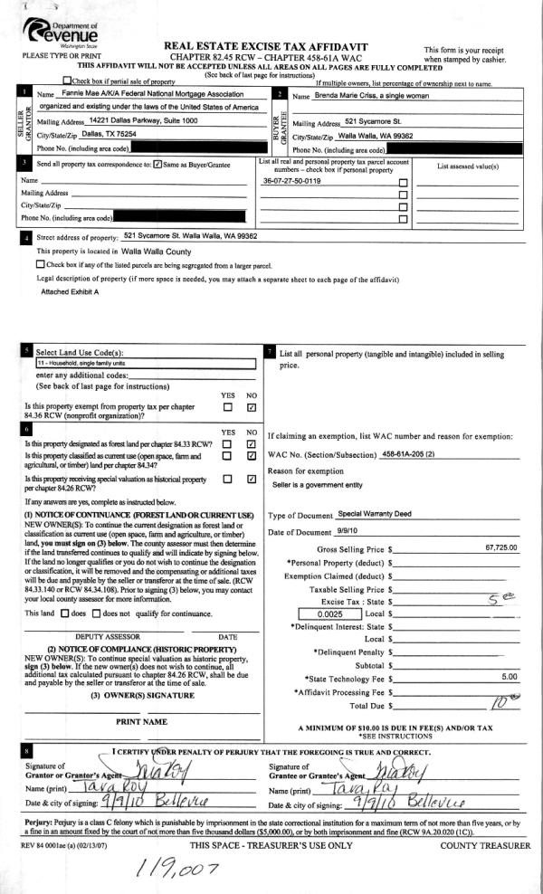
| 5 | 09/13/2010 | WARRANTY D | WARRANTY DEED | FEDERAL NATIONAL MORTGAGE ASSO | CRISS, BRENDA MARIE | | | $67,725.00 | 119007 | 2010-07190 |
| 6 | 04/15/2010 | WARRANTY D | WARRANTY DEED | NORTHWEST TRUSTEE SERVICES | FEDERAL NATIONAL MORTGAGE~ASSO | | | $126,524.00 | 118347 | 2010-02997 |
| 7 | 04/19/2007 | WARRANTY D | WARRANTY DEED | DOMINGOS, BARBARA J | GOODSON, JOSHUA D | | | $128,765.00 | 112660 | 2007-04383 |
| 8 | 05/28/2004 | WARRANTY D | WARRANTY DEED | SCHLEIF, STANLEY L & LILA E | DOMINGOS, BARBARA J | | | $95,000.00 | 104885 | 2004-05842 |
| 9 | 11/08/2002 | WARRANTY D | WARRANTY DEED | PATTON, HENRY W | SCHLEIF, STANLEY L & LILA E | | | $40,000.00 | 100781 | 2002-012777 |
| 10 | 01/01/1952 | WARRANTY D | WARRANTY DEED | | | | | $0.00 | 0 | 2610-357008 |