Property
Account |
| Property ID: | 28377 | Abbreviated Legal Description: | LUCARELLI'S 1ST SUBDIVISION LOT 4 |
| Parcel Number: | 350726670004 | Agent Code: | |
| Type: | Real | | |
| Tax Area: | 311 - 250-4 | Land Use Code | 11 |
| Open Space: | N | DFL | N |
| Historic Property: | N | Remodel Property: | N |
| Multi-Family Redevelopment: | N | | |
| Township: | 7 | Section: | 26 |
| Range: | 35 |
Location |
| Address: | 780 RHEA LN WA 99324 | Mapsco: | |
| Neighborhood: | A SFR Rural/City Infl | Map ID: | |
| Neighborhood CD: | 313012 |
Owner |
| Name: | WRIGHT WILLIAM ROBERT & CHAE MI | Owner ID: | 70272 |
| Mailing Address: | 780 RHEA LN WALLA WALLA, WA 99362 | % Ownership: | 100.0000000000% |
| | | Exemptions: | |
Taxes and Assessment Details
Values
| (+) Improvement Homesite Value: | + | $0 | |
| (+) Improvement Non-Homesite Value: | + | $548,310 | |
| (+) Land Homesite Value: | + | $0 | |
| (+) Land Non-Homesite Value: | + | $90,000 | |
| (+) Curr Use (HS): | + | $0 | $0 |
| (+) Curr Use (NHS): | + | $0 | $0 |
| | | -------------------------- | |
| (=) Market Value: | = | $638,310 | |
| (–) Productivity Loss: | – | $0 | |
| | | -------------------------- | |
| (=) Subtotal: | = | $638,310 | |
| (+) Senior Appraised Value: | + | $0 | |
| (+) Non-Senior Appraised Value: | + | $638,310 | |
| | | -------------------------- | |
| (=) Total Appraised Value: | = | $638,310 | |
| (–) Senior Exemption Loss: | – | $0 | |
| (–) Exemption Loss: | – | $0 | |
| | | -------------------------- | |
| (=) Taxable Value: | = | $638,310 | |
Taxing Jurisdiction
| Owner: | WRIGHT WILLIAM ROBERT & CHAE MI | | |
| % Ownership: | 100.0000000000% | | |
| Total Value: | $638,310 | | |
| Tax Area: | 311 - 250-4 |
| CERFD | CURRENT EXPENSE REFUND 010 | 0.0000000000 | $638,310 | $638,310 | $0.00 | | |
| CURREXP | CURRENT EXPENSE 010 | 1.0175366760 | $638,310 | $638,310 | $649.50 | | |
| HUMNSERV | HUMAN SERVICES 119 | 0.0250000000 | $638,310 | $638,310 | $15.96 | | |
| SLDREL | SOLDIERS RELIEF 121 | 0.0155990005 | $638,310 | $638,310 | $9.96 | | |
| EMERGSER | EMS 147 | 0.3792580840 | $638,310 | $638,310 | $242.08 | | |
| EMSRFD | EMS REFUND 147 | 0.0000000000 | $638,310 | $638,310 | $0.00 | | |
| FD4EXP | FD #4 EXPENSE 686 | 0.8836993059 | $638,310 | $638,310 | $564.07 | | |
| RLBRFD | RURAL LIBRARY REFUND 623 | 0.0000000000 | $638,310 | $638,310 | $0.00 | | |
| RURALLIB | RURAL LIBRARY 623 | 0.3710609029 | $638,310 | $638,310 | $236.85 | | |
| PORTRFD | PORT REFUND 640 | 0.0000000000 | $638,310 | $638,310 | $0.00 | | |
| PORTWWGEN | PORT OF WW 640 | 0.2460186015 | $638,310 | $638,310 | $157.04 | | |
| SD250BOND | SD #250 BOND 773 | 1.4560608159 | $638,310 | $638,310 | $929.42 | | |
| SD250GEN | SD #250 GENERAL 770 | 2.3880724087 | $638,310 | $638,310 | $1,524.33 | | |
| ST2 | STATE SCHOOL PART 2 600 | 0.8131451643 | $638,310 | $638,310 | $519.04 | | |
| STATESCHL | STATE SCHOOL 600 | 1.5158548041 | $638,310 | $638,310 | $967.59 | | |
| STREFUND | STATE REFUND LEVY 603 | 0.0000000000 | $638,310 | $638,310 | $0.00 | | |
| COROAD | COUNTY ROAD 115 | 1.6549953990 | $638,310 | $638,310 | $1,056.40 | | |
| CRPRD | COUNTY ROAD REFUND 115 | 0.0000000000 | $638,310 | $638,310 | $0.00 | | |
| | Total Tax Rate: | 10.7663011628 | | | | | |
| | | | | Taxes w/Current Exemptions: | $6,872.24 | | |
| | | | | Taxes w/o Exemptions: | $6,872.24 | | |
Improvement / Building
| Improvement #1: | RESIDENTIAL | State Code: | 11 | 2493.0 sqft | Value: | $548,310 |
| Exterior Wall: | HARDBOARD | Heating/Cooling: | WARM & COOLED AIR | | Number of Bathrooms: | 2 | Number of Bedrooms: | 4 | | Plumbing: | 12 | Roof Covering: | COMP SHINGLE |
|
| | Type | Description | Class CD | Sub Class CD | Year Built | Area |
| | MA | Main Area | 1 | 40 | 2009 | 2493.0 |
| | GFP | GAS FIREPLACE | 1 | 40 | 0 | 1.0 |
| | RPC | OPEN PORCH W/ROOF , CEILED | 1 | 40 | 0 | 35.0 |
| | RPC | OPEN PORCH W/ROOF , CEILED | 1 | 40 | 0 | 231.0 |
| | SI1 | SITE IMPROVEMENT | 1 | 40 | 0 | 3.5 |
| | ATG | Attached Garage | 1 | 40 | 2009 | 738.0 |
| | POL2 | POLE BUILDING-CONCRETE | 1 | 40 | 2015 | 1296.0 |
Sketch
Property Image
Land
| 1 | RES 1 | Converted: Residential | 0.6700 | 29185.00 | 0.00 | 0.00 | 1.00 | $90,000 | $0 |
Roll Value History
| 2026 | N/A | N/A | N/A | N/A | N/A |
| 2025 | $575,730 | $90,000 | $0 | $665,730 | $665,730 |
| 2024 | $548,310 | $90,000 | $0 | $638,310 | $638,310 |
| 2023 | $548,310 | $90,000 | $0 | $638,310 | $638,310 |
| 2022 | $522,200 | $90,000 | $0 | $612,200 | $612,200 |
| 2021 | $448,010 | $55,000 | $0 | $503,010 | $503,010 |
| 2020 | $422,650 | $55,000 | $0 | $477,650 | $477,650 |
| 2019 | $422,650 | $55,000 | $0 | $477,650 | $477,650 |
| 2018 | $410,340 | $55,000 | $0 | $465,340 | $465,340 |
| 2017 | $356,820 | $55,000 | $0 | $411,820 | $411,820 |
| 2016 | $324,380 | $55,000 | $0 | $379,380 | $379,380 |
| 2015 | $315,870 | $55,000 | $0 | $370,870 | $370,870 |
| 2014 | $264,900 | $55,000 | $0 | $319,900 | $319,900 |
| 2013 | $264,900 | $55,000 | $0 | $319,900 | $319,900 |
| 2012 | $264,900 | $55,000 | $0 | $0 | $0 |
| 2011 | $264,900 | $55,000 | $0 | $0 | $0 |
| 2010 | $284,500 | $55,000 | $0 | $0 | $0 |
| 2009 | $0 | $60,000 | $0 | $0 | $0 |
| 2008 | $0 | $2,700 | $0 | $0 | $0 |
| 2007 | $0 | $2,700 | $0 | $0 | $0 |
Deed and Sales History
| 1 | 09/13/2021 | QCD | QUIT CLAIM DEED | WRIGHT WILLIAM ROBERT | WRIGHT WILLIAM ROBERT & CHAE MI | | | $0.00 | 142484 | 2021-11240 |
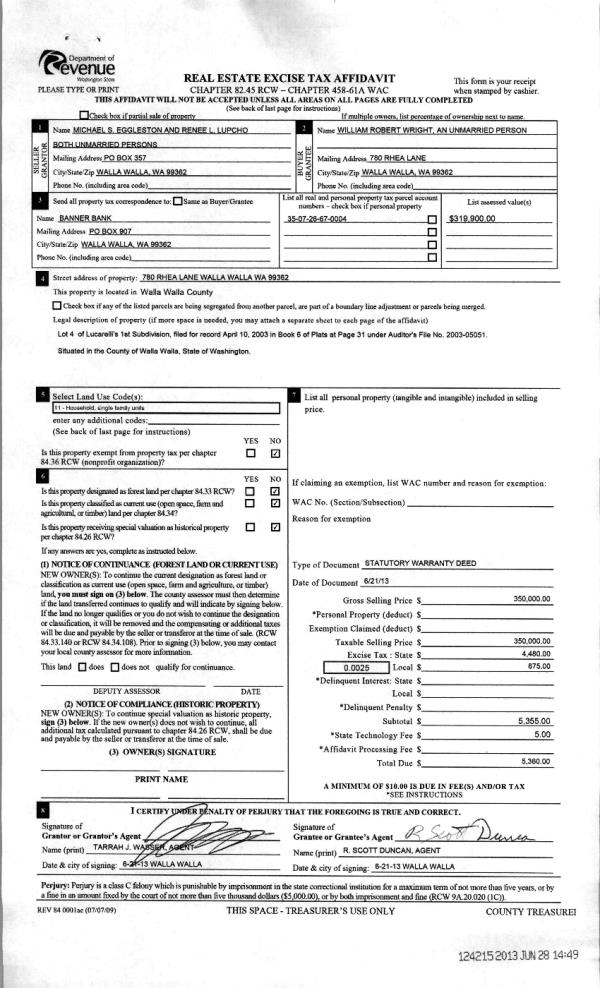
| 2 | 06/28/2013 | WARRANTY D | WARRANTY DEED | EGGLESTON, MICHAEL S & RENEE L | WRIGHT, WILLIAM ROBERT | | | $350,000.00 | 124215 | 2013-06536 |
| 3 | 04/09/2010 | WARRANTY D | WARRANTY DEED | ROFF HOMES INC | EGGLESTON, MICHAEL S & RENEE L | | | $329,000.00 | 118321 | 2010-02841 |
| 4 | 01/08/2008 | WARRANTY D | WARRANTY DEED | "ROFF, BRYAN & DANA" | ROFF HOMES INC | | | | 114356 | 2008-00180 |
| 5 | 08/30/2007 | WARRANTY D | WARRANTY DEED | "LUCARELLI, PETER & MILLIE" | | | | | 113623 | 2007-10253 |
| 6 | 02/26/2007 | WARRANTY D | WARRANTY DEED | "LUCARELLI, RHEA" | LUCARELLI PETER | | | | 112294 | 2007-02152 |
Payout Agreement
| No payout information available.. |