Property
Account |
| Property ID: | 28295 | Abbreviated Legal Description: | FAIRFIELD LOT 21 BLK 4 |
| Parcel Number: | 360729610421 | Agent Code: | |
| Type: | Real | | |
| Tax Area: | 1 - OL-140-F | Land Use Code | 11 |
| Open Space: | N | DFL | N |
| Historic Property: | N | Remodel Property: | N |
| Multi-Family Redevelopment: | N | | |
| Township: | 7 | Section: | 29 |
| Range: | 36 |
Location |
| Address: | 108 DONALD ST WA 99362 | Mapsco: | |
| Neighborhood: | Fair Res | Map ID: | |
| Neighborhood CD: | 612011 |
Owner |
| Name: | GARCIA-LOPEZ MARCOS & LORENA | Owner ID: | 57558 |
| Mailing Address: | 108 DONALD ST WALLA WALLA, WA 99362 | % Ownership: | 100.0000000000% |
| | | Exemptions: | |
Taxes and Assessment Details
Property Tax Information as of
02/21/2026
Click on "Statement Details" to expand or collapse a tax statement.
* Please enter a valid date ** Please enter a valid date *
Statement Details |
| | TOTAL: | $0.00 | $0.00 | $0.00 | $0.00 | $0.00 | $0.00 |
|
| | $0.00 | $0.00 | $0.00 | $0.00 | $0.00 | $0.00 |
Values
| (+) Improvement Homesite Value: | + | $0 | |
| (+) Improvement Non-Homesite Value: | + | $141,830 | |
| (+) Land Homesite Value: | + | $0 | |
| (+) Land Non-Homesite Value: | + | $58,340 | |
| (+) Curr Use (HS): | + | $0 | $0 |
| (+) Curr Use (NHS): | + | $0 | $0 |
| | | -------------------------- | |
| (=) Market Value: | = | $200,170 | |
| (–) Productivity Loss: | – | $0 | |
| | | -------------------------- | |
| (=) Subtotal: | = | $200,170 | |
| (+) Senior Appraised Value: | + | $0 | |
| (+) Non-Senior Appraised Value: | + | $200,170 | |
| | | -------------------------- | |
| (=) Total Appraised Value: | = | $200,170 | |
| (–) Senior Exemption Loss: | – | $0 | |
| (–) Exemption Loss: | – | $0 | |
| | | -------------------------- | |
| (=) Taxable Value: | = | $200,170 | |
Taxing Jurisdiction
| Owner: | GARCIA-LOPEZ MARCOS & LORENA | | |
| % Ownership: | 100.0000000000% | | |
| Total Value: | $200,170 | | |
| Tax Area: | 1 - OL-140-F |
| CERFD | CURRENT EXPENSE REFUND 010 | 0.0000000000 | $200,170 | $200,170 | $0.00 | | |
| CURREXP | CURRENT EXPENSE 010 | 1.0175366760 | $200,170 | $200,170 | $203.68 | | |
| HUMNSERV | HUMAN SERVICES 119 | 0.0250000000 | $200,170 | $200,170 | $5.00 | | |
| SLDREL | SOLDIERS RELIEF 121 | 0.0155990005 | $200,170 | $200,170 | $3.12 | | |
| EMERGSER | EMS 147 | 0.3792580840 | $200,170 | $200,170 | $75.92 | | |
| EMSRFD | EMS REFUND 147 | 0.0000000000 | $200,170 | $200,170 | $0.00 | | |
| PORTRFD | PORT REFUND 640 | 0.0000000000 | $200,170 | $200,170 | $0.00 | | |
| PORTWWGEN | PORT OF WW 640 | 0.2460186015 | $200,170 | $200,170 | $49.25 | | |
| SD140BOND | SD #140 BOND 764 | 0.8342371393 | $200,170 | $200,170 | $166.99 | | |
| SD140GEN | SD #140 GENERAL 760 | 2.0646500647 | $200,170 | $200,170 | $413.28 | | |
| ST2 | STATE SCHOOL PART 2 600 | 0.8131451643 | $200,170 | $200,170 | $162.77 | | |
| STATESCHL | STATE SCHOOL 600 | 1.5158548041 | $200,170 | $200,170 | $303.43 | | |
| STREFUND | STATE REFUND LEVY 603 | 0.0000000000 | $200,170 | $200,170 | $0.00 | | |
| CWWBOND | C OF WW BOND 643 | 0.2760494372 | $200,170 | $200,170 | $55.26 | | |
| CWWGEN | CITY OF WW 631 | 1.6100204973 | $200,170 | $200,170 | $322.28 | | |
| CWWRFD | CITY OF WALLA WALLA REFUND 631 | 0.0000000000 | $200,170 | $200,170 | $0.00 | | |
| | Total Tax Rate: | 8.7973694689 | | | | | |
| | | | | Taxes w/Current Exemptions: | $1,760.98 | | |
| | | | | Taxes w/o Exemptions: | $1,760.98 | | |
Improvement / Building
| Improvement #1: | RESIDENTIAL | State Code: | 11 | 824.0 sqft | Value: | $141,830 |
| Exterior Wall: | SHINGLE | Heating/Cooling: | WARM & COOLED AIR | | Number of Bathrooms: | 1 | Number of Bedrooms: | 2 | | Plumbing: | 7 | Roof Covering: | COMP SHINGLE |
|
| | Type | Description | Class CD | Sub Class CD | Year Built | Area |
| | MA | Main Area | 1 | 25 | 1920 | 824.0 |
| | SI1 | SITE IMPROVEMENT | 1 | 25 | 1920 | 1.0 |
| | RPO | OPEN PORCH W/ROOF | 1 | 25 | 1920 | 25.0 |
| | BNV | BUILDING NO VALUE | 1 | 25 | 1920 | 260.0 |
Sketch
Property Image
Land
| 1 | RES 1 | Converted: Residential | 0.1674 | 7293.00 | 0.00 | 0.00 | 1.00 | $58,340 | $0 |
Roll Value History
| 2026 | N/A | N/A | N/A | N/A | N/A |
| 2025 | $150,990 | $72,930 | $0 | $223,920 | $223,920 |
| 2024 | $141,830 | $58,340 | $0 | $200,170 | $200,170 |
| 2023 | $141,830 | $58,340 | $0 | $200,170 | $200,170 |
| 2022 | $141,830 | $45,580 | $0 | $187,410 | $187,410 |
| 2021 | $101,300 | $45,580 | $0 | $146,880 | $146,880 |
| 2020 | $84,420 | $45,580 | $0 | $130,000 | $130,000 |
| 2019 | $84,420 | $45,580 | $0 | $130,000 | $130,000 |
| 2018 | $57,330 | $43,800 | $0 | $101,130 | $101,130 |
| 2017 | $49,850 | $43,800 | $0 | $93,650 | $93,650 |
| 2016 | $47,480 | $43,800 | $0 | $91,280 | $91,280 |
| 2015 | $43,160 | $43,800 | $0 | $86,960 | $86,960 |
| 2014 | $33,200 | $43,800 | $0 | $77,000 | $77,000 |
| 2013 | $33,200 | $43,800 | $0 | $77,000 | $77,000 |
| 2012 | $33,200 | $43,800 | $0 | $0 | $0 |
| 2011 | $33,200 | $43,800 | $0 | $0 | $0 |
| 2010 | $36,300 | $43,800 | $0 | $0 | $0 |
| 2009 | $45,200 | $43,800 | $0 | $0 | $0 |
| 2008 | $45,200 | $43,800 | $0 | $0 | $0 |
| 2007 | $23,300 | $14,600 | $0 | $0 | $0 |
Deed and Sales History
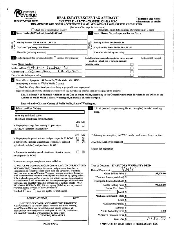
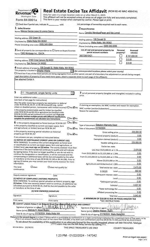
| 1 | 01/22/2024 | SWD | STATUTORY WARRANTY DEED | GARCIA-LOPEZ MARCOS & LORENA | PAYAN CENOBIO MENDOZA & IIDA LOMELI | | | $225,000.00 | 147042 | 2024-00318 |
| 2 | 10/05/2015 | SWD | STATUTORY WARRANTY DEED | O'NEEL NATHAN D & ANNABELLE | GARCIA-LOPEZ MARCOS & LORENA | | | $95,000.00 | 128946 | 2015-08763 |
| 3 | 03/12/2010 | WARRANTY D | WARRANTY DEED | POPE, LEONARD J & TRACI J | O'NEEL, NATHAN D & ANNABELLE | | | $78,358.00 | 118194 | 2010-02107 |
| 4 | 05/24/2000 | WARRANTY D | WARRANTY DEED | | | | | $33,000.00 | 95130 | 2980-004958 |
Payout Agreement
| No payout information available.. |