Property
Account |
| Property ID: | 2826 | Abbreviated Legal Description: | SEC 2 TWN 6 RNG 34 E1/2NW1/4 |
| Parcel Number: | 340602210003 | Agent Code: | |
| Type: | Real | | |
| Tax Area: | 101 - 140-4 | Land Use Code | 83 |
| Open Space: | Y | DFL | N |
| Historic Property: | N | Remodel Property: | N |
| Multi-Family Redevelopment: | N | | |
| Township: | 6 | Section: | 2 |
| Range: | 34 |
Location |
| Address: | WA 99362 | Mapsco: | |
| Neighborhood: | 0 Farm | Map ID: | |
| Neighborhood CD: | 2220 |
Owner |
| Name: | HALL JO ANN | Owner ID: | 69740 |
| Mailing Address: | 824 IRA WILLIAMS RD BENTON, AR 72019 | % Ownership: | 100.0000000000% |
| | | Exemptions: | |
Taxes and Assessment Details
Property Tax Information as of
02/21/2026
Click on "Statement Details" to expand or collapse a tax statement.
* Please enter a valid date ** Please enter a valid date *
Statement Details |
| | TOTAL: | $0.00 | $0.00 | $0.00 | $0.00 | $0.00 | $0.00 |
|
| | $0.00 | $0.00 | $0.00 | $0.00 | $0.00 | $0.00 |
Values
| (+) Improvement Homesite Value: | + | $0 | |
| (+) Improvement Non-Homesite Value: | + | $0 | |
| (+) Land Homesite Value: | + | $0 | |
| (+) Land Non-Homesite Value: | + | $0 | |
| (+) Curr Use (HS): | + | $0 | $0 |
| (+) Curr Use (NHS): | + | $121,250 | $41,910 |
| | | -------------------------- | |
| (=) Market Value: | = | $121,250 | |
| (–) Productivity Loss: | – | $79,340 | |
| | | -------------------------- | |
| (=) Subtotal: | = | $41,910 | |
| (+) Senior Appraised Value: | + | $0 | |
| (+) Non-Senior Appraised Value: | + | $41,910 | |
| | | -------------------------- | |
| (=) Total Appraised Value: | = | $41,910 | |
| (–) Senior Exemption Loss: | – | $0 | |
| (–) Exemption Loss: | – | $0 | |
| | | -------------------------- | |
| (=) Taxable Value: | = | $41,910 | |
Taxing Jurisdiction
| Owner: | HALL JO ANN | | |
| % Ownership: | 100.0000000000% | | |
| Total Value: | $121,250 | | |
| Tax Area: | 101 - 140-4 |
| CERFD | CURRENT EXPENSE REFUND 010 | 0.0000000000 | $41,910 | $41,910 | $0.00 | | |
| CURREXP | CURRENT EXPENSE 010 | 1.0175366760 | $41,910 | $41,910 | $42.64 | | |
| HUMNSERV | HUMAN SERVICES 119 | 0.0250000000 | $41,910 | $41,910 | $1.05 | | |
| SLDREL | SOLDIERS RELIEF 121 | 0.0155990005 | $41,910 | $41,910 | $0.65 | | |
| EMERGSER | EMS 147 | 0.3792580840 | $41,910 | $41,910 | $15.89 | | |
| EMSRFD | EMS REFUND 147 | 0.0000000000 | $41,910 | $41,910 | $0.00 | | |
| FD4EXP | FD #4 EXPENSE 686 | 0.8836993059 | $41,910 | $41,910 | $37.04 | | |
| RLBRFD | RURAL LIBRARY REFUND 623 | 0.0000000000 | $41,910 | $41,910 | $0.00 | | |
| RURALLIB | RURAL LIBRARY 623 | 0.3710609029 | $41,910 | $41,910 | $15.55 | | |
| PORTRFD | PORT REFUND 640 | 0.0000000000 | $41,910 | $41,910 | $0.00 | | |
| PORTWWGEN | PORT OF WW 640 | 0.2460186015 | $41,910 | $41,910 | $10.31 | | |
| SD140BOND | SD #140 BOND 764 | 0.8342371393 | $41,910 | $41,910 | $34.96 | | |
| SD140GEN | SD #140 GENERAL 760 | 2.0646500647 | $41,910 | $41,910 | $86.53 | | |
| ST2 | STATE SCHOOL PART 2 600 | 0.8131451643 | $41,910 | $41,910 | $34.08 | | |
| STATESCHL | STATE SCHOOL 600 | 1.5158548041 | $41,910 | $41,910 | $63.53 | | |
| STREFUND | STATE REFUND LEVY 603 | 0.0000000000 | $41,910 | $41,910 | $0.00 | | |
| COROAD | COUNTY ROAD 115 | 1.6549953990 | $41,910 | $41,910 | $69.36 | | |
| CRPRD | COUNTY ROAD REFUND 115 | 0.0000000000 | $41,910 | $41,910 | $0.00 | | |
| | Total Tax Rate: | 9.8210551422 | | | | | |
| | | | | Taxes w/Current Exemptions: | $411.59 | | |
| | | | | Taxes w/o Exemptions: | $411.59 | | |
Improvement / Building
Sketch
| No sketches available for this property. |
Property Image
Land
| 1 | 60-C1 | Class 1 60 BU | 79.8200 | 0.00 | 0.00 | 0.00 | 1.00 | $121,250 | $41,910 |
Roll Value History
| 2026 | N/A | N/A | N/A | N/A | N/A |
| 2025 | $0 | $129,470 | $37,440 | $37,440 | $37,440 |
| 2024 | $0 | $124,200 | $40,310 | $40,310 | $40,310 |
| 2023 | $0 | $121,250 | $41,910 | $41,910 | $41,910 |
| 2022 | $0 | $110,630 | $40,310 | $40,310 | $40,310 |
| 2021 | $0 | $101,050 | $40,150 | $40,150 | $40,150 |
| 2020 | $0 | $93,870 | $41,270 | $41,270 | $41,270 |
| 2019 | $0 | $90,040 | $42,230 | $42,230 | $42,230 |
| 2018 | $0 | $89,560 | $47,970 | $47,970 | $47,970 |
| 2017 | $0 | $85,730 | $48,770 | $48,770 | $48,770 |
| 2016 | $0 | $85,730 | $48,930 | $48,930 | $48,930 |
| 2015 | $0 | $85,010 | $43,260 | $43,260 | $43,260 |
| 2014 | $0 | $85,010 | $43,740 | $43,740 | $43,740 |
| 2013 | $0 | $80,200 | $35,600 | $35,600 | $35,600 |
| 2012 | $0 | $23,900 | $0 | $0 | $0 |
| 2011 | $0 | $25,300 | $0 | $0 | $0 |
| 2010 | $0 | $23,400 | $0 | $0 | $0 |
| 2009 | $0 | $23,500 | $0 | $0 | $0 |
| 2008 | $0 | $20,100 | $0 | $0 | $0 |
| 2007 | $0 | $21,700 | $0 | $0 | $0 |
Deed and Sales History
| 1 | 03/26/2024 | QCD | QUIT CLAIM DEED | HALL JO ANN | HALL GREGORY & NANCY JOINT REVOCABLE TRUST | | | | 147289 | 2024-01446 |
| 2 | 07/02/2021 | SWD | STATUTORY WARRANTY DEED | DOGGETT WEAVER TRUST | HALL JO ANN | | 3-PARCELS | $400,000.00 | 141958 | 2021-08054 |
|   | |
| 3 | 11/14/2019 | SWD | STATUTORY WARRANTY DEED | WEAVER KAREN A | DOGGETT WEAVER TRUST | | 3 PARCELS | $0.00 | 138155 | 2019-09839 |
| 4 | 05/17/2019 | SWD | STATUTORY WARRANTY DEED | SINNER JUDITH A | WEAVER KAREN A | | | $0.00 | 137122 | 2019-04390 |
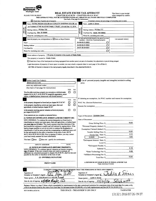
| 5 | 10/21/2016 | QCD | QUIT CLAIM DEED | SINNER JUDITH A ET AL | SINNER JUDITH A | | | $0.00 | 131321 | 2016-08862 |
| 6 | 06/01/2015 | QCD | QUIT CLAIM DEED | SINNER JUDITH A | SINNER JUDITH A ET AL | 3 PARCELS | | | 128087 | 2015-04654 |
| 7 | 08/18/2006 | WARRANTY D | WARRANTY DEED | BERGEVIN THOMAS C | SINNER JUDITH A | | | | 110991 | 2006-09927 |
| 8 | 03/26/1984 | WARRANTY D | WARRANTY DEED | | | | | $63,000.00 | 0 | 1428-402010 |
|   | |
Payout Agreement
| No payout information available.. |