Property
Account |
| Property ID: | 28211 | Abbreviated Legal Description: | STONE CREEK #2 PARCEL #16 BLK 1 |
| Parcel Number: | 360732670116 | Agent Code: | |
| Type: | Real | | |
| Tax Area: | 1 - OL-140-F | Land Use Code | 11 |
| Open Space: | N | DFL | N |
| Historic Property: | N | Remodel Property: | N |
| Multi-Family Redevelopment: | N | | |
| Township: | 7 | Section: | 32 |
| Range: | 36 |
Location |
| Address: | 2115 SHALE PL WA 99362 | Mapsco: | |
| Neighborhood: | G Res | Map ID: | |
| Neighborhood CD: | 614011 |
Owner |
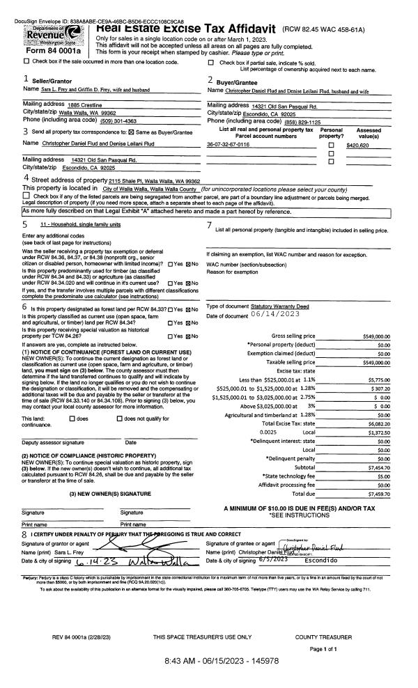
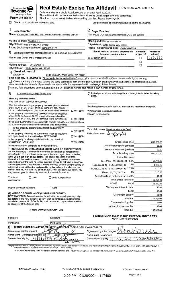
| Name: | FLUD CHRISTOPHER DANIEL & DENISE LEILANI | Owner ID: | 73753 |
| Mailing Address: | 820 BETZ LN WALLA WALLA, WA 99362 | % Ownership: | 100.0000000000% |
| | | Exemptions: | |
Taxes and Assessment Details
Property Tax Information as of
02/21/2026
Click on "Statement Details" to expand or collapse a tax statement.
* Please enter a valid date ** Please enter a valid date *
Statement Details |
| | TOTAL: | $0.00 | $0.00 | $0.00 | $0.00 | $0.00 | $0.00 |
|
| | $0.00 | $0.00 | $0.00 | $0.00 | $0.00 | $0.00 |
Values
| (+) Improvement Homesite Value: | + | $0 | |
| (+) Improvement Non-Homesite Value: | + | $371,910 | |
| (+) Land Homesite Value: | + | $0 | |
| (+) Land Non-Homesite Value: | + | $97,220 | |
| (+) Curr Use (HS): | + | $0 | $0 |
| (+) Curr Use (NHS): | + | $0 | $0 |
| | | -------------------------- | |
| (=) Market Value: | = | $469,130 | |
| (–) Productivity Loss: | – | $0 | |
| | | -------------------------- | |
| (=) Subtotal: | = | $469,130 | |
| (+) Senior Appraised Value: | + | $0 | |
| (+) Non-Senior Appraised Value: | + | $469,130 | |
| | | -------------------------- | |
| (=) Total Appraised Value: | = | $469,130 | |
| (–) Senior Exemption Loss: | – | $0 | |
| (–) Exemption Loss: | – | $0 | |
| | | -------------------------- | |
| (=) Taxable Value: | = | $469,130 | |
Taxing Jurisdiction
| Owner: | FLUD CHRISTOPHER DANIEL & DENISE LEILANI | | |
| % Ownership: | 100.0000000000% | | |
| Total Value: | $469,130 | | |
| Tax Area: | 1 - OL-140-F |
| CERFD | CURRENT EXPENSE REFUND 010 | 0.0000000000 | $469,130 | $469,130 | $0.00 | | |
| CURREXP | CURRENT EXPENSE 010 | 1.0175366760 | $469,130 | $469,130 | $477.36 | | |
| HUMNSERV | HUMAN SERVICES 119 | 0.0250000000 | $469,130 | $469,130 | $11.73 | | |
| SLDREL | SOLDIERS RELIEF 121 | 0.0155990005 | $469,130 | $469,130 | $7.32 | | |
| EMERGSER | EMS 147 | 0.3792580840 | $469,130 | $469,130 | $177.92 | | |
| EMSRFD | EMS REFUND 147 | 0.0000000000 | $469,130 | $469,130 | $0.00 | | |
| PORTRFD | PORT REFUND 640 | 0.0000000000 | $469,130 | $469,130 | $0.00 | | |
| PORTWWGEN | PORT OF WW 640 | 0.2460186015 | $469,130 | $469,130 | $115.41 | | |
| SD140BOND | SD #140 BOND 764 | 0.8342371393 | $469,130 | $469,130 | $391.37 | | |
| SD140GEN | SD #140 GENERAL 760 | 2.0646500647 | $469,130 | $469,130 | $968.59 | | |
| ST2 | STATE SCHOOL PART 2 600 | 0.8131451643 | $469,130 | $469,130 | $381.47 | | |
| STATESCHL | STATE SCHOOL 600 | 1.5158548041 | $469,130 | $469,130 | $711.13 | | |
| STREFUND | STATE REFUND LEVY 603 | 0.0000000000 | $469,130 | $469,130 | $0.00 | | |
| CWWBOND | C OF WW BOND 643 | 0.2760494372 | $469,130 | $469,130 | $129.50 | | |
| CWWGEN | CITY OF WW 631 | 1.6100204973 | $469,130 | $469,130 | $755.31 | | |
| CWWRFD | CITY OF WALLA WALLA REFUND 631 | 0.0000000000 | $469,130 | $469,130 | $0.00 | | |
| | Total Tax Rate: | 8.7973694689 | | | | | |
| | | | | Taxes w/Current Exemptions: | $4,127.11 | | |
| | | | | Taxes w/o Exemptions: | $4,127.11 | | |
Improvement / Building
| Improvement #1: | RESIDENTIAL | State Code: | 11 | 1546.0 sqft | Value: | $371,910 |
| Exterior Wall: | PLYWOOD | Heating/Cooling: | WARM & COOLED AIR | | Number of Bathrooms: | 3 | Number of Bedrooms: | 5 | | Plumbing: | 12 | Roof Covering: | COMP SHINGLE |
|
| | Type | Description | Class CD | Sub Class CD | Year Built | Area |
| | MA | Main Area | 1 | 30 | 1979 | 1546.0 |
| | SI1 | SITE IMPROVEMENT | 1 | 30 | 1979 | 2.0 |
| | BASE | BASEMENT | 1 | 30 | 1979 | 1546.0 |
| | BPF | BASEMENT -PARTITIONED FINISH | 1 | 30 | 1979 | 1546.0 |
| | ATG | Attached Garage | 1 | 30 | 1979 | 552.0 |
| | RPO | OPEN PORCH W/ROOF | 1 | 30 | 1979 | 144.0 |
| | WOD | Wood Deck | 1 | 30 | 1979 | 378.0 |
| | S1F | Single One Story Fireplace | 1 | 30 | 1979 | 1.0 |
Sketch
Property Image
Land
| 1 | RES 1 | Converted: Residential | 0.2232 | 9722.00 | 0.00 | 0.00 | 1.00 | $97,220 | $0 |
Roll Value History
| 2026 | N/A | N/A | N/A | N/A | N/A |
| 2025 | $413,420 | $125,000 | $0 | $538,420 | $538,420 |
| 2024 | $371,910 | $97,220 | $0 | $469,130 | $469,130 |
| 2023 | $371,910 | $97,220 | $0 | $469,130 | $469,130 |
| 2022 | $323,400 | $70,500 | $0 | $393,900 | $393,900 |
| 2021 | $294,000 | $70,500 | $0 | $364,500 | $364,500 |
| 2020 | $210,000 | $70,500 | $0 | $280,500 | $280,500 |
| 2019 | $210,000 | $70,500 | $0 | $280,500 | $280,500 |
| 2018 | $211,330 | $46,900 | $0 | $258,230 | $258,230 |
| 2017 | $211,330 | $46,900 | $0 | $258,230 | $258,230 |
| 2016 | $176,110 | $46,900 | $0 | $223,010 | $223,010 |
| 2015 | $176,110 | $46,900 | $0 | $223,010 | $223,010 |
| 2014 | $160,100 | $46,900 | $0 | $207,000 | $207,000 |
| 2013 | $160,100 | $46,900 | $0 | $207,000 | $207,000 |
| 2012 | $154,500 | $46,900 | $0 | $0 | $0 |
| 2011 | $154,500 | $46,900 | $0 | $0 | $0 |
| 2010 | $165,100 | $46,900 | $0 | $0 | $0 |
| 2009 | $185,600 | $50,000 | $0 | $0 | $0 |
| 2008 | $185,600 | $50,000 | $0 | $0 | $0 |
| 2007 | $126,600 | $30,000 | $0 | $0 | $0 |
Deed and Sales History
| 1 | 04/26/2024 | SWD | STATUTORY WARRANTY DEED | FLUD CHRISTOPHER DANIEL & DENISE LEILANI | O'DELL LISA & CHRISTOPHER | | | $540,000.00 | 147460 | 2024-02150 |
| 2 | 06/15/2023 | SWD | STATUTORY WARRANTY DEED | FREY GRIFFIN D & SARA L | FLUD CHRISTOPHER DANIEL & DENISE LEILANI | | | $549,000.00 | 145978 | 2023-03280 |
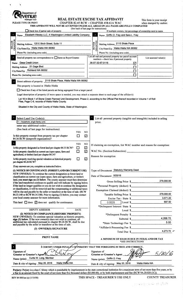
| 3 | 05/23/2016 | SWD | STATUTORY WARRANTY DEED | ELIZABETH-WESLEY LLC | FREY GRIFFIN D & SARA L | | | $279,000.00 | 130268 | 2016-03886 |
| 4 | 02/24/2010 | QCD | QUIT CLAIM DEED | LONG, ALICE M | ELIZABETH-WESLEY LLC | | | | 118125 | 2010-01686 |
| 5 | 01/09/2009 | QCD | QUIT CLAIM DEED | ELIZABETH-WESLEY LLC | LONG, ALICE M | | | | 116178 | 2009-00199 |
| 6 | 01/26/2007 | WARRANTY D | WARRANTY DEED | MATUS, DANIEL & JET | ELIZABETH-WESLEY LLC | | | $235,000.00 | 112140 | 2007-01035 |
| 7 | 03/11/2002 | WARRANTY D | WARRANTY DEED | | | | | $155,500.00 | 99072 | 3300-203003 |
Payout Agreement
| No payout information available.. |