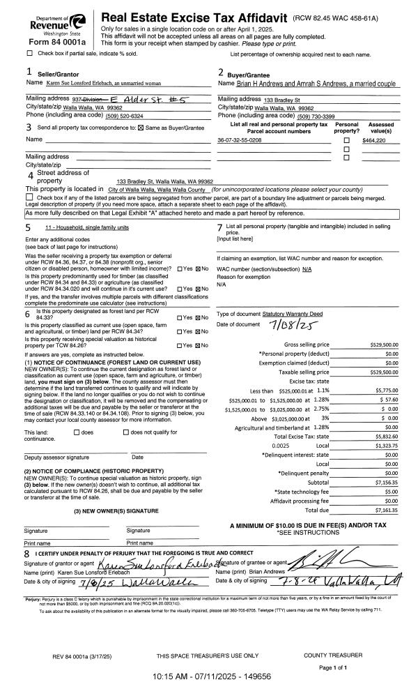
Property
Account |
| Property ID: | 2808 | Abbreviated Legal Description: | MEADOW VIEW LT 8 BLK 2 |
| Parcel Number: | 360732550208 | Agent Code: | |
| Type: | Real | | |
| Tax Area: | 1 - OL-140-F | Land Use Code | 11 |
| Open Space: | N | DFL | N |
| Historic Property: | N | Remodel Property: | N |
| Multi-Family Redevelopment: | N | | |
| Township: | 7 | Section: | 32 |
| Range: | 36 |
Location |
| Address: | 133 BRADLEY ST WA 99362 | Mapsco: | |
| Neighborhood: | A Res | Map ID: | |
| Neighborhood CD: | 613011 |
Owner |
| Name: | ERLEBACH KAREN SUE LONSFORD | Owner ID: | 68526 |
| Mailing Address: | 133 BRADLEY ST WALLA WALLA, WA 99362 | % Ownership: | 100.0000000000% |
| | | Exemptions: | |
Taxes and Assessment Details
Property Tax Information as of
02/21/2026
Click on "Statement Details" to expand or collapse a tax statement.
* Please enter a valid date ** Please enter a valid date *
Statement Details |
| | TOTAL: | $0.00 | $0.00 | $0.00 | $0.00 | $0.00 | $0.00 |
|
| | $0.00 | $0.00 | $0.00 | $0.00 | $0.00 | $0.00 |
Values
| (+) Improvement Homesite Value: | + | $0 | |
| (+) Improvement Non-Homesite Value: | + | $388,100 | |
| (+) Land Homesite Value: | + | $0 | |
| (+) Land Non-Homesite Value: | + | $76,120 | |
| (+) Curr Use (HS): | + | $0 | $0 |
| (+) Curr Use (NHS): | + | $0 | $0 |
| | | -------------------------- | |
| (=) Market Value: | = | $464,220 | |
| (–) Productivity Loss: | – | $0 | |
| | | -------------------------- | |
| (=) Subtotal: | = | $464,220 | |
| (+) Senior Appraised Value: | + | $0 | |
| (+) Non-Senior Appraised Value: | + | $464,220 | |
| | | -------------------------- | |
| (=) Total Appraised Value: | = | $464,220 | |
| (–) Senior Exemption Loss: | – | $0 | |
| (–) Exemption Loss: | – | $0 | |
| | | -------------------------- | |
| (=) Taxable Value: | = | $464,220 | |
Taxing Jurisdiction
| Owner: | ERLEBACH KAREN SUE LONSFORD | | |
| % Ownership: | 100.0000000000% | | |
| Total Value: | $464,220 | | |
| Tax Area: | 1 - OL-140-F |
| CERFD | CURRENT EXPENSE REFUND 010 | 0.0000000000 | $464,220 | $464,220 | $0.00 | | |
| CURREXP | CURRENT EXPENSE 010 | 1.0175366760 | $464,220 | $464,220 | $472.36 | | |
| HUMNSERV | HUMAN SERVICES 119 | 0.0250000000 | $464,220 | $464,220 | $11.61 | | |
| SLDREL | SOLDIERS RELIEF 121 | 0.0155990005 | $464,220 | $464,220 | $7.24 | | |
| EMERGSER | EMS 147 | 0.3792580840 | $464,220 | $464,220 | $176.06 | | |
| EMSRFD | EMS REFUND 147 | 0.0000000000 | $464,220 | $464,220 | $0.00 | | |
| PORTRFD | PORT REFUND 640 | 0.0000000000 | $464,220 | $464,220 | $0.00 | | |
| PORTWWGEN | PORT OF WW 640 | 0.2460186015 | $464,220 | $464,220 | $114.21 | | |
| SD140BOND | SD #140 BOND 764 | 0.8342371393 | $464,220 | $464,220 | $387.27 | | |
| SD140GEN | SD #140 GENERAL 760 | 2.0646500647 | $464,220 | $464,220 | $958.45 | | |
| ST2 | STATE SCHOOL PART 2 600 | 0.8131451643 | $464,220 | $464,220 | $377.48 | | |
| STATESCHL | STATE SCHOOL 600 | 1.5158548041 | $464,220 | $464,220 | $703.69 | | |
| STREFUND | STATE REFUND LEVY 603 | 0.0000000000 | $464,220 | $464,220 | $0.00 | | |
| CWWBOND | C OF WW BOND 643 | 0.2760494372 | $464,220 | $464,220 | $128.15 | | |
| CWWGEN | CITY OF WW 631 | 1.6100204973 | $464,220 | $464,220 | $747.40 | | |
| CWWRFD | CITY OF WALLA WALLA REFUND 631 | 0.0000000000 | $464,220 | $464,220 | $0.00 | | |
| | Total Tax Rate: | 8.7973694689 | | | | | |
| | | | | Taxes w/Current Exemptions: | $4,083.92 | | |
| | | | | Taxes w/o Exemptions: | $4,083.92 | | |
Improvement / Building
| Improvement #1: | RESIDENTIAL | State Code: | 11 | 2326.0 sqft | Value: | $388,100 |
| Exterior Wall: | SIDING | Foundation: | SLAB FOUNDATION | | Heating/Cooling: | WARM & COOLED AIR | Number of Bathrooms: | 2 | | Number of Bedrooms: | 3 | Plumbing: | 12 | | Roof Covering: | COMP SHINGLE |   |   |
|
| | Type | Description | Class CD | Sub Class CD | Year Built | Area |
| | MA | Main Area | 1 | 30 | 1961 | 2326.0 |
| | SI1 | SITE IMPROVEMENT | 1 | 30 | 1961 | 4.5 |
| | GFP | GAS FIREPLACE | 1 | 30 | 1961 | 1.0 |
| | RPS | PORCH W/STEPS,ROOF | 1 | 30 | 1961 | 161.0 |
Sketch
Property Image
Land
| 1 | RES 1 | Converted: Residential | 0.1942 | 8458.00 | 0.00 | 0.00 | 1.00 | $76,120 | $0 |
Roll Value History
| 2026 | N/A | N/A | N/A | N/A | N/A |
| 2025 | $371,600 | $93,040 | $0 | $464,640 | $464,640 |
| 2024 | $388,100 | $76,120 | $0 | $464,220 | $464,220 |
| 2023 | $388,100 | $76,120 | $0 | $464,220 | $464,220 |
| 2022 | $368,100 | $61,320 | $0 | $429,420 | $429,420 |
| 2021 | $242,370 | $61,320 | $0 | $303,690 | $303,690 |
| 2020 | $151,480 | $61,320 | $0 | $212,800 | $212,800 |
| 2019 | $151,480 | $61,320 | $0 | $212,800 | $212,800 |
| 2018 | $154,710 | $45,800 | $0 | $200,510 | $200,510 |
| 2017 | $123,770 | $45,800 | $0 | $169,570 | $169,570 |
| 2016 | $107,630 | $45,800 | $0 | $153,430 | $153,430 |
| 2015 | $102,500 | $45,800 | $0 | $148,300 | $148,300 |
| 2014 | $102,500 | $45,800 | $0 | $148,300 | $148,300 |
| 2013 | $102,500 | $45,800 | $0 | $148,300 | $148,300 |
| 2012 | $102,500 | $45,800 | $0 | $0 | $0 |
| 2011 | $102,500 | $45,800 | $0 | $0 | $0 |
| 2010 | $102,500 | $45,800 | $0 | $0 | $0 |
| 2009 | $119,000 | $45,800 | $0 | $0 | $0 |
| 2008 | $119,000 | $45,800 | $0 | $0 | $0 |
| 2007 | $87,200 | $23,300 | $0 | $0 | $0 |
Deed and Sales History
| 1 | 07/11/2025 | SWD | STATUTORY WARRANTY DEED | ERLEBACH KAREN SUE LONSFORD | ANDREWS BRIAN H & AMRAH S | | | $529,500.00 | 149656 | 2025-03941 |
| 2 | 12/15/2020 | SWD | STATUTORY WARRANTY DEED | DRUMHELLER ADAM | ERLEBACH KAREN SUE LONSFORD | | | $335,000.00 | 140552 | 2020-13271 |
| 3 | 05/27/2003 | QCD | QUIT CLAIM DEED | DRUMHELLER, ADAM J | DRUMHELLER, ADAM J | | | | 102161 | 2003-07684 |
| 4 | 05/23/2003 | QCD | QUIT CLAIM DEED | DRUMHELLER, LINDA | DRUMHELLER, ADAM | | | | 102141 | 2003-07547 |
| 5 | 12/04/1986 | WARRANTY D | WARRANTY DEED | | | | | $49,000.00 | 0 | 1608-609501 |
Payout Agreement
| No payout information available.. |