Property
Account |
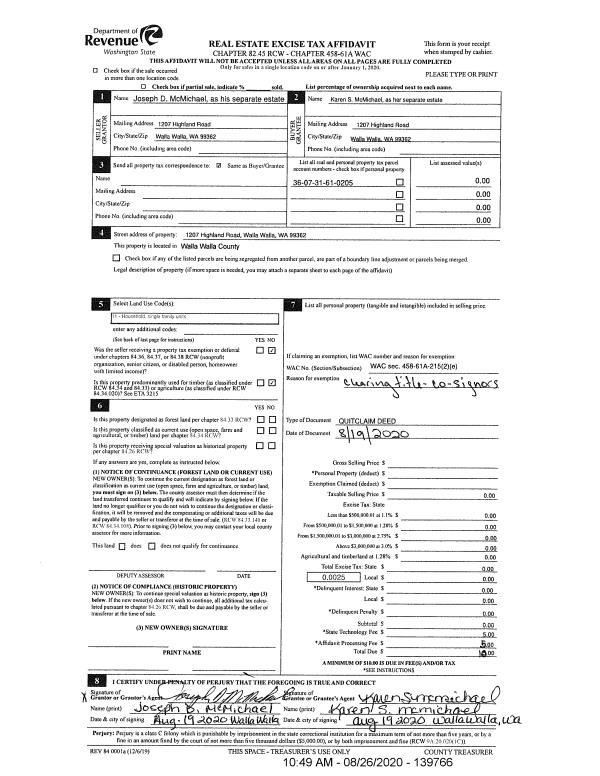
| Property ID: | 2805 | Abbreviated Legal Description: | SOUTHVIEW ESTATES ADDN LT 5 BLK 2 |
| Parcel Number: | 360731610205 | Agent Code: | |
| Type: | Real | | |
| Tax Area: | 5 - OL-140 | Land Use Code | 11 |
| Open Space: | N | DFL | N |
| Historic Property: | N | Remodel Property: | N |
| Multi-Family Redevelopment: | N | | |
| Township: | 7 | Section: | 31 |
| Range: | 36 |
Location |
| Address: | 1207 HIGHLAND RD WA 99362 | Mapsco: | |
| Neighborhood: | VG- Res Rural/City Inf | Map ID: | |
| Neighborhood CD: | 115112 |
Owner |
| Name: | MC MICHAEL KAREN S | Owner ID: | 67762 |
| Mailing Address: | 463 CLERMONT DR RICHLAND, WA 99352-9525 | % Ownership: | 100.0000000000% |
| | | Exemptions: | |
Taxes and Assessment Details
Property Tax Information as of
02/21/2026
Click on "Statement Details" to expand or collapse a tax statement.
* Please enter a valid date ** Please enter a valid date *
Statement Details |
| | TOTAL: | $0.00 | $0.00 | $0.00 | $0.00 | $0.00 | $0.00 |
|
| | $0.00 | $0.00 | $0.00 | $0.00 | $0.00 | $0.00 |
Values
| (+) Improvement Homesite Value: | + | $0 | |
| (+) Improvement Non-Homesite Value: | + | $453,640 | |
| (+) Land Homesite Value: | + | $0 | |
| (+) Land Non-Homesite Value: | + | $90,000 | |
| (+) Curr Use (HS): | + | $0 | $0 |
| (+) Curr Use (NHS): | + | $0 | $0 |
| | | -------------------------- | |
| (=) Market Value: | = | $543,640 | |
| (–) Productivity Loss: | – | $0 | |
| | | -------------------------- | |
| (=) Subtotal: | = | $543,640 | |
| (+) Senior Appraised Value: | + | $0 | |
| (+) Non-Senior Appraised Value: | + | $543,640 | |
| | | -------------------------- | |
| (=) Total Appraised Value: | = | $543,640 | |
| (–) Senior Exemption Loss: | – | $0 | |
| (–) Exemption Loss: | – | $0 | |
| | | -------------------------- | |
| (=) Taxable Value: | = | $543,640 | |
Taxing Jurisdiction
| Owner: | MC MICHAEL KAREN S | | |
| % Ownership: | 100.0000000000% | | |
| Total Value: | $543,640 | | |
| Tax Area: | 5 - OL-140 |
| CERFD | CURRENT EXPENSE REFUND 010 | 0.0000000000 | $543,640 | $543,640 | $0.00 | | |
| CURREXP | CURRENT EXPENSE 010 | 1.0175366760 | $543,640 | $543,640 | $553.17 | | |
| HUMNSERV | HUMAN SERVICES 119 | 0.0250000000 | $543,640 | $543,640 | $13.59 | | |
| SLDREL | SOLDIERS RELIEF 121 | 0.0155990005 | $543,640 | $543,640 | $8.48 | | |
| EMERGSER | EMS 147 | 0.3792580840 | $543,640 | $543,640 | $206.18 | | |
| EMSRFD | EMS REFUND 147 | 0.0000000000 | $543,640 | $543,640 | $0.00 | | |
| PORTRFD | PORT REFUND 640 | 0.0000000000 | $543,640 | $543,640 | $0.00 | | |
| PORTWWGEN | PORT OF WW 640 | 0.2460186015 | $543,640 | $543,640 | $133.75 | | |
| SD140BOND | SD #140 BOND 764 | 0.8342371393 | $543,640 | $543,640 | $453.52 | | |
| SD140GEN | SD #140 GENERAL 760 | 2.0646500647 | $543,640 | $543,640 | $1,122.43 | | |
| ST2 | STATE SCHOOL PART 2 600 | 0.8131451643 | $543,640 | $543,640 | $442.06 | | |
| STATESCHL | STATE SCHOOL 600 | 1.5158548041 | $543,640 | $543,640 | $824.08 | | |
| STREFUND | STATE REFUND LEVY 603 | 0.0000000000 | $543,640 | $543,640 | $0.00 | | |
| CWWBOND | C OF WW BOND 643 | 0.2760494372 | $543,640 | $543,640 | $150.07 | | |
| CWWGEN | CITY OF WW 631 | 1.6100204973 | $543,640 | $543,640 | $875.27 | | |
| CWWRFD | CITY OF WALLA WALLA REFUND 631 | 0.0000000000 | $543,640 | $543,640 | $0.00 | | |
| | Total Tax Rate: | 8.7973694689 | | | | | |
| | | | | Taxes w/Current Exemptions: | $4,782.60 | | |
| | | | | Taxes w/o Exemptions: | $4,782.60 | | |
Improvement / Building
| Improvement #1: | RESIDENTIAL | State Code: | 11 | 1588.0 sqft | Value: | $453,640 |
| Exterior Wall: | HARDBOARD | Heating/Cooling: | WARM & COOLED AIR | | Number of Bathrooms: | 2 | Number of Bedrooms: | 3 | | Plumbing: | 12 | Roof Covering: | COMP SHINGLE |
|
| | Type | Description | Class CD | Sub Class CD | Year Built | Area |
| | MA | Main Area | 1 | 35 | 1994 | 1588.0 |
| | ATG | Attached Garage | 1 | 35 | 0 | 576.0 |
| | SI1 | SITE IMPROVEMENT | 1 | 35 | 0 | 3.0 |
| | BASE | BASEMENT | 1 | 35 | 1994 | 1396.0 |
| | BPF | BASEMENT -PARTITIONED FINISH | 1 | 35 | 1994 | 1396.0 |
| | PRC | PORCH W STEPS, ROOF,CEILED | 1 | 35 | 0 | 40.0 |
| | BLW | WOOD BALCONIES | 1 | 35 | 1994 | 276.0 |
Sketch
Property Image
Land
| 1 | RES 1 | Converted: Residential | 0.2217 | 9656.00 | 0.00 | 0.00 | 1.00 | $90,000 | $0 |
Roll Value History
| 2026 | N/A | N/A | N/A | N/A | N/A |
| 2025 | $408,270 | $150,000 | $0 | $558,270 | $558,270 |
| 2024 | $453,640 | $90,000 | $0 | $543,640 | $543,640 |
| 2023 | $453,640 | $90,000 | $0 | $543,640 | $543,640 |
| 2022 | $362,910 | $90,000 | $0 | $452,910 | $452,910 |
| 2021 | $315,570 | $90,000 | $0 | $405,570 | $405,570 |
| 2020 | $225,410 | $90,000 | $0 | $315,410 | $315,410 |
| 2019 | $240,410 | $75,000 | $0 | $315,410 | $315,410 |
| 2018 | $240,410 | $75,000 | $0 | $315,410 | $315,410 |
| 2017 | $155,100 | $75,000 | $0 | $230,100 | $230,100 |
| 2016 | $155,100 | $75,000 | $0 | $230,100 | $230,100 |
| 2015 | $141,000 | $75,000 | $0 | $216,000 | $216,000 |
| 2014 | $141,000 | $75,000 | $0 | $216,000 | $216,000 |
| 2013 | $141,000 | $75,000 | $0 | $216,000 | $216,000 |
| 2012 | $165,000 | $75,000 | $0 | $0 | $0 |
| 2011 | $165,000 | $75,000 | $0 | $0 | $0 |
| 2010 | $165,000 | $75,000 | $0 | $0 | $0 |
| 2009 | $165,000 | $75,000 | $0 | $0 | $0 |
| 2008 | $160,700 | $40,000 | $0 | $0 | $0 |
| 2007 | $160,700 | $40,000 | $0 | $0 | $0 |
Deed and Sales History
| 1 | 08/26/2020 | QCD | QUIT CLAIM DEED | MC MICHAEL KAREN S | MC MICHAEL KAREN S | | | | 139766 | 2020-08543 |
| 2 | 08/07/2020 | DPR | DEED OF PERSONAL REPRESENTATIVE | MC MICHAEL KAREN S | MC MICHAEL KAREN S | | | $0.00 | 139701 | 2020-07986 |
| 3 | 05/13/2003 | QCD | QUIT CLAIM DEED | MC MICHAEL-LOCKARD, KAREN S | MC MICHAEL, KAREN S | | | | 102065 | 2003-06969 |
| 4 | 10/12/2001 | WARRANTY D | WARRANTY DEED | | | | | $207,500.00 | 98167 | 3210-111010 |
Payout Agreement
| No payout information available.. |