Property
Account |
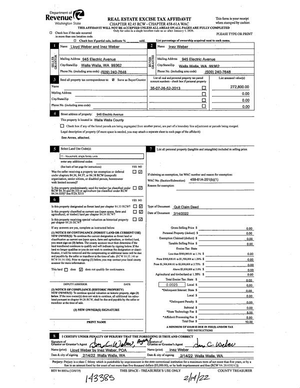
| Property ID: | 27995 | Abbreviated Legal Description: | BLALOCK ORCHARDS TAX 5 LOT 2 BLK 20 |
| Parcel Number: | 350726522013 | Agent Code: | |
| Type: | Real | | |
| Tax Area: | 311 - 250-4 | Land Use Code | 11 |
| Open Space: | N | DFL | N |
| Historic Property: | N | Remodel Property: | N |
| Multi-Family Redevelopment: | N | | |
| Township: | 7 | Section: | 26 |
| Range: | 35 |
Location |
| Address: | 945 ELECTRIC AVE WA 99324 | Mapsco: | |
| Neighborhood: | A SFR Rural/City Infl | Map ID: | |
| Neighborhood CD: | 313012 |
Owner |
| Name: | WEBER INEZ | Owner ID: | 71138 |
| Mailing Address: | 945 ELECTRIC AVE WALLA WALLA, WA 99362 | % Ownership: | 100.0000000000% |
| | | Exemptions: | |
Taxes and Assessment Details
Values
| (+) Improvement Homesite Value: | + | $0 | |
| (+) Improvement Non-Homesite Value: | + | $195,020 | |
| (+) Land Homesite Value: | + | $0 | |
| (+) Land Non-Homesite Value: | + | $134,460 | |
| (+) Curr Use (HS): | + | $0 | $0 |
| (+) Curr Use (NHS): | + | $0 | $0 |
| | | -------------------------- | |
| (=) Market Value: | = | $329,480 | |
| (–) Productivity Loss: | – | $0 | |
| | | -------------------------- | |
| (=) Subtotal: | = | $329,480 | |
| (+) Senior Appraised Value: | + | $0 | |
| (+) Non-Senior Appraised Value: | + | $329,480 | |
| | | -------------------------- | |
| (=) Total Appraised Value: | = | $329,480 | |
| (–) Senior Exemption Loss: | – | $0 | |
| (–) Exemption Loss: | – | $0 | |
| | | -------------------------- | |
| (=) Taxable Value: | = | $329,480 | |
Taxing Jurisdiction
| Owner: | WEBER INEZ | | |
| % Ownership: | 100.0000000000% | | |
| Total Value: | $329,480 | | |
| Tax Area: | 311 - 250-4 |
| CERFD | CURRENT EXPENSE REFUND 010 | 0.0000000000 | $329,480 | $329,480 | $0.00 | | |
| CURREXP | CURRENT EXPENSE 010 | 1.0175366760 | $329,480 | $329,480 | $335.26 | | |
| HUMNSERV | HUMAN SERVICES 119 | 0.0250000000 | $329,480 | $329,480 | $8.24 | | |
| SLDREL | SOLDIERS RELIEF 121 | 0.0155990005 | $329,480 | $329,480 | $5.14 | | |
| EMERGSER | EMS 147 | 0.3792580840 | $329,480 | $329,480 | $124.96 | | |
| EMSRFD | EMS REFUND 147 | 0.0000000000 | $329,480 | $329,480 | $0.00 | | |
| FD4EXP | FD #4 EXPENSE 686 | 0.8836993059 | $329,480 | $329,480 | $291.16 | | |
| RLBRFD | RURAL LIBRARY REFUND 623 | 0.0000000000 | $329,480 | $329,480 | $0.00 | | |
| RURALLIB | RURAL LIBRARY 623 | 0.3710609029 | $329,480 | $329,480 | $122.26 | | |
| PORTRFD | PORT REFUND 640 | 0.0000000000 | $329,480 | $329,480 | $0.00 | | |
| PORTWWGEN | PORT OF WW 640 | 0.2460186015 | $329,480 | $329,480 | $81.06 | | |
| SD250BOND | SD #250 BOND 773 | 1.4560608159 | $329,480 | $329,480 | $479.74 | | |
| SD250GEN | SD #250 GENERAL 770 | 2.3880724087 | $329,480 | $329,480 | $786.82 | | |
| ST2 | STATE SCHOOL PART 2 600 | 0.8131451643 | $329,480 | $329,480 | $267.92 | | |
| STATESCHL | STATE SCHOOL 600 | 1.5158548041 | $329,480 | $329,480 | $499.44 | | |
| STREFUND | STATE REFUND LEVY 603 | 0.0000000000 | $329,480 | $329,480 | $0.00 | | |
| COROAD | COUNTY ROAD 115 | 1.6549953990 | $329,480 | $329,480 | $545.29 | | |
| CRPRD | COUNTY ROAD REFUND 115 | 0.0000000000 | $329,480 | $329,480 | $0.00 | | |
| | Total Tax Rate: | 10.7663011628 | | | | | |
| | | | | Taxes w/Current Exemptions: | $3,547.29 | | |
| | | | | Taxes w/o Exemptions: | $3,547.29 | | |
Improvement / Building
| Improvement #1: | RESIDENTIAL | State Code: | 11 | 1410.0 sqft | Value: | $195,020 |
| Exterior Wall: | SIDING | Heating/Cooling: | FORCED AIR | | Number of Bathrooms: | 2 | Number of Bedrooms: | 3 | | Plumbing: | 9 | Roof Covering: | COMP SHINGLE |
|
| | Type | Description | Class CD | Sub Class CD | Year Built | Area |
| | MA | Main Area | 1 | 30 | 1953 | 1410.0 |
| | SI1 | SITE IMPROVEMENT | 1 | 30 | 0 | 1.5 |
| | OPS | OPEN PORCH W/STEPS | 1 | 30 | 1953 | 16.0 |
| | OPS | OPEN PORCH W/STEPS | 1 | 30 | 1953 | 30.0 |
| | BARN | BARN-AVE | 1 | 30 | 2003 | 2030.0 |
| | EQUIPSHED | EQUIPMENT SHED | 1 | 30 | 2003 | 324.0 |
| | FREESTALL | FREE STALL BARN | 1 | 30 | 2003 | 520.0 |
| | OSP | Open | 1 | 30 | 1953 | 96.0 |
| | UTST | Utility Storage Shed | 1 | 20 | 1953 | 1173.0 |
Sketch
Property Image
Land
| 1 | RES 1 | Converted: Residential | 1.8100 | 0.00 | 0.00 | 0.00 | 1.00 | $134,460 | $0 |
Roll Value History
| 2026 | N/A | N/A | N/A | N/A | N/A |
| 2025 | $243,770 | $134,460 | $0 | $378,230 | $378,230 |
| 2024 | $195,020 | $134,460 | $0 | $329,480 | $329,480 |
| 2023 | $195,020 | $134,460 | $0 | $329,480 | $329,480 |
| 2022 | $177,290 | $134,460 | $0 | $311,750 | $311,750 |
| 2021 | $191,300 | $81,500 | $0 | $272,800 | $272,800 |
| 2020 | $159,420 | $81,500 | $0 | $240,920 | $240,920 |
| 2019 | $159,420 | $81,500 | $0 | $240,920 | $240,920 |
| 2018 | $144,920 | $81,500 | $0 | $226,420 | $226,420 |
| 2017 | $138,020 | $81,500 | $0 | $219,520 | $219,520 |
| 2016 | $81,190 | $81,500 | $0 | $162,690 | $162,690 |
| 2015 | $79,100 | $81,500 | $0 | $160,600 | $160,600 |
| 2014 | $79,100 | $81,500 | $0 | $160,600 | $160,600 |
| 2013 | $79,100 | $81,500 | $0 | $160,600 | $160,600 |
| 2012 | $79,100 | $81,500 | $0 | $0 | $0 |
| 2011 | $107,400 | $81,500 | $0 | $0 | $0 |
| 2010 | $92,700 | $81,500 | $0 | $0 | $0 |
| 2009 | $145,300 | $48,200 | $0 | $0 | $0 |
| 2008 | $149,500 | $48,200 | $0 | $0 | $0 |
| 2007 | $149,500 | $48,200 | $0 | $0 | $0 |
Deed and Sales History
| 1 | 02/14/2022 | QCD | QUIT CLAIM DEED | WEBER LLOYD & INEZ | WEBER INEZ | | | $0.00 | 143385 | 2022-01342 |
| 2 | 07/19/2006 | WARRANTY D | WARRANTY DEED | WEBER, GARY B (ESTATE OF) | WEBER, LLOYD & INEZ | | | $215,000.00 | 110751 | 2006-08455 |
| 3 | 02/25/2000 | WARRANTY D | WARRANTY DEED | | | | | $129,900.00 | 94588 | 2950-001853 |
Payout Agreement
| No payout information available.. |