Property
Account |
| Property ID: | 27965 | Abbreviated Legal Description: | BUTLERS LOTS 2 & 3; PLUS NLY TRACT BLK 5 |
| Parcel Number: | 360719520520 | Agent Code: | |
| Type: | Real | | |
| Tax Area: | 1 - OL-140-F | Land Use Code | 66 |
| Open Space: | N | DFL | N |
| Historic Property: | N | Remodel Property: | N |
| Multi-Family Redevelopment: | N | | |
| Township: | 7 | Section: | 19 |
| Range: | 36 |
Location |
| Address: | 1108 1/2 N 9TH AVE WALLA WALLA, WA 99362 | Mapsco: | |
| Neighborhood: | COMMERCIAL | Map ID: | |
| Neighborhood CD: | 3319 |
Owner |
| Name: | ALEXANDER JANICE J TRUST | Owner ID: | 61438 |
| Mailing Address: | 100 ANGELO PL WALLA WALLA, WA 99362 | % Ownership: | 100.0000000000% |
| | | Exemptions: | |
Taxes and Assessment Details
Property Tax Information as of
04/17/2026
Click on "Statement Details" to expand or collapse a tax statement.
* Please enter a valid date ** Please enter a valid date *
Statement Details |
| 2024 | 20987 | EMS - EMS | $25.01 | $25.01 | $0.00 | $0.00 | $50.02 | $0.00 |
| 2024 | 20987 | PORT - PORT | $16.23 | $16.22 | $0.00 | $0.00 | $32.45 | $0.00 |
| 2024 | 20987 | ST SCH - STATE | $153.60 | $153.59 | $0.00 | $0.00 | $307.19 | $0.00 |
| 2024 | 20987 | WW - CITY OF WALLA WALLA | $124.39 | $124.38 | $0.00 | $0.00 | $248.77 | $0.00 |
| 2024 | 20987 | SD 140 - SCHOOL DIST 140 | $191.19 | $191.18 | $0.00 | $0.00 | $382.37 | $0.00 |
| 2024 | 20987 | COUNTY - COUNTY | $69.79 | $69.78 | $0.00 | $0.00 | $139.57 | $0.00 |
| 2024 | 20987 | MILLCRKFLD - MILL CREEK FLOOD | $3.93 | $3.92 | $0.00 | $0.00 | $7.85 | $0.00 |
| 2024 | 20987 | TOTAL: | $584.14 | $584.08 | $0.00 | $0.00 | $1168.22 | $0.00 |
|
| 2024 | 20987 | $584.14 | $584.08 | $0.00 | $0.00 | $1168.22 | $0.00 |
Statement Details |
| 2023 | 21051 | EMS - EMS | $26.67 | $26.66 | $0.00 | $0.00 | $53.33 | $0.00 |
| 2023 | 21051 | PORT - PORT | $17.30 | $17.30 | $0.00 | $0.00 | $34.60 | $0.00 |
| 2023 | 21051 | ST SCH - STATE | $164.11 | $164.10 | $0.00 | $0.00 | $328.21 | $0.00 |
| 2023 | 21051 | WW - CITY OF WALLA WALLA | $136.46 | $136.45 | $0.00 | $0.00 | $272.91 | $0.00 |
| 2023 | 21051 | SD 140 - SCHOOL DIST 140 | $206.01 | $206.00 | $0.00 | $0.00 | $412.01 | $0.00 |
| 2023 | 21051 | COUNTY - COUNTY | $73.69 | $73.69 | $0.00 | $0.00 | $147.38 | $0.00 |
| 2023 | 21051 | MILLCRKFLD - MILL CREEK FLOOD | $4.26 | $4.25 | $0.00 | $0.00 | $8.51 | $0.00 |
| 2023 | 21051 | TOTAL: | $628.50 | $628.45 | $0.00 | $0.00 | $1256.95 | $0.00 |
|
| 2023 | 21051 | $628.50 | $628.45 | $0.00 | $0.00 | $1256.95 | $0.00 |
Statement Details |
| 2022 | 21134 | EMS - EMS | $26.68 | $26.68 | $0.00 | $0.00 | $53.36 | $0.00 |
| 2022 | 21134 | PORT - PORT | $17.48 | $17.48 | $0.00 | $0.00 | $34.96 | $0.00 |
| 2022 | 21134 | ST SCH - STATE | $169.00 | $168.99 | $0.00 | $0.00 | $337.99 | $0.00 |
| 2022 | 21134 | WW - CITY OF WALLA WALLA | $144.12 | $144.10 | $0.00 | $0.00 | $288.22 | $0.00 |
| 2022 | 21134 | SD 140 - SCHOOL DIST 140 | $210.66 | $210.63 | $0.00 | $0.00 | $421.29 | $0.00 |
| 2022 | 21134 | COUNTY - COUNTY | $74.45 | $74.44 | $0.00 | $0.00 | $148.89 | $0.00 |
| 2022 | 21134 | MILLCRKFLD - MILL CREEK FLOOD | $4.50 | $4.50 | $0.00 | $0.00 | $9.00 | $0.00 |
| 2022 | 21134 | TOTAL: | $646.89 | $646.82 | $0.00 | $0.00 | $1293.71 | $0.00 |
|
| 2022 | 21134 | $646.89 | $646.82 | $0.00 | $0.00 | $1293.71 | $0.00 |
Statement Details |
| 2021 | 21225 | EMS - EMS | $29.85 | $29.85 | $0.00 | $0.00 | $59.70 | $0.00 |
| 2021 | 21225 | PORT - PORT | $19.75 | $19.75 | $0.00 | $0.00 | $39.50 | $0.00 |
| 2021 | 21225 | ST SCH - STATE | $186.07 | $186.06 | $0.00 | $0.00 | $372.13 | $0.00 |
| 2021 | 21225 | WW - CITY OF WALLA WALLA | $170.93 | $170.93 | $0.00 | $0.00 | $341.86 | $0.00 |
| 2021 | 21225 | SD 140 - SCHOOL DIST 140 | $218.54 | $218.53 | $0.00 | $0.00 | $437.07 | $0.00 |
| 2021 | 21225 | COUNTY - COUNTY | $83.34 | $83.33 | $0.00 | $0.00 | $166.67 | $0.00 |
| 2021 | 21225 | MILLCRKFLD - MILL CREEK FLOOD | $5.15 | $5.14 | $0.00 | $0.00 | $10.29 | $0.00 |
| 2021 | 21225 | TOTAL: | $713.63 | $713.59 | $0.00 | $0.00 | $1427.22 | $0.00 |
|
| 2021 | 21225 | $713.63 | $713.59 | $0.00 | $0.00 | $1427.22 | $0.00 |
Values
| (+) Improvement Homesite Value: | + | $0 | |
| (+) Improvement Non-Homesite Value: | + | $103,200 | |
| (+) Land Homesite Value: | + | $0 | |
| (+) Land Non-Homesite Value: | + | $28,700 | |
| (+) Curr Use (HS): | + | $0 | $0 |
| (+) Curr Use (NHS): | + | $0 | $0 |
| | | -------------------------- | |
| (=) Market Value: | = | $131,900 | |
| (–) Productivity Loss: | – | $0 | |
| | | -------------------------- | |
| (=) Subtotal: | = | $131,900 | |
| (+) Senior Appraised Value: | + | $0 | |
| (+) Non-Senior Appraised Value: | + | $131,900 | |
| | | -------------------------- | |
| (=) Total Appraised Value: | = | $131,900 | |
| (–) Senior Exemption Loss: | – | $0 | |
| (–) Exemption Loss: | – | $0 | |
| | | -------------------------- | |
| (=) Taxable Value: | = | $131,900 | |
Taxing Jurisdiction
| Owner: | ALEXANDER JANICE J TRUST | | |
| % Ownership: | 100.0000000000% | | |
| Total Value: | $131,900 | | |
| Tax Area: | 1 - OL-140-F |
| CERFD | CURRENT EXPENSE REFUND 010 | 0.0000000000 | $131,900 | $131,900 | $0.00 | | |
| CURREXP | CURRENT EXPENSE 010 | 1.0175366760 | $131,900 | $131,900 | $134.21 | | |
| HUMNSERV | HUMAN SERVICES 119 | 0.0250000000 | $131,900 | $131,900 | $3.30 | | |
| SLDREL | SOLDIERS RELIEF 121 | 0.0155990005 | $131,900 | $131,900 | $2.06 | | |
| EMERGSER | EMS 147 | 0.3792580840 | $131,900 | $131,900 | $50.02 | | |
| EMSRFD | EMS REFUND 147 | 0.0000000000 | $131,900 | $131,900 | $0.00 | | |
| PORTRFD | PORT REFUND 640 | 0.0000000000 | $131,900 | $131,900 | $0.00 | | |
| PORTWWGEN | PORT OF WW 640 | 0.2460186015 | $131,900 | $131,900 | $32.45 | | |
| SD140BOND | SD #140 BOND 764 | 0.8342371393 | $131,900 | $131,900 | $110.04 | | |
| SD140GEN | SD #140 GENERAL 760 | 2.0646500647 | $131,900 | $131,900 | $272.33 | | |
| ST2 | STATE SCHOOL PART 2 600 | 0.8131451643 | $131,900 | $131,900 | $107.25 | | |
| STATESCHL | STATE SCHOOL 600 | 1.5158548041 | $131,900 | $131,900 | $199.94 | | |
| STREFUND | STATE REFUND LEVY 603 | 0.0000000000 | $131,900 | $131,900 | $0.00 | | |
| CWWBOND | C OF WW BOND 643 | 0.2760494372 | $131,900 | $131,900 | $36.41 | | |
| CWWGEN | CITY OF WW 631 | 1.6100204973 | $131,900 | $131,900 | $212.36 | | |
| CWWRFD | CITY OF WALLA WALLA REFUND 631 | 0.0000000000 | $131,900 | $131,900 | $0.00 | | |
| | Total Tax Rate: | 8.7973694689 | | | | | |
| | | | | Taxes w/Current Exemptions: | $1,160.37 | | |
| | | | | Taxes w/o Exemptions: | $1,160.37 | | |
Improvement / Building
| Improvement #1: | COMMERCIAL | State Code: | 66 | 5728.0 sqft | Value: | $103,200 |
| | Type | Description | Class CD | Sub Class CD | Year Built | Area |
| | MA | Main Area | D | * | 1982 | 5728.0 |
| | SI1 | SITE IMPROVEMENT | D | * | 1982 | 1.0 |
Sketch
Property Image
Land
| 1 | COM 1 | Converted: Commercial | 0.2473 | 10772.39 | 0.00 | 0.00 | 1.00 | $28,700 | $0 |
Roll Value History
| 2023 | $103,200 | $28,700 | $0 | $131,900 | $131,900 |
| 2022 | $103,200 | $28,700 | $0 | $131,900 | $131,900 |
| 2021 | $103,200 | $16,200 | $0 | $119,400 | $119,400 |
| 2020 | $103,200 | $16,200 | $0 | $119,400 | $119,400 |
| 2019 | $103,200 | $16,200 | $0 | $119,400 | $119,400 |
| 2018 | $103,200 | $16,200 | $0 | $119,400 | $119,400 |
| 2017 | $103,200 | $16,200 | $0 | $119,400 | $119,400 |
| 2016 | $103,200 | $16,200 | $0 | $119,400 | $119,400 |
| 2015 | $103,200 | $14,400 | $0 | $117,600 | $117,600 |
| 2014 | $103,200 | $14,400 | $0 | $117,600 | $117,600 |
| 2013 | $103,200 | $14,400 | $0 | $117,600 | $117,600 |
| 2012 | $103,200 | $14,400 | $0 | $0 | $0 |
| 2011 | $103,200 | $14,400 | $0 | $0 | $0 |
| 2010 | $90,900 | $19,300 | $0 | $0 | $0 |
| 2009 | $94,100 | $16,100 | $0 | $0 | $0 |
| 2008 | $58,800 | $16,100 | $0 | $0 | $0 |
| 2007 | $58,800 | $16,100 | $0 | $0 | $0 |
Deed and Sales History
| 1 | 06/23/2025 | WARRANTY D | WARRANTY DEED | ALEXANDER JANICE J TRUST | BORAM JOSHUA PAUL & RACHEL NICHOLE | | | | 147979 | 2025-03527 |
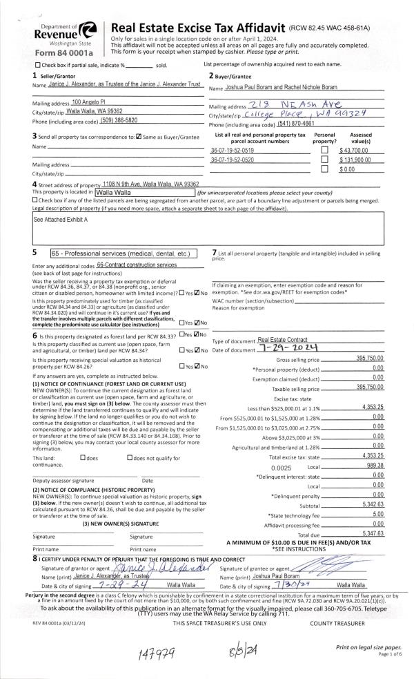
| 2 | 08/05/2024 | REAL ESTAT | REAL ESTATE CONTRACT | ALEXANDER JANICE J TRUST | BORAM JOSHUA PAUL & RACHEL NICHOLE | | | $395,750.00 | 147979 | 2024-04261 |
| 3 | 07/31/2017 | DPR | DEED OF PERSONAL REPRESENTATIVE | ALEXANDER JOE E & JANICE | ALEXANDER JANICE J TRUST | | | $0.00 | 132899 | 2017-05893 |
Payout Agreement
| No payout information available.. |