Property
Account |
| Property ID: | 27956 | Abbreviated Legal Description: | 22-7-36 PARCEL A-2 OF SHORT PLAT (PTN OF TAX 46J WITHIN NE1/4NW1/4) |
| Parcel Number: | 360722210033 | Agent Code: | |
| Type: | Real | | |
| Tax Area: | 1 - OL-140-F | Land Use Code | 29 |
| Open Space: | N | DFL | N |
| Historic Property: | N | Remodel Property: | N |
| Multi-Family Redevelopment: | N | | |
| Township: | 7 | Section: | 22 |
| Range: | 36 |
Location |
| Address: | 2297 ISAACS AVE WA 99362 | Mapsco: | |
| Neighborhood: | Walla Walla Commercial 5 | Map ID: | |
| Neighborhood CD: | 4306 |
Owner |
| Name: | GUR K&G LLC | Owner ID: | 73255 |
| Mailing Address: | 2285 ISAACS AVE WALLA WALLA, WA 99362 | % Ownership: | 100.0000000000% |
| | | Exemptions: | |
Taxes and Assessment Details
Property Tax Information as of
02/21/2026
Click on "Statement Details" to expand or collapse a tax statement.
* Please enter a valid date ** Please enter a valid date *
Statement Details |
| | TOTAL: | $0.00 | $0.00 | $0.00 | $0.00 | $0.00 | $0.00 |
|
| | $0.00 | $0.00 | $0.00 | $0.00 | $0.00 | $0.00 |
Values
| (+) Improvement Homesite Value: | + | $0 | |
| (+) Improvement Non-Homesite Value: | + | $79,600 | |
| (+) Land Homesite Value: | + | $0 | |
| (+) Land Non-Homesite Value: | + | $61,800 | |
| (+) Curr Use (HS): | + | $0 | $0 |
| (+) Curr Use (NHS): | + | $0 | $0 |
| | | -------------------------- | |
| (=) Market Value: | = | $141,400 | |
| (–) Productivity Loss: | – | $0 | |
| | | -------------------------- | |
| (=) Subtotal: | = | $141,400 | |
| (+) Senior Appraised Value: | + | $0 | |
| (+) Non-Senior Appraised Value: | + | $141,400 | |
| | | -------------------------- | |
| (=) Total Appraised Value: | = | $141,400 | |
| (–) Senior Exemption Loss: | – | $0 | |
| (–) Exemption Loss: | – | $0 | |
| | | -------------------------- | |
| (=) Taxable Value: | = | $141,400 | |
Taxing Jurisdiction
| Owner: | GUR K&G LLC | | |
| % Ownership: | 100.0000000000% | | |
| Total Value: | $141,400 | | |
| Tax Area: | 1 - OL-140-F |
| CERFD | CURRENT EXPENSE REFUND 010 | 0.0000000000 | $141,400 | $141,400 | $0.00 | | |
| CURREXP | CURRENT EXPENSE 010 | 1.0175366760 | $141,400 | $141,400 | $143.88 | | |
| HUMNSERV | HUMAN SERVICES 119 | 0.0250000000 | $141,400 | $141,400 | $3.54 | | |
| SLDREL | SOLDIERS RELIEF 121 | 0.0155990005 | $141,400 | $141,400 | $2.21 | | |
| EMERGSER | EMS 147 | 0.3792580840 | $141,400 | $141,400 | $53.63 | | |
| EMSRFD | EMS REFUND 147 | 0.0000000000 | $141,400 | $141,400 | $0.00 | | |
| PORTRFD | PORT REFUND 640 | 0.0000000000 | $141,400 | $141,400 | $0.00 | | |
| PORTWWGEN | PORT OF WW 640 | 0.2460186015 | $141,400 | $141,400 | $34.79 | | |
| SD140BOND | SD #140 BOND 764 | 0.8342371393 | $141,400 | $141,400 | $117.96 | | |
| SD140GEN | SD #140 GENERAL 760 | 2.0646500647 | $141,400 | $141,400 | $291.94 | | |
| ST2 | STATE SCHOOL PART 2 600 | 0.8131451643 | $141,400 | $141,400 | $114.98 | | |
| STATESCHL | STATE SCHOOL 600 | 1.5158548041 | $141,400 | $141,400 | $214.34 | | |
| STREFUND | STATE REFUND LEVY 603 | 0.0000000000 | $141,400 | $141,400 | $0.00 | | |
| CWWBOND | C OF WW BOND 643 | 0.2760494372 | $141,400 | $141,400 | $39.03 | | |
| CWWGEN | CITY OF WW 631 | 1.6100204973 | $141,400 | $141,400 | $227.66 | | |
| CWWRFD | CITY OF WALLA WALLA REFUND 631 | 0.0000000000 | $141,400 | $141,400 | $0.00 | | |
| | Total Tax Rate: | 8.7973694689 | | | | | |
| | | | | Taxes w/Current Exemptions: | $1,243.96 | | |
| | | | | Taxes w/o Exemptions: | $1,243.96 | | |
Improvement / Building
| Improvement #1: | COMMERCIAL | State Code: | 29 | 101.0 sqft | Value: | $79,600 |
Sketch
| No sketches available for this property. |
Property Image
Land
| 1 | COM 1 | Converted: Commercial | 0.2700 | 11761.20 | 0.00 | 0.00 | 1.00 | $61,800 | $0 |
Roll Value History
| 2026 | N/A | N/A | N/A | N/A | N/A |
| 2025 | $91,100 | $70,600 | $0 | $161,700 | $161,700 |
| 2024 | $88,000 | $70,600 | $0 | $158,600 | $158,600 |
| 2023 | $79,600 | $61,800 | $0 | $141,400 | $141,400 |
| 2022 | $25,500 | $47,050 | $0 | $72,550 | $72,550 |
| 2021 | $25,500 | $47,050 | $0 | $72,550 | $72,550 |
| 2020 | $25,500 | $47,050 | $0 | $72,550 | $72,550 |
| 2019 | $25,500 | $47,050 | $0 | $72,550 | $72,550 |
| 2018 | $25,500 | $47,050 | $0 | $72,550 | $72,550 |
| 2017 | $25,500 | $47,050 | $0 | $72,550 | $72,550 |
| 2016 | $25,500 | $35,500 | $0 | $61,000 | $61,000 |
| 2015 | $25,500 | $35,500 | $0 | $61,000 | $61,000 |
| 2014 | $25,500 | $35,500 | $0 | $61,000 | $61,000 |
| 2013 | $25,500 | $35,500 | $0 | $61,000 | $61,000 |
| 2012 | $25,500 | $35,500 | $0 | $0 | $0 |
| 2011 | $22,500 | $35,500 | $0 | $0 | $0 |
| 2010 | $22,000 | $36,000 | $0 | $0 | $0 |
Deed and Sales History
| 1 | 03/01/2023 | SWD | STATUTORY WARRANTY DEED | PFI MART LLC | GUR K&G LLC | | 2-PARCELS | $825,000.00 | 145453 | 2023-01032 |
|   | |
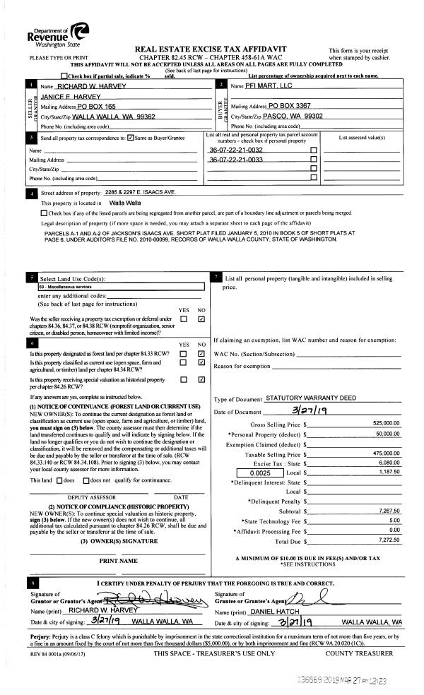
| 2 | 03/27/2019 | SWD | STATUTORY WARRANTY DEED | HARVEY RICHARD W & JANICE | PFI MART LLC | | 2-PARCELS | $475,000.00 | 136569 | 2019-01920 |
|   | |
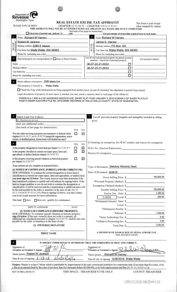
| 3 | 06/28/2018 | SWD | STATUTORY WARRANTY DEED | HARVEY RICHARD W | HARVEY RICHARD W & JANICE | | 2-PARCELS | $100,000.00 | 135015 | 2018-05197 |
|   | |
| 4 | 06/05/2018 | SWD | STATUTORY WARRANTY DEED | C I F F A WASHINGTON GENERAL PRTNSHP | HARVEY RICHARD W | | | $0.00 | 134861 | 2018-04531 |
Payout Agreement
| No payout information available.. |