Property
Account |
| Property ID: | 27947 | Abbreviated Legal Description: | ABADIES NLY PTN TAX 2 & PTN NLY OF TAX 3 PLUS ELY STRIP BLOCK 3(PARCEL 2 OF SURVEY) LESS PTN TO CITY OF WW |
| Parcel Number: | 360730500307 | Agent Code: | |
| Type: | Real | | |
| Tax Area: | 1 - OL-140-F | Land Use Code | 11 |
| Open Space: | N | DFL | N |
| Historic Property: | N | Remodel Property: | N |
| Multi-Family Redevelopment: | N | | |
| Township: | 7 | Section: | 30 |
| Range: | 36 |
Location |
| Address: | 328 WOODLAND AVE WA 99362 | Mapsco: | |
| Neighborhood: | A-SFR | Map ID: | |
| Neighborhood CD: | 313011 |
Owner |
| Name: | HAMADA FAMILY TRUST | Owner ID: | 63491 |
| Mailing Address: | 36017 SE KENDALL PEAK ST SNOQUALMIE, WA 98065 | % Ownership: | 100.0000000000% |
| | | Exemptions: | |
Taxes and Assessment Details
Values
| (+) Improvement Homesite Value: | + | $0 | |
| (+) Improvement Non-Homesite Value: | + | $179,400 | |
| (+) Land Homesite Value: | + | $0 | |
| (+) Land Non-Homesite Value: | + | $108,060 | |
| (+) Curr Use (HS): | + | $0 | $0 |
| (+) Curr Use (NHS): | + | $0 | $0 |
| | | -------------------------- | |
| (=) Market Value: | = | $287,460 | |
| (–) Productivity Loss: | – | $0 | |
| | | -------------------------- | |
| (=) Subtotal: | = | $287,460 | |
| (+) Senior Appraised Value: | + | $0 | |
| (+) Non-Senior Appraised Value: | + | $287,460 | |
| | | -------------------------- | |
| (=) Total Appraised Value: | = | $287,460 | |
| (–) Senior Exemption Loss: | – | $0 | |
| (–) Exemption Loss: | – | $0 | |
| | | -------------------------- | |
| (=) Taxable Value: | = | $287,460 | |
Taxing Jurisdiction
| Owner: | HAMADA FAMILY TRUST | | |
| % Ownership: | 100.0000000000% | | |
| Total Value: | $287,460 | | |
| Tax Area: | 1 - OL-140-F |
| CERFD | CURRENT EXPENSE REFUND 010 | 0.0000000000 | $287,460 | $287,460 | $0.00 | | |
| CURREXP | CURRENT EXPENSE 010 | 1.0175366760 | $287,460 | $287,460 | $292.50 | | |
| HUMNSERV | HUMAN SERVICES 119 | 0.0250000000 | $287,460 | $287,460 | $7.19 | | |
| SLDREL | SOLDIERS RELIEF 121 | 0.0155990005 | $287,460 | $287,460 | $4.48 | | |
| EMERGSER | EMS 147 | 0.3792580840 | $287,460 | $287,460 | $109.02 | | |
| EMSRFD | EMS REFUND 147 | 0.0000000000 | $287,460 | $287,460 | $0.00 | | |
| PORTRFD | PORT REFUND 640 | 0.0000000000 | $287,460 | $287,460 | $0.00 | | |
| PORTWWGEN | PORT OF WW 640 | 0.2460186015 | $287,460 | $287,460 | $70.72 | | |
| SD140BOND | SD #140 BOND 764 | 0.8342371393 | $287,460 | $287,460 | $239.81 | | |
| SD140GEN | SD #140 GENERAL 760 | 2.0646500647 | $287,460 | $287,460 | $593.50 | | |
| ST2 | STATE SCHOOL PART 2 600 | 0.8131451643 | $287,460 | $287,460 | $233.75 | | |
| STATESCHL | STATE SCHOOL 600 | 1.5158548041 | $287,460 | $287,460 | $435.75 | | |
| STREFUND | STATE REFUND LEVY 603 | 0.0000000000 | $287,460 | $287,460 | $0.00 | | |
| CWWBOND | C OF WW BOND 643 | 0.2760494372 | $287,460 | $287,460 | $79.35 | | |
| CWWGEN | CITY OF WW 631 | 1.6100204973 | $287,460 | $287,460 | $462.82 | | |
| CWWRFD | CITY OF WALLA WALLA REFUND 631 | 0.0000000000 | $287,460 | $287,460 | $0.00 | | |
| | Total Tax Rate: | 8.7973694689 | | | | | |
| | | | | Taxes w/Current Exemptions: | $2,528.89 | | |
| | | | | Taxes w/o Exemptions: | $2,528.89 | | |
Improvement / Building
| Improvement #1: | RESIDENTIAL | State Code: | 11 | 1438.0 sqft | Value: | $179,400 |
| Exterior Wall: | VINYL | Heating/Cooling: | BASEBOARD ELECTRIC | | Number of Bathrooms: | 1 | Number of Bedrooms: | 3 | | Plumbing: | 6 | Roof Covering: | COMP SHINGLE |
|
| | Type | Description | Class CD | Sub Class CD | Year Built | Area |
| | MA | Main Area | 1 | 30 | 1950 | 1438.0 |
| | CPC | COVERED CARPORT/PATIO | 1 | 30 | 1950 | 276.0 |
| | SI1 | SITE IMPROVEMENT | 1 | 30 | 1950 | 1.0 |
| | DTG | Detached Garage | 1 | 30 | 1950 | 440.0 |
| | RPS | PORCH W/STEPS,ROOF | 1 | 30 | 1950 | 30.0 |
| | RPS | PORCH W/STEPS,ROOF | 1 | 30 | 1950 | 20.0 |
| | SHOP | SHOP BUILDING | 1 | 30 | 1950 | 800.0 |
Sketch
Property Image
Land
| 1 | RES 1 | Converted: Residential | 0.7339 | 31970.00 | 0.00 | 0.00 | 1.00 | $108,060 | $0 |
Roll Value History
| 2026 | N/A | N/A | N/A | N/A | N/A |
| 2025 | $216,620 | $108,060 | $0 | $324,680 | $324,680 |
| 2024 | $188,370 | $108,060 | $0 | $296,430 | $296,430 |
| 2023 | $179,400 | $108,060 | $0 | $287,460 | $287,460 |
| 2022 | $163,090 | $108,060 | $0 | $271,150 | $271,150 |
| 2021 | $158,650 | $42,100 | $0 | $200,750 | $200,750 |
| 2020 | $117,520 | $42,100 | $0 | $159,620 | $159,620 |
| 2019 | $117,520 | $42,100 | $0 | $159,620 | $159,620 |
| 2018 | $117,520 | $42,100 | $0 | $159,620 | $159,620 |
| 2017 | $106,840 | $42,100 | $0 | $148,940 | $148,940 |
| 2016 | $101,750 | $42,100 | $0 | $143,850 | $143,850 |
| 2015 | $107,700 | $42,100 | $0 | $149,800 | $149,800 |
| 2014 | $107,700 | $42,100 | $0 | $149,800 | $149,800 |
| 2013 | $107,700 | $42,100 | $0 | $149,800 | $149,800 |
| 2012 | $107,700 | $42,100 | $0 | $0 | $0 |
| 2011 | $107,700 | $42,100 | $0 | $0 | $0 |
| 2010 | $68,000 | $42,200 | $0 | $0 | $0 |
| 2009 | $67,100 | $25,100 | $0 | $0 | $0 |
| 2008 | $67,100 | $20,900 | $0 | $0 | $0 |
| 2007 | $67,100 | $20,900 | $0 | $0 | $0 |
Deed and Sales History
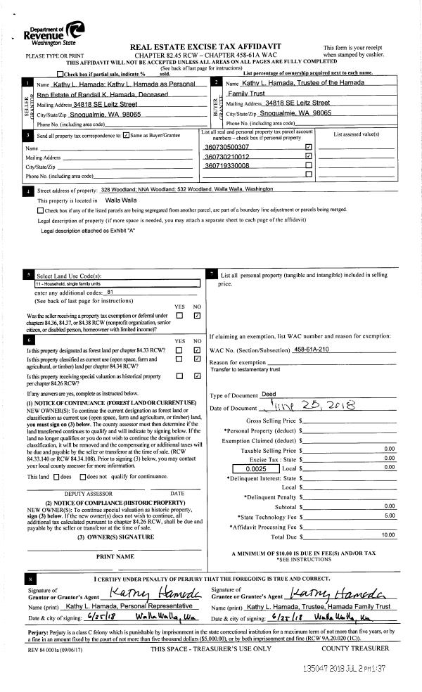
| 1 | 06/25/2018 | DEED | DEED | HAMADA RANDY | HAMADA FAMILY TRUST | | | $0.00 | 135047 | 2018-05311 |
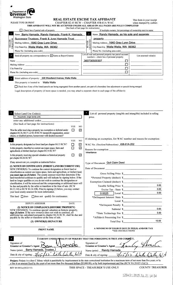
| 2 | 07/15/2015 | QCD | QUIT CLAIM DEED | HAMADA FRANK & JUNE TRUST | HAMADA RANDY | | | | 128448 | 2015-06285 |
| 3 | 07/15/2015 | QCD | QUIT CLAIM DEED | HAMADA FRANK & JUNE TRUST | HAMADA RANDY | | | $0.00 | 128431 | 2015-06211 |
| 4 | 12/17/2009 | WARRANTY D | WARRANTY DEED | HAMADA, FRANK & JUNE TRUST | CITY OF WALLA WALLA | | | | 117820 | 2009-12129 |
Payout Agreement
| No payout information available.. |