Property
Account |
| Property ID: | 27922 | Abbreviated Legal Description: | WILSON'S 2ND LOT 7 BLK 2 |
| Parcel Number: | 360716590207 | Agent Code: | |
| Type: | Real | | |
| Tax Area: | 5 - OL-140 | Land Use Code | 11 |
| Open Space: | N | DFL | N |
| Historic Property: | N | Remodel Property: | N |
| Multi-Family Redevelopment: | N | | |
| Township: | 7 | Section: | 16 |
| Range: | 36 |
Location |
| Address: | 1625 MELROSE ST WA 99362 | Mapsco: | |
| Neighborhood: | A-SFR | Map ID: | |
| Neighborhood CD: | 513011 |
Owner |
| Name: | LOPEZ MARISSA Q RUZICKA | Owner ID: | 64588 |
| Mailing Address: | 1625 MELROSE ST WALLA WALLA, WA 99362 | % Ownership: | 100.0000000000% |
| | | Exemptions: | |
Taxes and Assessment Details
Property Tax Information as of
02/21/2026
Click on "Statement Details" to expand or collapse a tax statement.
* Please enter a valid date ** Please enter a valid date *
Statement Details |
| | TOTAL: | $0.00 | $0.00 | $0.00 | $0.00 | $0.00 | $0.00 |
|
| | $0.00 | $0.00 | $0.00 | $0.00 | $0.00 | $0.00 |
Values
| (+) Improvement Homesite Value: | + | $0 | |
| (+) Improvement Non-Homesite Value: | + | $254,700 | |
| (+) Land Homesite Value: | + | $0 | |
| (+) Land Non-Homesite Value: | + | $46,560 | |
| (+) Curr Use (HS): | + | $0 | $0 |
| (+) Curr Use (NHS): | + | $0 | $0 |
| | | -------------------------- | |
| (=) Market Value: | = | $301,260 | |
| (–) Productivity Loss: | – | $0 | |
| | | -------------------------- | |
| (=) Subtotal: | = | $301,260 | |
| (+) Senior Appraised Value: | + | $0 | |
| (+) Non-Senior Appraised Value: | + | $301,260 | |
| | | -------------------------- | |
| (=) Total Appraised Value: | = | $301,260 | |
| (–) Senior Exemption Loss: | – | $0 | |
| (–) Exemption Loss: | – | $0 | |
| | | -------------------------- | |
| (=) Taxable Value: | = | $301,260 | |
Taxing Jurisdiction
| Owner: | LOPEZ MARISSA Q RUZICKA | | |
| % Ownership: | 100.0000000000% | | |
| Total Value: | $301,260 | | |
| Tax Area: | 5 - OL-140 |
| CERFD | CURRENT EXPENSE REFUND 010 | 0.0000000000 | $301,260 | $301,260 | $0.00 | | |
| CURREXP | CURRENT EXPENSE 010 | 1.0175366760 | $301,260 | $301,260 | $306.54 | | |
| HUMNSERV | HUMAN SERVICES 119 | 0.0250000000 | $301,260 | $301,260 | $7.53 | | |
| SLDREL | SOLDIERS RELIEF 121 | 0.0155990005 | $301,260 | $301,260 | $4.70 | | |
| EMERGSER | EMS 147 | 0.3792580840 | $301,260 | $301,260 | $114.26 | | |
| EMSRFD | EMS REFUND 147 | 0.0000000000 | $301,260 | $301,260 | $0.00 | | |
| PORTRFD | PORT REFUND 640 | 0.0000000000 | $301,260 | $301,260 | $0.00 | | |
| PORTWWGEN | PORT OF WW 640 | 0.2460186015 | $301,260 | $301,260 | $74.12 | | |
| SD140BOND | SD #140 BOND 764 | 0.8342371393 | $301,260 | $301,260 | $251.32 | | |
| SD140GEN | SD #140 GENERAL 760 | 2.0646500647 | $301,260 | $301,260 | $622.00 | | |
| ST2 | STATE SCHOOL PART 2 600 | 0.8131451643 | $301,260 | $301,260 | $244.97 | | |
| STATESCHL | STATE SCHOOL 600 | 1.5158548041 | $301,260 | $301,260 | $456.67 | | |
| STREFUND | STATE REFUND LEVY 603 | 0.0000000000 | $301,260 | $301,260 | $0.00 | | |
| CWWBOND | C OF WW BOND 643 | 0.2760494372 | $301,260 | $301,260 | $83.16 | | |
| CWWGEN | CITY OF WW 631 | 1.6100204973 | $301,260 | $301,260 | $485.03 | | |
| CWWRFD | CITY OF WALLA WALLA REFUND 631 | 0.0000000000 | $301,260 | $301,260 | $0.00 | | |
| | Total Tax Rate: | 8.7973694689 | | | | | |
| | | | | Taxes w/Current Exemptions: | $2,650.30 | | |
| | | | | Taxes w/o Exemptions: | $2,650.30 | | |
Improvement / Building
| Improvement #1: | RESIDENTIAL | State Code: | 11 | 858.0 sqft | Value: | $254,700 |
| Exterior Wall: | VINYL | Heating/Cooling: | WARM & COOLED AIR | | Number of Bathrooms: | 2 | Number of Bedrooms: | 2 | | Plumbing: | 9 | Roof Covering: | COMP SHINGLE |
|
| | Type | Description | Class CD | Sub Class CD | Year Built | Area |
| | MA | Main Area | 1 | 30 | 1946 | 858.0 |
| | CPC | COVERED CARPORT/PATIO | 1 | 30 | 0 | 200.0 |
| | CPC | COVERED CARPORT/PATIO | 1 | 30 | 0 | 500.0 |
| | PRC | PORCH W STEPS, ROOF,CEILED | 1 | 30 | 0 | 30.0 |
| | SI1 | SITE IMPROVEMENT | 1 | 30 | 0 | 1.5 |
| | BASE | BASEMENT | 1 | 30 | 1946 | 858.0 |
| | BPF | BASEMENT -PARTITIONED FINISH | 1 | 30 | 1946 | 429.0 |
| | DTG | Detached Garage | 1 | 30 | 1946 | 280.0 |
Sketch
Property Image
Land
| 1 | RES 1 | Converted: Residential | 0.1710 | 7450.00 | 0.00 | 0.00 | 1.00 | $46,560 | $0 |
Roll Value History
| 2026 | N/A | N/A | N/A | N/A | N/A |
| 2025 | $237,460 | $74,500 | $0 | $311,960 | $311,960 |
| 2024 | $237,460 | $74,500 | $0 | $311,960 | $311,960 |
| 2023 | $254,700 | $46,560 | $0 | $301,260 | $301,260 |
| 2022 | $221,480 | $46,560 | $0 | $268,040 | $268,040 |
| 2021 | $158,200 | $46,560 | $0 | $204,760 | $204,760 |
| 2020 | $113,000 | $46,560 | $0 | $159,560 | $159,560 |
| 2019 | $113,000 | $46,560 | $0 | $159,560 | $159,560 |
| 2018 | $113,000 | $46,560 | $0 | $159,560 | $159,560 |
| 2017 | $125,660 | $29,800 | $0 | $155,460 | $155,460 |
| 2016 | $119,680 | $29,800 | $0 | $149,480 | $149,480 |
| 2015 | $119,680 | $29,800 | $0 | $149,480 | $149,480 |
| 2014 | $108,800 | $29,800 | $0 | $138,600 | $138,600 |
| 2013 | $108,800 | $29,800 | $0 | $138,600 | $138,600 |
| 2012 | $114,200 | $29,800 | $0 | $0 | $0 |
| 2011 | $114,200 | $29,800 | $0 | $0 | $0 |
| 2010 | $107,300 | $29,800 | $0 | $0 | $0 |
| 2009 | $122,500 | $29,800 | $0 | $0 | $0 |
| 2008 | $79,000 | $29,800 | $0 | $0 | $0 |
| 2007 | $79,000 | $29,800 | $0 | $0 | $0 |
Deed and Sales History
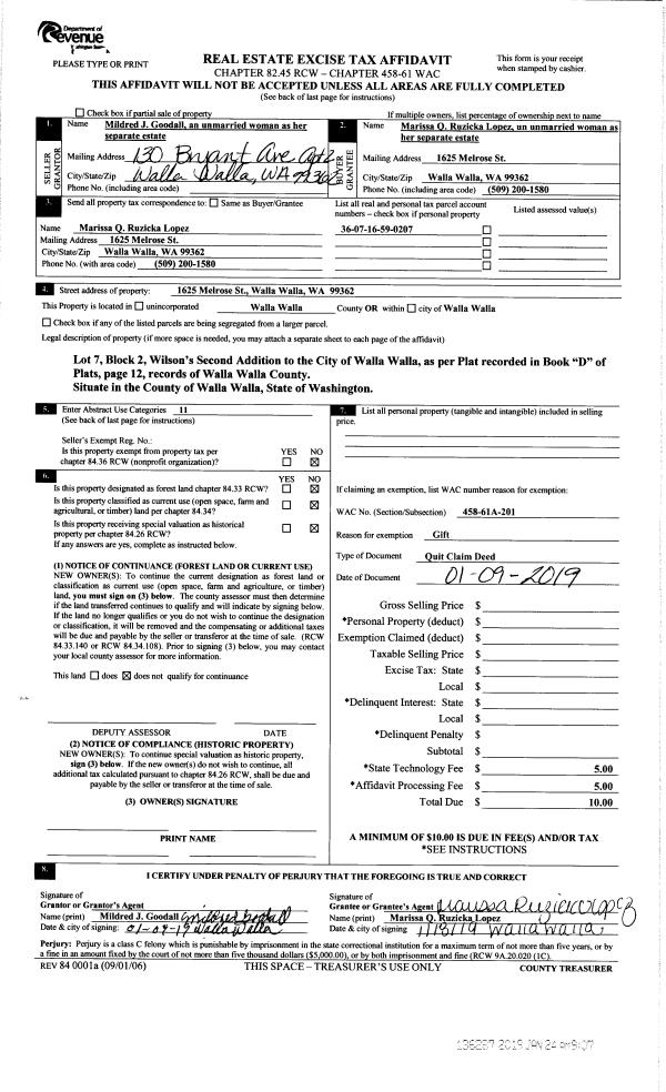
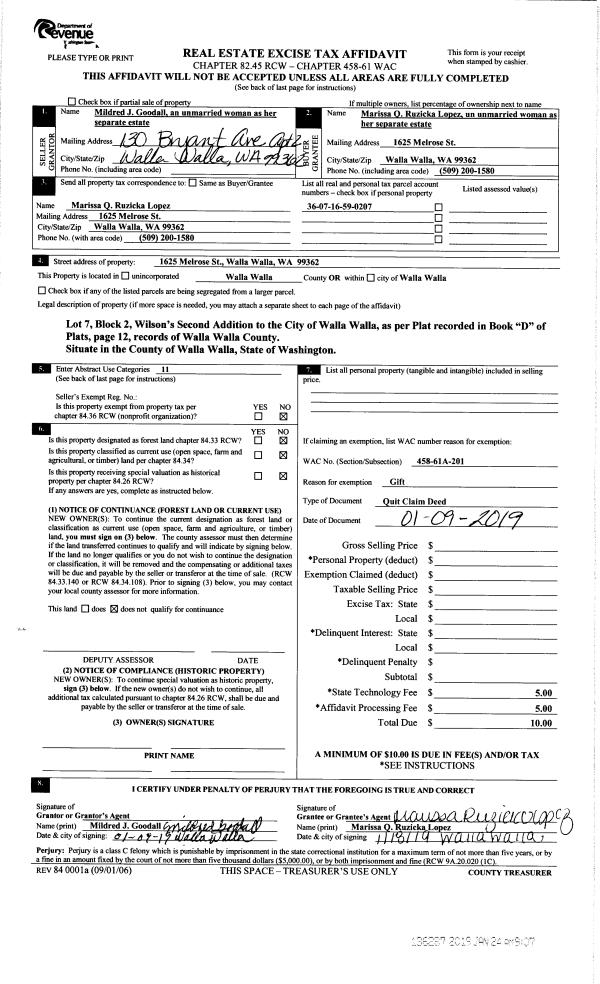
| 1 | 01/18/2019 | QCD | QUIT CLAIM DEED | RUZICKA-LOPEZ MARISSA Q | LOPEZ MARISSA Q RUZICKA | | | $0.00 | 136287 | 2019-00476 |
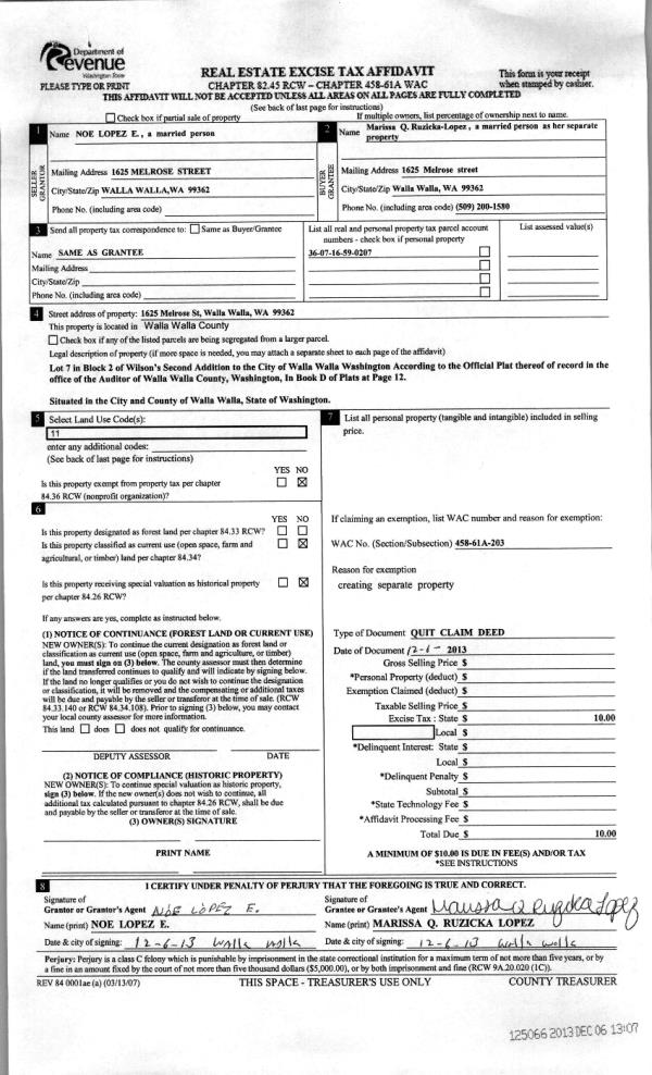
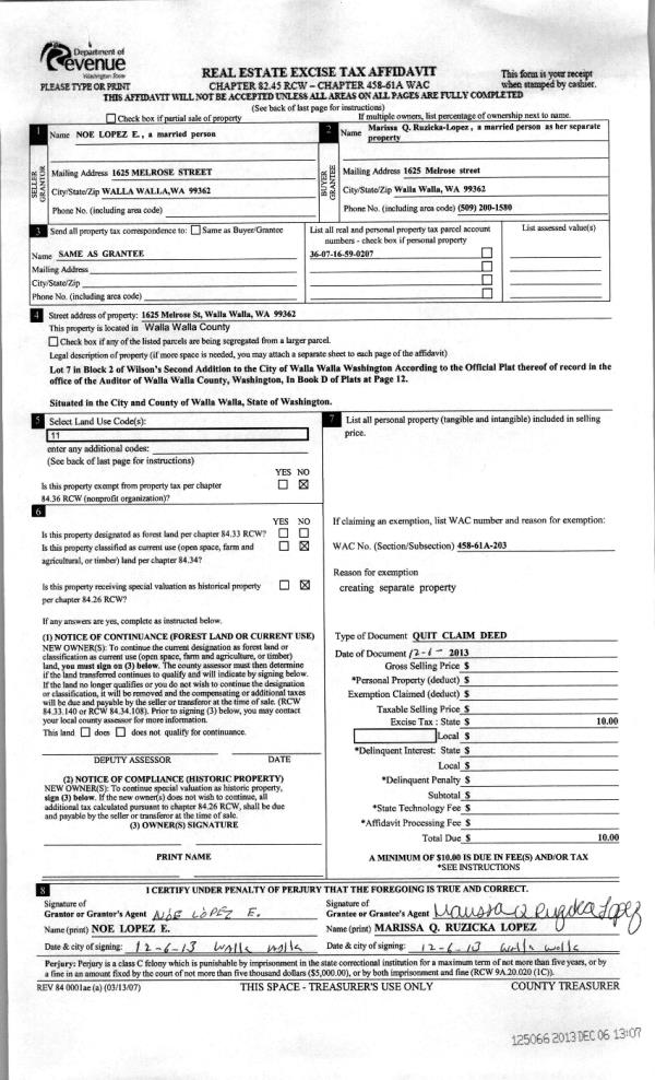
| 2 | 12/06/2013 | QCD | QUIT CLAIM DEED | RUZICKA-LOPEZ MARISSA Q | | | | | 125066 | 2013-11752 |
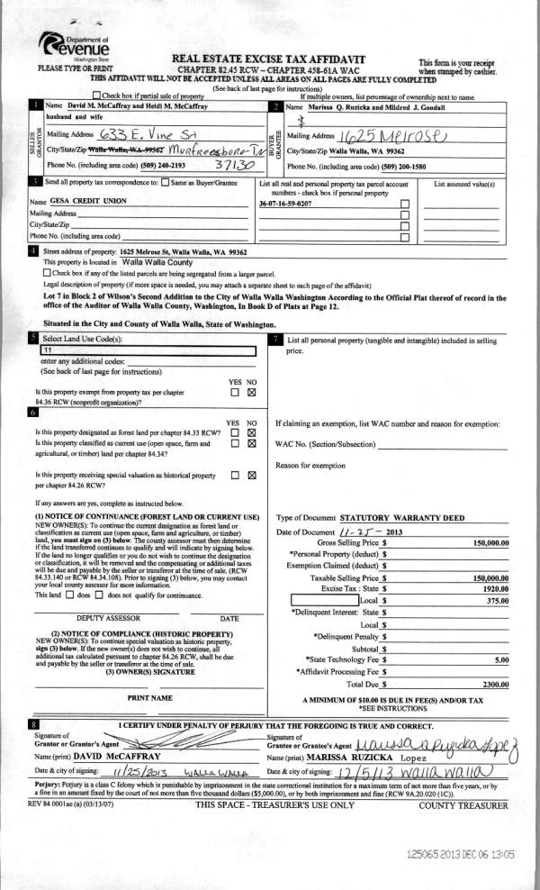
| 3 | 12/06/2013 | WARRANTY D | WARRANTY DEED | MC CAFFRAY DAVID & HEIDI M | RUZICKA-LOPEZ MARISSA Q | | | $150,000.00 | 125065 | 2013-11751 |
| 4 | 12/18/2009 | QCD | QUIT CLAIM DEED | MC CAFFRAY, HEIDI M | MC CAFFRAY, DAVID & HEIDI M | | | | 117830 | 2009-12143 |
| 5 | 10/10/2003 | WARRANTY D | WARRANTY DEED | DUNCAN, WILLIAM H III & MURIEL | MC CAFFRAY, HEIDI M | | | $90,000.00 | 103228 | 2003-15663 |
| 6 | 10/10/2003 | QCD | QUIT CLAIM DEED | MC CAFFRAY, DAVID MICHAEL | MC CAFFRAY, HEIDI M | | | | 103229 | 2003-15664 |
| 7 | 01/10/2002 | WARRANTY D | WARRANTY DEED | | | | | $70,000.00 | 98709 | 3260-200313 |
Payout Agreement
| No payout information available.. |