Property
Account |
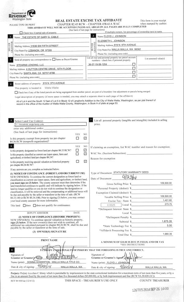
| Property ID: | 27921 | Abbreviated Legal Description: | LANGFORDS LOT 4 AND S 12' OF LOT 5 BLK 12 |
| Parcel Number: | 360719591204 | Agent Code: | |
| Type: | Real | | |
| Tax Area: | 1 - OL-140-F | Land Use Code | 11 |
| Open Space: | N | DFL | N |
| Historic Property: | N | Remodel Property: | N |
| Multi-Family Redevelopment: | N | | |
| Township: | 7 | Section: | 19 |
| Range: | 36 |
Location |
| Address: | 819 N 9TH AVE WA 99362 | Mapsco: | |
| Neighborhood: | A-SFR | Map ID: | |
| Neighborhood CD: | 313011 |
Owner |
| Name: | JOHNSON FLOYD J & ELIZABETH L | Owner ID: | 55562 |
| Mailing Address: | 819 N 9TH AVE WALLA WALLA, WA 99362 | % Ownership: | 100.0000000000% |
| | | Exemptions: | SNR/DSBL |
Taxes and Assessment Details
Property Tax Information as of
02/21/2026
Click on "Statement Details" to expand or collapse a tax statement.
* Please enter a valid date ** Please enter a valid date *
Statement Details |
| | TOTAL: | $0.00 | $0.00 | $0.00 | $0.00 | $0.00 | $0.00 |
|
| | $0.00 | $0.00 | $0.00 | $0.00 | $0.00 | $0.00 |
Values
| (+) Improvement Homesite Value: | + | $175,360 | |
| (+) Improvement Non-Homesite Value: | + | $0 | |
| (+) Land Homesite Value: | + | $62,480 | |
| (+) Land Non-Homesite Value: | + | $0 | |
| (+) Curr Use (HS): | + | $0 | $0 |
| (+) Curr Use (NHS): | + | $0 | $0 |
| | | -------------------------- | |
| (=) Market Value: | = | $237,840 | |
| (–) Productivity Loss: | – | $0 | |
| | | -------------------------- | |
| (=) Subtotal: | = | $237,840 | |
| (+) Senior Appraised Value: | + | $105,610 | |
| (+) Non-Senior Appraised Value: | + | $0 | |
| | | -------------------------- | |
| (=) Total Appraised Value: | = | $105,610 | |
| (–) Senior Exemption Loss: | – | $63,366 | |
| (–) Exemption Loss: | – | $0 | |
| | | -------------------------- | |
| (=) Taxable Value: | = | $42,244 | |
Taxing Jurisdiction
| Owner: | JOHNSON FLOYD J & ELIZABETH L | | |
| % Ownership: | 100.0000000000% | | |
| Total Value: | $237,840 | | |
| Tax Area: | 1 - OL-140-F |
| CERFD | CURRENT EXPENSE REFUND 010 | 0.0000000000 | $237,840 | $42,244 | $0.00 | | |
| CURREXP | CURRENT EXPENSE 010 | 1.0175366760 | $237,840 | $42,244 | $42.98 | | |
| HUMNSERV | HUMAN SERVICES 119 | 0.0250000000 | $237,840 | $42,244 | $1.06 | | |
| SLDREL | SOLDIERS RELIEF 121 | 0.0155990005 | $237,840 | $42,244 | $0.66 | | |
| EMERGSER | EMS 147 | 0.3792580840 | $237,840 | $42,244 | $16.02 | | |
| EMSRFD | EMS REFUND 147 | 0.0000000000 | $237,840 | $42,244 | $0.00 | | |
| PORTRFD | PORT REFUND 640 | 0.0000000000 | $237,840 | $42,244 | $0.00 | | |
| PORTWWGEN | PORT OF WW 640 | 0.2460186015 | $237,840 | $42,244 | $10.39 | | |
| SD140BOND | SD #140 BOND 764 | 0.0000000000 | $237,840 | $0 | $0.00 | | |
| SD140GEN | SD #140 GENERAL 760 | 0.0000000000 | $237,840 | $0 | $0.00 | | |
| ST2 | STATE SCHOOL PART 2 600 | 0.0000000000 | $237,840 | $0 | $0.00 | | |
| STATESCHL | STATE SCHOOL 600 | 1.5158548041 | $237,840 | $42,244 | $64.04 | | |
| STREFUND | STATE REFUND LEVY 603 | 0.0000000000 | $237,840 | $42,244 | $0.00 | | |
| CWWBOND | C OF WW BOND 643 | 0.0000000000 | $237,840 | $0 | $0.00 | | |
| CWWGEN | CITY OF WW 631 | 1.6100204973 | $237,840 | $42,244 | $68.01 | | |
| CWWRFD | CITY OF WALLA WALLA REFUND 631 | 0.0000000000 | $237,840 | $42,244 | $0.00 | | |
| | Total Tax Rate: | 4.8092876634 | | | | | |
| | | | | Taxes w/Current Exemptions: | $203.16 | | |
| | | | | Taxes w/o Exemptions: | $2,092.37 | | |
Improvement / Building
| Improvement #1: | RESIDENTIAL | State Code: | 11 | 1078.0 sqft | Value: | $175,360 |
| Exterior Wall: | SIDING | Heating/Cooling: | WARM & COOLED AIR | | Number of Bathrooms: | 2 | Number of Bedrooms: | 2 | | Plumbing: | 7 | Roof Covering: | GALVANIZED METAL |
|
| | Type | Description | Class CD | Sub Class CD | Year Built | Area |
| | MA | Main Area | 1 | 30 | 1938 | 1078.0 |
| | BNV | BUILDING NO VALUE | 1 | 30 | 0 | 418.0 |
| | SI1 | SITE IMPROVEMENT | 1 | 30 | 0 | 1.0 |
| | BASE | BASEMENT | 1 | 30 | 1938 | 384.0 |
| | DTG | Detached Garage | 1 | 30 | 1938 | 220.0 |
| | S1F | Single One Story Fireplace | 1 | 30 | 1938 | 1.0 |
| | UTST | Utility Storage Shed | 1 | 30 | 1938 | 432.0 |
| | RPS | PORCH W/STEPS,ROOF | 1 | 30 | 1938 | 20.0 |
| | RPO | OPEN PORCH W/ROOF | 1 | 30 | 1938 | 144.0 |
Sketch
Property Image
Land
| 1 | RES 1 | Converted: Residential | 0.1795 | 7820.00 | 0.00 | 0.00 | 1.00 | $62,480 | $0 |
Roll Value History
| 2026 | N/A | N/A | N/A | N/A | N/A |
| 2025 | $210,430 | $62,480 | $0 | $272,910 | $42,244 |
| 2024 | $175,360 | $62,480 | $0 | $237,840 | $42,244 |
| 2023 | $175,360 | $62,480 | $0 | $237,840 | $42,244 |
| 2022 | $146,130 | $62,480 | $0 | $208,610 | $42,244 |
| 2021 | $168,670 | $25,700 | $0 | $194,370 | $42,244 |
| 2020 | $120,480 | $25,700 | $0 | $146,180 | $42,244 |
| 2019 | $120,480 | $25,700 | $0 | $146,180 | $42,244 |
| 2018 | $109,530 | $25,700 | $0 | $135,230 | $42,244 |
| 2017 | $84,250 | $25,700 | $0 | $109,950 | $42,244 |
| 2016 | $80,240 | $25,700 | $0 | $105,940 | $42,244 |
| 2015 | $79,910 | $25,700 | $0 | $105,610 | $42,244 |
| 2014 | $76,100 | $25,700 | $0 | $101,800 | $101,800 |
| 2013 | $76,100 | $25,700 | $0 | $101,800 | $40,720 |
| 2012 | $76,100 | $25,700 | $0 | $0 | $0 |
| 2011 | $76,100 | $25,700 | $0 | $0 | $0 |
| 2010 | $71,400 | $25,700 | $0 | $0 | $0 |
| 2009 | $89,300 | $12,900 | $0 | $0 | $0 |
| 2008 | $57,600 | $12,900 | $0 | $0 | $0 |
| 2007 | $57,600 | $12,900 | $0 | $0 | $0 |
Deed and Sales History
| 1 | 09/23/2017 | SWD | STATUTORY WARRANTY DEED | JOHNSON FLOYD J & ELIZABETH L | JOHNSON FLOYD J & ELIZABETH L | | | $0.00 | 133530 | 2017-08747 |
| 2 | 09/23/2014 | SWD | STATUTORY WARRANTY DEED | CABLE GARY G ESTATE OF | JOHNSON FLOYD J & ELIZABETH L | | | $109,500.00 | 126705 | 2014-07065 |
| 3 | 07/08/2011 | QCD | QUIT CLAIM DEED | CABLE, FLOSSIE B LIFE ESTATE | CABLE, GARY G | | | | 120381 | 2011-05255 |
| 4 | 12/21/2009 | QCD | QUIT CLAIM DEED | CABLE, FLOSSIE B | CABLE, FLOSSIE B LIFE ESTATE | | | | 117844 | 2009-12226 |
| 5 | 09/26/1986 | WARRANTY D | WARRANTY DEED | | | | | $37,500.00 | 0 | 1598-607544 |
Payout Agreement
| No payout information available.. |