Property
Account |
| Property ID: | 27913 | Abbreviated Legal Description: | 29-7-36 TAX 193 WITHIN SE1/4NE1/4 |
| Parcel Number: | 360729140055 | Agent Code: | |
| Type: | Real | | |
| Tax Area: | 1 - OL-140-F | Land Use Code | 11 |
| Open Space: | N | DFL | N |
| Historic Property: | N | Remodel Property: | N |
| Multi-Family Redevelopment: | N | | |
| Township: | 7 | Section: | 29 |
| Range: | 36 |
Location |
| Address: | 161 BRYANT AVE WA 99362 | Mapsco: | |
| Neighborhood: | G Res | Map ID: | |
| Neighborhood CD: | 614011 |
Owner |
| Name: | PRITCHER CAROL A | Owner ID: | 76920 |
| Mailing Address: | 161 BRYANT AVE WALLA WALLA, WA 99362 | % Ownership: | 100.0000000000% |
| | | Exemptions: | |
Taxes and Assessment Details
Property Tax Information as of
04/19/2026
Click on "Statement Details" to expand or collapse a tax statement.
* Please enter a valid date ** Please enter a valid date *
Statement Details |
| | TOTAL: | $0.00 | $0.00 | $0.00 | $0.00 | $0.00 | $0.00 |
|
| | $0.00 | $0.00 | $0.00 | $0.00 | $0.00 | $0.00 |
Values
| (+) Improvement Homesite Value: | + | N/A | |
| (+) Improvement Non-Homesite Value: | + | N/A | |
| (+) Land Homesite Value: | + | N/A | |
| (+) Land Non-Homesite Value: | + | N/A | Ag / Timber Use Value |
| (+) Curr Use (HS): | + | N/A | N/A |
| (+) Curr Use (NHS): | + | N/A | N/A |
| | | -------------------------- | |
| (=) Market Value: | = | N/A | |
| (–) Productivity Loss: | – | N/A | |
| | | -------------------------- | |
| (=) Subtotal: | = | N/A | |
| (+) Senior Appraised Value: | + | N/A | |
| (+) Non-Senior Appraised Value: | + | N/A | |
| | | -------------------------- | |
| (=) Total Appraised Value: | = | N/A | |
| (–) Senior Exemption Loss: | – | N/A | |
| (–) Exemption Loss: | – | N/A | |
| | | -------------------------- | |
| (=) Taxable Value: | = | N/A | |
Taxing Jurisdiction
| Owner: | PRITCHER CAROL A | | |
| % Ownership: | 100.0000000000% | | |
| Total Value: | N/A | | |
| Tax Area: | 1 - OL-140-F |
| CERFD | CURRENT EXPENSE REFUND 010 | N/A | N/A | N/A | N/A | | |
| CURREXP | CURRENT EXPENSE 010 | N/A | N/A | N/A | N/A | | |
| HUMNSERV | HUMAN SERVICES 119 | N/A | N/A | N/A | N/A | | |
| SLDREL | SOLDIERS RELIEF 121 | N/A | N/A | N/A | N/A | | |
| EMERGSER | EMS 147 | N/A | N/A | N/A | N/A | | |
| EMSRFD | EMS REFUND 147 | N/A | N/A | N/A | N/A | | |
| PORTRFD | PORT REFUND 640 | N/A | N/A | N/A | N/A | | |
| PORTWWGEN | PORT OF WW 640 | N/A | N/A | N/A | N/A | | |
| SD140BOND | SD #140 BOND 764 | N/A | N/A | N/A | N/A | | |
| SD140GEN | SD #140 GENERAL 760 | N/A | N/A | N/A | N/A | | |
| ST2 | STATE SCHOOL PART 2 600 | N/A | N/A | N/A | N/A | | |
| STATESCHL | STATE SCHOOL 600 | N/A | N/A | N/A | N/A | | |
| STREFUND | STATE REFUND LEVY 603 | N/A | N/A | N/A | N/A | | |
| CWWBOND | C OF WW BOND 643 | N/A | N/A | N/A | N/A | | |
| CWWGEN | CITY OF WW 631 | N/A | N/A | N/A | N/A | | |
| CWWRFD | CITY OF WALLA WALLA REFUND 631 | N/A | N/A | N/A | N/A | | |
| | Total Tax Rate: | N/A | | | | | |
| | | | | Taxes w/Current Exemptions: | N/A | | |
| | | | | Taxes w/o Exemptions: | N/A | | |
Improvement / Building
| Improvement #1: | RESIDENTIAL | State Code: | 11 | 1700.0 sqft | Value: | N/A |
| Exterior Wall: | HARDBOARD | Heating/Cooling: | WARM & COOLED AIR | | Number of Bathrooms: | 2 | Number of Bedrooms: | 3 | | Plumbing: | 11 | Roof Covering: | COMP SHINGLE |
|
| | Type | Description | Class CD | Sub Class CD | Year Built | Area |
| | MA | Main Area | 1 | 35 | 2005 | 1700.0 |
| | SI1 | SITE IMPROVEMENT | 1 | 35 | 2005 | 4.5 |
| | RPC | OPEN PORCH W/ROOF , CEILED | 1 | 35 | 2005 | 117.0 |
| | RPC | OPEN PORCH W/ROOF , CEILED | 1 | 35 | 2005 | 138.0 |
| | RPC | OPEN PORCH W/ROOF , CEILED | 1 | 35 | 2005 | 162.0 |
| | ATG | Attached Garage | 1 | 35 | 2005 | 462.0 |
Sketch
Property Image
Land
| 1 | RES 1 | Converted: Residential | 0.1290 | 5620.00 | 0.00 | 0.00 | 1.00 | N/A | N/A |
Roll Value History
| 2026 | N/A | N/A | N/A | N/A | N/A |
| 2025 | $376,430 | $67,440 | $0 | $443,870 | $443,870 |
| 2024 | $386,080 | $56,200 | $0 | $442,280 | $442,280 |
| 2023 | $386,080 | $56,200 | $0 | $442,280 | $442,280 |
| 2022 | $386,080 | $46,370 | $0 | $432,450 | $432,450 |
| 2021 | $296,980 | $46,370 | $0 | $343,350 | $343,350 |
| 2020 | $212,130 | $46,370 | $0 | $258,500 | $258,500 |
| 2019 | $212,130 | $46,370 | $0 | $258,500 | $258,500 |
| 2018 | $214,870 | $33,700 | $0 | $248,570 | $248,570 |
| 2017 | $203,280 | $33,700 | $0 | $236,980 | $236,980 |
| 2016 | $169,400 | $33,700 | $0 | $203,100 | $203,100 |
| 2015 | $169,400 | $33,700 | $0 | $203,100 | $203,100 |
| 2014 | $169,400 | $33,700 | $0 | $203,100 | $203,100 |
| 2013 | $169,400 | $33,700 | $0 | $203,100 | $203,100 |
| 2012 | $192,000 | $33,700 | $0 | $0 | $0 |
| 2011 | $192,000 | $33,700 | $0 | $0 | $0 |
| 2010 | $154,400 | $33,700 | $0 | $0 | $0 |
| 2009 | $175,300 | $33,700 | $0 | $0 | $0 |
| 2008 | $175,300 | $33,700 | $0 | $0 | $0 |
| 2007 | $179,100 | $11,200 | $0 | $0 | $0 |
Deed and Sales History
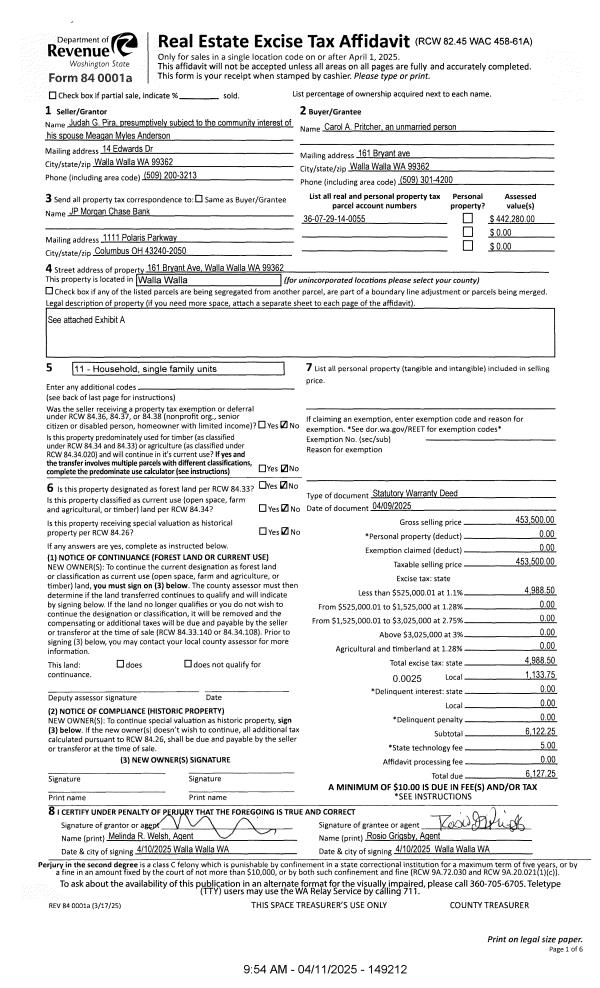
| 1 | 04/11/2025 | SWD | STATUTORY WARRANTY DEED | PIRA JUDAH G | PRITCHER CAROL A | | | $453,500.00 | 149212 | 2025-01908 |
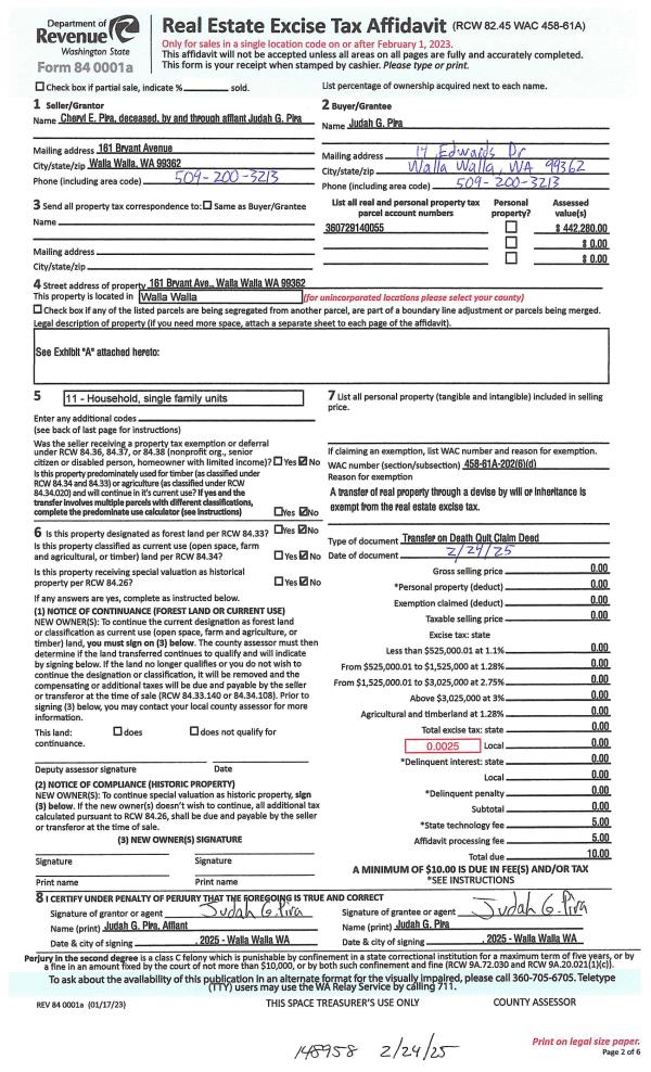
| 2 | 02/24/2025 | TODD | TRANSFER ON DEATH DEED | PIRA CHERYL E | PIRA JUDAH G | | | | 148958 | 2025-00937 |
| 3 | 09/12/2024 | DEATH CERT | DEATH CERTIFICATE | PIRA CHERYL E | PIRA JUDAH G | | | | 0 | 2024-05181 |
| 4 | 08/13/2024 | TODD | TRANSFER ON DEATH DEED | PIRA CHERYL E | | | | | 0 | 2024-04471 |
| 5 | 01/20/2016 | LOPA | LACK OF PROBATE AFFIDAVIT | PIRA GARY R & CHERYL E | PIRA GARY R & CHERYL E | | | | 0 | 2016-00446 |
| 6 | 01/20/2016 | DEATH CERT | DEATH CERTIFICATE | PIRA GARY RICHARD | | | | | 0 | 2016-00448 |
| 7 | 01/20/2016 | COMMUNITY | COMMUNITY PROPERTY AGREEMENT | PIRA GARY R & CHERYL E | PIRA GARY R & CHERYL E | | | | 0 | 2016-00447 |
| 8 | 08/31/2011 | WARRANTY D | WARRANTY DEED | GERKING, PHILLIP | PIRA, GARY R & CHERYL E | | | $205,000.00 | 120634 | 2011-06874 |
| 9 | 12/15/2009 | WARRANTY D | WARRANTY DEED | LOLL, KRISTIN M | GERKING, PHILLIP & NANCY | | | $234,000.00 | 117807 | 2009-12039 |
| 10 | 09/19/2005 | WARRANTY D | WARRANTY DEED | CASE, JULIE & ZANA CARVER DBA | LOLL, KRISTIN M | | | $209,000.00 | 108517 | 2005-11603 |
| 11 | 12/03/2004 | QCD | QUIT CLAIM DEED | CARVER, KRIS E & ZANA A | CASE, JULIE & ZANA CARVER DBA | | | | 106318 | 2004-13835 |
| 12 | 10/06/2004 | WARRANTY D | WARRANTY DEED | ALIVERTI, EDWARD & ROBERT TRST | CARVER KRIS E & ZANA A | | | $142,900.00 | 105891 | 2004-11540 |
|   | |
Payout Agreement
| No payout information available.. |