Property
Account |
| Property ID: | 27884 | Abbreviated Legal Description: | HOMESTEAD VILLAGE P.U.D. PHASE 1A LOT 24 |
| Parcel Number: | 350735710024 | Agent Code: | |
| Type: | Real | | |
| Tax Area: | 74 - CP-250-FB | Land Use Code | 11 |
| Open Space: | N | DFL | N |
| Historic Property: | N | Remodel Property: | N |
| Multi-Family Redevelopment: | N | | |
| Township: | 7 | Section: | 35 |
| Range: | 35 |
Location |
| Address: | 1211 SW GREELEY ST WA 99324 | Mapsco: | |
| Neighborhood: | A SFR | Map ID: | |
| Neighborhood CD: | 113011 |
Owner |
| Name: | SOUNDOME MANAGEMENT LLC | Owner ID: | 72106 |
| Mailing Address: | 1644 PLAZA WAY #160 WALLA WALLA, WA 99362 | % Ownership: | 100.0000000000% |
| | | Exemptions: | |
Taxes and Assessment Details
Values
| (+) Improvement Homesite Value: | + | $0 | |
| (+) Improvement Non-Homesite Value: | + | $261,450 | |
| (+) Land Homesite Value: | + | $0 | |
| (+) Land Non-Homesite Value: | + | $55,000 | |
| (+) Curr Use (HS): | + | $0 | $0 |
| (+) Curr Use (NHS): | + | $0 | $0 |
| | | -------------------------- | |
| (=) Market Value: | = | $316,450 | |
| (–) Productivity Loss: | – | $0 | |
| | | -------------------------- | |
| (=) Subtotal: | = | $316,450 | |
| (+) Senior Appraised Value: | + | $0 | |
| (+) Non-Senior Appraised Value: | + | $316,450 | |
| | | -------------------------- | |
| (=) Total Appraised Value: | = | $316,450 | |
| (–) Senior Exemption Loss: | – | $0 | |
| (–) Exemption Loss: | – | $0 | |
| | | -------------------------- | |
| (=) Taxable Value: | = | $316,450 | |
Taxing Jurisdiction
| Owner: | SOUNDOME MANAGEMENT LLC | | |
| % Ownership: | 100.0000000000% | | |
| Total Value: | $316,450 | | |
| Tax Area: | 74 - CP-250-FB |
| CERFD | CURRENT EXPENSE REFUND 010 | 0.0000000000 | $316,450 | $316,450 | $0.00 | | |
| CURREXP | CURRENT EXPENSE 010 | 1.0175366760 | $316,450 | $316,450 | $322.00 | | |
| HUMNSERV | HUMAN SERVICES 119 | 0.0250000000 | $316,450 | $316,450 | $7.91 | | |
| SLDREL | SOLDIERS RELIEF 121 | 0.0155990005 | $316,450 | $316,450 | $4.94 | | |
| COLLPLBOND | C OF CP BOND 644 | 0.4374241808 | $316,450 | $316,450 | $138.42 | | |
| COLLPLGEN | CITY OF CP 632 | 1.4453819216 | $316,450 | $316,450 | $457.39 | | |
| EMERGSER | EMS 147 | 0.3792580840 | $316,450 | $316,450 | $120.02 | | |
| EMSRFD | EMS REFUND 147 | 0.0000000000 | $316,450 | $316,450 | $0.00 | | |
| RURALLIB | RURAL LIBRARY 623 | 0.3710609029 | $316,450 | $316,450 | $117.42 | | |
| PORTRFD | PORT REFUND 640 | 0.0000000000 | $316,450 | $316,450 | $0.00 | | |
| PORTWWGEN | PORT OF WW 640 | 0.2460186015 | $316,450 | $316,450 | $77.85 | | |
| SD250BOND | SD #250 BOND 773 | 1.4560608159 | $316,450 | $316,450 | $460.77 | | |
| SD250GEN | SD #250 GENERAL 770 | 2.3880724087 | $316,450 | $316,450 | $755.71 | | |
| ST2 | STATE SCHOOL PART 2 600 | 0.8131451643 | $316,450 | $316,450 | $257.32 | | |
| STATESCHL | STATE SCHOOL 600 | 1.5158548041 | $316,450 | $316,450 | $479.69 | | |
| STREFUND | STATE REFUND LEVY 603 | 0.0000000000 | $316,450 | $316,450 | $0.00 | | |
| | Total Tax Rate: | 10.1104125603 | | | | | |
| | | | | Taxes w/Current Exemptions: | $3,199.44 | | |
| | | | | Taxes w/o Exemptions: | $3,199.44 | | |
Improvement / Building
| Improvement #1: | RESIDENTIAL | State Code: | 11 | 1152.0 sqft | Value: | $261,450 |
| Exterior Wall: | HARDBOARD | Heating/Cooling: | WARM & COOLED AIR | | Number of Bathrooms: | 2 | Number of Bedrooms: | 3 | | Plumbing: | 10 | Roof Covering: | COMP SHINGLE |
|
| | Type | Description | Class CD | Sub Class CD | Year Built | Area |
| | MA | Main Area | 1 | 30 | 2009 | 1152.0 |
| | SI1 | SITE IMPROVEMENT | 1 | 30 | 2009 | 1.5 |
| | ATG | Attached Garage | 1 | 30 | 2009 | 400.0 |
| | RPO | OPEN PORCH W/ROOF | 1 | 30 | 2009 | 32.0 |
Sketch
Property Image
Land
| 1 | RES 1 | Converted: Residential | 0.1033 | 4500.00 | 0.00 | 0.00 | 1.00 | $55,000 | $0 |
Roll Value History
| 2026 | N/A | N/A | N/A | N/A | N/A |
| 2025 | $215,700 | $125,000 | $0 | $340,700 | $340,700 |
| 2024 | $287,600 | $55,000 | $0 | $342,600 | $342,600 |
| 2023 | $261,450 | $55,000 | $0 | $316,450 | $316,450 |
| 2022 | $237,680 | $55,000 | $0 | $292,680 | $292,680 |
| 2021 | $182,830 | $55,000 | $0 | $237,830 | $237,830 |
| 2020 | $140,640 | $55,000 | $0 | $195,640 | $195,640 |
| 2019 | $168,640 | $27,000 | $0 | $195,640 | $195,640 |
| 2018 | $156,150 | $27,000 | $0 | $183,150 | $183,150 |
| 2017 | $141,950 | $27,000 | $0 | $168,950 | $168,950 |
| 2016 | $135,190 | $27,000 | $0 | $162,190 | $162,190 |
| 2015 | $135,190 | $27,000 | $0 | $162,190 | $162,190 |
| 2014 | $122,900 | $27,000 | $0 | $149,900 | $149,900 |
| 2013 | $122,900 | $27,000 | $0 | $149,900 | $149,900 |
| 2012 | $118,500 | $27,000 | $0 | $0 | $0 |
| 2011 | $118,500 | $27,000 | $0 | $0 | $0 |
| 2010 | $0 | $27,000 | $0 | $0 | $0 |
| 2009 | $0 | $5,000 | $0 | $0 | $0 |
| 2008 | $122,900 | $27,000 | $0 | $0 | $0 |
Deed and Sales History
| 1 | 08/05/2022 | SWD | STATUTORY WARRANTY DEED | JOHN GROVER LEWIS TRUST | SOUNDOME MANAGEMENT LLC | | | $0.00 | 144454 | 2022-06592 |
| 2 | 12/18/2017 | SWD | STATUTORY WARRANTY DEED | DEL MORO DAVID & SARAH | JOHN GROVER LEWIS TRUST | | | $202,000.00 | 133826 | 2017-10144 |
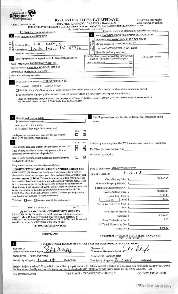
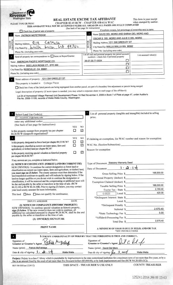
| 3 | 01/08/2014 | SWD | STATUTORY WARRANTY DEED | MC FETRIDGE PATRICK | DEL MORO DAVID & SARAH | | | $168,000.00 | 125241 | 2014-00154 |
| 4 | 12/29/2009 | WARRANTY D | WARRANTY DEED | HAYDEN HOMES LLC | MC FETRIDGE, PATRICK | | | $149,610.00 | 117891 | 2009-12465 |
| 5 | 11/14/2008 | QCD | QUIT CLAIM DEED | HAYDEN ENTERPRISES INC | HAYDEN HOMES LLC | | | | 115964 | 2008-11380 |
Payout Agreement
| No payout information available.. |