Property
Account |
| Property ID: | 27881 | Abbreviated Legal Description: | TULL PARK LOT 2 BLK 1; N 20' OF LOT 3 BLK 1 |
| Parcel Number: | 360727580102 | Agent Code: | |
| Type: | Real | | |
| Tax Area: | 105 - 140-F-4 | Land Use Code | 11 |
| Open Space: | N | DFL | N |
| Historic Property: | N | Remodel Property: | N |
| Multi-Family Redevelopment: | N | | |
| Township: | 7 | Section: | 27 |
| Range: | 36 |
Location |
| Address: | 1413 S WILBUR AVE WA 99362 | Mapsco: | |
| Neighborhood: | A Res | Map ID: | |
| Neighborhood CD: | 613011 |
Owner |
| Name: | YAN QIFENG & YING XIE | Owner ID: | 73589 |
| Mailing Address: | 1413 S WILBUR AVE WALLA WALLA, WA 99362 | % Ownership: | 100.0000000000% |
| | | Exemptions: | |
Taxes and Assessment Details
Property Tax Information as of
02/21/2026
Click on "Statement Details" to expand or collapse a tax statement.
* Please enter a valid date ** Please enter a valid date *
Statement Details |
| | TOTAL: | $0.00 | $0.00 | $0.00 | $0.00 | $0.00 | $0.00 |
|
| | $0.00 | $0.00 | $0.00 | $0.00 | $0.00 | $0.00 |
Values
| (+) Improvement Homesite Value: | + | $0 | |
| (+) Improvement Non-Homesite Value: | + | $375,280 | |
| (+) Land Homesite Value: | + | $0 | |
| (+) Land Non-Homesite Value: | + | $90,720 | |
| (+) Curr Use (HS): | + | $0 | $0 |
| (+) Curr Use (NHS): | + | $0 | $0 |
| | | -------------------------- | |
| (=) Market Value: | = | $466,000 | |
| (–) Productivity Loss: | – | $0 | |
| | | -------------------------- | |
| (=) Subtotal: | = | $466,000 | |
| (+) Senior Appraised Value: | + | $0 | |
| (+) Non-Senior Appraised Value: | + | $466,000 | |
| | | -------------------------- | |
| (=) Total Appraised Value: | = | $466,000 | |
| (–) Senior Exemption Loss: | – | $0 | |
| (–) Exemption Loss: | – | $0 | |
| | | -------------------------- | |
| (=) Taxable Value: | = | $466,000 | |
Taxing Jurisdiction
| Owner: | YAN QIFENG & YING XIE | | |
| % Ownership: | 100.0000000000% | | |
| Total Value: | $466,000 | | |
| Tax Area: | 105 - 140-F-4 |
| CERFD | CURRENT EXPENSE REFUND 010 | 0.0000000000 | $466,000 | $466,000 | $0.00 | | |
| CURREXP | CURRENT EXPENSE 010 | 1.0175366760 | $466,000 | $466,000 | $474.17 | | |
| HUMNSERV | HUMAN SERVICES 119 | 0.0250000000 | $466,000 | $466,000 | $11.65 | | |
| SLDREL | SOLDIERS RELIEF 121 | 0.0155990005 | $466,000 | $466,000 | $7.27 | | |
| EMERGSER | EMS 147 | 0.3792580840 | $466,000 | $466,000 | $176.73 | | |
| EMSRFD | EMS REFUND 147 | 0.0000000000 | $466,000 | $466,000 | $0.00 | | |
| FD4EXP | FD #4 EXPENSE 686 | 0.8836993059 | $466,000 | $466,000 | $411.80 | | |
| RLBRFD | RURAL LIBRARY REFUND 623 | 0.0000000000 | $466,000 | $466,000 | $0.00 | | |
| RURALLIB | RURAL LIBRARY 623 | 0.3710609029 | $466,000 | $466,000 | $172.91 | | |
| PORTRFD | PORT REFUND 640 | 0.0000000000 | $466,000 | $466,000 | $0.00 | | |
| PORTWWGEN | PORT OF WW 640 | 0.2460186015 | $466,000 | $466,000 | $114.64 | | |
| SD140BOND | SD #140 BOND 764 | 0.8342371393 | $466,000 | $466,000 | $388.75 | | |
| SD140GEN | SD #140 GENERAL 760 | 2.0646500647 | $466,000 | $466,000 | $962.13 | | |
| ST2 | STATE SCHOOL PART 2 600 | 0.8131451643 | $466,000 | $466,000 | $378.93 | | |
| STATESCHL | STATE SCHOOL 600 | 1.5158548041 | $466,000 | $466,000 | $706.39 | | |
| STREFUND | STATE REFUND LEVY 603 | 0.0000000000 | $466,000 | $466,000 | $0.00 | | |
| COROAD | COUNTY ROAD 115 | 1.6549953990 | $466,000 | $466,000 | $771.23 | | |
| CRPRD | COUNTY ROAD REFUND 115 | 0.0000000000 | $466,000 | $466,000 | $0.00 | | |
| | Total Tax Rate: | 9.8210551422 | | | | | |
| | | | | Taxes w/Current Exemptions: | $4,576.60 | | |
| | | | | Taxes w/o Exemptions: | $4,576.60 | | |
Improvement / Building
| Improvement #1: | RESIDENTIAL | State Code: | 11 | 1243.0 sqft | Value: | $375,280 |
| Exterior Wall: | PLYWOOD | Heating/Cooling: | WARM & COOLED AIR | | Number of Bathrooms: | 3 | Number of Bedrooms: | 4 | | Plumbing: | 12 | Roof Covering: | COMP SHINGLE |
|
| | Type | Description | Class CD | Sub Class CD | Year Built | Area |
| | MA | Main Area | 11 | 35 | 1972 | 1243.0 |
| | SI1 | SITE IMPROVEMENT | 11 | 35 | 1972 | 2.0 |
| | BASE | BASEMENT | 11 | 35 | 1972 | 1200.0 |
| | BPF | BASEMENT -PARTITIONED FINISH | 11 | 35 | 1972 | 1200.0 |
| | D2F | Double 2 Story Fireplace | 11 | 35 | 1972 | 1.0 |
| | RPC | OPEN PORCH W/ROOF , CEILED | 11 | 35 | 2016 | 47.0 |
| | WDR | WOOD DECK W/ROOF | 11 | 35 | 1972 | 128.0 |
| | WOD | Wood Deck | 11 | 35 | 1972 | 781.0 |
| | ATG | Attached Garage | 11 | 35 | 1972 | 528.0 |
Sketch
Property Image
Land
| 1 | RES 1 | Converted: Residential | 0.2528 | 11010.00 | 0.00 | 0.00 | 1.00 | $90,720 | $0 |
Roll Value History
| 2026 | N/A | N/A | N/A | N/A | N/A |
| 2025 | $388,430 | $110,870 | $0 | $499,300 | $499,300 |
| 2024 | $375,280 | $90,720 | $0 | $466,000 | $466,000 |
| 2023 | $375,280 | $90,720 | $0 | $466,000 | $466,000 |
| 2022 | $357,410 | $73,000 | $0 | $430,410 | $430,410 |
| 2021 | $357,410 | $73,000 | $0 | $430,410 | $430,410 |
| 2020 | $238,270 | $73,000 | $0 | $311,270 | $311,270 |
| 2019 | $238,270 | $73,000 | $0 | $311,270 | $311,270 |
| 2018 | $215,450 | $48,000 | $0 | $263,450 | $263,450 |
| 2017 | $195,860 | $48,000 | $0 | $243,860 | $243,860 |
| 2016 | $186,530 | $48,000 | $0 | $234,530 | $234,530 |
| 2015 | $177,650 | $48,000 | $0 | $225,650 | $225,650 |
| 2014 | $161,500 | $48,000 | $0 | $209,500 | $209,500 |
| 2013 | $161,500 | $48,000 | $0 | $209,500 | $209,500 |
| 2012 | $155,900 | $48,000 | $0 | $0 | $0 |
| 2011 | $155,900 | $48,000 | $0 | $0 | $0 |
| 2010 | $166,700 | $48,000 | $0 | $0 | $0 |
| 2009 | $190,500 | $48,000 | $0 | $0 | $0 |
| 2008 | $190,500 | $48,000 | $0 | $0 | $0 |
| 2007 | $127,400 | $25,500 | $0 | $0 | $0 |
Deed and Sales History
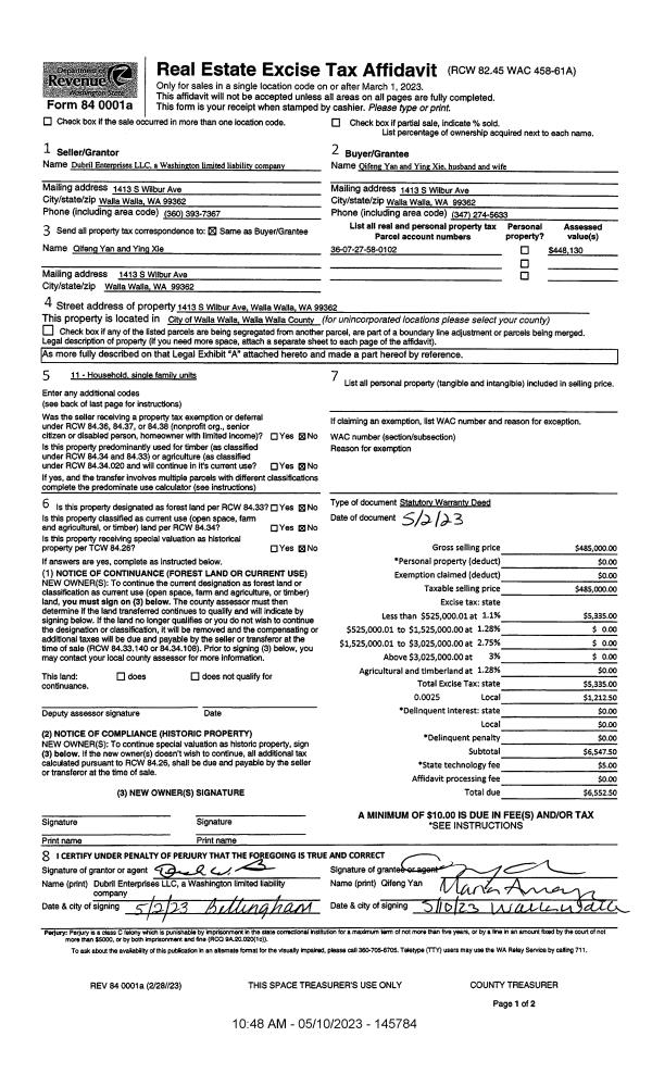
| 1 | 05/10/2023 | SWD | STATUTORY WARRANTY DEED | DUBRIL ENTERPRISES LLC | YAN QIFENG & YING XIE | | | $485,000.00 | 145784 | 2023-02469 |
| 2 | 05/23/2022 | SWD | STATUTORY WARRANTY DEED | CLARK MATTHEW | DUBRIL ENTERPRISES LLC | | | $440,000.00 | 144004 | 2022-04450 |
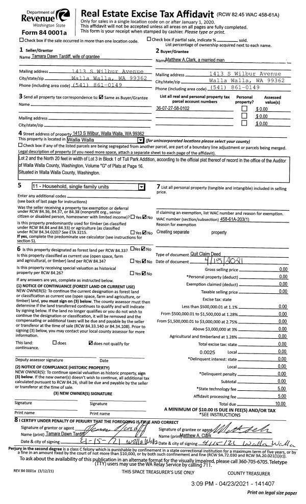
| 3 | 04/23/2021 | QCD | QUIT CLAIM DEED | TARDIFF TAMARA DAWN | CLARK MATTHEW A | | | | 141407 | 2021-04814 |
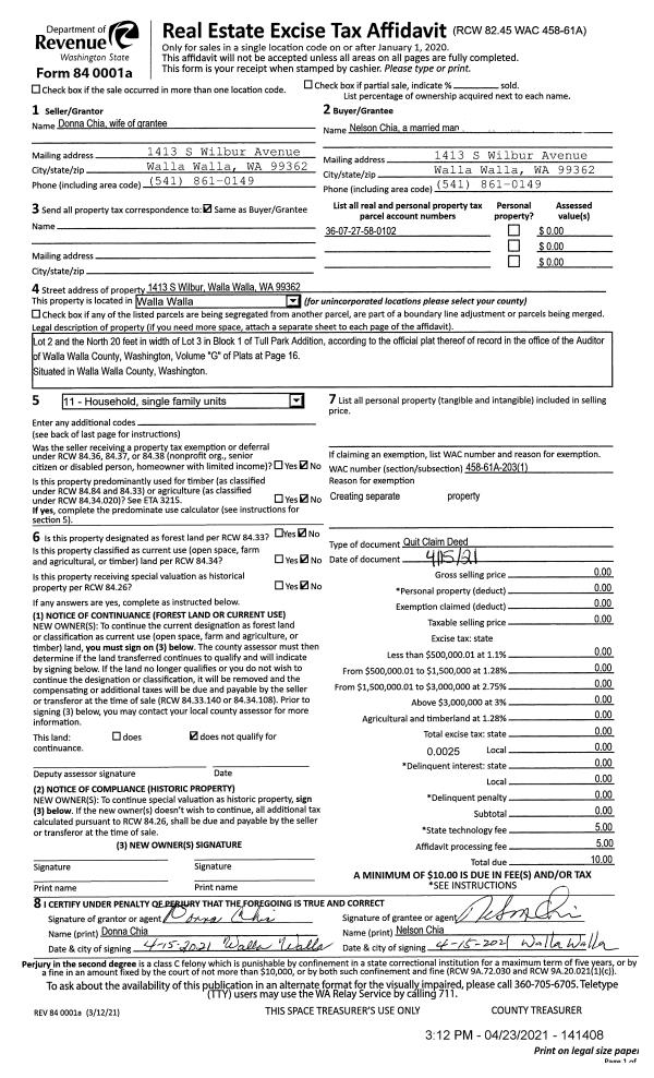
| 4 | 04/23/2021 | QCD | QUIT CLAIM DEED | CHIA DONNA | CHIA NELSON | | | | 141408 | 2021-04815 |
| 5 | 04/23/2021 | SWD | STATUTORY WARRANTY DEED | CHASE MARGARETE APARECIDA | CLARK MATTHEW | | | $479,000.00 | 141409 | 2021-04816 |
| 6 | 12/31/2009 | WARRANTY D | WARRANTY DEED | JENKINS, BARRY D & MARYLOU | CHASE, MARGARETE APARECIDA | | | $212,000.00 | 117905 | 2009-12554 |
| 7 | 09/29/1986 | WARRANTY D | WARRANTY DEED | | | | | $79,900.00 | 0 | 1598-607609 |
Payout Agreement
| No payout information available.. |