Property
Account |
| Property ID: | 27871 | Abbreviated Legal Description: | PROSPECT TERRACE LOT 36 |
| Parcel Number: | 360732810036 | Agent Code: | |
| Type: | Real | | |
| Tax Area: | 6 - OL-140-F-FB | Land Use Code | 11 |
| Open Space: | N | DFL | N |
| Historic Property: | N | Remodel Property: | N |
| Multi-Family Redevelopment: | N | | |
| Township: | 7 | Section: | 32 |
| Range: | 36 |
Location |
| Address: | 918 HIGHLAND RD WA 99362 | Mapsco: | |
| Neighborhood: | G Res Rural/City Inf | Map ID: | |
| Neighborhood CD: | 614012 |
Owner |
| Name: | SMITH TAVIS G & ZIXIA DENG | Owner ID: | 68701 |
| Mailing Address: | 918 HIGHLAND RD WALLA WALLA, WA 99362 | % Ownership: | 100.0000000000% |
| | | Exemptions: | |
Taxes and Assessment Details
Property Tax Information as of
02/21/2026
Click on "Statement Details" to expand or collapse a tax statement.
* Please enter a valid date ** Please enter a valid date *
Statement Details |
| | TOTAL: | $0.00 | $0.00 | $0.00 | $0.00 | $0.00 | $0.00 |
|
| | $0.00 | $0.00 | $0.00 | $0.00 | $0.00 | $0.00 |
Values
| (+) Improvement Homesite Value: | + | $0 | |
| (+) Improvement Non-Homesite Value: | + | $307,060 | |
| (+) Land Homesite Value: | + | $0 | |
| (+) Land Non-Homesite Value: | + | $85,000 | |
| (+) Curr Use (HS): | + | $0 | $0 |
| (+) Curr Use (NHS): | + | $0 | $0 |
| | | -------------------------- | |
| (=) Market Value: | = | $392,060 | |
| (–) Productivity Loss: | – | $0 | |
| | | -------------------------- | |
| (=) Subtotal: | = | $392,060 | |
| (+) Senior Appraised Value: | + | $0 | |
| (+) Non-Senior Appraised Value: | + | $392,060 | |
| | | -------------------------- | |
| (=) Total Appraised Value: | = | $392,060 | |
| (–) Senior Exemption Loss: | – | $0 | |
| (–) Exemption Loss: | – | $0 | |
| | | -------------------------- | |
| (=) Taxable Value: | = | $392,060 | |
Taxing Jurisdiction
| Owner: | SMITH TAVIS G & ZIXIA DENG | | |
| % Ownership: | 100.0000000000% | | |
| Total Value: | $392,060 | | |
| Tax Area: | 6 - OL-140-F-FB |
| CERFD | CURRENT EXPENSE REFUND 010 | 0.0000000000 | $392,060 | $392,060 | $0.00 | | |
| CURREXP | CURRENT EXPENSE 010 | 1.0175366760 | $392,060 | $392,060 | $398.94 | | |
| HUMNSERV | HUMAN SERVICES 119 | 0.0250000000 | $392,060 | $392,060 | $9.80 | | |
| SLDREL | SOLDIERS RELIEF 121 | 0.0155990005 | $392,060 | $392,060 | $6.12 | | |
| EMERGSER | EMS 147 | 0.3792580840 | $392,060 | $392,060 | $148.69 | | |
| EMSRFD | EMS REFUND 147 | 0.0000000000 | $392,060 | $392,060 | $0.00 | | |
| PORTRFD | PORT REFUND 640 | 0.0000000000 | $392,060 | $392,060 | $0.00 | | |
| PORTWWGEN | PORT OF WW 640 | 0.2460186015 | $392,060 | $392,060 | $96.45 | | |
| SD140BOND | SD #140 BOND 764 | 0.8342371393 | $392,060 | $392,060 | $327.07 | | |
| SD140GEN | SD #140 GENERAL 760 | 2.0646500647 | $392,060 | $392,060 | $809.47 | | |
| ST2 | STATE SCHOOL PART 2 600 | 0.8131451643 | $392,060 | $392,060 | $318.80 | | |
| STATESCHL | STATE SCHOOL 600 | 1.5158548041 | $392,060 | $392,060 | $594.31 | | |
| STREFUND | STATE REFUND LEVY 603 | 0.0000000000 | $392,060 | $392,060 | $0.00 | | |
| CWWBOND | C OF WW BOND 643 | 0.2760494372 | $392,060 | $392,060 | $108.23 | | |
| CWWGEN | CITY OF WW 631 | 1.6100204973 | $392,060 | $392,060 | $631.22 | | |
| CWWRFD | CITY OF WALLA WALLA REFUND 631 | 0.0000000000 | $392,060 | $392,060 | $0.00 | | |
| | Total Tax Rate: | 8.7973694689 | | | | | |
| | | | | Taxes w/Current Exemptions: | $3,449.10 | | |
| | | | | Taxes w/o Exemptions: | $3,449.10 | | |
Improvement / Building
| Improvement #1: | RESIDENTIAL | State Code: | 11 | 1244.0 sqft | Value: | $307,060 |
| Exterior Wall: | HARDBOARD | Heating/Cooling: | WARM & COOLED AIR | | Number of Bathrooms: | 2 | Number of Bedrooms: | 3 | | Plumbing: | 10 | Roof Covering: | COMP SHINGLE |
|
| | Type | Description | Class CD | Sub Class CD | Year Built | Area |
| | MA | Main Area | 1 | 30 | 2009 | 1244.0 |
| | SI1 | SITE IMPROVEMENT | 1 | 30 | 2009 | 2.0 |
| | ATG | Attached Garage | 1 | 30 | 2009 | 400.0 |
| | GFP | GAS FIREPLACE | 1 | 30 | 2009 | 1.0 |
| | RPO | OPEN PORCH W/ROOF | 1 | 30 | 2009 | 143.0 |
Sketch
Property Image
Land
| 1 | RES 1 | Converted: Residential | 0.1835 | 7993.00 | 0.00 | 0.00 | 1.00 | $85,000 | $0 |
Roll Value History
| 2026 | N/A | N/A | N/A | N/A | N/A |
| 2025 | $297,140 | $125,000 | $0 | $422,140 | $422,140 |
| 2024 | $307,060 | $85,000 | $0 | $392,060 | $392,060 |
| 2023 | $307,060 | $85,000 | $0 | $392,060 | $392,060 |
| 2022 | $292,440 | $70,000 | $0 | $362,440 | $362,440 |
| 2021 | $224,950 | $70,000 | $0 | $294,950 | $294,950 |
| 2020 | $145,130 | $70,000 | $0 | $215,130 | $215,130 |
| 2019 | $145,130 | $70,000 | $0 | $215,130 | $215,130 |
| 2018 | $137,130 | $60,000 | $0 | $197,130 | $197,130 |
| 2017 | $124,660 | $60,000 | $0 | $184,660 | $184,660 |
| 2016 | $122,220 | $60,000 | $0 | $182,220 | $182,220 |
| 2015 | $116,400 | $60,000 | $0 | $176,400 | $176,400 |
| 2014 | $116,400 | $60,000 | $0 | $176,400 | $176,400 |
| 2013 | $116,400 | $60,000 | $0 | $176,400 | $176,400 |
| 2012 | $109,100 | $60,000 | $0 | $0 | $0 |
| 2011 | $109,100 | $60,000 | $0 | $0 | $0 |
| 2010 | $62,300 | $60,000 | $0 | $0 | $0 |
| 2009 | $0 | $60,000 | $0 | $0 | $0 |
| 2008 | $0 | $3,800 | $0 | $0 | $0 |
| 2007 | $116,400 | $60,000 | $0 | $0 | $0 |
Deed and Sales History
| 1 | 01/19/2021 | SWD | STATUTORY WARRANTY DEED | NGUYEN LANCHI T | SMITH TAVIS G & ZIXIA DENG | | | $310,000.00 | 140766 | 2021-00713 |
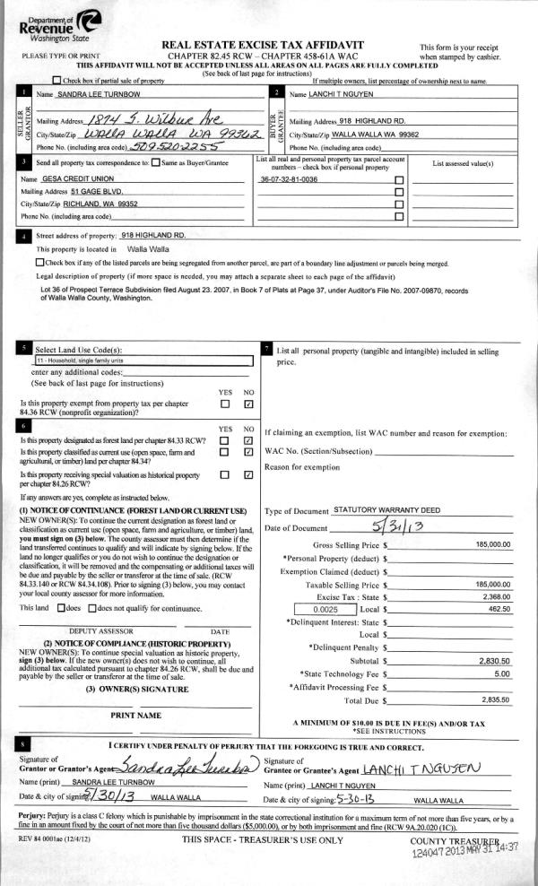
| 2 | 05/31/2013 | WARRANTY D | WARRANTY DEED | TURNBOW, SANDRA LEE | NGUYEN, LANCHI T | | | $185,000.00 | 124047 | 2013-05452 |
| 3 | 12/18/2009 | WARRANTY D | WARRANTY DEED | HAYDEN HOMES LLC | TURNBOW, SANDRA LEE | | | $174,590.00 | 117838 | 2009-12169 |
| 4 | 12/05/2007 | WARRANTY D | WARRANTY DEED | HAYDEN ENTERPRISES INC | | | | | 114183 | 2007-13846 |
| 5 | | WARRANTY D | WARRANTY DEED | TURNBOW, SANDRA LEE | | | | | 0 | 2013- |
Payout Agreement
| No payout information available.. |