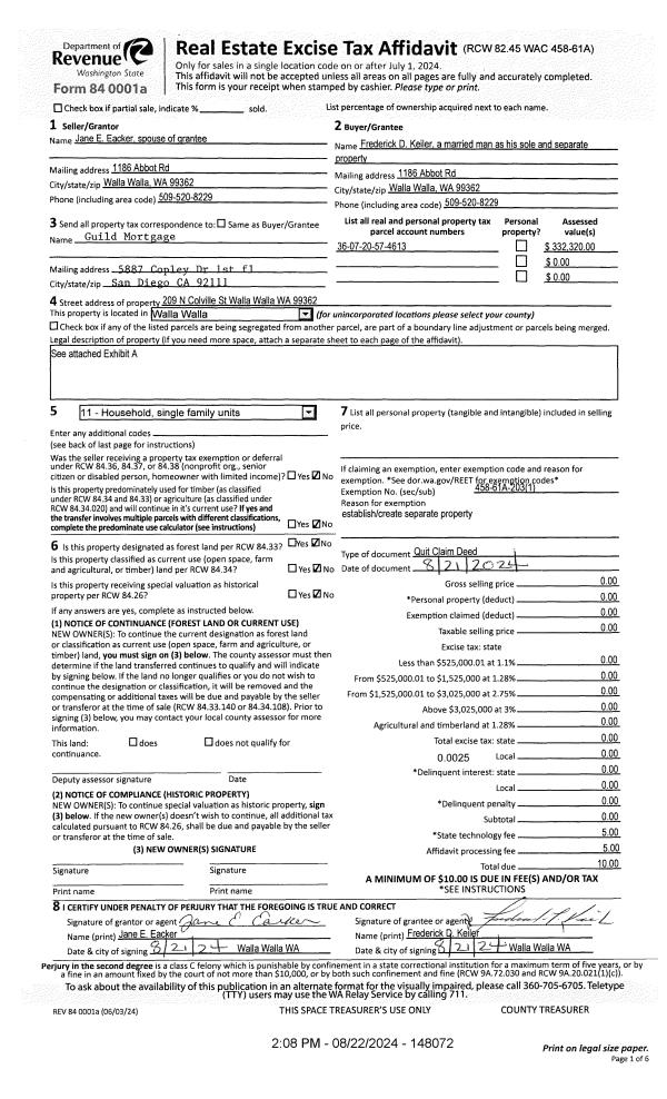
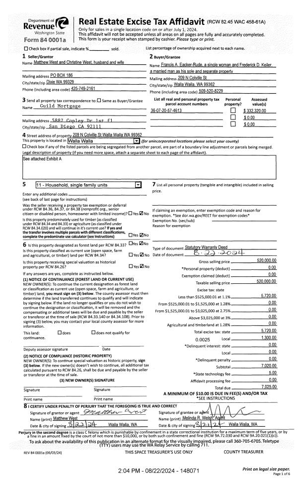
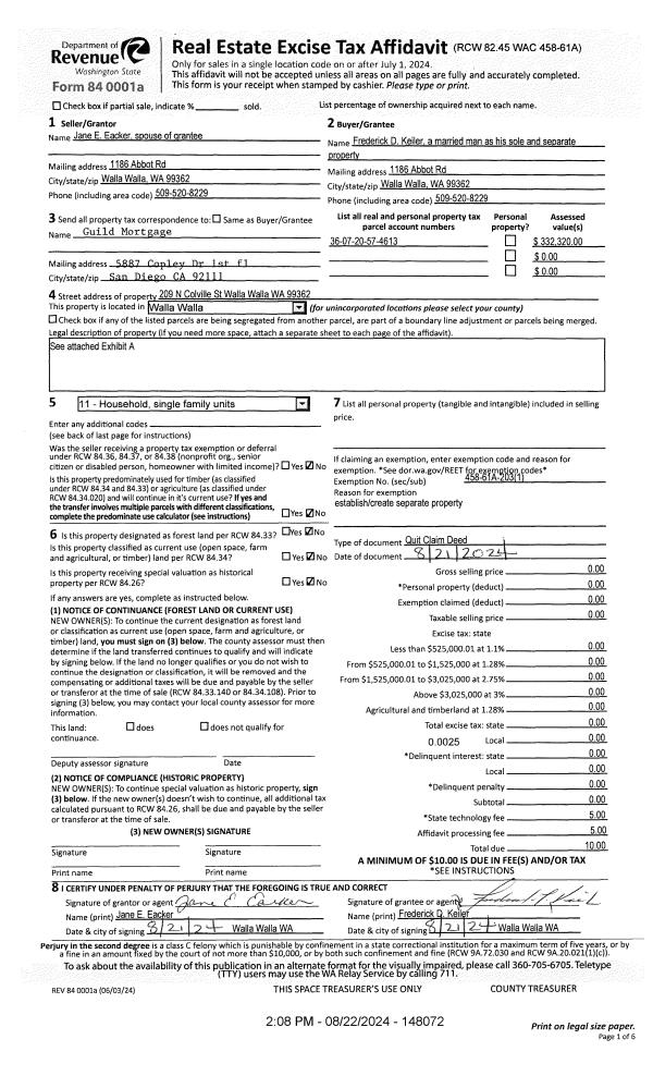
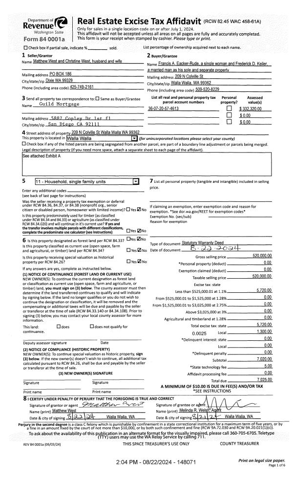
Property
Account |
| Property ID: | 27829 | Abbreviated Legal Description: | CAINS TAX 10 BLK B |
| Parcel Number: | 360720574613 | Agent Code: | |
| Type: | Real | | |
| Tax Area: | 1 - OL-140-F | Land Use Code | 11 |
| Open Space: | N | DFL | N |
| Historic Property: | N | Remodel Property: | N |
| Multi-Family Redevelopment: | N | | |
| Township: | 7 | Section: | 20 |
| Range: | 36 |
Location |
| Address: | 209 N COLVILLE ST WA 99362 | Mapsco: | |
| Neighborhood: | A-SFR | Map ID: | |
| Neighborhood CD: | 513011 |
Owner |
| Name: | WEST MATTHEW & CHRISTINE | Owner ID: | 55214 |
| Mailing Address: | PO BOX 186 DIXIE, WA 99329 | % Ownership: | 100.0000000000% |
| | | Exemptions: | |
Taxes and Assessment Details
Values
| (+) Improvement Homesite Value: | + | $0 | |
| (+) Improvement Non-Homesite Value: | + | $312,320 | |
| (+) Land Homesite Value: | + | $0 | |
| (+) Land Non-Homesite Value: | + | $20,000 | |
| (+) Curr Use (HS): | + | $0 | $0 |
| (+) Curr Use (NHS): | + | $0 | $0 |
| | | -------------------------- | |
| (=) Market Value: | = | $332,320 | |
| (–) Productivity Loss: | – | $0 | |
| | | -------------------------- | |
| (=) Subtotal: | = | $332,320 | |
| (+) Senior Appraised Value: | + | $0 | |
| (+) Non-Senior Appraised Value: | + | $332,320 | |
| | | -------------------------- | |
| (=) Total Appraised Value: | = | $332,320 | |
| (–) Senior Exemption Loss: | – | $0 | |
| (–) Exemption Loss: | – | $0 | |
| | | -------------------------- | |
| (=) Taxable Value: | = | $332,320 | |
Taxing Jurisdiction
| Owner: | WEST MATTHEW & CHRISTINE | | |
| % Ownership: | 100.0000000000% | | |
| Total Value: | $332,320 | | |
| Tax Area: | 1 - OL-140-F |
| CERFD | CURRENT EXPENSE REFUND 010 | 0.0000000000 | $332,320 | $332,320 | $0.00 | | |
| CURREXP | CURRENT EXPENSE 010 | 1.0175366760 | $332,320 | $332,320 | $338.15 | | |
| HUMNSERV | HUMAN SERVICES 119 | 0.0250000000 | $332,320 | $332,320 | $8.31 | | |
| SLDREL | SOLDIERS RELIEF 121 | 0.0155990005 | $332,320 | $332,320 | $5.18 | | |
| EMERGSER | EMS 147 | 0.3792580840 | $332,320 | $332,320 | $126.04 | | |
| EMSRFD | EMS REFUND 147 | 0.0000000000 | $332,320 | $332,320 | $0.00 | | |
| PORTRFD | PORT REFUND 640 | 0.0000000000 | $332,320 | $332,320 | $0.00 | | |
| PORTWWGEN | PORT OF WW 640 | 0.2460186015 | $332,320 | $332,320 | $81.76 | | |
| SD140BOND | SD #140 BOND 764 | 0.8342371393 | $332,320 | $332,320 | $277.23 | | |
| SD140GEN | SD #140 GENERAL 760 | 2.0646500647 | $332,320 | $332,320 | $686.12 | | |
| ST2 | STATE SCHOOL PART 2 600 | 0.8131451643 | $332,320 | $332,320 | $270.22 | | |
| STATESCHL | STATE SCHOOL 600 | 1.5158548041 | $332,320 | $332,320 | $503.75 | | |
| STREFUND | STATE REFUND LEVY 603 | 0.0000000000 | $332,320 | $332,320 | $0.00 | | |
| CWWBOND | C OF WW BOND 643 | 0.2760494372 | $332,320 | $332,320 | $91.74 | | |
| CWWGEN | CITY OF WW 631 | 1.6100204973 | $332,320 | $332,320 | $535.04 | | |
| CWWRFD | CITY OF WALLA WALLA REFUND 631 | 0.0000000000 | $332,320 | $332,320 | $0.00 | | |
| | Total Tax Rate: | 8.7973694689 | | | | | |
| | | | | Taxes w/Current Exemptions: | $2,923.54 | | |
| | | | | Taxes w/o Exemptions: | $2,923.54 | | |
Improvement / Building
| Improvement #1: | RESIDENTIAL | State Code: | 11 | 854.0 sqft | Value: | $312,320 |
| Exterior Wall: | METAL/STEEL | Heating/Cooling: | FORCED AIR | | Number of Bathrooms: | 2 | Number of Bedrooms: | 2 | | Plumbing: | 9 | Roof Covering: | COMP SHINGLE |
|
| | Type | Description | Class CD | Sub Class CD | Year Built | Area |
| | MA | Main Area | 1 | 30 | 1937 | 854.0 |
| | SI1 | SITE IMPROVEMENT | 1 | 30 | 1937 | 3.0 |
| | BASE | BASEMENT | 1 | 30 | 1937 | 854.0 |
| | BPF | BASEMENT -PARTITIONED FINISH | 1 | 30 | 2020 | 504.0 |
| | RPS | PORCH W/STEPS,ROOF | 1 | 30 | 1937 | 20.0 |
| | S1F | Single One Story Fireplace | 1 | 30 | 1937 | 1.0 |
| | RPS | PORCH W/STEPS,ROOF | 1 | 30 | 1937 | 20.0 |
| | STG1 | Sub Terrain Garage Single | 1 | 30 | 1937 | 1.0 |
| | WDR | WOOD DECK W/ROOF | 1 | 30 | 2019 | 20.0 |
Sketch
Property Image
Land
| 1 | RES 1 | Converted: Residential | 0.0735 | 3200.00 | 0.00 | 0.00 | 1.00 | $20,000 | $0 |
Roll Value History
| 2026 | N/A | N/A | N/A | N/A | N/A |
| 2025 | $450,830 | $32,000 | $0 | $482,830 | $482,830 |
| 2024 | $429,360 | $32,000 | $0 | $461,360 | $461,360 |
| 2023 | $312,320 | $20,000 | $0 | $332,320 | $332,320 |
| 2022 | $271,580 | $20,000 | $0 | $291,580 | $291,580 |
| 2021 | $175,210 | $20,000 | $0 | $195,210 | $195,210 |
| 2020 | $95,650 | $20,000 | $0 | $115,650 | $115,650 |
| 2019 | $94,310 | $20,000 | $0 | $114,310 | $114,310 |
| 2018 | $89,820 | $20,000 | $0 | $109,820 | $109,820 |
| 2017 | $97,020 | $12,800 | $0 | $109,820 | $109,820 |
| 2016 | $88,200 | $12,800 | $0 | $101,000 | $101,000 |
| 2015 | $88,200 | $12,800 | $0 | $101,000 | $101,000 |
| 2014 | $88,200 | $12,800 | $0 | $101,000 | $101,000 |
| 2013 | $88,200 | $12,800 | $0 | $101,000 | $101,000 |
| 2012 | $88,200 | $12,800 | $0 | $0 | $0 |
| 2011 | $88,200 | $12,800 | $0 | $0 | $0 |
| 2010 | $75,000 | $12,800 | $0 | $0 | $0 |
| 2009 | $84,700 | $12,800 | $0 | $0 | $0 |
| 2008 | $68,400 | $9,600 | $0 | $0 | $0 |
| 2007 | $68,400 | $9,600 | $0 | $0 | $0 |
Deed and Sales History
| 1 | 08/22/2024 | QCD | QUIT CLAIM DEED | EACKER-RUDE FRANCIS A | KEILER FREDERICK D | | | | 148072 | 2024-04699 |
| 2 | 08/22/2024 | SWD | STATUTORY WARRANTY DEED | WEST MATTHEW & CHRISTINE | EACKER-RUDE FRANCIS A | | | $520,000.00 | 148071 | 2024-04698 |
| 3 | 07/31/2014 | SWD | STATUTORY WARRANTY DEED | MACKLER LARRY | WEST MATTHEW & CHRISTINE | | | $81,000.00 | 126355 | 2014-05440 |
| 4 | 01/01/1943 | WARRANTY D | WARRANTY DEED | | | | | $0.00 | 0 | 2132-755000 |
Payout Agreement
| No payout information available.. |