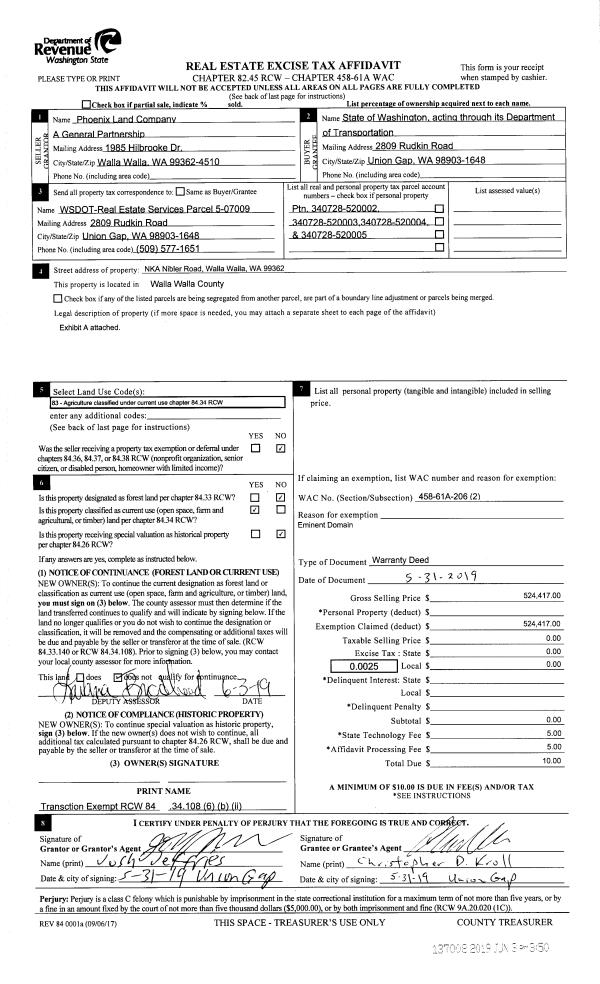
Property
Account |
| Property ID: | 27812 | Abbreviated Legal Description: | SOUTHVIEW ESTATES #2 PHASE 2 LOT 6 BLK 2 |
| Parcel Number: | 360732730206 | Agent Code: | |
| Type: | Real | | |
| Tax Area: | 5 - OL-140 | Land Use Code | 11 |
| Open Space: | N | DFL | N |
| Historic Property: | N | Remodel Property: | N |
| Multi-Family Redevelopment: | N | | |
| Township: | 7 | Section: | 32 |
| Range: | 36 |
Location |
| Address: | 1001 SOUTHVIEW DR WA 99362 | Mapsco: | |
| Neighborhood: | VG- Res Rural/City Inf | Map ID: | |
| Neighborhood CD: | 115112 |
Owner |
| Name: | REED DENNIS & SHARON | Owner ID: | 65180 |
| Mailing Address: | 1001 SOUTHVIEW DR WALLA WALLA, WA 99362 | % Ownership: | 100.0000000000% |
| | | Exemptions: | |
Taxes and Assessment Details
Property Tax Information as of
02/21/2026
Click on "Statement Details" to expand or collapse a tax statement.
* Please enter a valid date ** Please enter a valid date *
Statement Details |
| | TOTAL: | $0.00 | $0.00 | $0.00 | $0.00 | $0.00 | $0.00 |
|
| | $0.00 | $0.00 | $0.00 | $0.00 | $0.00 | $0.00 |
Values
| (+) Improvement Homesite Value: | + | $0 | |
| (+) Improvement Non-Homesite Value: | + | $495,130 | |
| (+) Land Homesite Value: | + | $0 | |
| (+) Land Non-Homesite Value: | + | $90,000 | |
| (+) Curr Use (HS): | + | $0 | $0 |
| (+) Curr Use (NHS): | + | $0 | $0 |
| | | -------------------------- | |
| (=) Market Value: | = | $585,130 | |
| (–) Productivity Loss: | – | $0 | |
| | | -------------------------- | |
| (=) Subtotal: | = | $585,130 | |
| (+) Senior Appraised Value: | + | $0 | |
| (+) Non-Senior Appraised Value: | + | $585,130 | |
| | | -------------------------- | |
| (=) Total Appraised Value: | = | $585,130 | |
| (–) Senior Exemption Loss: | – | $0 | |
| (–) Exemption Loss: | – | $0 | |
| | | -------------------------- | |
| (=) Taxable Value: | = | $585,130 | |
Taxing Jurisdiction
| Owner: | REED DENNIS & SHARON | | |
| % Ownership: | 100.0000000000% | | |
| Total Value: | $585,130 | | |
| Tax Area: | 5 - OL-140 |
| CERFD | CURRENT EXPENSE REFUND 010 | 0.0000000000 | $585,130 | $585,130 | $0.00 | | |
| CURREXP | CURRENT EXPENSE 010 | 1.0175366760 | $585,130 | $585,130 | $595.39 | | |
| HUMNSERV | HUMAN SERVICES 119 | 0.0250000000 | $585,130 | $585,130 | $14.63 | | |
| SLDREL | SOLDIERS RELIEF 121 | 0.0155990005 | $585,130 | $585,130 | $9.13 | | |
| EMERGSER | EMS 147 | 0.3792580840 | $585,130 | $585,130 | $221.92 | | |
| EMSRFD | EMS REFUND 147 | 0.0000000000 | $585,130 | $585,130 | $0.00 | | |
| PORTRFD | PORT REFUND 640 | 0.0000000000 | $585,130 | $585,130 | $0.00 | | |
| PORTWWGEN | PORT OF WW 640 | 0.2460186015 | $585,130 | $585,130 | $143.95 | | |
| SD140BOND | SD #140 BOND 764 | 0.8342371393 | $585,130 | $585,130 | $488.14 | | |
| SD140GEN | SD #140 GENERAL 760 | 2.0646500647 | $585,130 | $585,130 | $1,208.09 | | |
| ST2 | STATE SCHOOL PART 2 600 | 0.8131451643 | $585,130 | $585,130 | $475.80 | | |
| STATESCHL | STATE SCHOOL 600 | 1.5158548041 | $585,130 | $585,130 | $886.97 | | |
| STREFUND | STATE REFUND LEVY 603 | 0.0000000000 | $585,130 | $585,130 | $0.00 | | |
| CWWBOND | C OF WW BOND 643 | 0.2760494372 | $585,130 | $585,130 | $161.52 | | |
| CWWGEN | CITY OF WW 631 | 1.6100204973 | $585,130 | $585,130 | $942.07 | | |
| CWWRFD | CITY OF WALLA WALLA REFUND 631 | 0.0000000000 | $585,130 | $585,130 | $0.00 | | |
| | Total Tax Rate: | 8.7973694689 | | | | | |
| | | | | Taxes w/Current Exemptions: | $5,147.61 | | |
| | | | | Taxes w/o Exemptions: | $5,147.61 | | |
Improvement / Building
| Improvement #1: | RESIDENTIAL | State Code: | 11 | 1914.0 sqft | Value: | $495,130 |
| Exterior Wall: | HARDBOARD | Heating/Cooling: | WARM & COOLED AIR | | Number of Bathrooms: | 3 | Number of Bedrooms: | 3 | | Plumbing: | 14 | Roof Covering: | COMP SHINGLE |
|
| | Type | Description | Class CD | Sub Class CD | Year Built | Area |
| | MA | Main Area | 1 | 40 | 1991 | 1914.0 |
| | ATG | Attached Garage | 1 | 40 | 1991 | 1176.0 |
| | RPC | OPEN PORCH W/ROOF , CEILED | 1 | 40 | 1991 | 42.0 |
| | SI1 | SITE IMPROVEMENT | 1 | 40 | 1991 | 4.0 |
| | BASE | BASEMENT | 1 | 40 | 1991 | 1914.0 |
| | BPF | BASEMENT -PARTITIONED FINISH | 1 | 40 | 1991 | 1300.0 |
| | GFP | GAS FIREPLACE | 1 | 40 | 1991 | 1.0 |
| | WOD | Wood Deck | 1 | 40 | 1991 | 218.0 |
Sketch
Property Image
Land
| 1 | RES 1 | Converted: Residential | 0.2770 | 12065.00 | 0.00 | 0.00 | 1.00 | $90,000 | $0 |
Roll Value History
| 2026 | N/A | N/A | N/A | N/A | N/A |
| 2025 | $420,860 | $150,000 | $0 | $570,860 | $570,860 |
| 2024 | $420,860 | $90,000 | $0 | $510,860 | $510,860 |
| 2023 | $495,130 | $90,000 | $0 | $585,130 | $585,130 |
| 2022 | $396,100 | $90,000 | $0 | $486,100 | $486,100 |
| 2021 | $360,090 | $90,000 | $0 | $450,090 | $450,090 |
| 2020 | $257,210 | $90,000 | $0 | $347,210 | $347,210 |
| 2019 | $272,210 | $75,000 | $0 | $347,210 | $347,210 |
| 2018 | $272,210 | $75,000 | $0 | $347,210 | $347,210 |
| 2017 | $226,840 | $75,000 | $0 | $301,840 | $301,840 |
| 2016 | $216,040 | $75,000 | $0 | $291,040 | $291,040 |
| 2015 | $196,400 | $75,000 | $0 | $271,400 | $271,400 |
| 2014 | $196,400 | $75,000 | $0 | $271,400 | $271,400 |
| 2013 | $196,400 | $75,000 | $0 | $271,400 | $271,400 |
| 2012 | $226,500 | $75,000 | $0 | $0 | $0 |
| 2011 | $226,500 | $75,000 | $0 | $0 | $0 |
| 2010 | $226,500 | $75,000 | $0 | $0 | $0 |
| 2009 | $226,500 | $75,000 | $0 | $0 | $0 |
| 2008 | $198,500 | $40,000 | $0 | $0 | $0 |
| 2007 | $198,500 | $40,000 | $0 | $0 | $0 |
Deed and Sales History
| 1 | 05/29/2019 | SWD | STATUTORY WARRANTY DEED | CASSETTO JON M & KIMBERLY S | REED DENNIS & SHARON | | | $433,800.00 | 136957 | 2019-03633 |
| 2 | 11/17/2009 | WARRANTY D | WARRANTY DEED | TUCKER, LORETTA | CASSETTO, JON M & KIMBERLY S | | | $325,000.00 | 117682 | 2009-11307 |
| 3 | 12/08/2008 | WARRANTY D | WARRANTY DEED | TUCKER, MATHEW | TUCKER, LORETTA | | | | 0 | CC #06-3-00140-5 |
| 4 | 04/11/1997 | WARRANTY D | WARRANTY DEED | | | | | $200,000.00 | 87973 | 2509-703181 |
Payout Agreement
| No payout information available.. |