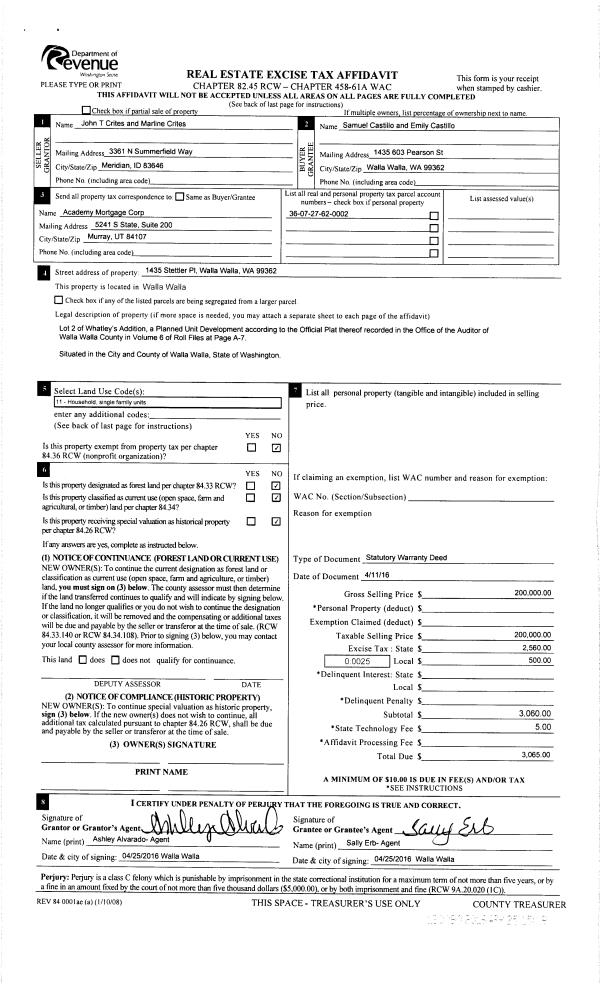
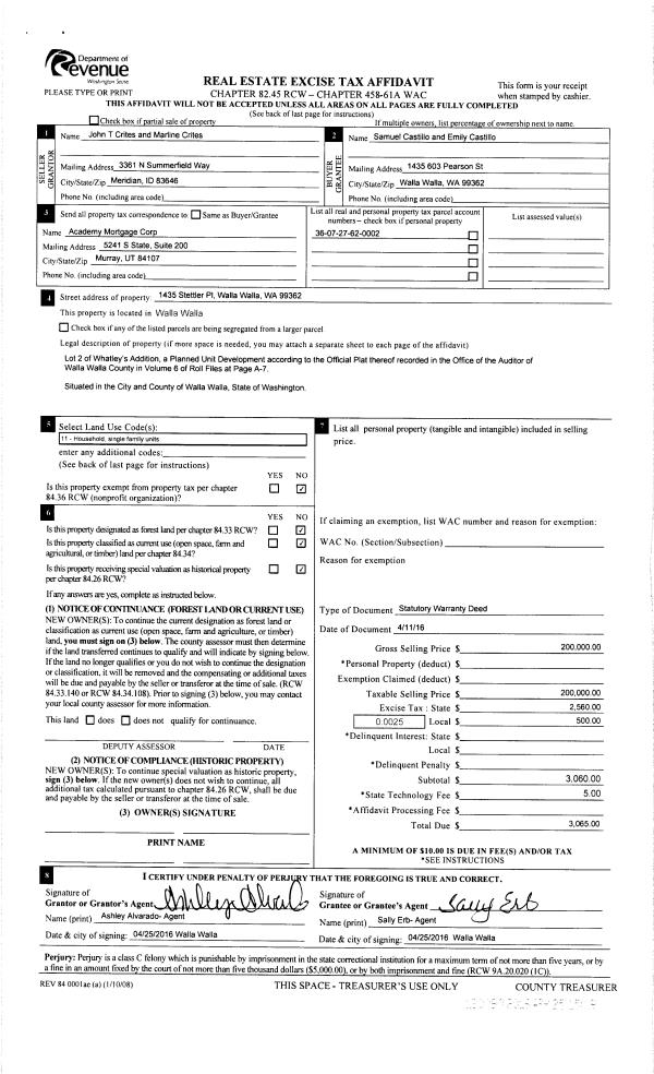
Property
Account |
| Property ID: | 27809 | Abbreviated Legal Description: | WHATLEY ADDN LOT 2 |
| Parcel Number: | 360727620002 | Agent Code: | |
| Type: | Real | | |
| Tax Area: | 105 - 140-F-4 | Land Use Code | 11 |
| Open Space: | N | DFL | N |
| Historic Property: | N | Remodel Property: | N |
| Multi-Family Redevelopment: | N | | |
| Township: | 7 | Section: | 27 |
| Range: | 36 |
Location |
| Address: | 1435 STETTLER PL WA 99362 | Mapsco: | |
| Neighborhood: | G Res | Map ID: | |
| Neighborhood CD: | 614011 |
Owner |
| Name: | CASTILLO SAMUEL & EMILY | Owner ID: | 58660 |
| Mailing Address: | 603 PEARSON ST WALLA WALLA, WA 99362 | % Ownership: | 100.0000000000% |
| | | Exemptions: | |
Taxes and Assessment Details
Property Tax Information as of
02/21/2026
Click on "Statement Details" to expand or collapse a tax statement.
* Please enter a valid date ** Please enter a valid date *
Statement Details |
| | TOTAL: | $0.00 | $0.00 | $0.00 | $0.00 | $0.00 | $0.00 |
|
| | $0.00 | $0.00 | $0.00 | $0.00 | $0.00 | $0.00 |
Values
| (+) Improvement Homesite Value: | + | $0 | |
| (+) Improvement Non-Homesite Value: | + | $297,730 | |
| (+) Land Homesite Value: | + | $0 | |
| (+) Land Non-Homesite Value: | + | $85,000 | |
| (+) Curr Use (HS): | + | $0 | $0 |
| (+) Curr Use (NHS): | + | $0 | $0 |
| | | -------------------------- | |
| (=) Market Value: | = | $382,730 | |
| (–) Productivity Loss: | – | $0 | |
| | | -------------------------- | |
| (=) Subtotal: | = | $382,730 | |
| (+) Senior Appraised Value: | + | $0 | |
| (+) Non-Senior Appraised Value: | + | $382,730 | |
| | | -------------------------- | |
| (=) Total Appraised Value: | = | $382,730 | |
| (–) Senior Exemption Loss: | – | $0 | |
| (–) Exemption Loss: | – | $0 | |
| | | -------------------------- | |
| (=) Taxable Value: | = | $382,730 | |
Taxing Jurisdiction
| Owner: | CASTILLO SAMUEL & EMILY | | |
| % Ownership: | 100.0000000000% | | |
| Total Value: | $382,730 | | |
| Tax Area: | 105 - 140-F-4 |
| CERFD | CURRENT EXPENSE REFUND 010 | 0.0000000000 | $382,730 | $382,730 | $0.00 | | |
| CURREXP | CURRENT EXPENSE 010 | 1.0175366760 | $382,730 | $382,730 | $389.44 | | |
| HUMNSERV | HUMAN SERVICES 119 | 0.0250000000 | $382,730 | $382,730 | $9.57 | | |
| SLDREL | SOLDIERS RELIEF 121 | 0.0155990005 | $382,730 | $382,730 | $5.97 | | |
| EMERGSER | EMS 147 | 0.3792580840 | $382,730 | $382,730 | $145.15 | | |
| EMSRFD | EMS REFUND 147 | 0.0000000000 | $382,730 | $382,730 | $0.00 | | |
| FD4EXP | FD #4 EXPENSE 686 | 0.8836993059 | $382,730 | $382,730 | $338.22 | | |
| RLBRFD | RURAL LIBRARY REFUND 623 | 0.0000000000 | $382,730 | $382,730 | $0.00 | | |
| RURALLIB | RURAL LIBRARY 623 | 0.3710609029 | $382,730 | $382,730 | $142.02 | | |
| PORTRFD | PORT REFUND 640 | 0.0000000000 | $382,730 | $382,730 | $0.00 | | |
| PORTWWGEN | PORT OF WW 640 | 0.2460186015 | $382,730 | $382,730 | $94.16 | | |
| SD140BOND | SD #140 BOND 764 | 0.8342371393 | $382,730 | $382,730 | $319.29 | | |
| SD140GEN | SD #140 GENERAL 760 | 2.0646500647 | $382,730 | $382,730 | $790.20 | | |
| ST2 | STATE SCHOOL PART 2 600 | 0.8131451643 | $382,730 | $382,730 | $311.22 | | |
| STATESCHL | STATE SCHOOL 600 | 1.5158548041 | $382,730 | $382,730 | $580.16 | | |
| STREFUND | STATE REFUND LEVY 603 | 0.0000000000 | $382,730 | $382,730 | $0.00 | | |
| COROAD | COUNTY ROAD 115 | 1.6549953990 | $382,730 | $382,730 | $633.42 | | |
| CRPRD | COUNTY ROAD REFUND 115 | 0.0000000000 | $382,730 | $382,730 | $0.00 | | |
| | Total Tax Rate: | 9.8210551422 | | | | | |
| | | | | Taxes w/Current Exemptions: | $3,758.82 | | |
| | | | | Taxes w/o Exemptions: | $3,758.82 | | |
Improvement / Building
| Improvement #1: | RESIDENTIAL | State Code: | 11 | 1455.0 sqft | Value: | $297,730 |
| Exterior Wall: | PLYWOOD | Heating/Cooling: | WARM & COOLED AIR | | Number of Bathrooms: | 2 | Number of Bedrooms: | 3 | | Plumbing: | 10 | Roof Covering: | COMP SHINGLE |
|
| | Type | Description | Class CD | Sub Class CD | Year Built | Area |
| | MA | Main Area | 1 | 30 | 1995 | 1455.0 |
| | SI1 | SITE IMPROVEMENT | 1 | 30 | 1995 | 2.0 |
| | GFP | GAS FIREPLACE | 1 | 30 | 1995 | 1.0 |
| | RPO | OPEN PORCH W/ROOF | 1 | 30 | 1995 | 20.0 |
| | WOD | Wood Deck | 1 | 30 | 1995 | 200.0 |
| | ATG | Attached Garage | 1 | 30 | 1995 | 441.0 |
Sketch
Property Image
Land
| 1 | RES 1 | Converted: Residential | 0.2090 | 9102.00 | 0.00 | 0.00 | 1.00 | $85,000 | $0 |
Roll Value History
| 2026 | N/A | N/A | N/A | N/A | N/A |
| 2025 | $253,330 | $130,000 | $0 | $383,330 | $383,330 |
| 2024 | $297,730 | $85,000 | $0 | $382,730 | $382,730 |
| 2023 | $297,730 | $85,000 | $0 | $382,730 | $382,730 |
| 2022 | $283,550 | $75,000 | $0 | $358,550 | $358,550 |
| 2021 | $226,840 | $75,000 | $0 | $301,840 | $301,840 |
| 2020 | $162,030 | $75,000 | $0 | $237,030 | $237,030 |
| 2019 | $162,030 | $75,000 | $0 | $237,030 | $237,030 |
| 2018 | $157,780 | $55,000 | $0 | $212,780 | $212,780 |
| 2017 | $143,440 | $55,000 | $0 | $198,440 | $198,440 |
| 2016 | $143,440 | $55,000 | $0 | $198,440 | $198,440 |
| 2015 | $143,440 | $55,000 | $0 | $198,440 | $198,440 |
| 2014 | $130,400 | $55,000 | $0 | $185,400 | $185,400 |
| 2013 | $130,400 | $55,000 | $0 | $185,400 | $185,400 |
| 2012 | $121,600 | $55,000 | $0 | $0 | $0 |
| 2011 | $121,600 | $55,000 | $0 | $0 | $0 |
| 2010 | $141,200 | $55,000 | $0 | $0 | $0 |
| 2009 | $163,600 | $55,000 | $0 | $0 | $0 |
| 2008 | $163,600 | $55,000 | $0 | $0 | $0 |
| 2007 | $124,600 | $25,000 | $0 | $0 | $0 |
Deed and Sales History
| 1 | 04/25/2016 | SWD | STATUTORY WARRANTY DEED | CRITES JOHN T & MARLINE | CASTILLO SAMUEL & EMILY | | | $200,000.00 | 130090 | 2016-03045 |
| 2 | 11/19/2009 | WARRANTY D | WARRANTY DEED | WOLFE, W RICHARD ESTATE OF | CRITES, JOHN T & MARLINE | | | $182,000.00 | 117697 | 2009-11379 |
| 3 | 08/15/1995 | WARRANTY D | WARRANTY DEED | | | | | $29,000.00 | 84553 | 2329-507686 |
Payout Agreement
| No payout information available.. |