Property
Account |
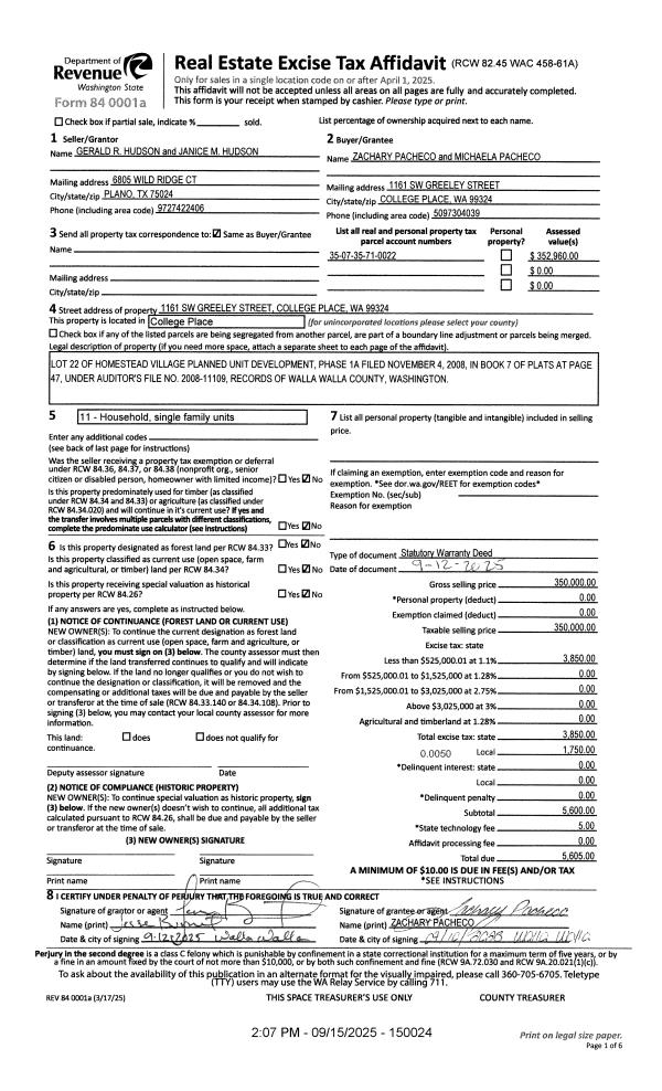
| Property ID: | 27800 | Abbreviated Legal Description: | HOMESTEAD VILLAGE P.U.D. PHASE 1A LOT 22 |
| Parcel Number: | 350735710022 | Agent Code: | |
| Type: | Real | | |
| Tax Area: | 74 - CP-250-FB | Land Use Code | 11 |
| Open Space: | N | DFL | N |
| Historic Property: | N | Remodel Property: | N |
| Multi-Family Redevelopment: | N | | |
| Township: | 7 | Section: | 35 |
| Range: | 35 |
Location |
| Address: | 1161 SW GREELEY ST WA 99324 | Mapsco: | |
| Neighborhood: | A SFR | Map ID: | |
| Neighborhood CD: | 113011 |
Owner |
| Name: | HUDSON GERALD R & JANICE M | Owner ID: | 67367 |
| Mailing Address: | 6805 WILD RIDGE CT PLANO, TX 75024 | % Ownership: | 100.0000000000% |
| | | Exemptions: | |
Taxes and Assessment Details
Values
| (+) Improvement Homesite Value: | + | $0 | |
| (+) Improvement Non-Homesite Value: | + | $287,830 | |
| (+) Land Homesite Value: | + | $0 | |
| (+) Land Non-Homesite Value: | + | $55,000 | |
| (+) Curr Use (HS): | + | $0 | $0 |
| (+) Curr Use (NHS): | + | $0 | $0 |
| | | -------------------------- | |
| (=) Market Value: | = | $342,830 | |
| (–) Productivity Loss: | – | $0 | |
| | | -------------------------- | |
| (=) Subtotal: | = | $342,830 | |
| (+) Senior Appraised Value: | + | $0 | |
| (+) Non-Senior Appraised Value: | + | $342,830 | |
| | | -------------------------- | |
| (=) Total Appraised Value: | = | $342,830 | |
| (–) Senior Exemption Loss: | – | $0 | |
| (–) Exemption Loss: | – | $0 | |
| | | -------------------------- | |
| (=) Taxable Value: | = | $342,830 | |
Taxing Jurisdiction
| Owner: | HUDSON GERALD R & JANICE M | | |
| % Ownership: | 100.0000000000% | | |
| Total Value: | $342,830 | | |
| Tax Area: | 74 - CP-250-FB |
| CERFD | CURRENT EXPENSE REFUND 010 | 0.0000000000 | $342,830 | $342,830 | $0.00 | | |
| CURREXP | CURRENT EXPENSE 010 | 1.0175366760 | $342,830 | $342,830 | $348.84 | | |
| HUMNSERV | HUMAN SERVICES 119 | 0.0250000000 | $342,830 | $342,830 | $8.57 | | |
| SLDREL | SOLDIERS RELIEF 121 | 0.0155990005 | $342,830 | $342,830 | $5.35 | | |
| COLLPLBOND | C OF CP BOND 644 | 0.4374241808 | $342,830 | $342,830 | $149.96 | | |
| COLLPLGEN | CITY OF CP 632 | 1.4453819216 | $342,830 | $342,830 | $495.52 | | |
| EMERGSER | EMS 147 | 0.3792580840 | $342,830 | $342,830 | $130.02 | | |
| EMSRFD | EMS REFUND 147 | 0.0000000000 | $342,830 | $342,830 | $0.00 | | |
| RURALLIB | RURAL LIBRARY 623 | 0.3710609029 | $342,830 | $342,830 | $127.21 | | |
| PORTRFD | PORT REFUND 640 | 0.0000000000 | $342,830 | $342,830 | $0.00 | | |
| PORTWWGEN | PORT OF WW 640 | 0.2460186015 | $342,830 | $342,830 | $84.34 | | |
| SD250BOND | SD #250 BOND 773 | 1.4560608159 | $342,830 | $342,830 | $499.18 | | |
| SD250GEN | SD #250 GENERAL 770 | 2.3880724087 | $342,830 | $342,830 | $818.70 | | |
| ST2 | STATE SCHOOL PART 2 600 | 0.8131451643 | $342,830 | $342,830 | $278.77 | | |
| STATESCHL | STATE SCHOOL 600 | 1.5158548041 | $342,830 | $342,830 | $519.68 | | |
| STREFUND | STATE REFUND LEVY 603 | 0.0000000000 | $342,830 | $342,830 | $0.00 | | |
| | Total Tax Rate: | 10.1104125603 | | | | | |
| | | | | Taxes w/Current Exemptions: | $3,466.14 | | |
| | | | | Taxes w/o Exemptions: | $3,466.14 | | |
Improvement / Building
| Improvement #1: | RESIDENTIAL | State Code: | 11 | 1244.0 sqft | Value: | $287,830 |
| Exterior Wall: | HARDBOARD | Heating/Cooling: | WARM & COOLED AIR | | Number of Bathrooms: | 2 | Number of Bedrooms: | 3 | | Plumbing: | 10 | Roof Covering: | COMP SHINGLE |
|
| | Type | Description | Class CD | Sub Class CD | Year Built | Area |
| | MA | Main Area | 1 | 30 | 2009 | 1244.0 |
| | SI1 | SITE IMPROVEMENT | 1 | 30 | 2009 | 1.5 |
| | ATG | Attached Garage | 1 | 30 | 2009 | 400.0 |
| | GFP | GAS FIREPLACE | 1 | 30 | 2009 | 1.0 |
| | RPO | OPEN PORCH W/ROOF | 1 | 30 | 2009 | 20.0 |
Sketch
Property Image
Land
| 1 | RES 1 | Converted: Residential | 0.1033 | 4500.00 | 0.00 | 0.00 | 1.00 | $55,000 | $0 |
Roll Value History
| 2026 | N/A | N/A | N/A | N/A | N/A |
| 2025 | $227,960 | $125,000 | $0 | $352,960 | $352,960 |
| 2024 | $316,610 | $55,000 | $0 | $371,610 | $371,610 |
| 2023 | $287,830 | $55,000 | $0 | $342,830 | $342,830 |
| 2022 | $261,660 | $55,000 | $0 | $316,660 | $316,660 |
| 2021 | $206,030 | $55,000 | $0 | $261,030 | $261,030 |
| 2020 | $179,160 | $55,000 | $0 | $234,160 | $234,160 |
| 2019 | $207,160 | $27,000 | $0 | $234,160 | $234,160 |
| 2018 | $159,360 | $27,000 | $0 | $186,360 | $186,360 |
| 2017 | $151,770 | $27,000 | $0 | $178,770 | $178,770 |
| 2016 | $144,540 | $27,000 | $0 | $171,540 | $171,540 |
| 2015 | $144,540 | $27,000 | $0 | $171,540 | $171,540 |
| 2014 | $131,400 | $27,000 | $0 | $158,400 | $158,400 |
| 2013 | $131,400 | $27,000 | $0 | $158,400 | $158,400 |
| 2012 | $131,400 | $27,000 | $0 | $0 | $0 |
| 2011 | $131,400 | $27,000 | $0 | $0 | $0 |
| 2010 | $0 | $27,000 | $0 | $0 | $0 |
| 2009 | $0 | $5,000 | $0 | $0 | $0 |
| 2008 | $131,400 | $27,000 | $0 | $0 | $0 |
Deed and Sales History
| 1 | 09/15/2025 | SWD | STATUTORY WARRANTY DEED | HUDSON GERALD R & JANICE M | PACHECO ZACHARY & MICHAELA | | | $350,000.00 | 150024 | 2025-05579 |
| 2 | 06/19/2020 | SWD | STATUTORY WARRANTY DEED | MEYER ZACHARY & KAILEE | HUDSON GERALD R & JANICE M | | | $259,500.00 | 139322 | 2020-05671 |
| 3 | 03/20/2015 | SWD | STATUTORY WARRANTY DEED | HAMADA ANDREW K & EMILY O | MEYER ZACHARY & KAILEE | | | $174,900.00 | 127633 | 2015-02323 |
| 4 | 11/25/2009 | WARRANTY D | WARRANTY DEED | HAYDEN HOMES LLC | HAMADA, ANDREW K & EMILY O | | | $166,560.00 | 117726 | 2009-11525 |
| 5 | 11/14/2008 | QCD | QUIT CLAIM DEED | HAYDEN ENTERPRISES INC | HAYDEN HOMES LLC | | | | 115964 | 2008-11380 |
Payout Agreement
| No payout information available.. |