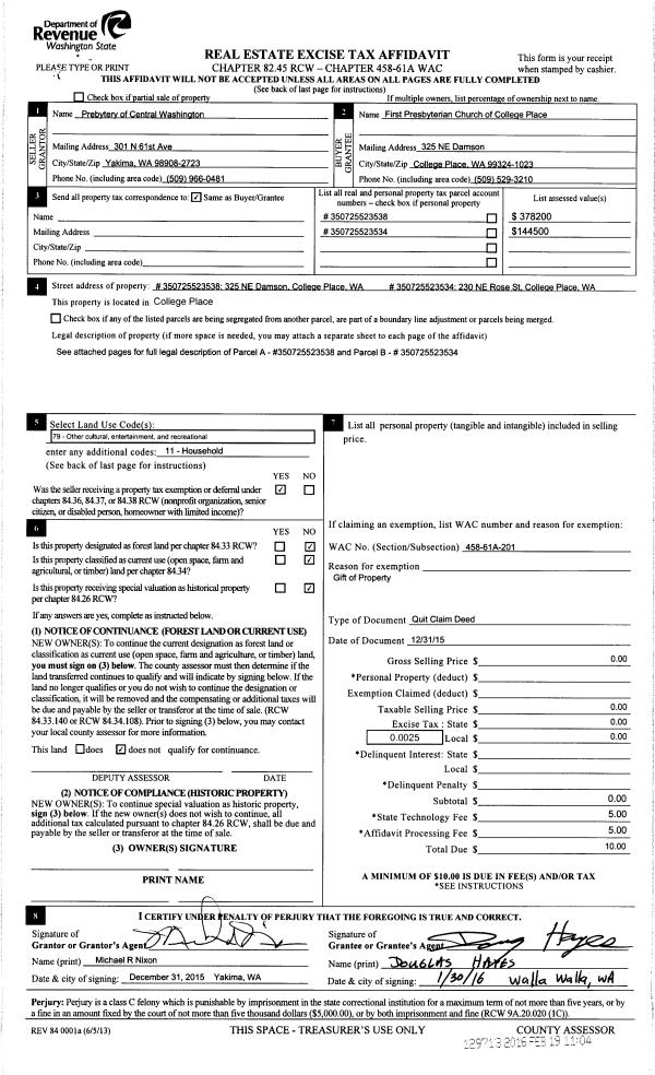
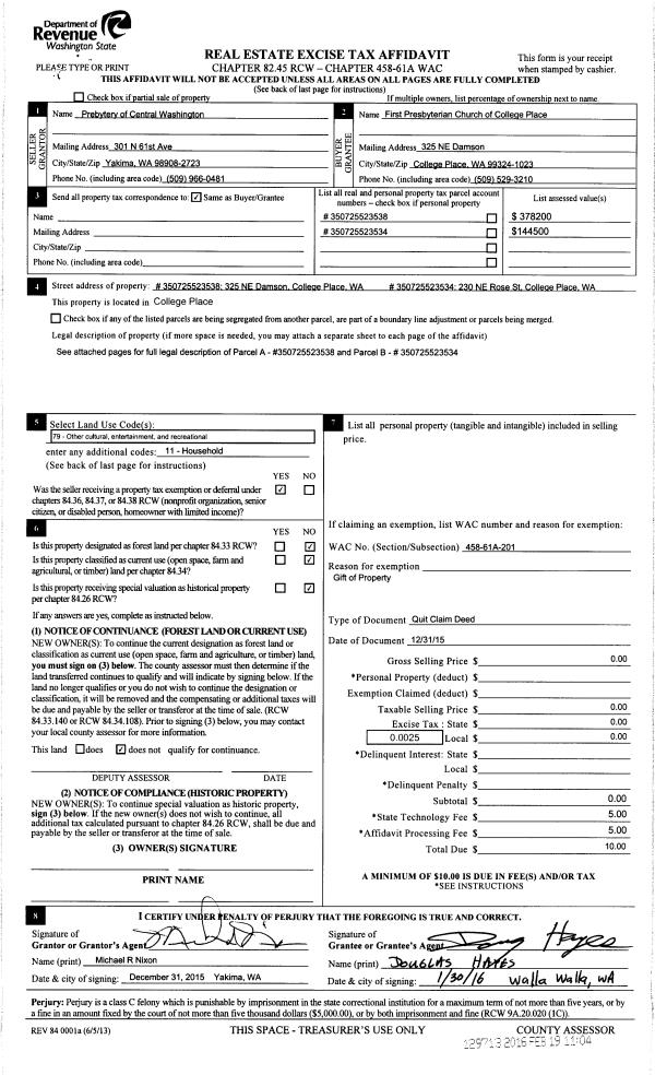
| 1 | 01/30/2016 | QCD | QUIT CLAIM DEED | COLLEGE PLACE PRESBYTERIAN CHURCH | FIRST PRESBYTERIAN CHURCH OF COLLEGE PLACE | | | $0.00 | 129713 | 2016-01244 |
| 2 | 09/25/2007 | WARRANTY D | WARRANTY DEED | WASSER, PHILIP C & S REID | PANTALEON, ALBERTO O & TAMERA | | | | 90347 | 2007-11223 |
| 3 | 08/21/2007 | WARRANTY D | WARRANTY DEED | PANTALEON, ALBERTO O & ALMA | COLLEGE PLACE PRESBYTERIAN CHU | | | $150,000.00 | 113550 | 2007-09808 |
| 4 | 03/03/2005 | WARRANTY D | WARRANTY DEED | AABY, BRUCE, OGDEN, AMELIA | WASSER, PHILIP C & S REID | | | | 106917 | 2005-02483 |
| 5 | 05/22/1998 | WARRANTY D | WARRANTY DEED | | | | | $83,000.00 | 90347 | 2679-805655 |