Property
Account |
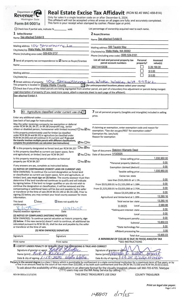
| Property ID: | 27740 | Abbreviated Legal Description: | 14-7-36 NE1/4SE1/4 GENERALLY LY SLY OF MILL CR RD & NLY OF WOODRESERVE LINE LESS PARCEL 44 IN WLY PART OF NE1/4SE1/4, LESS RD(KNOWN AS THE 29.63 AC TRACT ON SURVEY 2009-04730) |
| Parcel Number: | 360714410038 | Agent Code: | |
| Type: | Real | | |
| Tax Area: | 105 - 140-F-4 | Land Use Code | 83 |
| Open Space: | Y | DFL | N |
| Historic Property: | N | Remodel Property: | N |
| Multi-Family Redevelopment: | N | | |
| Township: | 7 | Section: | 14 |
| Range: | 36 |
Location |
| Address: | 102 STRAWBERRY LN WA 99362 | Mapsco: | |
| Neighborhood: | 0 Farm | Map ID: | |
| Neighborhood CD: | 4240 |
Owner |
| Name: | KLICKER NANCY L ET AL ESTATE OF | Owner ID: | 72976 |
| Mailing Address: | % KIRK KLICKER 106 STRAWBERRY LN WALLA WALLA, WA 99362 | % Ownership: | 100.0000000000% |
| | | Exemptions: | |
Taxes and Assessment Details
Values
| (+) Improvement Homesite Value: | + | $0 | |
| (+) Improvement Non-Homesite Value: | + | $0 | |
| (+) Land Homesite Value: | + | $0 | |
| (+) Land Non-Homesite Value: | + | $0 | |
| (+) Curr Use (HS): | + | $0 | $0 |
| (+) Curr Use (NHS): | + | $135,850 | $28,060 |
| | | -------------------------- | |
| (=) Market Value: | = | $135,850 | |
| (–) Productivity Loss: | – | $107,790 | |
| | | -------------------------- | |
| (=) Subtotal: | = | $28,060 | |
| (+) Senior Appraised Value: | + | $0 | |
| (+) Non-Senior Appraised Value: | + | $28,060 | |
| | | -------------------------- | |
| (=) Total Appraised Value: | = | $28,060 | |
| (–) Senior Exemption Loss: | – | $0 | |
| (–) Exemption Loss: | – | $0 | |
| | | -------------------------- | |
| (=) Taxable Value: | = | $28,060 | |
Taxing Jurisdiction
| Owner: | KLICKER NANCY L ET AL ESTATE OF | | |
| % Ownership: | 100.0000000000% | | |
| Total Value: | $135,850 | | |
| Tax Area: | 105 - 140-F-4 |
| CERFD | CURRENT EXPENSE REFUND 010 | 0.0000000000 | $28,060 | $28,060 | $0.00 | | |
| CURREXP | CURRENT EXPENSE 010 | 1.0175366760 | $28,060 | $28,060 | $28.55 | | |
| HUMNSERV | HUMAN SERVICES 119 | 0.0250000000 | $28,060 | $28,060 | $0.70 | | |
| SLDREL | SOLDIERS RELIEF 121 | 0.0155990005 | $28,060 | $28,060 | $0.44 | | |
| EMERGSER | EMS 147 | 0.3792580840 | $28,060 | $28,060 | $10.64 | | |
| EMSRFD | EMS REFUND 147 | 0.0000000000 | $28,060 | $28,060 | $0.00 | | |
| FD4EXP | FD #4 EXPENSE 686 | 0.8836993059 | $28,060 | $28,060 | $24.80 | | |
| RLBRFD | RURAL LIBRARY REFUND 623 | 0.0000000000 | $28,060 | $28,060 | $0.00 | | |
| RURALLIB | RURAL LIBRARY 623 | 0.3710609029 | $28,060 | $28,060 | $10.41 | | |
| PORTRFD | PORT REFUND 640 | 0.0000000000 | $28,060 | $28,060 | $0.00 | | |
| PORTWWGEN | PORT OF WW 640 | 0.2460186015 | $28,060 | $28,060 | $6.90 | | |
| SD140BOND | SD #140 BOND 764 | 0.8342371393 | $28,060 | $28,060 | $23.41 | | |
| SD140GEN | SD #140 GENERAL 760 | 2.0646500647 | $28,060 | $28,060 | $57.93 | | |
| ST2 | STATE SCHOOL PART 2 600 | 0.8131451643 | $28,060 | $28,060 | $22.82 | | |
| STATESCHL | STATE SCHOOL 600 | 1.5158548041 | $28,060 | $28,060 | $42.53 | | |
| STREFUND | STATE REFUND LEVY 603 | 0.0000000000 | $28,060 | $28,060 | $0.00 | | |
| COROAD | COUNTY ROAD 115 | 1.6549953990 | $28,060 | $28,060 | $46.44 | | |
| CRPRD | COUNTY ROAD REFUND 115 | 0.0000000000 | $28,060 | $28,060 | $0.00 | | |
| | Total Tax Rate: | 9.8210551422 | | | | | |
| | | | | Taxes w/Current Exemptions: | $275.57 | | |
| | | | | Taxes w/o Exemptions: | $275.57 | | |
Improvement / Building
Sketch
| No sketches available for this property. |
Property Image
Land
| 1 | WASTE | Waste | 7.3600 | 0.00 | 0.00 | 0.00 | 1.00 | $0 | $0 |
| 2 | C1-I | Class 1 Irrigated | 22.2700 | 0.00 | 0.00 | 0.00 | 1.00 | $135,850 | $28,060 |
Roll Value History
| 2026 | N/A | N/A | N/A | N/A | N/A |
| 2025 | $0 | $144,760 | $0 | $144,760 | $0 |
| 2024 | $0 | $140,300 | $28,190 | $28,190 | $0 |
| 2023 | $0 | $135,850 | $28,060 | $28,060 | $28,060 |
| 2022 | $0 | $122,490 | $27,060 | $27,060 | $27,060 |
| 2021 | $0 | $111,350 | $27,590 | $27,590 | $27,590 |
| 2020 | $0 | $89,080 | $28,170 | $28,170 | $28,170 |
| 2019 | $0 | $77,950 | $29,040 | $29,040 | $29,040 |
| 2018 | $0 | $75,720 | $29,600 | $29,600 | $29,600 |
| 2017 | $0 | $75,720 | $30,530 | $30,530 | $30,530 |
| 2016 | $0 | $75,720 | $30,640 | $30,640 | $30,640 |
| 2015 | $0 | $66,810 | $27,900 | $27,900 | $27,900 |
| 2014 | $0 | $66,810 | $27,900 | $27,900 | $27,900 |
| 2013 | $0 | $64,600 | $23,900 | $23,900 | $23,900 |
| 2012 | $0 | $19,100 | $0 | $0 | $0 |
| 2011 | $0 | $18,300 | $0 | $0 | $0 |
| 2010 | $0 | $18,800 | $0 | $0 | $0 |
| 2009 | $0 | $64,600 | $0 | $0 | $0 |
Deed and Sales History
| 1 | 01/17/2025 | SWD | STATUTORY WARRANTY DEED | KLICKER NANCY L ET AL ESTATE OF | STATE BOARD FOR COMMUNITY & TECHNICAL COLLEGES | | | $1,035,950.00 | 148807 | 2025-00266 |
| 2 | 07/16/2024 | SURVEY | SURVEY | | | 14 | 185 | | 0 | 2024-03863 |
| 3 | 01/17/2023 | AFFIDAVIT | AFFIDAVIT | KLICKER ROBERT ET AL | KLICKER NANCY L ET AL ESTATE OF | | | | 145272 | 2023-00236 |
| 4 | 04/01/2021 | QCD | QUIT CLAIM DEED | KLICKER ROBERT ET AL | KLICKER ROBERT ET AL | | 8 PARCELS | $0.00 | 141288 | 2021-04130 |
| 5 | 10/21/2009 | WARRANTY D | WARRANTY DEED | COX, SHERYL ET AL | KIRK & NANCY A KLICKER; ROBERT | | | | 117521 | 2009-10431 |
Payout Agreement
| No payout information available.. |