Property
Account |
| Property ID: | 27723 | Abbreviated Legal Description: | GREENS ANNEX TAX 10 LOT 5 BLK 10 |
| Parcel Number: | 360721751017 | Agent Code: | |
| Type: | Real | | |
| Tax Area: | 1 - OL-140-F | Land Use Code | 11 |
| Open Space: | N | DFL | N |
| Historic Property: | N | Remodel Property: | N |
| Multi-Family Redevelopment: | N | | |
| Township: | 7 | Section: | 21 |
| Range: | 36 |
Location |
| Address: | 1737 PORTLAND AVE WA 99362 | Mapsco: | |
| Neighborhood: | A-SFR | Map ID: | |
| Neighborhood CD: | 513011 |
Owner |
| Name: | HOPSTAD CARLY A & ANDREW C MCMILLAN | Owner ID: | 72843 |
| Mailing Address: | 1737 PORTLAND AVE WALLA WALLA, WA 99362 | % Ownership: | 100.0000000000% |
| | | Exemptions: | |
Taxes and Assessment Details
Values
| (+) Improvement Homesite Value: | + | $0 | |
| (+) Improvement Non-Homesite Value: | + | $247,200 | |
| (+) Land Homesite Value: | + | $0 | |
| (+) Land Non-Homesite Value: | + | $37,500 | |
| (+) Curr Use (HS): | + | $0 | $0 |
| (+) Curr Use (NHS): | + | $0 | $0 |
| | | -------------------------- | |
| (=) Market Value: | = | $284,700 | |
| (–) Productivity Loss: | – | $0 | |
| | | -------------------------- | |
| (=) Subtotal: | = | $284,700 | |
| (+) Senior Appraised Value: | + | $0 | |
| (+) Non-Senior Appraised Value: | + | $284,700 | |
| | | -------------------------- | |
| (=) Total Appraised Value: | = | $284,700 | |
| (–) Senior Exemption Loss: | – | $0 | |
| (–) Exemption Loss: | – | $0 | |
| | | -------------------------- | |
| (=) Taxable Value: | = | $284,700 | |
Taxing Jurisdiction
| Owner: | HOPSTAD CARLY A & ANDREW C MCMILLAN | | |
| % Ownership: | 100.0000000000% | | |
| Total Value: | $284,700 | | |
| Tax Area: | 1 - OL-140-F |
| CERFD | CURRENT EXPENSE REFUND 010 | 0.0000000000 | $284,700 | $284,700 | $0.00 | | |
| CURREXP | CURRENT EXPENSE 010 | 1.0175366760 | $284,700 | $284,700 | $289.69 | | |
| HUMNSERV | HUMAN SERVICES 119 | 0.0250000000 | $284,700 | $284,700 | $7.12 | | |
| SLDREL | SOLDIERS RELIEF 121 | 0.0155990005 | $284,700 | $284,700 | $4.44 | | |
| EMERGSER | EMS 147 | 0.3792580840 | $284,700 | $284,700 | $107.97 | | |
| EMSRFD | EMS REFUND 147 | 0.0000000000 | $284,700 | $284,700 | $0.00 | | |
| PORTRFD | PORT REFUND 640 | 0.0000000000 | $284,700 | $284,700 | $0.00 | | |
| PORTWWGEN | PORT OF WW 640 | 0.2460186015 | $284,700 | $284,700 | $70.04 | | |
| SD140BOND | SD #140 BOND 764 | 0.8342371393 | $284,700 | $284,700 | $237.51 | | |
| SD140GEN | SD #140 GENERAL 760 | 2.0646500647 | $284,700 | $284,700 | $587.81 | | |
| ST2 | STATE SCHOOL PART 2 600 | 0.8131451643 | $284,700 | $284,700 | $231.50 | | |
| STATESCHL | STATE SCHOOL 600 | 1.5158548041 | $284,700 | $284,700 | $431.56 | | |
| STREFUND | STATE REFUND LEVY 603 | 0.0000000000 | $284,700 | $284,700 | $0.00 | | |
| CWWBOND | C OF WW BOND 643 | 0.2760494372 | $284,700 | $284,700 | $78.59 | | |
| CWWGEN | CITY OF WW 631 | 1.6100204973 | $284,700 | $284,700 | $458.37 | | |
| CWWRFD | CITY OF WALLA WALLA REFUND 631 | 0.0000000000 | $284,700 | $284,700 | $0.00 | | |
| | Total Tax Rate: | 8.7973694689 | | | | | |
| | | | | Taxes w/Current Exemptions: | $2,504.60 | | |
| | | | | Taxes w/o Exemptions: | $2,504.60 | | |
Improvement / Building
| Improvement #1: | RESIDENTIAL | State Code: | 11 | 872.0 sqft | Value: | $247,200 |
| Exterior Wall: | VINYL | Heating/Cooling: | WARM & COOLED AIR | | Number of Bathrooms: | 1 | Number of Bedrooms: | 2 | | Plumbing: | 6 | Roof Covering: | COMP SHINGLE |
|
| | Type | Description | Class CD | Sub Class CD | Year Built | Area |
| | MA | Main Area | 1 | 30 | 1950 | 872.0 |
| | SI1 | SITE IMPROVEMENT | 1 | 30 | 1950 | 1.5 |
| | BASE | BASEMENT | 1 | 30 | 1950 | 864.0 |
| | BPF | BASEMENT -PARTITIONED FINISH | 1 | 30 | 1950 | 430.0 |
| | DTG | Detached Garage | 1 | 30 | 1950 | 504.0 |
| | PRC | PORCH W STEPS, ROOF,CEILED | 1 | 30 | 1950 | 16.0 |
| | CPC | COVERED CARPORT/PATIO | 1 | 30 | 1950 | 144.0 |
| | CPC | COVERED CARPORT/PATIO | 1 | 30 | 1950 | 250.0 |
Sketch
Property Image
Land
| 1 | RES 1 | Converted: Residential | 0.1377 | 6000.00 | 0.00 | 0.00 | 1.00 | $37,500 | $0 |
Roll Value History
| 2026 | N/A | N/A | N/A | N/A | N/A |
| 2025 | $237,940 | $60,000 | $0 | $297,940 | $297,940 |
| 2024 | $226,610 | $60,000 | $0 | $286,610 | $286,610 |
| 2023 | $247,200 | $37,500 | $0 | $284,700 | $284,700 |
| 2022 | $235,430 | $37,500 | $0 | $272,930 | $272,930 |
| 2021 | $168,160 | $37,500 | $0 | $205,660 | $205,660 |
| 2020 | $134,530 | $37,500 | $0 | $172,030 | $172,030 |
| 2019 | $134,530 | $37,500 | $0 | $172,030 | $172,030 |
| 2018 | $122,300 | $37,500 | $0 | $159,800 | $159,800 |
| 2017 | $132,570 | $24,000 | $0 | $156,570 | $156,570 |
| 2016 | $126,260 | $24,000 | $0 | $150,260 | $150,260 |
| 2015 | $126,260 | $24,000 | $0 | $150,260 | $150,260 |
| 2014 | $118,000 | $24,000 | $0 | $142,000 | $142,000 |
| 2013 | $118,000 | $24,000 | $0 | $142,000 | $142,000 |
| 2012 | $123,400 | $24,000 | $0 | $0 | $0 |
| 2011 | $123,400 | $24,000 | $0 | $0 | $0 |
| 2010 | $89,400 | $24,000 | $0 | $0 | $0 |
| 2009 | $102,000 | $24,000 | $0 | $0 | $0 |
| 2008 | $102,000 | $24,000 | $0 | $0 | $0 |
| 2007 | $102,000 | $24,000 | $0 | $0 | $0 |
Deed and Sales History
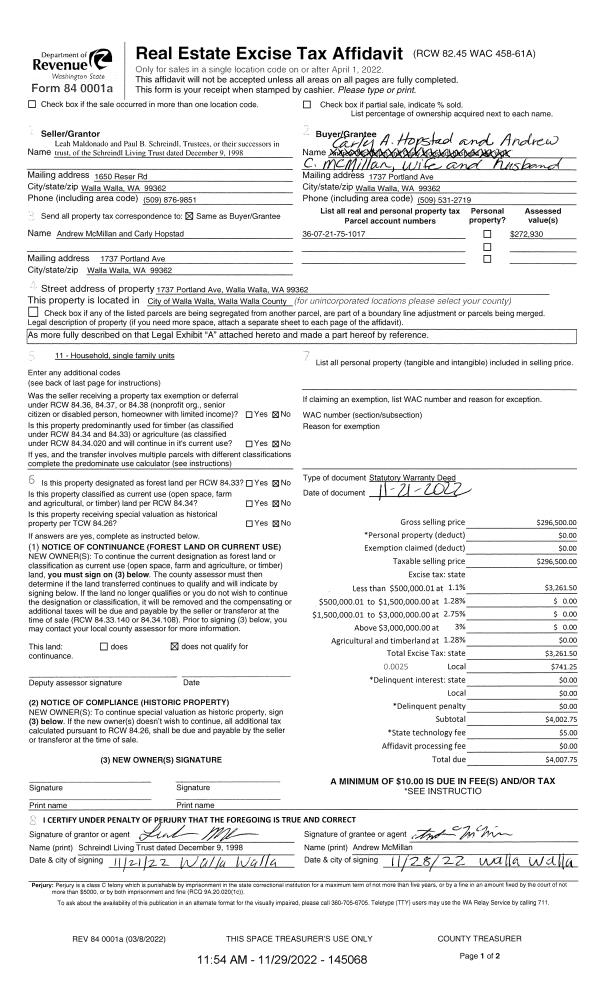
| 1 | 11/29/2022 | SWD | STATUTORY WARRANTY DEED | SCHREINDL LIVING TRUST | HOPSTAD CARLY A & ANDREW C MCMILLAN | | | $296,500.00 | 145068 | 2022-09397 |
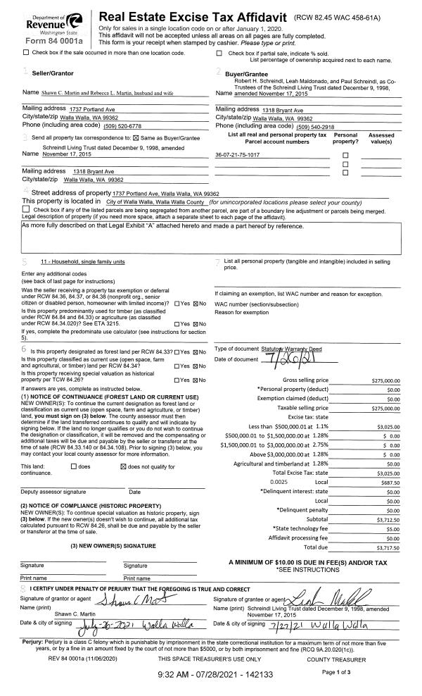
| 2 | 07/28/2021 | SWD | STATUTORY WARRANTY DEED | MARTIN SHAWN C & REBECCA L | SCHREINDL LIVING TRUST | | | $275,000.00 | 142133 | 2021-09165 |
| 3 | 11/05/2009 | WARRANTY D | WARRANTY DEED | BALDWIN, HEIDI M | MARTIN, SHAWN C & REBECCA L | | | $152,500.00 | 117633 | 2009-10950 |
| 4 | 07/06/2006 | WARRANTY D | WARRANTY DEED | PALMER, CHARLES | BALDWIN, HEIDI M | | | $126,000.00 | 110673 | 2006-07929 |
| 5 | 08/30/1999 | WARRANTY D | WARRANTY DEED | | | | | $75,000.00 | 93514 | 2889-910156 |
Payout Agreement
| No payout information available.. |