Property
Account |
| Property ID: | 27714 | Abbreviated Legal Description: | BLALOCK ORCHARDS W1/2N1/2 OF LOT 5 BLK 22 |
| Parcel Number: | 350726522218 | Agent Code: | |
| Type: | Real | | |
| Tax Area: | 311 - 250-4 | Land Use Code | 11 |
| Open Space: | N | DFL | N |
| Historic Property: | N | Remodel Property: | N |
| Multi-Family Redevelopment: | N | | |
| Township: | 7 | Section: | 26 |
| Range: | 35 |
Location |
| Address: | 201 YORK ST WA 99324 | Mapsco: | |
| Neighborhood: | A SFR Rural/City Infl | Map ID: | |
| Neighborhood CD: | 313012 |
Owner |
| Name: | HUNT JARED L & TANYA | Owner ID: | 64430 |
| Mailing Address: | 201 YORK ST WALLA WALLA, WA 99362 | % Ownership: | 100.0000000000% |
| | | Exemptions: | |
Taxes and Assessment Details
Values
| (+) Improvement Homesite Value: | + | $0 | |
| (+) Improvement Non-Homesite Value: | + | $178,680 | |
| (+) Land Homesite Value: | + | $0 | |
| (+) Land Non-Homesite Value: | + | $92,210 | |
| (+) Curr Use (HS): | + | $0 | $0 |
| (+) Curr Use (NHS): | + | $0 | $0 |
| | | -------------------------- | |
| (=) Market Value: | = | $270,890 | |
| (–) Productivity Loss: | – | $0 | |
| | | -------------------------- | |
| (=) Subtotal: | = | $270,890 | |
| (+) Senior Appraised Value: | + | $0 | |
| (+) Non-Senior Appraised Value: | + | $270,890 | |
| | | -------------------------- | |
| (=) Total Appraised Value: | = | $270,890 | |
| (–) Senior Exemption Loss: | – | $0 | |
| (–) Exemption Loss: | – | $0 | |
| | | -------------------------- | |
| (=) Taxable Value: | = | $270,890 | |
Taxing Jurisdiction
| Owner: | HUNT JARED L & TANYA | | |
| % Ownership: | 100.0000000000% | | |
| Total Value: | $270,890 | | |
| Tax Area: | 311 - 250-4 |
| CERFD | CURRENT EXPENSE REFUND 010 | 0.0000000000 | $270,890 | $270,890 | $0.00 | | |
| CURREXP | CURRENT EXPENSE 010 | 1.0175366760 | $270,890 | $270,890 | $275.64 | | |
| HUMNSERV | HUMAN SERVICES 119 | 0.0250000000 | $270,890 | $270,890 | $6.77 | | |
| SLDREL | SOLDIERS RELIEF 121 | 0.0155990005 | $270,890 | $270,890 | $4.23 | | |
| EMERGSER | EMS 147 | 0.3792580840 | $270,890 | $270,890 | $102.74 | | |
| EMSRFD | EMS REFUND 147 | 0.0000000000 | $270,890 | $270,890 | $0.00 | | |
| FD4EXP | FD #4 EXPENSE 686 | 0.8836993059 | $270,890 | $270,890 | $239.39 | | |
| RLBRFD | RURAL LIBRARY REFUND 623 | 0.0000000000 | $270,890 | $270,890 | $0.00 | | |
| RURALLIB | RURAL LIBRARY 623 | 0.3710609029 | $270,890 | $270,890 | $100.52 | | |
| PORTRFD | PORT REFUND 640 | 0.0000000000 | $270,890 | $270,890 | $0.00 | | |
| PORTWWGEN | PORT OF WW 640 | 0.2460186015 | $270,890 | $270,890 | $66.64 | | |
| SD250BOND | SD #250 BOND 773 | 1.4560608159 | $270,890 | $270,890 | $394.43 | | |
| SD250GEN | SD #250 GENERAL 770 | 2.3880724087 | $270,890 | $270,890 | $646.90 | | |
| ST2 | STATE SCHOOL PART 2 600 | 0.8131451643 | $270,890 | $270,890 | $220.27 | | |
| STATESCHL | STATE SCHOOL 600 | 1.5158548041 | $270,890 | $270,890 | $410.63 | | |
| STREFUND | STATE REFUND LEVY 603 | 0.0000000000 | $270,890 | $270,890 | $0.00 | | |
| COROAD | COUNTY ROAD 115 | 1.6549953990 | $270,890 | $270,890 | $448.32 | | |
| CRPRD | COUNTY ROAD REFUND 115 | 0.0000000000 | $270,890 | $270,890 | $0.00 | | |
| | Total Tax Rate: | 10.7663011628 | | | | | |
| | | | | Taxes w/Current Exemptions: | $2,916.48 | | |
| | | | | Taxes w/o Exemptions: | $2,916.48 | | |
Improvement / Building
| Improvement #1: | RESIDENTIAL | State Code: | 11 | 792.0 sqft | Value: | $178,680 |
| Exterior Wall: | SIDING | Heating/Cooling: | WARM & COOLED AIR | | Number of Bathrooms: | 1 | Number of Bedrooms: | 2 | | Plumbing: | 6 | Roof Covering: | COMP SHINGLE |
|
| | Type | Description | Class CD | Sub Class CD | Year Built | Area |
| | MA | Main Area | 1 | 30 | 1950 | 792.0 |
| | DTG | Detached Garage | 1 | 30 | 1950 | 396.0 |
| | TOOL | TOOL SHED | 1 | 30 | 1950 | 216.0 |
| | OPS | OPEN PORCH W/STEPS | 1 | 30 | 1950 | 20.0 |
| | CPCG | CARPORT/ GABLE ROOF | 1 | 30 | 1950 | 384.0 |
| | BASE | BASEMENT | 1 | 30 | 1950 | 396.0 |
| | BRF | BASEMENT - REC FINISH | 1 | 30 | 1950 | 396.0 |
| | SI1 | SITE IMPROVEMENT | 1 | 30 | 1950 | 2.0 |
Sketch
Property Image
Land
| 1 | RES 1 | Converted: Residential | 0.5400 | 23522.00 | 0.00 | 0.00 | 1.00 | $92,210 | $0 |
Roll Value History
| 2026 | N/A | N/A | N/A | N/A | N/A |
| 2025 | $232,280 | $92,210 | $0 | $324,490 | $324,490 |
| 2024 | $178,680 | $92,210 | $0 | $270,890 | $270,890 |
| 2023 | $178,680 | $92,210 | $0 | $270,890 | $270,890 |
| 2022 | $178,680 | $92,210 | $0 | $270,890 | $270,890 |
| 2021 | $162,260 | $58,600 | $0 | $220,860 | $220,860 |
| 2020 | $162,260 | $58,600 | $0 | $220,860 | $220,860 |
| 2019 | $162,260 | $58,600 | $0 | $220,860 | $220,860 |
| 2018 | $115,900 | $58,600 | $0 | $174,500 | $174,500 |
| 2017 | $110,380 | $58,600 | $0 | $168,980 | $168,980 |
| 2016 | $110,380 | $58,600 | $0 | $168,980 | $168,980 |
| 2015 | $88,200 | $58,600 | $0 | $146,800 | $146,800 |
| 2014 | $73,500 | $58,600 | $0 | $132,100 | $132,100 |
| 2013 | $68,900 | $58,600 | $0 | $127,500 | $127,500 |
| 2012 | $39,900 | $58,600 | $0 | $0 | $0 |
| 2011 | $57,200 | $58,600 | $0 | $0 | $0 |
| 2010 | $27,200 | $58,600 | $0 | $0 | $0 |
| 2009 | $58,500 | $36,800 | $0 | $0 | $0 |
| 2008 | $39,400 | $36,800 | $0 | $0 | $0 |
| 2007 | $39,400 | $36,800 | $0 | $0 | $0 |
Deed and Sales History
| 1 | 04/08/2024 | SWD | STATUTORY WARRANTY DEED | HUNT JARED L & TANYA | SKAY ALAN L & LISA M E | | | $349,000.00 | 147365 | 2024-01714 |
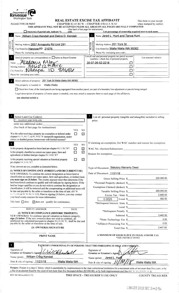
| 2 | 12/03/2018 | SWD | STATUTORY WARRANTY DEED | KENDALL WILLIAM CRAIG & DEBRA D | HUNT JARED L & TANYA | | | $225,000.00 | 136028 | 2018-09998 |
| 3 | 08/10/2015 | SWD | STATUTORY WARRANTY DEED | PRICE BILLY R | KENDALL WILLIAM CRAIG & DEBRA D | | | $177,900.00 | 128571 | 2015-06918 |
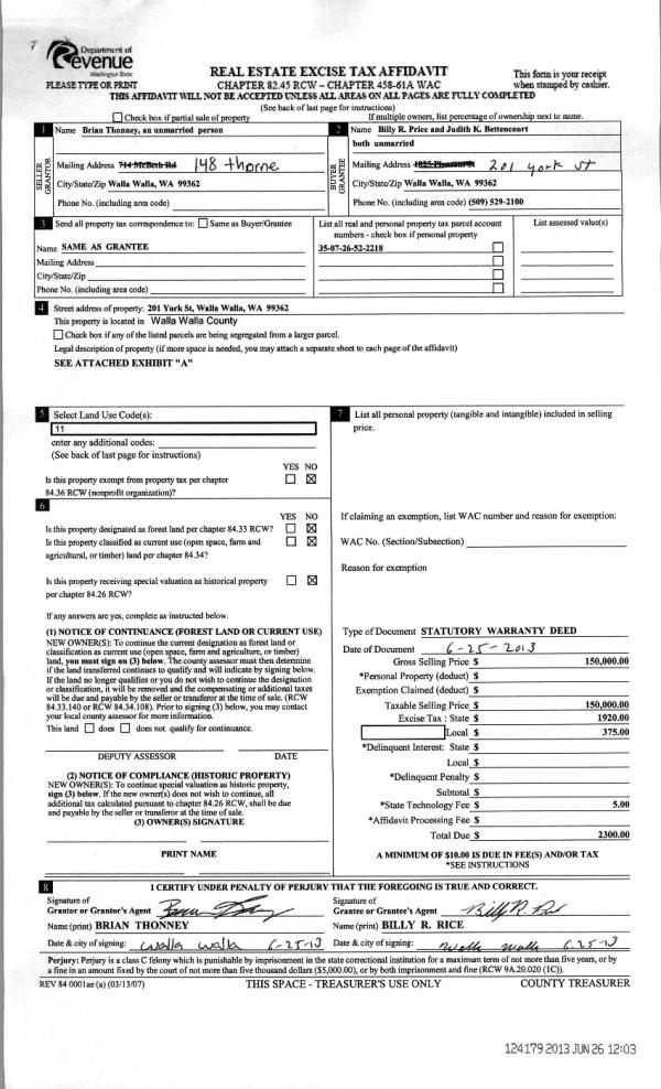
| 4 | 06/25/2013 | WARRANTY D | WARRANTY DEED | THONNEY, BRIAN | PRICE, BILLY R | | | $150,000.00 | 124179 | 2013-06408 |
| 5 | 06/02/2010 | WARRANTY D | WARRANTY DEED | BANK OF AMERICA NATIONAL ASSOC | THONNEY, BRIAN | | | $100,000.00 | 118560 | 2010-04247 |
| 6 | 10/16/2009 | WARRANTY D | WARRANTY DEED | NORTHWEST TRUSTEE SERVICES INC | BANK OF AMERICA NATIONAL ASSOC | | | $122,700.00 | 117501 | 2009-10286 |
| 7 | 12/21/1990 | WARRANTY D | WARRANTY DEED | | | | | $20,000.00 | 0 | 1869-008892 |
Payout Agreement
| No payout information available.. |