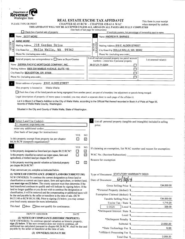
Property
Account |
| Property ID: | 2770 | Abbreviated Legal Description: | REED'S ADDN LT 4 BLK 2 |
| Parcel Number: | 360721710204 | Agent Code: | |
| Type: | Real | | |
| Tax Area: | 1 - OL-140-F | Land Use Code | 11 |
| Open Space: | N | DFL | N |
| Historic Property: | N | Remodel Property: | N |
| Multi-Family Redevelopment: | N | | |
| Township: | 7 | Section: | 21 |
| Range: | 36 |
Location |
| Address: | 816 E ALDER ST WA 99362 | Mapsco: | |
| Neighborhood: | A-SFR | Map ID: | |
| Neighborhood CD: | 513011 |
Owner |
| Name: | BARNES ANDREW R | Owner ID: | 56018 |
| Mailing Address: | 816 E ALDER ST WALLA WALLA, WA 99362 | % Ownership: | 100.0000000000% |
| | | Exemptions: | |
Taxes and Assessment Details
Property Tax Information as of
02/21/2026
Click on "Statement Details" to expand or collapse a tax statement.
* Please enter a valid date ** Please enter a valid date *
Statement Details |
| | TOTAL: | $0.00 | $0.00 | $0.00 | $0.00 | $0.00 | $0.00 |
|
| | $0.00 | $0.00 | $0.00 | $0.00 | $0.00 | $0.00 |
Values
| (+) Improvement Homesite Value: | + | $0 | |
| (+) Improvement Non-Homesite Value: | + | $212,020 | |
| (+) Land Homesite Value: | + | $0 | |
| (+) Land Non-Homesite Value: | + | $45,000 | |
| (+) Curr Use (HS): | + | $0 | $0 |
| (+) Curr Use (NHS): | + | $0 | $0 |
| | | -------------------------- | |
| (=) Market Value: | = | $257,020 | |
| (–) Productivity Loss: | – | $0 | |
| | | -------------------------- | |
| (=) Subtotal: | = | $257,020 | |
| (+) Senior Appraised Value: | + | $0 | |
| (+) Non-Senior Appraised Value: | + | $257,020 | |
| | | -------------------------- | |
| (=) Total Appraised Value: | = | $257,020 | |
| (–) Senior Exemption Loss: | – | $0 | |
| (–) Exemption Loss: | – | $0 | |
| | | -------------------------- | |
| (=) Taxable Value: | = | $257,020 | |
Taxing Jurisdiction
| Owner: | BARNES ANDREW R | | |
| % Ownership: | 100.0000000000% | | |
| Total Value: | $257,020 | | |
| Tax Area: | 1 - OL-140-F |
| CERFD | CURRENT EXPENSE REFUND 010 | 0.0000000000 | $257,020 | $257,020 | $0.00 | | |
| CURREXP | CURRENT EXPENSE 010 | 1.0175366760 | $257,020 | $257,020 | $261.53 | | |
| HUMNSERV | HUMAN SERVICES 119 | 0.0250000000 | $257,020 | $257,020 | $6.43 | | |
| SLDREL | SOLDIERS RELIEF 121 | 0.0155990005 | $257,020 | $257,020 | $4.01 | | |
| EMERGSER | EMS 147 | 0.3792580840 | $257,020 | $257,020 | $97.48 | | |
| EMSRFD | EMS REFUND 147 | 0.0000000000 | $257,020 | $257,020 | $0.00 | | |
| PORTRFD | PORT REFUND 640 | 0.0000000000 | $257,020 | $257,020 | $0.00 | | |
| PORTWWGEN | PORT OF WW 640 | 0.2460186015 | $257,020 | $257,020 | $63.23 | | |
| SD140BOND | SD #140 BOND 764 | 0.8342371393 | $257,020 | $257,020 | $214.42 | | |
| SD140GEN | SD #140 GENERAL 760 | 2.0646500647 | $257,020 | $257,020 | $530.66 | | |
| ST2 | STATE SCHOOL PART 2 600 | 0.8131451643 | $257,020 | $257,020 | $208.99 | | |
| STATESCHL | STATE SCHOOL 600 | 1.5158548041 | $257,020 | $257,020 | $389.61 | | |
| STREFUND | STATE REFUND LEVY 603 | 0.0000000000 | $257,020 | $257,020 | $0.00 | | |
| CWWBOND | C OF WW BOND 643 | 0.2760494372 | $257,020 | $257,020 | $70.95 | | |
| CWWGEN | CITY OF WW 631 | 1.6100204973 | $257,020 | $257,020 | $413.81 | | |
| CWWRFD | CITY OF WALLA WALLA REFUND 631 | 0.0000000000 | $257,020 | $257,020 | $0.00 | | |
| | Total Tax Rate: | 8.7973694689 | | | | | |
| | | | | Taxes w/Current Exemptions: | $2,261.12 | | |
| | | | | Taxes w/o Exemptions: | $2,261.12 | | |
Improvement / Building
| Improvement #1: | RESIDENTIAL | State Code: | 11 | 1230.0 sqft | Value: | $212,020 |
| Exterior Wall: | SIDING | Heating/Cooling: | FORCED AIR | | Number of Bathrooms: | 1 | Number of Bedrooms: | 2 | | Plumbing: | 7 | Roof Covering: | COMP SHINGLE |
|
| | Type | Description | Class CD | Sub Class CD | Year Built | Area |
| | MA | Main Area | 1 | 30 | 1901 | 1230.0 |
| | ATIC | ATTIC ROOM | 1 | 30 | 1901 | 660.0 |
| | SI1 | SITE IMPROVEMENT | 1 | 30 | 1901 | 1.0 |
| | BASE | BASEMENT | 1 | 30 | 1901 | 96.0 |
| | RCD | WOOD DECK W/ROOF, CEILED | 1 | 30 | 1901 | 396.0 |
| | DTG | Detached Garage | 1 | 30 | 1901 | 360.0 |
Sketch
Property Image
Land
| 1 | RES 1 | Converted: Residential | 0.1653 | 7200.00 | 0.00 | 0.00 | 1.00 | $45,000 | $0 |
Roll Value History
| 2026 | N/A | N/A | N/A | N/A | N/A |
| 2025 | $214,450 | $72,000 | $0 | $286,450 | $286,450 |
| 2024 | $186,480 | $72,000 | $0 | $258,480 | $258,480 |
| 2023 | $212,020 | $45,000 | $0 | $257,020 | $257,020 |
| 2022 | $212,020 | $45,000 | $0 | $257,020 | $257,020 |
| 2021 | $169,610 | $45,000 | $0 | $214,610 | $214,610 |
| 2020 | $121,150 | $45,000 | $0 | $166,150 | $166,150 |
| 2019 | $121,150 | $45,000 | $0 | $166,150 | $166,150 |
| 2018 | $105,350 | $45,000 | $0 | $150,350 | $150,350 |
| 2017 | $109,430 | $28,800 | $0 | $138,230 | $138,230 |
| 2016 | $104,220 | $28,800 | $0 | $133,020 | $133,020 |
| 2015 | $104,220 | $28,800 | $0 | $133,020 | $133,020 |
| 2014 | $115,800 | $28,800 | $0 | $144,600 | $144,600 |
| 2013 | $115,800 | $28,800 | $0 | $144,600 | $144,600 |
| 2012 | $118,100 | $28,800 | $0 | $0 | $0 |
| 2011 | $118,100 | $28,800 | $0 | $0 | $0 |
| 2010 | $111,100 | $28,800 | $0 | $0 | $0 |
| 2009 | $126,600 | $28,800 | $0 | $0 | $0 |
| 2008 | $95,500 | $28,800 | $0 | $0 | $0 |
| 2007 | $95,500 | $28,800 | $0 | $0 | $0 |
Deed and Sales History
| 1 | 12/30/2014 | SWD | STATUTORY WARRANTY DEED | MORE SCOT & ANNE | BARNES ANDREW R | | | $134,000.00 | 127201 | 2014-09497 |
| 2 | 07/08/2003 | WARRANTY D | WARRANTY DEED | PAOLI, KIMBERLY L & RONALD | MORE, SCOT & ANNE | | | $107,500.00 | 102511 | 2003-10152 |
| 3 | 08/18/1998 | WARRANTY D | WARRANTY DEED | | | | | $60,000.00 | 91064 | 2719-809387 |
Payout Agreement
| No payout information available.. |