Property
Account |
| Property ID: | 27692 | Abbreviated Legal Description: | REPLAT OF GARRISON CRK HGTS LOT 5 BLK 1 |
| Parcel Number: | 350736700105 | Agent Code: | |
| Type: | Real | | |
| Tax Area: | 77 - CP-250-F | Land Use Code | 11 |
| Open Space: | N | DFL | N |
| Historic Property: | N | Remodel Property: | N |
| Multi-Family Redevelopment: | N | | |
| Township: | 7 | Section: | 36 |
| Range: | 35 |
Location |
| Address: | 859 SE SENTRY DR WA 99324 | Mapsco: | |
| Neighborhood: | G SFR | Map ID: | |
| Neighborhood CD: | 114011 |
Owner |
| Name: | PARKCAM LLC | Owner ID: | 54345 |
| Mailing Address: | 935 SE SENTRY DR COLLEGE PLACE, WA 99324 | % Ownership: | 100.0000000000% |
| | | Exemptions: | |
Taxes and Assessment Details
Property Tax Information as of
02/21/2026
Click on "Statement Details" to expand or collapse a tax statement.
* Please enter a valid date ** Please enter a valid date *
Statement Details |
| | TOTAL: | $0.00 | $0.00 | $0.00 | $0.00 | $0.00 | $0.00 |
|
| | $0.00 | $0.00 | $0.00 | $0.00 | $0.00 | $0.00 |
Values
| (+) Improvement Homesite Value: | + | $0 | |
| (+) Improvement Non-Homesite Value: | + | $358,610 | |
| (+) Land Homesite Value: | + | $0 | |
| (+) Land Non-Homesite Value: | + | $75,000 | |
| (+) Curr Use (HS): | + | $0 | $0 |
| (+) Curr Use (NHS): | + | $0 | $0 |
| | | -------------------------- | |
| (=) Market Value: | = | $433,610 | |
| (–) Productivity Loss: | – | $0 | |
| | | -------------------------- | |
| (=) Subtotal: | = | $433,610 | |
| (+) Senior Appraised Value: | + | $0 | |
| (+) Non-Senior Appraised Value: | + | $433,610 | |
| | | -------------------------- | |
| (=) Total Appraised Value: | = | $433,610 | |
| (–) Senior Exemption Loss: | – | $0 | |
| (–) Exemption Loss: | – | $0 | |
| | | -------------------------- | |
| (=) Taxable Value: | = | $433,610 | |
Taxing Jurisdiction
| Owner: | PARKCAM LLC | | |
| % Ownership: | 100.0000000000% | | |
| Total Value: | $433,610 | | |
| Tax Area: | 77 - CP-250-F |
| CERFD | CURRENT EXPENSE REFUND 010 | 0.0000000000 | $433,610 | $433,610 | $0.00 | | |
| CURREXP | CURRENT EXPENSE 010 | 1.0175366760 | $433,610 | $433,610 | $441.21 | | |
| HUMNSERV | HUMAN SERVICES 119 | 0.0250000000 | $433,610 | $433,610 | $10.84 | | |
| SLDREL | SOLDIERS RELIEF 121 | 0.0155990005 | $433,610 | $433,610 | $6.76 | | |
| COLLPLBOND | C OF CP BOND 644 | 0.4374241808 | $433,610 | $433,610 | $189.67 | | |
| COLLPLGEN | CITY OF CP 632 | 1.4453819216 | $433,610 | $433,610 | $626.73 | | |
| EMERGSER | EMS 147 | 0.3792580840 | $433,610 | $433,610 | $164.45 | | |
| EMSRFD | EMS REFUND 147 | 0.0000000000 | $433,610 | $433,610 | $0.00 | | |
| RURALLIB | RURAL LIBRARY 623 | 0.3710609029 | $433,610 | $433,610 | $160.90 | | |
| PORTRFD | PORT REFUND 640 | 0.0000000000 | $433,610 | $433,610 | $0.00 | | |
| PORTWWGEN | PORT OF WW 640 | 0.2460186015 | $433,610 | $433,610 | $106.68 | | |
| SD250BOND | SD #250 BOND 773 | 1.4560608159 | $433,610 | $433,610 | $631.36 | | |
| SD250GEN | SD #250 GENERAL 770 | 2.3880724087 | $433,610 | $433,610 | $1,035.49 | | |
| ST2 | STATE SCHOOL PART 2 600 | 0.8131451643 | $433,610 | $433,610 | $352.59 | | |
| STATESCHL | STATE SCHOOL 600 | 1.5158548041 | $433,610 | $433,610 | $657.29 | | |
| STREFUND | STATE REFUND LEVY 603 | 0.0000000000 | $433,610 | $433,610 | $0.00 | | |
| | Total Tax Rate: | 10.1104125603 | | | | | |
| | | | | Taxes w/Current Exemptions: | $4,383.97 | | |
| | | | | Taxes w/o Exemptions: | $4,383.97 | | |
Improvement / Building
| Improvement #1: | RESIDENTIAL | State Code: | 11 | 1720.0 sqft | Value: | $358,610 |
| Exterior Wall: | HARDBOARD | Heating/Cooling: | WARM & COOLED AIR | | Number of Bathrooms: | 2 | Number of Bedrooms: | 3 | | Plumbing: | 9 | Roof Covering: | COMP SHINGLE |
|
| | Type | Description | Class CD | Sub Class CD | Year Built | Area |
| | MA | Main Area | 1 | 40 | 1992 | 1720.0 |
| | SI1 | SITE IMPROVEMENT | 1 | 40 | 1992 | 2.0 |
| | ATG | Attached Garage | 1 | 40 | 1992 | 440.0 |
| | WDR | WOOD DECK W/ROOF | 1 | 40 | 1992 | 288.0 |
| | PRC | PORCH W STEPS, ROOF,CEILED | 1 | 40 | 1992 | 25.0 |
Sketch
Property Image
Land
| 1 | RES 1 | Converted: Residential | 0.1851 | 8061.00 | 0.00 | 0.00 | 1.00 | $75,000 | $0 |
Roll Value History
| 2026 | N/A | N/A | N/A | N/A | N/A |
| 2025 | $304,820 | $140,000 | $0 | $444,820 | $444,820 |
| 2024 | $358,610 | $75,000 | $0 | $433,610 | $433,610 |
| 2023 | $358,610 | $75,000 | $0 | $433,610 | $433,610 |
| 2022 | $298,840 | $75,000 | $0 | $373,840 | $373,840 |
| 2021 | $271,680 | $75,000 | $0 | $346,680 | $346,680 |
| 2020 | $217,340 | $75,000 | $0 | $292,340 | $292,340 |
| 2019 | $227,340 | $65,000 | $0 | $292,340 | $292,340 |
| 2018 | $174,870 | $65,000 | $0 | $239,870 | $239,870 |
| 2017 | $139,900 | $65,000 | $0 | $204,900 | $204,900 |
| 2016 | $127,180 | $65,000 | $0 | $192,180 | $192,180 |
| 2015 | $121,130 | $65,000 | $0 | $186,130 | $186,130 |
| 2014 | $142,500 | $65,000 | $0 | $207,500 | $207,500 |
| 2013 | $142,500 | $65,000 | $0 | $207,500 | $207,500 |
| 2012 | $142,500 | $65,000 | $0 | $0 | $0 |
| 2011 | $142,500 | $65,000 | $0 | $0 | $0 |
| 2010 | $142,500 | $65,000 | $0 | $0 | $0 |
| 2009 | $153,400 | $65,000 | $0 | $0 | $0 |
| 2008 | $144,900 | $40,000 | $0 | $0 | $0 |
| 2007 | $144,900 | $40,000 | $0 | $0 | $0 |
Deed and Sales History
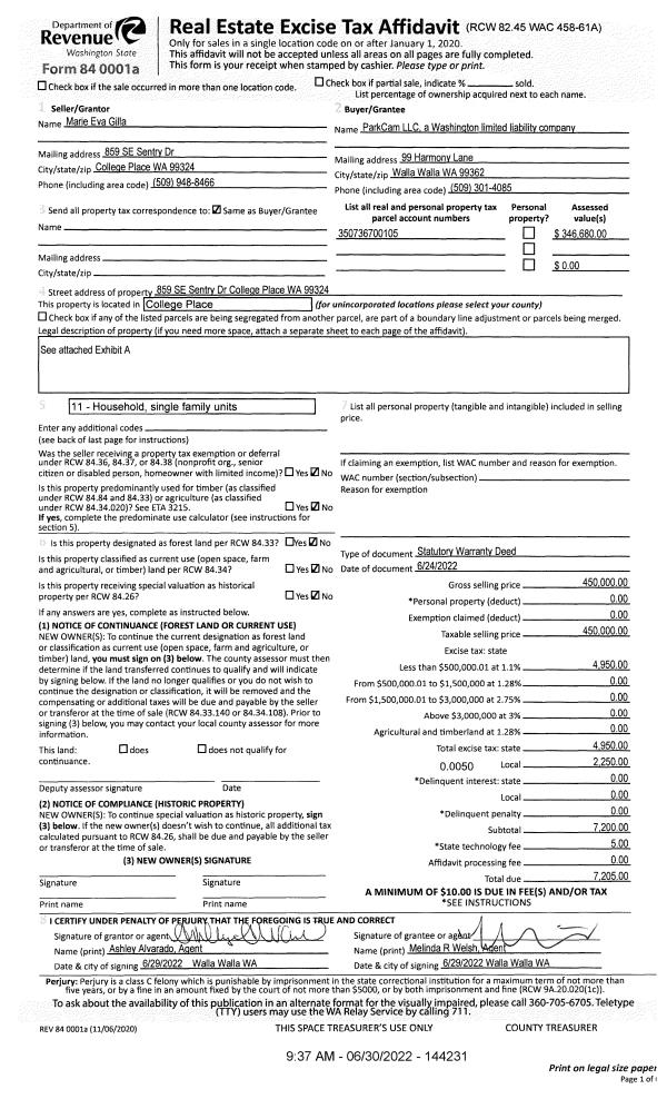
| 1 | 06/30/2022 | SWD | STATUTORY WARRANTY DEED | GILLA MARIE EVE | PARKCAM LLC | | | $450,000.00 | 144231 | 2022-05533 |
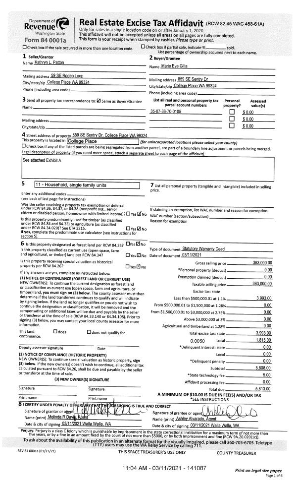
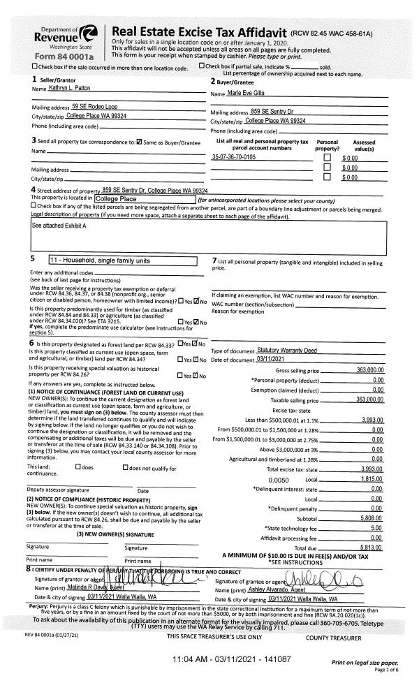
| 2 | 03/11/2021 | SWD | STATUTORY WARRANTY DEED | PATTON KATHRYN L | GILLA MARIE EVE | | | $363,000.00 | 141087 | 2021-02766 |
| 3 | 10/15/2009 | WARRANTY D | WARRANTY DEED | ARMIJO, DONNA | PATTON, KATHRYN L | | | $215,000.00 | 117489 | 2009-10228 |
| 4 | 07/17/2000 | WARRANTY D | WARRANTY DEED | | | | | $162,000.00 | 95439 | 3000-006775 |
Payout Agreement
| No payout information available.. |