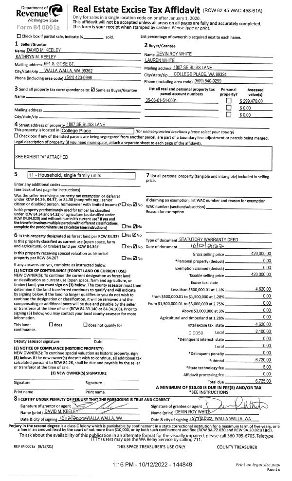
| 1 | 10/12/2022 | SWD | STATUTORY WARRANTY DEED | KEELEY DAVID M & KATHRYN M | WHITE DEVIN ROY & LAUREN | | | $420,000.00 | 144848 | 2022-08384 |
| 2 | 05/31/2017 | SWD | STATUTORY WARRANTY DEED | SCHISLER JACK A & NANCY A | KEELEY DAVID M & KATHRYN M | | | $231,000.00 | 132514 | 2017-04160 |
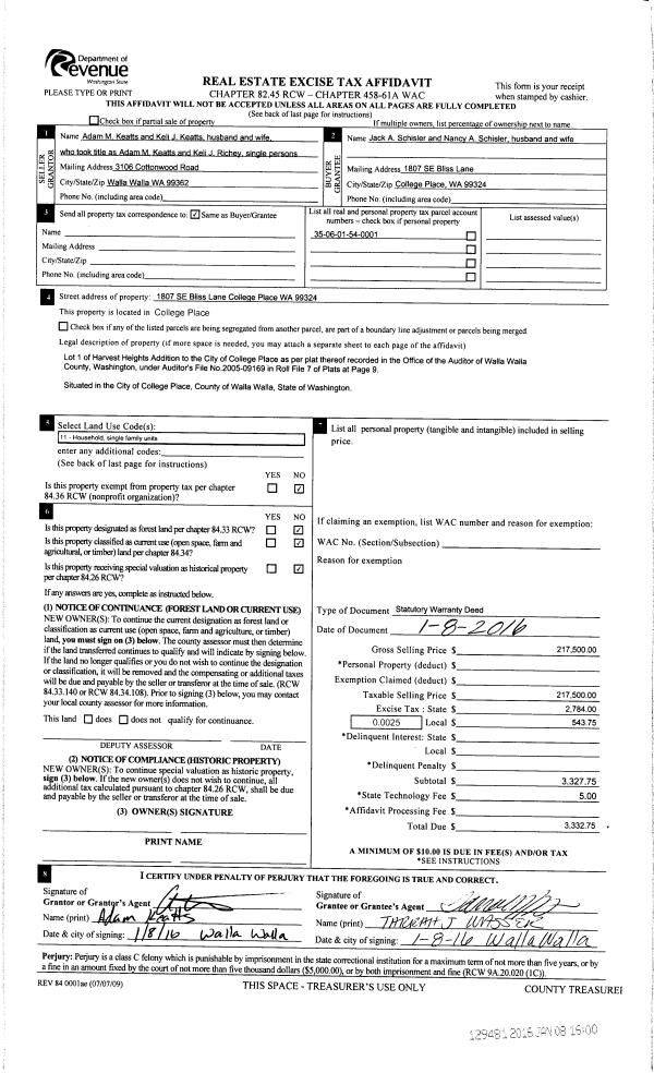
| 3 | 01/08/2016 | SWD | STATUTORY WARRANTY DEED | KEATTS ADAM M & KELI J | SCHISLER JACK A & NANCY A | | | $217,500.00 | 129481 | 2016-00168 |
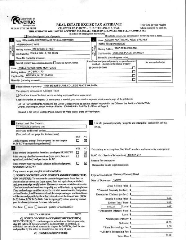
| 4 | 05/24/2010 | WARRANTY D | WARRANTY DEED | DAWSON, BENJAMIN & CELINA | KEATTS, ADAM M | | | | 118512 | 2010-03994 |
| 5 | 05/07/2010 | WARRANTY D | WARRANTY DEED | DAWSON, BENJAMIN J & CELINA J | KEATTS, ADAM M | | | $200,000.00 | 118446 | 2010-03555 |
| 6 | 10/30/2009 | WARRANTY D | WARRANTY DEED | WESTERN B PLANNERS | DAWSON, BENJAMIN J & CELINA J | | | $45,000.00 | 117611 | 2009-10793 |