Property
Account |
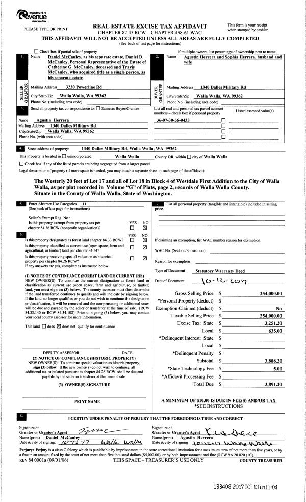
| Property ID: | 27592 | Abbreviated Legal Description: | WESTDALE FIRST (TRACT A OF SURVEY) LOT 18 & WLY PTN LOT 17 BLK 4 |
| Parcel Number: | 360730560433 | Agent Code: | |
| Type: | Real | | |
| Tax Area: | 1 - OL-140-F | Land Use Code | 11 |
| Open Space: | N | DFL | N |
| Historic Property: | N | Remodel Property: | N |
| Multi-Family Redevelopment: | N | | |
| Township: | | Section: | |
| Range: | |
Location |
| Address: | 1340 THE DALLES MILITARY RD WALLA WALLA, WA 99362 | Mapsco: | |
| Neighborhood: | A SFR | Map ID: | |
| Neighborhood CD: | 113011 |
Owner |
| Name: | HERRERA AGUSTIN & SOPHIA | Owner ID: | 61856 |
| Mailing Address: | 1340 DALLES MILITARY RD WALLA WALLA, WA 99362 | % Ownership: | 100.0000000000% |
| | | Exemptions: | |
Taxes and Assessment Details
Property Tax Information as of
02/21/2026
Click on "Statement Details" to expand or collapse a tax statement.
* Please enter a valid date ** Please enter a valid date *
Statement Details |
| | TOTAL: | $0.00 | $0.00 | $0.00 | $0.00 | $0.00 | $0.00 |
|
| | $0.00 | $0.00 | $0.00 | $0.00 | $0.00 | $0.00 |
Values
| (+) Improvement Homesite Value: | + | $0 | |
| (+) Improvement Non-Homesite Value: | + | $389,960 | |
| (+) Land Homesite Value: | + | $0 | |
| (+) Land Non-Homesite Value: | + | $61,880 | |
| (+) Curr Use (HS): | + | $0 | $0 |
| (+) Curr Use (NHS): | + | $0 | $0 |
| | | -------------------------- | |
| (=) Market Value: | = | $451,840 | |
| (–) Productivity Loss: | – | $0 | |
| | | -------------------------- | |
| (=) Subtotal: | = | $451,840 | |
| (+) Senior Appraised Value: | + | $0 | |
| (+) Non-Senior Appraised Value: | + | $451,840 | |
| | | -------------------------- | |
| (=) Total Appraised Value: | = | $451,840 | |
| (–) Senior Exemption Loss: | – | $0 | |
| (–) Exemption Loss: | – | $0 | |
| | | -------------------------- | |
| (=) Taxable Value: | = | $451,840 | |
Taxing Jurisdiction
| Owner: | HERRERA AGUSTIN & SOPHIA | | |
| % Ownership: | 100.0000000000% | | |
| Total Value: | $451,840 | | |
| Tax Area: | 1 - OL-140-F |
| CERFD | CURRENT EXPENSE REFUND 010 | 0.0000000000 | $451,840 | $451,840 | $0.00 | | |
| CURREXP | CURRENT EXPENSE 010 | 1.0175366760 | $451,840 | $451,840 | $459.76 | | |
| HUMNSERV | HUMAN SERVICES 119 | 0.0250000000 | $451,840 | $451,840 | $11.30 | | |
| SLDREL | SOLDIERS RELIEF 121 | 0.0155990005 | $451,840 | $451,840 | $7.05 | | |
| EMERGSER | EMS 147 | 0.3792580840 | $451,840 | $451,840 | $171.36 | | |
| EMSRFD | EMS REFUND 147 | 0.0000000000 | $451,840 | $451,840 | $0.00 | | |
| PORTRFD | PORT REFUND 640 | 0.0000000000 | $451,840 | $451,840 | $0.00 | | |
| PORTWWGEN | PORT OF WW 640 | 0.2460186015 | $451,840 | $451,840 | $111.16 | | |
| SD140BOND | SD #140 BOND 764 | 0.8342371393 | $451,840 | $451,840 | $376.94 | | |
| SD140GEN | SD #140 GENERAL 760 | 2.0646500647 | $451,840 | $451,840 | $932.89 | | |
| ST2 | STATE SCHOOL PART 2 600 | 0.8131451643 | $451,840 | $451,840 | $367.41 | | |
| STATESCHL | STATE SCHOOL 600 | 1.5158548041 | $451,840 | $451,840 | $684.92 | | |
| STREFUND | STATE REFUND LEVY 603 | 0.0000000000 | $451,840 | $451,840 | $0.00 | | |
| CWWBOND | C OF WW BOND 643 | 0.2760494372 | $451,840 | $451,840 | $124.73 | | |
| CWWGEN | CITY OF WW 631 | 1.6100204973 | $451,840 | $451,840 | $727.47 | | |
| CWWRFD | CITY OF WALLA WALLA REFUND 631 | 0.0000000000 | $451,840 | $451,840 | $0.00 | | |
| | Total Tax Rate: | 8.7973694689 | | | | | |
| | | | | Taxes w/Current Exemptions: | $3,974.99 | | |
| | | | | Taxes w/o Exemptions: | $3,974.99 | | |
Improvement / Building
| Improvement #1: | RESIDENTIAL | State Code: | 11 | 2770.0 sqft | Value: | $389,960 |
| Exterior Wall: | PLYWOOD | Foundation: | SLAB FOUNDATION | | Heating/Cooling: | HEAT PUMP | Number of Bathrooms: | 2 | | Number of Bedrooms: | 2 | Plumbing: | 11 | | Roof Covering: | COMP SHINGLE |   |   |
|
| | Type | Description | Class CD | Sub Class CD | Year Built | Area |
| | MA | Main Area | 4 | 30 | 2008 | 2770.0 |
| | SI1 | SITE IMPROVEMENT | 4 | 30 | 0 | 2.5 |
| | ATG | Attached Garage | 4 | 30 | 2008 | 1400.0 |
| | UPFL | Upper Floor (included in main area) | 4 | 30 | 2008 | 1250.0 |
| | GIF | GARAGE INTERIOR FINISH | 4 | 30 | 2008 | 285.0 |
| | RPO | OPEN PORCH W/ROOF | 4 | 30 | 2008 | 90.0 |
Sketch
Property Image
Land
| 1 | RES 1 | Converted: Residential | 0.2525 | 11000.00 | 0.00 | 0.00 | 1.00 | $61,880 | $0 |
Roll Value History
| 2026 | N/A | N/A | N/A | N/A | N/A |
| 2025 | $428,960 | $55,000 | $0 | $483,960 | $483,960 |
| 2024 | $389,960 | $61,880 | $0 | $451,840 | $451,840 |
| 2023 | $389,960 | $61,880 | $0 | $451,840 | $451,840 |
| 2022 | $371,390 | $61,880 | $0 | $433,270 | $433,270 |
| 2021 | $275,110 | $61,880 | $0 | $336,990 | $336,990 |
| 2020 | $211,620 | $61,880 | $0 | $273,500 | $273,500 |
| 2019 | $225,500 | $48,000 | $0 | $273,500 | $273,500 |
| 2018 | $193,120 | $48,000 | $0 | $241,120 | $241,120 |
| 2017 | $178,820 | $48,000 | $0 | $226,820 | $226,820 |
| 2016 | $170,300 | $48,000 | $0 | $218,300 | $218,300 |
| 2015 | $170,300 | $48,000 | $0 | $218,300 | $218,300 |
| 2014 | $170,300 | $48,000 | $0 | $218,300 | $218,300 |
| 2013 | $170,300 | $48,000 | $0 | $218,300 | $218,300 |
| 2012 | $170,300 | $48,000 | $0 | $0 | $0 |
| 2011 | $224,900 | $48,000 | $0 | $0 | $0 |
| 2010 | $200,100 | $48,000 | $0 | $0 | $0 |
| 2009 | $0 | $28,700 | $0 | $0 | $0 |
| 2008 | $170,300 | $48,000 | $0 | $0 | $0 |
Deed and Sales History
| 1 | 10/13/2017 | SWD | STATUTORY WARRANTY DEED | MC CAULEY DANIEL & CATHERINE G ESTATE OF | HERRERA AGUSTIN & SOPHIA | | | $254,000.00 | 133408 | 2017-08149 |
| 2 | 08/25/2009 | WARRANTY D | WARRANTY DEED | MC CAULEY, DAN & CATHY | MC CAULEY, DANIEL & CATHERINE | | | $185,000.00 | 117386 | 2009-09599 |
Payout Agreement
| No payout information available.. |