Property
Account |
| Property ID: | 27589 | Abbreviated Legal Description: | CBP #3 LOT 3 OF SHORT PLAT (PTN FU 34 BLK 3) |
| Parcel Number: | 310834510054 | Agent Code: | |
| Type: | Real | | |
| Tax Area: | 328 - 400-M-5 | Land Use Code | 55 |
| Open Space: | N | DFL | N |
| Historic Property: | N | Remodel Property: | N |
| Multi-Family Redevelopment: | N | | |
| Township: | 8 | Section: | 34 |
| Range: | 31 |
Location |
| Address: | 14813 DODD RD WA 99323 | Mapsco: | |
| Neighborhood: | A Comm | Map ID: | |
| Neighborhood CD: | 233700 |
Owner |
| Name: | DEVIN OIL COMPANY INC | Owner ID: | 54379 |
| Mailing Address: | PO BOX 105 HERMISTON, OR 97838 | % Ownership: | 100.0000000000% |
| | | Exemptions: | |
Taxes and Assessment Details
Values
| (+) Improvement Homesite Value: | + | $0 | |
| (+) Improvement Non-Homesite Value: | + | $1,642,600 | |
| (+) Land Homesite Value: | + | $0 | |
| (+) Land Non-Homesite Value: | + | $213,300 | |
| (+) Curr Use (HS): | + | $0 | $0 |
| (+) Curr Use (NHS): | + | $0 | $0 |
| | | -------------------------- | |
| (=) Market Value: | = | $1,855,900 | |
| (–) Productivity Loss: | – | $0 | |
| | | -------------------------- | |
| (=) Subtotal: | = | $1,855,900 | |
| (+) Senior Appraised Value: | + | $0 | |
| (+) Non-Senior Appraised Value: | + | $1,855,900 | |
| | | -------------------------- | |
| (=) Total Appraised Value: | = | $1,855,900 | |
| (–) Senior Exemption Loss: | – | $0 | |
| (–) Exemption Loss: | – | $0 | |
| | | -------------------------- | |
| (=) Taxable Value: | = | $1,855,900 | |
Taxing Jurisdiction
| Owner: | DEVIN OIL COMPANY INC | | |
| % Ownership: | 100.0000000000% | | |
| Total Value: | $1,855,900 | | |
| Tax Area: | 328 - 400-M-5 |
| CERFD | CURRENT EXPENSE REFUND 010 | 0.0000000000 | $1,855,900 | $1,855,900 | $0.00 | | |
| CURREXP | CURRENT EXPENSE 010 | 1.0175366760 | $1,855,900 | $1,855,900 | $1,888.45 | | |
| HUMNSERV | HUMAN SERVICES 119 | 0.0250000000 | $1,855,900 | $1,855,900 | $46.40 | | |
| SLDREL | SOLDIERS RELIEF 121 | 0.0155990005 | $1,855,900 | $1,855,900 | $28.95 | | |
| EMERGSER | EMS 147 | 0.3792580840 | $1,855,900 | $1,855,900 | $703.87 | | |
| EMSRFD | EMS REFUND 147 | 0.0000000000 | $1,855,900 | $1,855,900 | $0.00 | | |
| FD5EXP | FD #5 EXPENSE 689 | 1.2045331840 | $1,855,900 | $1,855,900 | $2,235.49 | | |
| RLBRFD | RURAL LIBRARY REFUND 623 | 0.0000000000 | $1,855,900 | $1,855,900 | $0.00 | | |
| RURALLIB | RURAL LIBRARY 623 | 0.3710609029 | $1,855,900 | $1,855,900 | $688.65 | | |
| PORTRFD | PORT REFUND 640 | 0.0000000000 | $1,855,900 | $1,855,900 | $0.00 | | |
| PORTWWGEN | PORT OF WW 640 | 0.2460186015 | $1,855,900 | $1,855,900 | $456.59 | | |
| SD400BOND | SD #400 BOND 793 | 0.0000000000 | $1,855,900 | $1,855,900 | $0.00 | | |
| SD400CAP | SD #400 CP 792 | 0.3443722657 | $1,855,900 | $1,855,900 | $639.12 | | |
| SD400GEN | SD #400 GENERAL 790 | 1.9278469916 | $1,855,900 | $1,855,900 | $3,577.89 | | |
| ST2 | STATE SCHOOL PART 2 600 | 0.8131451643 | $1,855,900 | $1,855,900 | $1,509.12 | | |
| STATESCHL | STATE SCHOOL 600 | 1.5158548041 | $1,855,900 | $1,855,900 | $2,813.27 | | |
| STREFUND | STATE REFUND LEVY 603 | 0.0000000000 | $1,855,900 | $1,855,900 | $0.00 | | |
| COROAD | COUNTY ROAD 115 | 1.6549953990 | $1,855,900 | $1,855,900 | $3,071.51 | | |
| CRPRD | COUNTY ROAD REFUND 115 | 0.0000000000 | $1,855,900 | $1,855,900 | $0.00 | | |
| | Total Tax Rate: | 9.5152210736 | | | | | |
| | | | | Taxes w/Current Exemptions: | $17,659.31 | | |
| | | | | Taxes w/o Exemptions: | $17,659.31 | | |
Improvement / Building
| Improvement #1: | COMMERCIAL | State Code: | 55 | 6602.0 sqft | Value: | $1,642,600 |
| | Type | Description | Class CD | Sub Class CD | Year Built | Area |
| | MA | Main Area | 1 | 35 | 2002 | 6602.0 |
| | SI1 | SITE IMPROVEMENT | 1 | 30 | 2002 | 20.0 |
| | RPC | OPEN PORCH W/ROOF , CEILED | 1 | 30 | 2002 | 4308.0 |
| | PRKSTLA | PARK STALL AVERAGE | 1 | 30 | 2002 | 19.0 |
| | PRKSTALE | PARK STALL EXCELLENT | 1 | 30 | 2002 | 12.0 |
| | FIXT | AVERAGE FIXTURE | 1 | 35 | 2002 | 6.0 |
| | APP | APPLIANCE ALLOWANCE | D | 35 | 2002 | 4.0 |
Sketch
Property Image
Land
| 1 | COM 1 | Converted: Commercial | 3.6300 | 158122.80 | 0.00 | 0.00 | 1.00 | $213,300 | $0 |
Roll Value History
| 2026 | N/A | N/A | N/A | N/A | N/A |
| 2025 | $1,656,400 | $217,800 | $0 | $1,874,200 | $1,874,200 |
| 2024 | $1,656,400 | $217,800 | $0 | $1,874,200 | $1,874,200 |
| 2023 | $1,642,600 | $213,300 | $0 | $1,855,900 | $1,855,900 |
| 2022 | $1,599,500 | $197,700 | $0 | $1,797,200 | $1,797,200 |
| 2021 | $1,599,500 | $197,700 | $0 | $1,797,200 | $1,797,200 |
| 2020 | $1,627,200 | $146,300 | $0 | $1,773,500 | $1,773,500 |
| 2019 | $1,627,200 | $146,300 | $0 | $1,773,500 | $1,773,500 |
| 2018 | $1,627,200 | $146,300 | $0 | $1,773,500 | $1,773,500 |
| 2017 | $1,627,200 | $146,300 | $0 | $1,773,500 | $1,773,500 |
| 2016 | $1,627,200 | $146,300 | $0 | $1,773,500 | $1,773,500 |
| 2015 | $1,627,200 | $146,300 | $0 | $1,773,500 | $1,773,500 |
| 2014 | $583,700 | $146,300 | $0 | $730,000 | $730,000 |
| 2013 | $583,700 | $146,300 | $0 | $730,000 | $730,000 |
| 2012 | $583,700 | $146,300 | $0 | $0 | $0 |
| 2011 | $583,700 | $146,300 | $0 | $0 | $0 |
| 2010 | $677,300 | $9,100 | $0 | $0 | $0 |
| 2009 | $583,700 | $146,300 | $0 | $0 | $0 |
Deed and Sales History
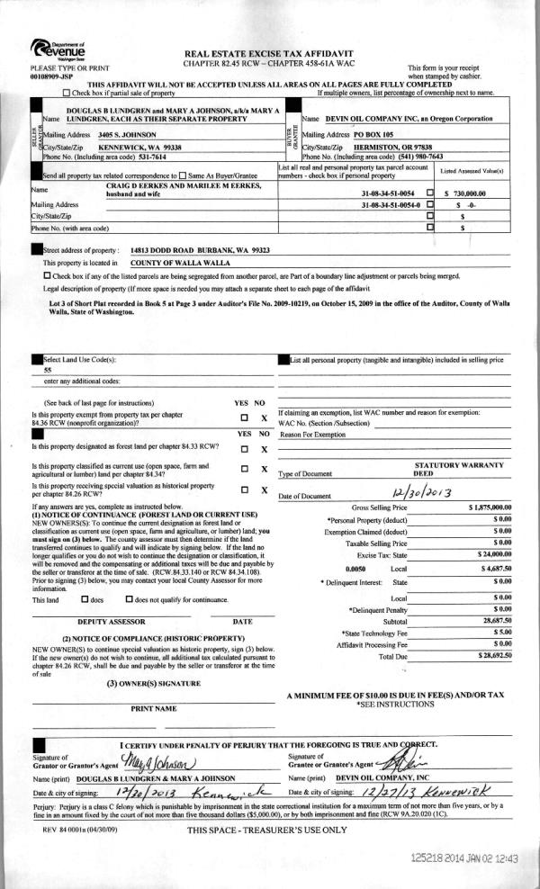
| 1 | 01/02/2014 | WARRANTY D | WARRANTY DEED | LUNDGREN DOUGLAS B & MARY A | DEVIN OIL COMPANY INC | | | $1,875,000.00 | 125218 | 2014-00016 |
Payout Agreement
| No payout information available.. |