Property
Account |
| Property ID: | 27588 | Abbreviated Legal Description: | CBP IRRIGATION BLK 3 (PARCEL C SURVEY 2025-04500) PORTION LOT 1; PLUS PORTION LOT 2 SHORT PLAT 5/3 2009-10219 (PTN FU 34) |
| Parcel Number: | 310834510053 | Agent Code: | |
| Type: | Real | | |
| Tax Area: | 328 - 400-M-5 | Land Use Code | 11 |
| Open Space: | N | DFL | N |
| Historic Property: | N | Remodel Property: | N |
| Multi-Family Redevelopment: | N | | |
| Township: | 8 | Section: | 34 |
| Range: | 31 |
Location |
| Address: | 14787 DODD RD WA 99323 | Mapsco: | |
| Neighborhood: | Burbank F SFR | Map ID: | |
| Neighborhood CD: | 212711 |
Owner |
| Name: | BEAUCHAMP JOHN RYAN & KARA SUZANNE | Owner ID: | 77651 |
| Mailing Address: | 14787 DODD RD BURBANK, WA 99323 | % Ownership: | 100.0000000000% |
| | | Exemptions: | |
Taxes and Assessment Details
Values
| (+) Improvement Homesite Value: | + | N/A | |
| (+) Improvement Non-Homesite Value: | + | N/A | |
| (+) Land Homesite Value: | + | N/A | |
| (+) Land Non-Homesite Value: | + | N/A | Ag / Timber Use Value |
| (+) Curr Use (HS): | + | N/A | N/A |
| (+) Curr Use (NHS): | + | N/A | N/A |
| | | -------------------------- | |
| (=) Market Value: | = | N/A | |
| (–) Productivity Loss: | – | N/A | |
| | | -------------------------- | |
| (=) Subtotal: | = | N/A | |
| (+) Senior Appraised Value: | + | N/A | |
| (+) Non-Senior Appraised Value: | + | N/A | |
| | | -------------------------- | |
| (=) Total Appraised Value: | = | N/A | |
| (–) Senior Exemption Loss: | – | N/A | |
| (–) Exemption Loss: | – | N/A | |
| | | -------------------------- | |
| (=) Taxable Value: | = | N/A | |
Taxing Jurisdiction
| Owner: | BEAUCHAMP JOHN RYAN & KARA SUZANNE | | |
| % Ownership: | 100.0000000000% | | |
| Total Value: | N/A | | |
| Tax Area: | 328 - 400-M-5 |
| CERFD | CURRENT EXPENSE REFUND 010 | N/A | N/A | N/A | N/A | | |
| CURREXP | CURRENT EXPENSE 010 | N/A | N/A | N/A | N/A | | |
| HUMNSERV | HUMAN SERVICES 119 | N/A | N/A | N/A | N/A | | |
| SLDREL | SOLDIERS RELIEF 121 | N/A | N/A | N/A | N/A | | |
| EMERGSER | EMS 147 | N/A | N/A | N/A | N/A | | |
| EMSRFD | EMS REFUND 147 | N/A | N/A | N/A | N/A | | |
| FD5EXP | FD #5 EXPENSE 689 | N/A | N/A | N/A | N/A | | |
| RLBRFD | RURAL LIBRARY REFUND 623 | N/A | N/A | N/A | N/A | | |
| RURALLIB | RURAL LIBRARY 623 | N/A | N/A | N/A | N/A | | |
| PORTRFD | PORT REFUND 640 | N/A | N/A | N/A | N/A | | |
| PORTWWGEN | PORT OF WW 640 | N/A | N/A | N/A | N/A | | |
| SD400BOND | SD #400 BOND 793 | N/A | N/A | N/A | N/A | | |
| SD400CAP | SD #400 CP 792 | N/A | N/A | N/A | N/A | | |
| SD400GEN | SD #400 GENERAL 790 | N/A | N/A | N/A | N/A | | |
| ST2 | STATE SCHOOL PART 2 600 | N/A | N/A | N/A | N/A | | |
| STATESCHL | STATE SCHOOL 600 | N/A | N/A | N/A | N/A | | |
| STREFUND | STATE REFUND LEVY 603 | N/A | N/A | N/A | N/A | | |
| COROAD | COUNTY ROAD 115 | N/A | N/A | N/A | N/A | | |
| CRPRD | COUNTY ROAD REFUND 115 | N/A | N/A | N/A | N/A | | |
| | Total Tax Rate: | N/A | | | | | |
| | | | | Taxes w/Current Exemptions: | N/A | | |
| | | | | Taxes w/o Exemptions: | N/A | | |
Improvement / Building
| Improvement #1: | RESIDENTIAL | State Code: | 11 | 4737.0 sqft | Value: | N/A |
| Exterior Wall: | MASONRY VENEER | Heating/Cooling: | WARM & COOLED AIR | | Number of Bathrooms: | 2.5 | Number of Bedrooms: | 5 | | Plumbing: | 13 | Roof Covering: | WOOD SHAKE |
|
| | Type | Description | Class CD | Sub Class CD | Year Built | Area |
| | MA | Main Area | 2 | 45 | 1965 | 4737.0 |
| | UPFL | Upper Floor (included in main area) | 2 | 45 | 1965 | 2557.0 |
| | SI1 | SITE IMPROVEMENT | 2 | 45 | 1965 | 3.0 |
| | SMP | SWIMMING POOL | 2 | 45 | 1965 | 1.0 |
| | ATG | Attached Garage | 2 | 45 | 1965 | 725.0 |
| | WOD | Wood Deck | 2 | 45 | 1965 | 348.0 |
| | S1F | Single One Story Fireplace | 2 | 45 | 1965 | 3.0 |
| | DTG | Detached Garage | 2 | 45 | 1965 | 416.0 |
| | FIXT | AVERAGE FIXTURE | 2 | 45 | 1965 | 2.0 |
| | SHOP | SHOP BUILDING | 1 | 30 | 1965 | 1687.0 |
Sketch
Property Image
Land
| 1 | C2-I | Class 2 Irrigated | 0.4500 | 19602.00 | 0.00 | 0.00 | 1.00 | N/A | N/A |
| 2 | RES 1 | Converted: Residential | 1.4300 | 62290.80 | 0.00 | 0.00 | 1.00 | N/A | N/A |
Roll Value History
| 2026 | N/A | N/A | N/A | N/A | N/A |
| 2025 | $661,020 | $64,920 | $0 | $725,940 | $725,940 |
| 2024 | $562,330 | $62,310 | $0 | $624,640 | $624,640 |
| 2023 | $562,330 | $62,310 | $0 | $624,640 | $624,640 |
| 2022 | $464,740 | $62,310 | $0 | $527,050 | $527,050 |
| 2021 | $357,490 | $62,310 | $0 | $419,800 | $419,800 |
| 2020 | $334,200 | $39,850 | $0 | $374,050 | $374,050 |
| 2019 | $334,200 | $39,680 | $0 | $373,880 | $373,880 |
| 2018 | $334,200 | $39,630 | $0 | $373,830 | $373,830 |
| 2017 | $334,200 | $39,630 | $0 | $373,830 | $373,830 |
| 2016 | $334,200 | $39,630 | $0 | $373,830 | $373,830 |
| 2015 | $334,200 | $39,460 | $0 | $373,660 | $373,660 |
| 2014 | $334,200 | $39,460 | $0 | $373,660 | $373,660 |
| 2013 | $334,200 | $39,400 | $1,119 | $373,600 | $373,600 |
| 2012 | $337,300 | $36,000 | $0 | $0 | $0 |
| 2011 | $389,800 | $36,000 | $0 | $0 | $0 |
| 2010 | $370,000 | $36,000 | $0 | $0 | $0 |
| 2009 | $334,200 | $39,400 | $0 | $0 | $0 |
Deed and Sales History
| 1 | 09/12/2025 | QCD | QUIT CLAIM DEED | BEAUCHAMP BRAD | BEAUCHAMP JOHN RYAN & KARA SUZANNE | | | | 150015 | 2025-05534 |
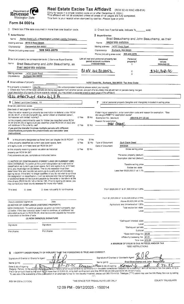
| 2 | 09/12/2025 | QCD | QUIT CLAIM DEED | RAILEX DODD LLC | BEAUCHAMP BRAD & JOHN BEAUCHAMP | | | | 150014 | 2025-05533 |
| 3 | 08/01/2025 | SURVEY | SURVEY | | | 14 | 265 | | 0 | 2025-04500 |
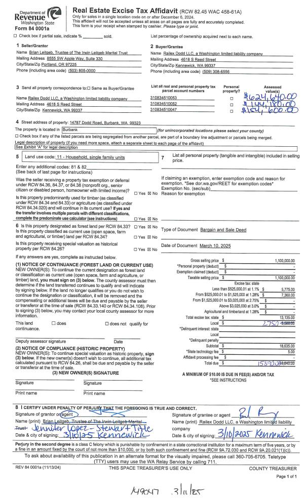
| 4 | 03/11/2025 | BARGAIN & | BARGAIN & SALE DEED | LEITGEB IRWIN MARATAL TRUST | RAILEX DODD LLC | | 3 PARCELS | $1,100,000.00 | 149047 | 2025-01264 |
|   | |
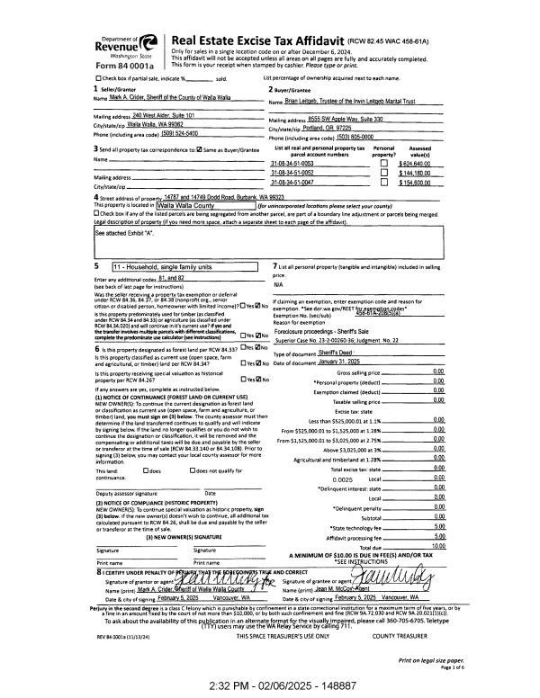
| 5 | 02/06/2025 | SHERIFFS D | SHERIFFS DEED | JONES BRIAN | LEITGEB IRWIN MARATAL TRUST | | | | 148887 | 2025-00626 |
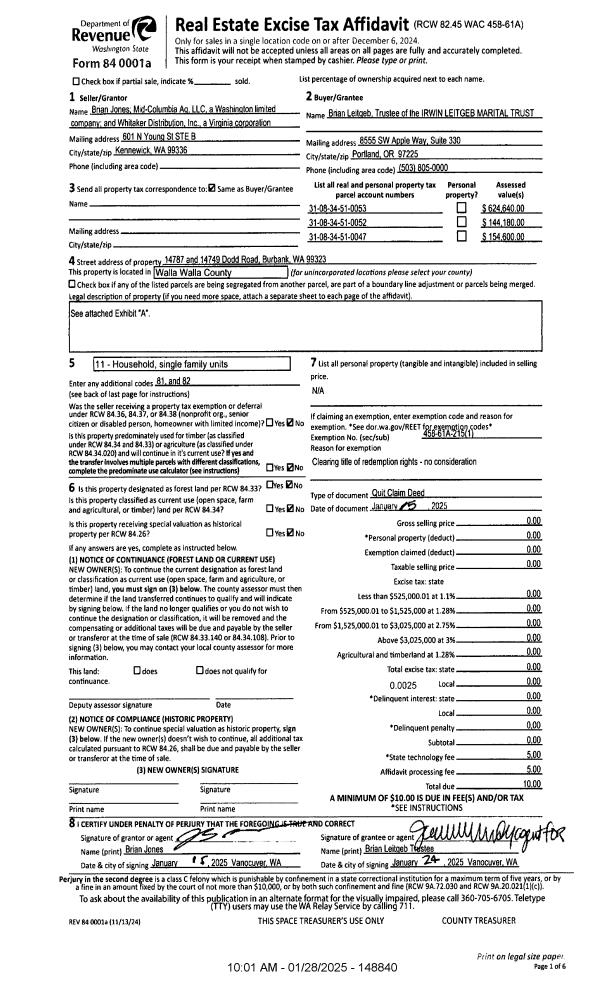
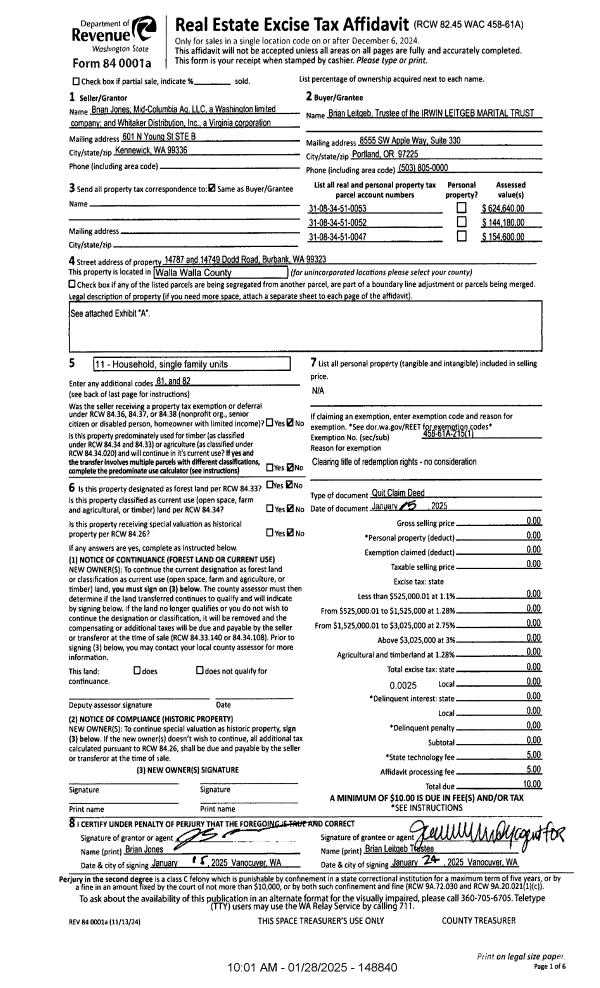
| 6 | 01/28/2025 | QCD | QUIT CLAIM DEED | JONES BRIAN | LEITGEB IRWIN MARATAL TRUST | | | | 148840 | 2025-00447 |
| 7 | 06/29/2021 | QCD | QUIT CLAIM DEED | ATENCIO MICHELLE | JONES BRIAN | | | $0.00 | 141954 | 2021-08039 |
| 8 | 05/18/2016 | SWD | STATUTORY WARRANTY DEED | JOHNSON MARY A | JONES BRIAN | | | $380,000.00 | 130240 | 2016-03740 |
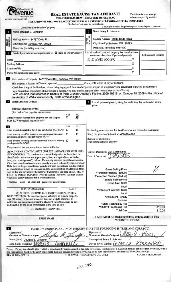
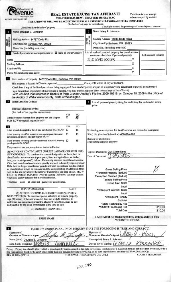
| 9 | 06/29/2012 | QCD | QUIT CLAIM DEED | LUNDGREN, DOUGLAS | JOHNSON, MARY A | | | $0.00 | 122270 | 2012-05479 |
Payout Agreement
| No payout information available.. |