Property
Account |
| Property ID: | 27587 | Abbreviated Legal Description: | CBP IRRIGATION BLK 3 (PARCEL A SURVEY 2025-04500) PTN LOT 1; PLUS PTN LOT 2 SHORT PLAT 5/3 2009-10219; PLUS PTN PARCEL 47 (PTN FARM UNIT 34) |
| Parcel Number: | 310834510052 | Agent Code: | |
| Type: | Real | | |
| Tax Area: | 328 - 400-M-5 | Land Use Code | 81 |
| Open Space: | N | DFL | N |
| Historic Property: | N | Remodel Property: | N |
| Multi-Family Redevelopment: | N | | |
| Township: | 8 | Section: | 34 |
| Range: | 31 |
Location |
| Address: | 14749 DODD RD WA 99323 | Mapsco: | |
| Neighborhood: | 0 Farm | Map ID: | |
| Neighborhood CD: | 2220 |
Owner |
| Name: | ROWELL TIMOTHY & KATRINA | Owner ID: | 77680 |
| Mailing Address: | 8842 W 7TH PL KENNEWICK, WA 99336 | % Ownership: | 100.0000000000% |
| | | Exemptions: | |
Taxes and Assessment Details
Property Tax Information as of
02/21/2026
Click on "Statement Details" to expand or collapse a tax statement.
* Please enter a valid date ** Please enter a valid date *
Statement Details |
| | TOTAL: | $0.00 | $0.00 | $0.00 | $0.00 | $0.00 | $0.00 |
|
| | $0.00 | $0.00 | $0.00 | $0.00 | $0.00 | $0.00 |
Values
| (+) Improvement Homesite Value: | + | $0 | |
| (+) Improvement Non-Homesite Value: | + | $161,060 | |
| (+) Land Homesite Value: | + | $0 | |
| (+) Land Non-Homesite Value: | + | $84,490 | |
| (+) Curr Use (HS): | + | $0 | $0 |
| (+) Curr Use (NHS): | + | $0 | $0 |
| | | -------------------------- | |
| (=) Market Value: | = | $245,550 | |
| (–) Productivity Loss: | – | $0 | |
| | | -------------------------- | |
| (=) Subtotal: | = | $245,550 | |
| (+) Senior Appraised Value: | + | $0 | |
| (+) Non-Senior Appraised Value: | + | $245,550 | |
| | | -------------------------- | |
| (=) Total Appraised Value: | = | $245,550 | |
| (–) Senior Exemption Loss: | – | $0 | |
| (–) Exemption Loss: | – | $0 | |
| | | -------------------------- | |
| (=) Taxable Value: | = | $245,550 | |
Taxing Jurisdiction
| Owner: | ROWELL TIMOTHY & KATRINA | | |
| % Ownership: | 100.0000000000% | | |
| Total Value: | $245,550 | | |
| Tax Area: | 328 - 400-M-5 |
| CERFD | CURRENT EXPENSE REFUND 010 | 0.0000000000 | $245,550 | $245,550 | $0.00 | | |
| CURREXP | CURRENT EXPENSE 010 | 0.9851088983 | $245,550 | $245,550 | $241.89 | | |
| HUMNSERV | HUMAN SERVICES 119 | 0.0250000000 | $245,550 | $245,550 | $6.14 | | |
| SLDREL | SOLDIERS RELIEF 121 | 0.0155990000 | $245,550 | $245,550 | $3.83 | | |
| EMERGSER | EMS 147 | 0.3676811629 | $245,550 | $245,550 | $90.28 | | |
| EMSRFD | EMS REFUND 147 | 0.0000000000 | $245,550 | $245,550 | $0.00 | | |
| FD5EXP | FD #5 EXPENSE 689 | 1.1687305128 | $245,550 | $245,550 | $286.98 | | |
| RLBRFD | RURAL LIBRARY REFUND 623 | 0.0000000000 | $245,550 | $245,550 | $0.00 | | |
| RURALLIB | RURAL LIBRARY 623 | 0.3601547782 | $245,550 | $245,550 | $88.44 | | |
| PORTRFD | PORT REFUND 640 | 0.0000000000 | $245,550 | $245,550 | $0.00 | | |
| PORTWWGEN | PORT OF WW 640 | 0.2344301070 | $245,550 | $245,550 | $57.56 | | |
| SD400BOND | SD #400 BOND 793 | 0.0000000000 | $245,550 | $245,550 | $0.00 | | |
| SD400CAP | SD #400 CP 792 | 0.3211981044 | $245,550 | $245,550 | $78.87 | | |
| SD400GEN | SD #400 GENERAL 790 | 2.1312438929 | $245,550 | $245,550 | $523.33 | | |
| ST2 | STATE SCHOOL PART 2 600 | 0.8853714103 | $245,550 | $245,550 | $217.40 | | |
| STATESCHL | STATE SCHOOL 600 | 1.6424571473 | $245,550 | $245,550 | $403.31 | | |
| STREFUND | STATE REFUND LEVY 603 | 0.0000000000 | $245,550 | $245,550 | $0.00 | | |
| COROAD | COUNTY ROAD 115 | 1.6137667997 | $245,550 | $245,550 | $396.26 | | |
| CRPRD | COUNTY ROAD REFUND 115 | 0.0000000000 | $245,550 | $245,550 | $0.00 | | |
| | Total Tax Rate: | 9.7507418138 | | | | | |
| | | | | Taxes w/Current Exemptions: | $2,394.29 | | |
| | | | | Taxes w/o Exemptions: | $2,394.29 | | |
Improvement / Building
| Improvement #1: | PERM CROP | State Code: | 81 | 0.0 sqft | Value: | $19,110 |
| Improvement #2: | FARM BUILDINGS | State Code: | 81 | 0.0 sqft | Value: | $56,060 |
| Improvement #3: | PERM CROP | State Code: | 81 | 0.0 sqft | Value: | $85,890 |
Sketch
| No sketches available for this property. |
Property Image
Land
| 1 | C2-I | Class 2 Irrigated | 14.3000 | 622908.00 | 0.00 | 0.00 | 1.00 | $82,940 | $0 |
| 2 | 2500-2500 | Rural Res C2 | 0.3700 | 0.00 | 0.00 | 0.00 | 1.00 | $1,550 | $0 |
Roll Value History
| 2026 | N/A | N/A | N/A | N/A | N/A |
| 2025 | $161,060 | $84,490 | $0 | $245,550 | $245,550 |
| 2024 | $117,610 | $26,570 | $0 | $144,180 | $144,180 |
| 2023 | $117,610 | $25,600 | $0 | $143,210 | $143,210 |
| 2022 | $117,610 | $23,730 | $0 | $141,340 | $141,340 |
| 2021 | $117,610 | $21,490 | $0 | $139,100 | $139,100 |
| 2020 | $107,350 | $17,310 | $0 | $124,660 | $124,660 |
| 2019 | $103,800 | $15,380 | $0 | $119,180 | $119,180 |
| 2018 | $103,800 | $14,930 | $0 | $118,730 | $118,730 |
| 2017 | $103,800 | $14,890 | $0 | $118,690 | $118,690 |
| 2016 | $103,800 | $14,890 | $0 | $118,690 | $118,690 |
| 2015 | $103,800 | $13,030 | $0 | $116,830 | $116,830 |
| 2014 | $103,800 | $13,030 | $0 | $116,830 | $116,830 |
| 2013 | $103,800 | $12,600 | $12,600 | $116,400 | $116,400 |
| 2012 | $88,700 | $11,200 | $0 | $0 | $0 |
| 2011 | $88,700 | $11,200 | $0 | $0 | $0 |
| 2010 | $66,500 | $11,200 | $0 | $0 | $0 |
| 2009 | $89,600 | $12,600 | $0 | $0 | $0 |
Deed and Sales History
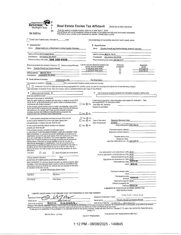
| 1 | 08/01/2025 | SURVEY | SURVEY | | | 14 | 265 | | 0 | 2025-04500 |
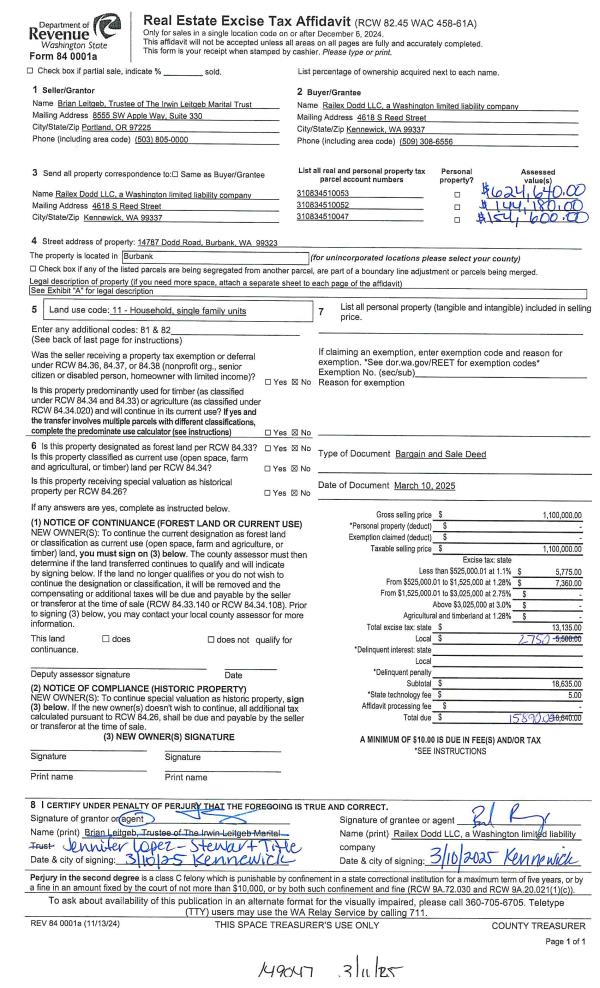
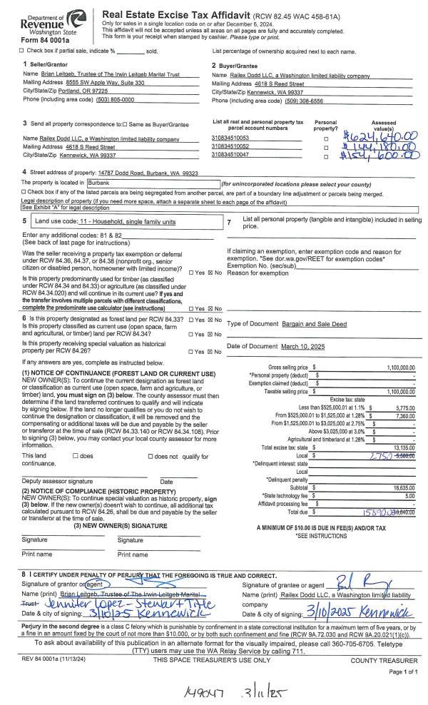
| 2 | 03/11/2025 | BARGAIN & | BARGAIN & SALE DEED | LEITGEB IRWIN MARATAL TRUST | RAILEX DODD LLC | | 3 PARCELS | $1,100,000.00 | 149047 | 2025-01264 |
|   | |
| 3 | 02/06/2025 | SHERIFFS D | SHERIFFS DEED | MID-COLUMBIA AG | LEITGEB IRWIN MARATAL TRUST | | | | 148887 | 2025-00626 |
| 4 | 01/28/2025 | QCD | QUIT CLAIM DEED | MID-COLUMBIA AG | LEITGEB IRWIN MARATAL TRUST | | | | 148840 | 2025-00447 |
| 5 | 06/03/2010 | WARRANTY D | WARRANTY DEED | LUNDGREN DOUGLAS B & MARY A | MID-COLUMBIA AG | | | | 118572 | 2010-04294 |
Payout Agreement
| No payout information available.. |