Property
Account |
| Property ID: | 27560 | Abbreviated Legal Description: | REPLAT OF LOTS 1 & 11 OF LA MONTAGNE ESTATES LOT 1 |
| Parcel Number: | 350734520001 | Agent Code: | |
| Type: | Real | | |
| Tax Area: | 311 - 250-4 | Land Use Code | 11 |
| Open Space: | N | DFL | N |
| Historic Property: | N | Remodel Property: | N |
| Multi-Family Redevelopment: | N | | |
| Township: | | Section: | |
| Range: | |
Location |
| Address: | 2551 PALISADES LN WALLA WALLA, WA 99362 | Mapsco: | |
| Neighborhood: | La Montagne | Map ID: | |
| Neighborhood CD: | 117012 |
Owner |
| Name: | CARLSEN SCOTT & MARY | Owner ID: | 73746 |
| Mailing Address: | 2551 PALISADES LN WALLA WALLA, WA 99362 | % Ownership: | 100.0000000000% |
| | | Exemptions: | |
Taxes and Assessment Details
Values
| (+) Improvement Homesite Value: | + | $0 | |
| (+) Improvement Non-Homesite Value: | + | $1,198,010 | |
| (+) Land Homesite Value: | + | $0 | |
| (+) Land Non-Homesite Value: | + | $200,000 | |
| (+) Curr Use (HS): | + | $0 | $0 |
| (+) Curr Use (NHS): | + | $0 | $0 |
| | | -------------------------- | |
| (=) Market Value: | = | $1,398,010 | |
| (–) Productivity Loss: | – | $0 | |
| | | -------------------------- | |
| (=) Subtotal: | = | $1,398,010 | |
| (+) Senior Appraised Value: | + | $0 | |
| (+) Non-Senior Appraised Value: | + | $1,398,010 | |
| | | -------------------------- | |
| (=) Total Appraised Value: | = | $1,398,010 | |
| (–) Senior Exemption Loss: | – | $0 | |
| (–) Exemption Loss: | – | $0 | |
| | | -------------------------- | |
| (=) Taxable Value: | = | $1,398,010 | |
Taxing Jurisdiction
| Owner: | CARLSEN SCOTT & MARY | | |
| % Ownership: | 100.0000000000% | | |
| Total Value: | $1,398,010 | | |
| Tax Area: | 311 - 250-4 |
| CERFD | CURRENT EXPENSE REFUND 010 | 0.0000000000 | $1,398,010 | $1,398,010 | $0.00 | | |
| CURREXP | CURRENT EXPENSE 010 | 1.0175366760 | $1,398,010 | $1,398,010 | $1,422.53 | | |
| HUMNSERV | HUMAN SERVICES 119 | 0.0250000000 | $1,398,010 | $1,398,010 | $34.95 | | |
| SLDREL | SOLDIERS RELIEF 121 | 0.0155990005 | $1,398,010 | $1,398,010 | $21.81 | | |
| EMERGSER | EMS 147 | 0.3792580840 | $1,398,010 | $1,398,010 | $530.21 | | |
| EMSRFD | EMS REFUND 147 | 0.0000000000 | $1,398,010 | $1,398,010 | $0.00 | | |
| FD4EXP | FD #4 EXPENSE 686 | 0.8836993059 | $1,398,010 | $1,398,010 | $1,235.42 | | |
| RLBRFD | RURAL LIBRARY REFUND 623 | 0.0000000000 | $1,398,010 | $1,398,010 | $0.00 | | |
| RURALLIB | RURAL LIBRARY 623 | 0.3710609029 | $1,398,010 | $1,398,010 | $518.75 | | |
| PORTRFD | PORT REFUND 640 | 0.0000000000 | $1,398,010 | $1,398,010 | $0.00 | | |
| PORTWWGEN | PORT OF WW 640 | 0.2460186015 | $1,398,010 | $1,398,010 | $343.94 | | |
| SD250BOND | SD #250 BOND 773 | 1.4560608159 | $1,398,010 | $1,398,010 | $2,035.59 | | |
| SD250GEN | SD #250 GENERAL 770 | 2.3880724087 | $1,398,010 | $1,398,010 | $3,338.55 | | |
| ST2 | STATE SCHOOL PART 2 600 | 0.8131451643 | $1,398,010 | $1,398,010 | $1,136.79 | | |
| STATESCHL | STATE SCHOOL 600 | 1.5158548041 | $1,398,010 | $1,398,010 | $2,119.18 | | |
| STREFUND | STATE REFUND LEVY 603 | 0.0000000000 | $1,398,010 | $1,398,010 | $0.00 | | |
| COROAD | COUNTY ROAD 115 | 1.6549953990 | $1,398,010 | $1,398,010 | $2,313.70 | | |
| CRPRD | COUNTY ROAD REFUND 115 | 0.0000000000 | $1,398,010 | $1,398,010 | $0.00 | | |
| | Total Tax Rate: | 10.7663011628 | | | | | |
| | | | | Taxes w/Current Exemptions: | $15,051.42 | | |
| | | | | Taxes w/o Exemptions: | $15,051.42 | | |
Improvement / Building
| Improvement #1: | RESIDENTIAL | State Code: | 11 | 2972.0 sqft | Value: | $1,198,010 |
| Exterior Wall: | STUCCO | Heating/Cooling: | REV-HEAT-PUMP-W/DUCT | | Number of Bathrooms: | 3.5 | Number of Bedrooms: | 4 | | Plumbing: | 18 | Roof Covering: | GALVANIZED METAL |
|
| | Type | Description | Class CD | Sub Class CD | Year Built | Area |
| | MA | Main Area | 1 | 55 | 2016 | 2972.0 |
| | ATG | Attached Garage | 1 | 55 | 2016 | 960.0 |
| | RPC | OPEN PORCH W/ROOF , CEILED | 1 | 55 | 2016 | 88.0 |
| | RPC | OPEN PORCH W/ROOF , CEILED | 1 | 55 | 2016 | 238.0 |
| | RPC | OPEN PORCH W/ROOF , CEILED | 1 | 55 | 2016 | 496.0 |
| | SMP | SWIMMING POOL | 1 | 55 | 2016 | 1.0 |
| | SI1 | SITE IMPROVEMENT | 1 | 55 | 2016 | 5.5 |
| | GFP | GAS FIREPLACE | 1 | 55 | 2016 | 2.0 |
Sketch
Property Image
Land
| 1 | RES 1 | Converted: Residential | 1.9982 | 87040.00 | 0.00 | 0.00 | 1.00 | $200,000 | $0 |
Roll Value History
| 2026 | N/A | N/A | N/A | N/A | N/A |
| 2025 | $1,605,550 | $200,000 | $0 | $1,805,550 | $1,805,550 |
| 2024 | $1,497,510 | $200,000 | $0 | $1,697,510 | $1,697,510 |
| 2023 | $1,198,010 | $200,000 | $0 | $1,398,010 | $1,398,010 |
| 2022 | $544,550 | $200,000 | $0 | $744,550 | $744,550 |
| 2021 | $518,620 | $200,000 | $0 | $718,620 | $718,620 |
| 2020 | $471,470 | $200,000 | $0 | $671,470 | $671,470 |
| 2019 | $571,470 | $100,000 | $0 | $671,470 | $671,470 |
| 2018 | $571,470 | $100,000 | $0 | $671,470 | $671,470 |
| 2017 | $571,470 | $100,000 | $0 | $671,470 | $671,470 |
| 2016 | $571,470 | $100,000 | $0 | $671,470 | $671,470 |
| 2015 | $0 | $100,000 | $0 | $100,000 | $100,000 |
| 2014 | $0 | $100,000 | $0 | $100,000 | $100,000 |
| 2013 | $0 | $160,000 | $0 | $160,000 | $160,000 |
| 2012 | $0 | $160,000 | $0 | $0 | $0 |
| 2011 | $0 | $245,000 | $0 | $0 | $0 |
| 2010 | $0 | $245,000 | $0 | $0 | $0 |
| 2009 | $0 | $160,000 | $0 | $0 | $0 |
Deed and Sales History
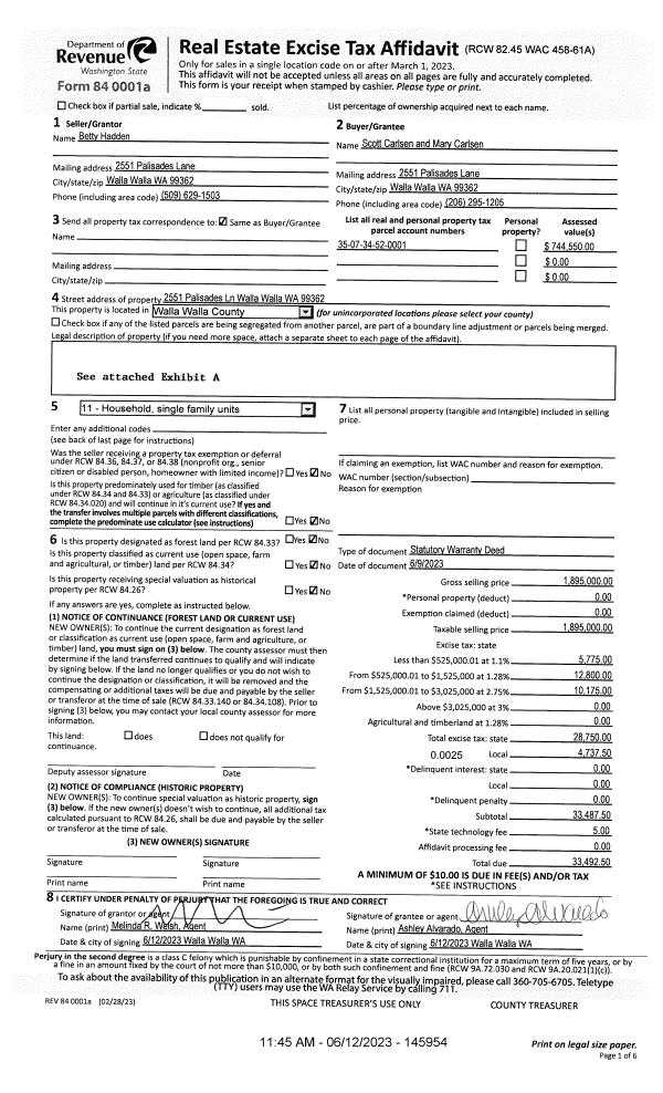
| 1 | 06/12/2023 | SWD | STATUTORY WARRANTY DEED | HADDEN BETTY | CARLSEN SCOTT & MARY | | | $1,895,000.00 | 145954 | 2023-03207 |
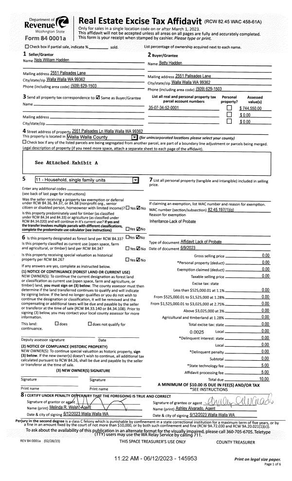
| 2 | 06/12/2023 | LOPA | LACK OF PROBATE AFFIDAVIT | HADDEN NELS & BETSY | HADDEN BETTY | | | | 145953 | 2023-03206 |
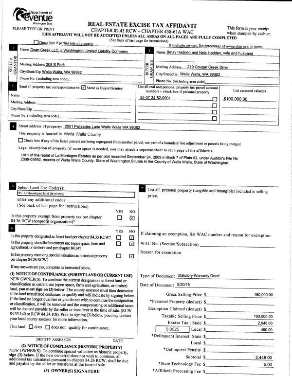
| 3 | 05/20/2015 | SWD | STATUTORY WARRANTY DEED | DOAN CREEK LLC | HADDEN NELS & BETSY | | | $160,000.00 | 128019 | 2015-04293 |
| 4 | 09/20/2011 | WARRANTY D | WARRANTY DEED | "CENTURY PLACE LLC, MARK~FREDL | | | | | 0 | 2011-07324 |
| 5 | 09/06/2011 | WARRANTY D | WARRANTY DEED | WALLA WALLA COUNTY~SHERIFF | DOAN CREEK LLC | | | | 0 | 2011-06932 |
| 6 | 02/01/2011 | QCD | QUIT CLAIM DEED | CENTURY PLACE LLC | BANK OF WHITMAN | | | | 119679 | 2011-01014 |
Payout Agreement
| No payout information available.. |