Property
Account |
| Property ID: | 27484 | Abbreviated Legal Description: | VUE TWENTY TWO P.U.D. LOT 4 |
| Parcel Number: | 360720940004 | Agent Code: | |
| Type: | Real | | |
| Tax Area: | 1 - OL-140-F | Land Use Code | 14 |
| Open Space: | N | DFL | N |
| Historic Property: | N | Remodel Property: | N |
| Multi-Family Redevelopment: | N | | |
| Township: | 7 | Section: | 20 |
| Range: | 36 |
Location |
| Address: | 182 N 5TH AVE WA 99362 | Mapsco: | |
| Neighborhood: | A Condo | Map ID: | |
| Neighborhood CD: | 513041 |
Owner |
| Name: | UNDERRINER WILLIAM BLAKE & CAROLINE | Owner ID: | 71060 |
| Mailing Address: | 4316 RIO VISTA DR BILLINGS, MT 59106 | % Ownership: | 100.0000000000% |
| | | Exemptions: | |
Taxes and Assessment Details
Values
| (+) Improvement Homesite Value: | + | $0 | |
| (+) Improvement Non-Homesite Value: | + | $624,500 | |
| (+) Land Homesite Value: | + | $0 | |
| (+) Land Non-Homesite Value: | + | $0 | |
| (+) Curr Use (HS): | + | $0 | $0 |
| (+) Curr Use (NHS): | + | $0 | $0 |
| | | -------------------------- | |
| (=) Market Value: | = | $624,500 | |
| (–) Productivity Loss: | – | $0 | |
| | | -------------------------- | |
| (=) Subtotal: | = | $624,500 | |
| (+) Senior Appraised Value: | + | $0 | |
| (+) Non-Senior Appraised Value: | + | $624,500 | |
| | | -------------------------- | |
| (=) Total Appraised Value: | = | $624,500 | |
| (–) Senior Exemption Loss: | – | $0 | |
| (–) Exemption Loss: | – | $0 | |
| | | -------------------------- | |
| (=) Taxable Value: | = | $624,500 | |
Taxing Jurisdiction
| Owner: | UNDERRINER WILLIAM BLAKE & CAROLINE | | |
| % Ownership: | 100.0000000000% | | |
| Total Value: | $624,500 | | |
| Tax Area: | 1 - OL-140-F |
| CERFD | CURRENT EXPENSE REFUND 010 | 0.0000000000 | $624,500 | $624,500 | $0.00 | | |
| CURREXP | CURRENT EXPENSE 010 | 0.9851088983 | $624,500 | $624,500 | $615.20 | | |
| HUMNSERV | HUMAN SERVICES 119 | 0.0250000000 | $624,500 | $624,500 | $15.61 | | |
| SLDREL | SOLDIERS RELIEF 121 | 0.0155990000 | $624,500 | $624,500 | $9.74 | | |
| EMERGSER | EMS 147 | 0.3676811629 | $624,500 | $624,500 | $229.62 | | |
| EMSRFD | EMS REFUND 147 | 0.0000000000 | $624,500 | $624,500 | $0.00 | | |
| PORTRFD | PORT REFUND 640 | 0.0000000000 | $624,500 | $624,500 | $0.00 | | |
| PORTWWGEN | PORT OF WW 640 | 0.2344301070 | $624,500 | $624,500 | $146.40 | | |
| SD140BOND | SD #140 BOND 764 | 0.8032434458 | $624,500 | $624,500 | $501.63 | | |
| SD140CAP | SD #140 CAP 762 | 0.3840034221 | $624,500 | $624,500 | $239.81 | | |
| SD140GEN | SD #140 GENERAL 760 | 2.4999999996 | $624,500 | $624,500 | $1,561.25 | | |
| ST2 | STATE SCHOOL PART 2 600 | 0.8853714103 | $624,500 | $624,500 | $552.91 | | |
| STATESCHL | STATE SCHOOL 600 | 1.6424571473 | $624,500 | $624,500 | $1,025.71 | | |
| STREFUND | STATE REFUND LEVY 603 | 0.0000000000 | $624,500 | $624,500 | $0.00 | | |
| CWWBOND | C OF WW BOND 643 | 0.2642134255 | $624,500 | $624,500 | $165.00 | | |
| CWWGEN | CITY OF WW 631 | 1.6110494978 | $624,500 | $624,500 | $1,006.10 | | |
| CWWRFD | CITY OF WALLA WALLA REFUND 631 | 0.0000000000 | $624,500 | $624,500 | $0.00 | | |
| | Total Tax Rate: | 9.7181575166 | | | | | |
| | | | | Taxes w/Current Exemptions: | $6,068.98 | | |
| | | | | Taxes w/o Exemptions: | $6,068.98 | | |
Improvement / Building
| Improvement #1: | RESIDENTIAL | State Code: | 14 | 1823.0 sqft | Value: | $624,500 |
| Exterior Wall: | FACE BRICK | Heating/Cooling: | HEAT PUMP | | Number of Bathrooms: | 3.5 | Number of Bedrooms: | 3 | | Plumbing: | 15 | Roof Covering: | BUILT-UP ROCK |
|
| | Type | Description | Class CD | Sub Class CD | Year Built | Area |
| | MA | Main Area | 7 | 60 | 2008 | 1823.0 |
| | SI1 | SITE IMPROVEMENT | 7 | 60 | 2008 | 6.0 |
| | UPFL | Upper Floor (included in main area) | 7 | 60 | 2008 | 1063.0 |
| | BIG | Built In Garage | 7 | 60 | 2008 | 418.0 |
Sketch
| No sketches available for this property. |
Property Image
Land
No land segments exist for this property.
Roll Value History
| 2026 | N/A | N/A | N/A | N/A | N/A |
| 2025 | $624,500 | $0 | $0 | $624,500 | $624,500 |
| 2024 | $624,500 | $0 | $0 | $624,500 | $624,500 |
| 2023 | $600,600 | $0 | $0 | $600,600 | $600,600 |
| 2022 | $600,600 | $0 | $0 | $600,600 | $600,600 |
| 2021 | $462,000 | $0 | $0 | $462,000 | $462,000 |
| 2020 | $440,000 | $0 | $0 | $440,000 | $440,000 |
| 2019 | $440,000 | $0 | $0 | $440,000 | $440,000 |
| 2018 | $15,000 | $75,000 | $0 | $90,000 | $90,000 |
| 2017 | $15,000 | $75,000 | $0 | $90,000 | $90,000 |
| 2016 | $15,000 | $75,000 | $0 | $90,000 | $90,000 |
| 2015 | $15,000 | $75,000 | $0 | $90,000 | $90,000 |
| 2014 | $15,000 | $75,000 | $0 | $90,000 | $90,000 |
| 2013 | $15,000 | $75,000 | $0 | $90,000 | $90,000 |
| 2012 | $15,000 | $75,000 | $0 | $0 | $0 |
| 2011 | $15,000 | $75,000 | $0 | $0 | $0 |
| 2010 | $15,000 | $75,000 | $0 | $0 | $0 |
| 2009 | $279,700 | $75,000 | $0 | $0 | $0 |
| 2008 | $239,600 | $75,000 | $0 | $0 | $0 |
Deed and Sales History
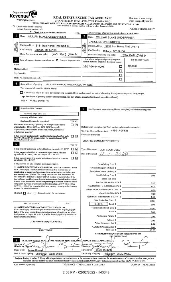
| 1 | 02/01/2022 | QCD | QUIT CLAIM DEED | UNDERRINER WILLIAM BLAKE | UNDERRINER WILLIAM BLAKE & CAROLINE | | | $0.00 | 143343 | 2022-01025 |
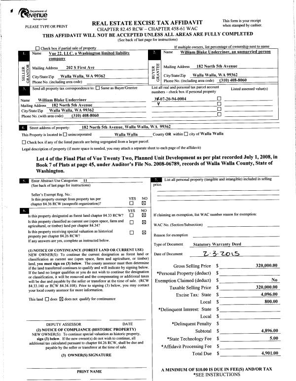
| 2 | 02/20/2015 | SWD | STATUTORY WARRANTY DEED | VUE 22 LLC | UNDERRINER WILLIAM BLAKE | | | $320,000.00 | 127459 | 2015-01539 |
| 3 | 01/05/2015 | SWD | STATUTORY WARRANTY DEED | WALLA WALLA DEVELOPMENT LLC | VUE 22 LLC | | 7-PARCELS | | 127219 | 2015-00068 |
| 4 | 12/31/2014 | SWD | STATUTORY WARRANTY DEED | WALLA WALLA DEVELOPMENT LLC | VUE 22 LLC | | 7-PARCELS | $1,890,000.00 | 127211 | 2014-09522 |
|   | |
Payout Agreement
| No payout information available.. |