| 1 | 09/22/2017 | SWD | STATUTORY WARRANTY DEED | WALLA WALLA YMCA | MCKINNEY FAMILY FARMS LLC | | 2-PARCELS | $181,500.00 | 133266 | 2017-07474 |
|   | |
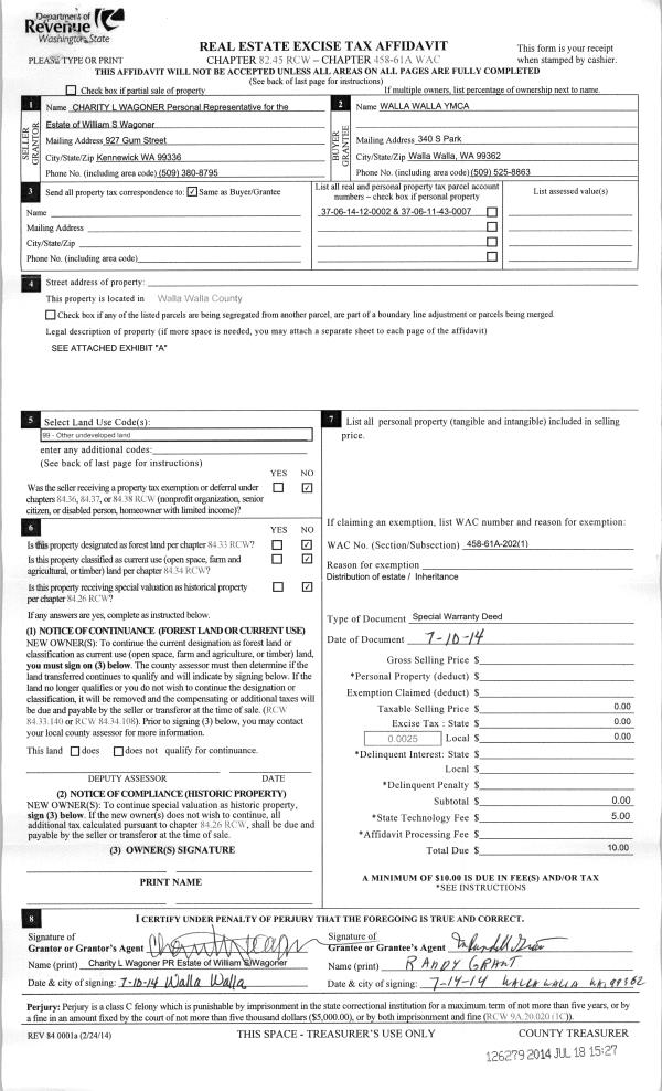
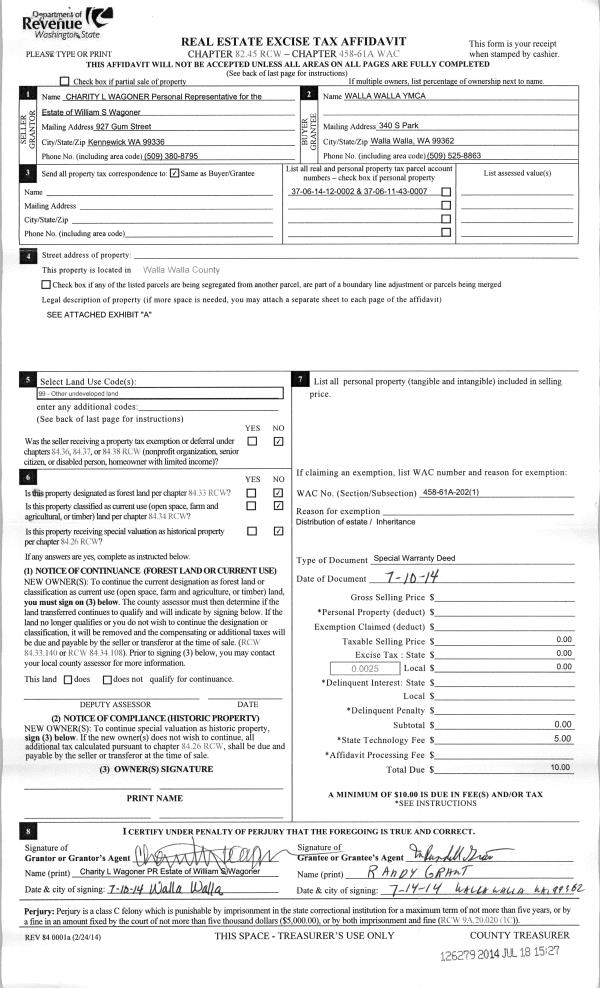
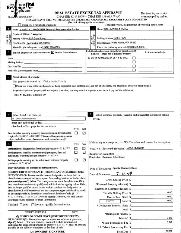
| 2 | 07/18/2014 | SWP | Special Warranty Deed | WAGONER WILLIAM S ESTATE OF | WALLA WALLA YMCA | 2-PARCELS | | $0.00 | 126279 | 2014-05057 |
| 3 | 10/23/2008 | QCD | QUIT CLAIM DEED | O'BRIEN, JUDITH L | WAGONER, WILLIAM S | | | | 115862 | 2008-10770 |
| 4 | 10/20/2008 | WARRANTY D | WARRANTY DEED | WAGONER, WILBUR S ESTATE OF | WAGONER, WILLIAM S | | | | 115842 | 2008-10665 |
| 5 | 09/10/2007 | WARRANTY D | WARRANTY DEED | "STIMMEL, NANCY E" | | | | | 113676 | 2007-10659 |
| 6 | 08/17/2007 | WARRANTY D | WARRANTY DEED | "STIMMEL, NANCY" | | | | | 113534 | 2007-09636 |
| 7 | 08/06/2007 | WARRANTY D | WARRANTY DEED | "WEAVER, JOHN W & IVA JEAN" | | | | | 113454 | 2007-09136 |
| 8 | 07/26/2007 | WARRANTY D | WARRANTY DEED | "STIMMEL, NANCY" | | | | | 113353 | 2007-08672 |
| 9 | 06/25/2007 | WARRANTY D | WARRANTY DEED | "WEAVER, JOHN W & IVA JEAN" | WAGONER WILLIAM S ET AL | | | | 113120 | 2007-07242 |
| 10 | 02/15/2007 | WARRANTY D | WARRANTY DEED | GILBERT, DOROTHY WEAVER | WEAVER, JOHN W & IVA JEAN | | | $22,027.00 | 112243 | 2007-01838 |
|   | |
| 11 | 02/15/2007 | WARRANTY D | WARRANTY DEED | WINEGAR, J TRUMAN | WAGONER, WILLIAM | | | $22,027.00 | 112240 | 2007-01840 |
|   | |
| 12 | 09/08/2006 | WARRANTY D | WARRANTY DEED | MASON, BERTHA | WEAVER, JOHN & IVA JEAN | | | | 105213 | 2006-10855 |
| 13 | 07/09/2004 | WARRANTY D | WARRANTY DEED | "MASON, BERTHA" | | | | | 105213 | 2004-07705 |
| 14 | 05/01/1978 | WARRANTY D | WARRANTY DEED | | | | | $0.00 | 0 | 8078-03421 |