| 1 | 08/26/2022 | SWD | STATUTORY WARRANTY DEED | CLEMENS TREVOR | HAYS ERIC ALLEN & BRANDI NOEL | | 3-PARCELS | $567,500.00 | 144595 | 2022-07300 |
|   | |
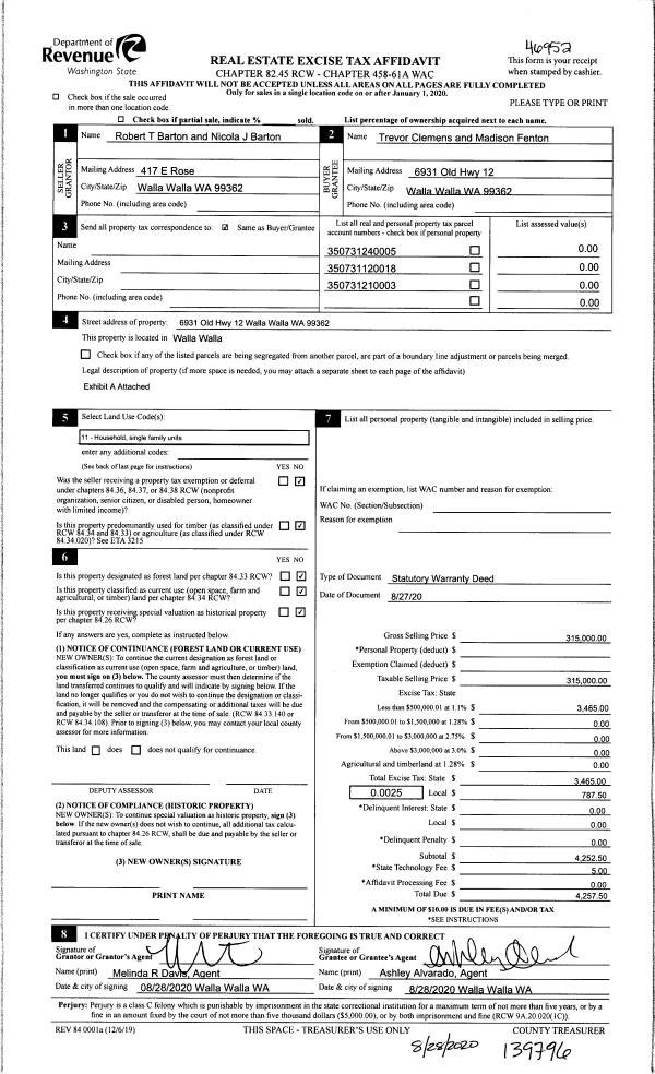
| 2 | 08/27/2020 | SWD | STATUTORY WARRANTY DEED | BARTON ROBERT T & NICOLA J | CLEMENS TREVOR | | 3-PARCELS | $315,000.00 | 139796 | 2020-08685 |
|   | |
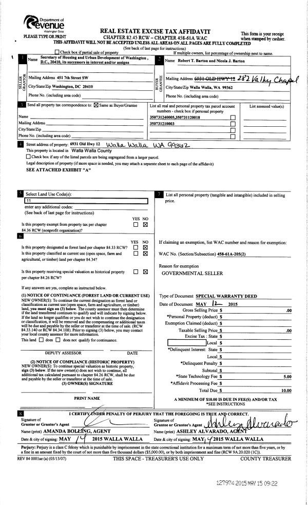
| 3 | 05/12/2015 | SWP | Special Warranty Deed | SECRETARY OF HOUSING & URBAN DEV | BARTON ROBERT T & NICOLA J | | 3 PARCELS | $0.00 | 127974 | 2015-04082 |
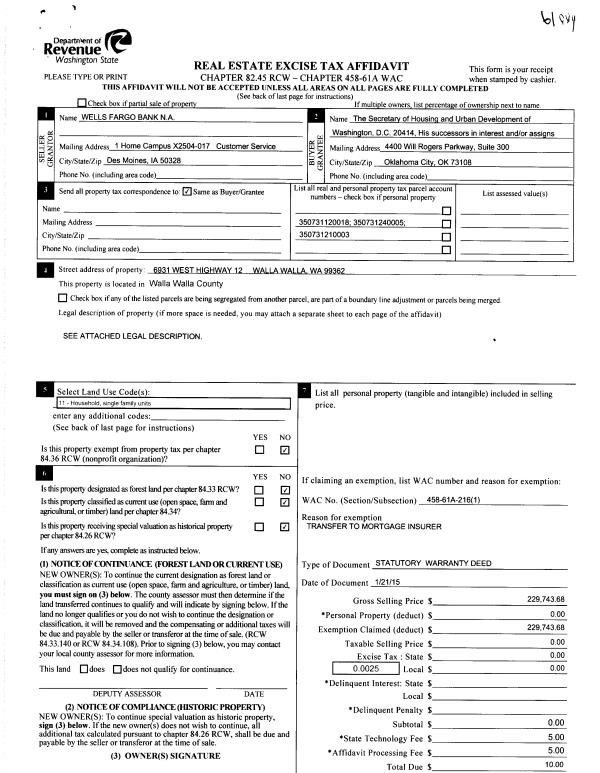
| 4 | 01/29/2015 | SWD | STATUTORY WARRANTY DEED | WELLS FARGO BANK NA | SECRETARY OF HOUSING & URBAN DEV | | 3-PARCELS | $229,743.00 | 127347 | 2015-00779 |
|   | |
| 5 | 05/03/2013 | WARRANTY D | WARRANTY DEED | QUALITY LOAN SERVICE CORPORATI | WELLS FARGO BANK NA | | 3-PARCELS | $229,743.00 | 123902 | 2013-04402 |
|   | |
| 6 | 04/28/2004 | WARRANTY D | WARRANTY DEED | WIGGINS, CHERYL | SMITH, B EIRGIL & SHARRON L | | | $155,000.00 | 104612 | 2004-04475 |
|   | |
| 7 | 08/12/1994 | WARRANTY D | WARRANTY DEED | | | | | $110,000.00 | 82340 | 2229-409518 |
|   | |