Property
Account |
| Property ID: | 27424 | Abbreviated Legal Description: | 31-7-35 TAX 6C |
| Parcel Number: | 350731110018 | Agent Code: | |
| Type: | Real | | |
| Tax Area: | 101 - 140-4 | Land Use Code | 91 |
| Open Space: | N | DFL | N |
| Historic Property: | N | Remodel Property: | N |
| Multi-Family Redevelopment: | N | | |
| Township: | 7 | Section: | 31 |
| Range: | 35 |
Location |
| Address: | SWEGLE RD WA 99362 | Mapsco: | |
| Neighborhood: | A-SFR Contig | Map ID: | |
| Neighborhood CD: | 313097 |
Owner |
| Name: | KOENIG GERARD & BETH E | Owner ID: | 75267 |
| Mailing Address: | 13198 AVENUE 232 TULARE, CA 93274 | % Ownership: | 100.0000000000% |
| | | Exemptions: | |
Taxes and Assessment Details
Property Tax Information as of
02/21/2026
Click on "Statement Details" to expand or collapse a tax statement.
* Please enter a valid date ** Please enter a valid date *
Statement Details |
| | TOTAL: | $0.00 | $0.00 | $0.00 | $0.00 | $0.00 | $0.00 |
|
| | $0.00 | $0.00 | $0.00 | $0.00 | $0.00 | $0.00 |
Values
| (+) Improvement Homesite Value: | + | $0 | |
| (+) Improvement Non-Homesite Value: | + | $0 | |
| (+) Land Homesite Value: | + | $0 | |
| (+) Land Non-Homesite Value: | + | $3,500 | |
| (+) Curr Use (HS): | + | $0 | $0 |
| (+) Curr Use (NHS): | + | $0 | $0 |
| | | -------------------------- | |
| (=) Market Value: | = | $3,500 | |
| (–) Productivity Loss: | – | $0 | |
| | | -------------------------- | |
| (=) Subtotal: | = | $3,500 | |
| (+) Senior Appraised Value: | + | $0 | |
| (+) Non-Senior Appraised Value: | + | $3,500 | |
| | | -------------------------- | |
| (=) Total Appraised Value: | = | $3,500 | |
| (–) Senior Exemption Loss: | – | $0 | |
| (–) Exemption Loss: | – | $0 | |
| | | -------------------------- | |
| (=) Taxable Value: | = | $3,500 | |
Taxing Jurisdiction
| Owner: | KOENIG GERARD & BETH E | | |
| % Ownership: | 100.0000000000% | | |
| Total Value: | $3,500 | | |
| Tax Area: | 101 - 140-4 |
| CERFD | CURRENT EXPENSE REFUND 010 | 0.0000000000 | $3,500 | $3,500 | $0.00 | | |
| CURREXP | CURRENT EXPENSE 010 | 0.9851088983 | $3,500 | $3,500 | $3.45 | | |
| HUMNSERV | HUMAN SERVICES 119 | 0.0250000000 | $3,500 | $3,500 | $0.09 | | |
| SLDREL | SOLDIERS RELIEF 121 | 0.0155990000 | $3,500 | $3,500 | $0.05 | | |
| EMERGSER | EMS 147 | 0.3676811629 | $3,500 | $3,500 | $1.29 | | |
| EMSRFD | EMS REFUND 147 | 0.0000000000 | $3,500 | $3,500 | $0.00 | | |
| FD4EXP | FD #4 EXPENSE 686 | 1.2367913128 | $3,500 | $3,500 | $4.33 | | |
| RLBRFD | RURAL LIBRARY REFUND 623 | 0.0000000000 | $3,500 | $3,500 | $0.00 | | |
| RURALLIB | RURAL LIBRARY 623 | 0.3601547782 | $3,500 | $3,500 | $1.26 | | |
| PORTRFD | PORT REFUND 640 | 0.0000000000 | $3,500 | $3,500 | $0.00 | | |
| PORTWWGEN | PORT OF WW 640 | 0.2344301070 | $3,500 | $3,500 | $0.82 | | |
| SD140BOND | SD #140 BOND 764 | 0.8032434458 | $3,500 | $3,500 | $2.81 | | |
| SD140CAP | SD #140 CAP 762 | 0.3840034221 | $3,500 | $3,500 | $1.34 | | |
| SD140GEN | SD #140 GENERAL 760 | 2.4999999996 | $3,500 | $3,500 | $8.75 | | |
| ST2 | STATE SCHOOL PART 2 600 | 0.8853714103 | $3,500 | $3,500 | $3.10 | | |
| STATESCHL | STATE SCHOOL 600 | 1.6424571473 | $3,500 | $3,500 | $5.75 | | |
| STREFUND | STATE REFUND LEVY 603 | 0.0000000000 | $3,500 | $3,500 | $0.00 | | |
| COROAD | COUNTY ROAD 115 | 1.6137667997 | $3,500 | $3,500 | $5.65 | | |
| CRPRD | COUNTY ROAD REFUND 115 | 0.0000000000 | $3,500 | $3,500 | $0.00 | | |
| | Total Tax Rate: | 11.0536074840 | | | | | |
| | | | | Taxes w/Current Exemptions: | $38.69 | | |
| | | | | Taxes w/o Exemptions: | $38.69 | | |
Improvement / Building
Sketch
| No sketches available for this property. |
Property Image
Land
| 1 | RES 1 | Converted: Residential | 0.6900 | 30056.40 | 0.00 | 0.00 | 1.00 | $3,500 | $0 |
Roll Value History
| 2026 | N/A | N/A | N/A | N/A | N/A |
| 2025 | $0 | $3,500 | $0 | $3,500 | $3,500 |
| 2024 | $0 | $3,500 | $0 | $3,500 | $3,500 |
| 2023 | $0 | $3,500 | $0 | $3,500 | $3,500 |
| 2022 | $0 | $3,500 | $0 | $3,500 | $3,500 |
| 2021 | $0 | $5,500 | $0 | $5,500 | $5,500 |
| 2020 | $0 | $5,500 | $0 | $5,500 | $5,500 |
| 2019 | $0 | $5,500 | $0 | $5,500 | $5,500 |
| 2018 | $0 | $5,500 | $0 | $5,500 | $5,500 |
| 2017 | $0 | $5,500 | $0 | $5,500 | $5,500 |
| 2016 | $0 | $5,500 | $0 | $5,500 | $5,500 |
| 2015 | $0 | $5,500 | $0 | $5,500 | $5,500 |
| 2014 | $0 | $5,500 | $0 | $5,500 | $5,500 |
| 2013 | $0 | $5,500 | $0 | $5,500 | $5,500 |
| 2012 | $0 | $5,500 | $0 | $0 | $0 |
| 2011 | $0 | $5,500 | $0 | $0 | $0 |
| 2010 | $0 | $8,000 | $0 | $0 | $0 |
| 2009 | $0 | $3,500 | $0 | $0 | $0 |
| 2008 | $0 | $3,500 | $0 | $0 | $0 |
| 2007 | $0 | $2,400 | $0 | $0 | $0 |
Deed and Sales History
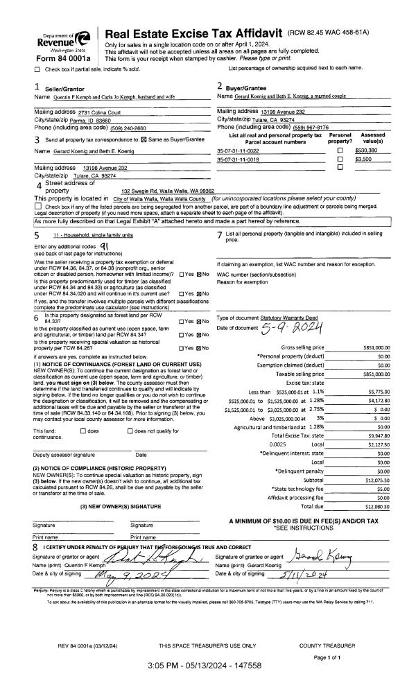
| 1 | 05/13/2024 | SWD | STATUTORY WARRANTY DEED | KEMPH QUENTIN F & CARLA J | KOENIG GERARD & BETH E | | 2-PARCELS | $851,000.00 | 147558 | 2024-02549 |
|   | |
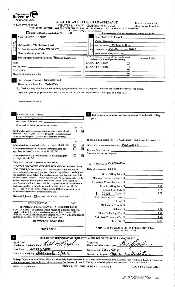
| 2 | 05/29/2018 | QCD | QUIT CLAIM DEED | KEMPH QUENTIN F | KEMPH QUENTIN F & CARLA J | | | $0.00 | 134797 | 2018-04165 |
| 3 | 04/26/2010 | QCD | QUIT CLAIM DEED | KEMPH, RAMONA LEE | KEMPH, QUENTIN F | | | | 118390 | 2010-03250 |
| 4 | 12/04/1998 | WARRANTY D | WARRANTY DEED | | | | | | 91740 | 2769-813965 |
Payout Agreement
| No payout information available.. |