Property
Account |
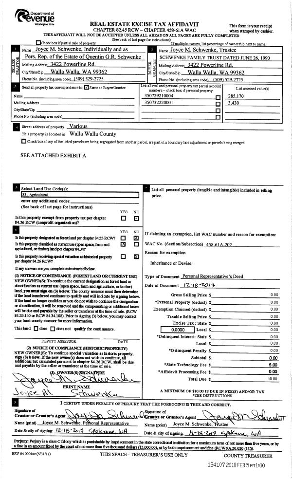
| Property ID: | 27412 | Abbreviated Legal Description: | 29-7-35 W1/2 LESS RD, LESS TRIANGLE IN SELY PTN, LESS PTN INS1/2S1/2, LESS '07 HWY TAKE FOR RD PURPOSES |
| Parcel Number: | 350729210004 | Agent Code: | |
| Type: | Real | | |
| Tax Area: | 101 - 140-4 | Land Use Code | 83 |
| Open Space: | Y | DFL | N |
| Historic Property: | N | Remodel Property: | N |
| Multi-Family Redevelopment: | N | | |
| Township: | 7 | Section: | 29 |
| Range: | 35 |
Location |
| Address: | W HIGHWAY 12 WA 99362 | Mapsco: | |
| Neighborhood: | 0 Farm | Map ID: | |
| Neighborhood CD: | 3230 |
Owner |
| Name: | SCHWENKE FAMILY TRUST | Owner ID: | 62560 |
| Mailing Address: | % BONNY CARMICINO 44 PARSONAGE ST COLD SPRING, NY 10516 | % Ownership: | 100.0000000000% |
| | | Exemptions: | |
Taxes and Assessment Details
Property Tax Information as of
02/21/2026
Click on "Statement Details" to expand or collapse a tax statement.
* Please enter a valid date ** Please enter a valid date *
Statement Details |
| | TOTAL: | $0.00 | $0.00 | $0.00 | $0.00 | $0.00 | $0.00 |
|
| | $0.00 | $0.00 | $0.00 | $0.00 | $0.00 | $0.00 |
Values
| (+) Improvement Homesite Value: | + | $0 | |
| (+) Improvement Non-Homesite Value: | + | $0 | |
| (+) Land Homesite Value: | + | $0 | |
| (+) Land Non-Homesite Value: | + | $0 | |
| (+) Curr Use (HS): | + | $0 | $0 |
| (+) Curr Use (NHS): | + | $1,496,950 | $308,030 |
| | | -------------------------- | |
| (=) Market Value: | = | $1,496,950 | |
| (–) Productivity Loss: | – | $1,188,930 | |
| | | -------------------------- | |
| (=) Subtotal: | = | $308,020 | |
| (+) Senior Appraised Value: | + | $0 | |
| (+) Non-Senior Appraised Value: | + | $308,030 | |
| | | -------------------------- | |
| (=) Total Appraised Value: | = | $308,030 | |
| (–) Senior Exemption Loss: | – | $0 | |
| (–) Exemption Loss: | – | $0 | |
| | | -------------------------- | |
| (=) Taxable Value: | = | $308,030 | |
Taxing Jurisdiction
| Owner: | SCHWENKE FAMILY TRUST | | |
| % Ownership: | 100.0000000000% | | |
| Total Value: | $1,496,950 | | |
| Tax Area: | 101 - 140-4 |
| CERFD | CURRENT EXPENSE REFUND 010 | 0.0000000000 | $308,030 | $308,030 | $0.00 | | |
| CURREXP | CURRENT EXPENSE 010 | 1.0175366760 | $308,030 | $308,030 | $313.43 | | |
| HUMNSERV | HUMAN SERVICES 119 | 0.0250000000 | $308,030 | $308,030 | $7.70 | | |
| SLDREL | SOLDIERS RELIEF 121 | 0.0155990005 | $308,030 | $308,030 | $4.80 | | |
| EMERGSER | EMS 147 | 0.3792580840 | $308,030 | $308,030 | $116.82 | | |
| EMSRFD | EMS REFUND 147 | 0.0000000000 | $308,030 | $308,030 | $0.00 | | |
| FD4EXP | FD #4 EXPENSE 686 | 0.8836993059 | $308,030 | $308,030 | $272.21 | | |
| RLBRFD | RURAL LIBRARY REFUND 623 | 0.0000000000 | $308,030 | $308,030 | $0.00 | | |
| RURALLIB | RURAL LIBRARY 623 | 0.3710609029 | $308,030 | $308,030 | $114.30 | | |
| PORTRFD | PORT REFUND 640 | 0.0000000000 | $308,030 | $308,030 | $0.00 | | |
| PORTWWGEN | PORT OF WW 640 | 0.2460186015 | $308,030 | $308,030 | $75.78 | | |
| SD140BOND | SD #140 BOND 764 | 0.8342371393 | $308,030 | $308,030 | $256.97 | | |
| SD140GEN | SD #140 GENERAL 760 | 2.0646500647 | $308,030 | $308,030 | $635.97 | | |
| ST2 | STATE SCHOOL PART 2 600 | 0.8131451643 | $308,030 | $308,030 | $250.47 | | |
| STATESCHL | STATE SCHOOL 600 | 1.5158548041 | $308,030 | $308,030 | $466.93 | | |
| STREFUND | STATE REFUND LEVY 603 | 0.0000000000 | $308,030 | $308,030 | $0.00 | | |
| COROAD | COUNTY ROAD 115 | 1.6549953990 | $308,030 | $308,030 | $509.79 | | |
| CRPRD | COUNTY ROAD REFUND 115 | 0.0000000000 | $308,030 | $308,030 | $0.00 | | |
| | Total Tax Rate: | 9.8210551422 | | | | | |
| | | | | Taxes w/Current Exemptions: | $3,025.17 | | |
| | | | | Taxes w/o Exemptions: | $3,025.17 | | |
Improvement / Building
Sketch
| No sketches available for this property. |
Property Image
Land
| 1 | C1-I | Class 1 Irrigated | 22.0600 | 0.00 | 0.00 | 0.00 | 1.00 | $134,570 | $27,800 |
| 2 | CC1-3 | Class 1 Circle Irrigation | 124.6000 | 0.00 | 0.00 | 0.00 | 1.00 | $1,221,080 | $233,630 |
| 3 | 50-C1 | Class 1 50 BU | 115.3500 | 0.00 | 0.00 | 0.00 | 1.00 | $141,300 | $46,600 |
| 4 | WASTE | Waste | 9.9200 | 0.00 | 0.00 | 0.00 | 1.00 | $0 | $0 |
Roll Value History
| 2026 | N/A | N/A | N/A | N/A | N/A |
| 2025 | $0 | $1,789,700 | $309,680 | $309,680 | $309,680 |
| 2024 | $0 | $1,529,740 | $307,810 | $307,810 | $307,810 |
| 2023 | $0 | $1,496,950 | $308,030 | $308,030 | $308,030 |
| 2022 | $0 | $1,369,620 | $296,340 | $296,340 | $296,340 |
| 2021 | $0 | $1,347,050 | $296,870 | $296,870 | $296,870 |
| 2020 | $0 | $1,191,740 | $293,490 | $293,490 | $293,490 |
| 2019 | $0 | $1,051,840 | $286,540 | $286,540 | $286,540 |
| 2018 | $0 | $799,850 | $284,820 | $284,820 | $284,820 |
| 2017 | $0 | $795,470 | $285,170 | $285,170 | $285,170 |
| 2016 | $0 | $608,570 | $285,400 | $285,400 | $285,400 |
| 2015 | $0 | $536,640 | $258,380 | $258,380 | $258,380 |
| 2014 | $0 | $536,640 | $258,730 | $258,730 | $258,730 |
| 2013 | $0 | $516,200 | $227,600 | $227,600 | $227,600 |
| 2012 | $0 | $151,300 | $0 | $0 | $0 |
| 2011 | $0 | $149,600 | $0 | $0 | $0 |
| 2010 | $0 | $151,100 | $0 | $0 | $0 |
| 2009 | $0 | $149,100 | $0 | $0 | $0 |
| 2008 | $0 | $140,500 | $0 | $0 | $0 |
| 2007 | $0 | $154,000 | $0 | $0 | $0 |
Deed and Sales History
| 1 | 12/18/2017 | DPR | DEED OF PERSONAL REPRESENTATIVE | SCHWENKE QUENTIN & JOYCE | SCHWENKE FAMILY TRUST | | | $0.00 | 134107 | 2018-00986 |
Payout Agreement
| No payout information available.. |