Property
Account |
| Property ID: | 27326 | Abbreviated Legal Description: | 25-7-35 SM PTN LY NELY OF TAX 100 ALL LY IN SE1/4NW1/4 |
| Parcel Number: | 350725240061 | Agent Code: | |
| Type: | Real | | |
| Tax Area: | 313 - 250-F-4 | Land Use Code | 91 |
| Open Space: | N | DFL | N |
| Historic Property: | N | Remodel Property: | N |
| Multi-Family Redevelopment: | N | | |
| Township: | 7 | Section: | 25 |
| Range: | 35 |
Location |
| Address: | WALLULA AVE WA 99324 | Mapsco: | |
| Neighborhood: | A-SFR Contig | Map ID: | |
| Neighborhood CD: | 313097 |
Owner |
| Name: | STEPHENS MATTHEW & ROCHELLE ANN | Owner ID: | 68264 |
| Mailing Address: | 94 WALLULA AVE WALLA WALLA, WA 99362 | % Ownership: | 100.0000000000% |
| | | Exemptions: | |
Taxes and Assessment Details
Property Tax Information as of
02/21/2026
Click on "Statement Details" to expand or collapse a tax statement.
* Please enter a valid date ** Please enter a valid date *
Statement Details |
| | TOTAL: | $0.00 | $0.00 | $0.00 | $0.00 | $0.00 | $0.00 |
|
| | $0.00 | $0.00 | $0.00 | $0.00 | $0.00 | $0.00 |
Values
| (+) Improvement Homesite Value: | + | $0 | |
| (+) Improvement Non-Homesite Value: | + | $0 | |
| (+) Land Homesite Value: | + | $0 | |
| (+) Land Non-Homesite Value: | + | $2,400 | |
| (+) Curr Use (HS): | + | $0 | $0 |
| (+) Curr Use (NHS): | + | $0 | $0 |
| | | -------------------------- | |
| (=) Market Value: | = | $2,400 | |
| (–) Productivity Loss: | – | $0 | |
| | | -------------------------- | |
| (=) Subtotal: | = | $2,400 | |
| (+) Senior Appraised Value: | + | $0 | |
| (+) Non-Senior Appraised Value: | + | $2,400 | |
| | | -------------------------- | |
| (=) Total Appraised Value: | = | $2,400 | |
| (–) Senior Exemption Loss: | – | $0 | |
| (–) Exemption Loss: | – | $0 | |
| | | -------------------------- | |
| (=) Taxable Value: | = | $2,400 | |
Taxing Jurisdiction
| Owner: | STEPHENS MATTHEW & ROCHELLE ANN | | |
| % Ownership: | 100.0000000000% | | |
| Total Value: | $2,400 | | |
| Tax Area: | 313 - 250-F-4 |
| CERFD | CURRENT EXPENSE REFUND 010 | 0.0000000000 | $2,400 | $2,400 | $0.00 | | |
| CURREXP | CURRENT EXPENSE 010 | 1.0175366760 | $2,400 | $2,400 | $2.44 | | |
| HUMNSERV | HUMAN SERVICES 119 | 0.0250000000 | $2,400 | $2,400 | $0.06 | | |
| SLDREL | SOLDIERS RELIEF 121 | 0.0155990005 | $2,400 | $2,400 | $0.04 | | |
| EMERGSER | EMS 147 | 0.3792580840 | $2,400 | $2,400 | $0.91 | | |
| EMSRFD | EMS REFUND 147 | 0.0000000000 | $2,400 | $2,400 | $0.00 | | |
| FD4EXP | FD #4 EXPENSE 686 | 0.8836993059 | $2,400 | $2,400 | $2.12 | | |
| RLBRFD | RURAL LIBRARY REFUND 623 | 0.0000000000 | $2,400 | $2,400 | $0.00 | | |
| RURALLIB | RURAL LIBRARY 623 | 0.3710609029 | $2,400 | $2,400 | $0.89 | | |
| PORTRFD | PORT REFUND 640 | 0.0000000000 | $2,400 | $2,400 | $0.00 | | |
| PORTWWGEN | PORT OF WW 640 | 0.2460186015 | $2,400 | $2,400 | $0.59 | | |
| SD250BOND | SD #250 BOND 773 | 1.4560608159 | $2,400 | $2,400 | $3.49 | | |
| SD250GEN | SD #250 GENERAL 770 | 2.3880724087 | $2,400 | $2,400 | $5.73 | | |
| ST2 | STATE SCHOOL PART 2 600 | 0.8131451643 | $2,400 | $2,400 | $1.95 | | |
| STATESCHL | STATE SCHOOL 600 | 1.5158548041 | $2,400 | $2,400 | $3.64 | | |
| STREFUND | STATE REFUND LEVY 603 | 0.0000000000 | $2,400 | $2,400 | $0.00 | | |
| COROAD | COUNTY ROAD 115 | 1.6549953990 | $2,400 | $2,400 | $3.97 | | |
| CRPRD | COUNTY ROAD REFUND 115 | 0.0000000000 | $2,400 | $2,400 | $0.00 | | |
| | Total Tax Rate: | 10.7663011628 | | | | | |
| | | | | Taxes w/Current Exemptions: | $25.83 | | |
| | | | | Taxes w/o Exemptions: | $25.83 | | |
Improvement / Building
Sketch
| No sketches available for this property. |
Property Image
Land
| 1 | RES 1 | Converted: Residential | 0.0300 | 1306.80 | 0.00 | 0.00 | 1.00 | $2,400 | $0 |
Roll Value History
| 2026 | N/A | N/A | N/A | N/A | N/A |
| 2025 | $0 | $2,400 | $0 | $2,400 | $2,400 |
| 2024 | $0 | $2,400 | $0 | $2,400 | $2,400 |
| 2023 | $0 | $2,400 | $0 | $2,400 | $2,400 |
| 2022 | $0 | $2,400 | $0 | $2,400 | $2,400 |
| 2021 | $0 | $1,000 | $0 | $1,000 | $1,000 |
| 2020 | $0 | $1,000 | $0 | $1,000 | $1,000 |
| 2019 | $0 | $1,000 | $0 | $1,000 | $1,000 |
| 2018 | $0 | $1,000 | $0 | $1,000 | $1,000 |
| 2017 | $0 | $1,000 | $0 | $1,000 | $1,000 |
| 2016 | $0 | $1,000 | $0 | $1,000 | $1,000 |
| 2015 | $0 | $1,000 | $0 | $1,000 | $1,000 |
| 2014 | $0 | $1,000 | $0 | $1,000 | $1,000 |
| 2013 | $0 | $1,000 | $0 | $1,000 | $1,000 |
| 2012 | $0 | $1,000 | $0 | $0 | $0 |
| 2011 | $0 | $1,000 | $0 | $0 | $0 |
| 2010 | $0 | $1,000 | $0 | $0 | $0 |
| 2009 | $0 | $1,200 | $0 | $0 | $0 |
| 2008 | $0 | $1,200 | $0 | $0 | $0 |
| 2007 | $0 | $1,200 | $0 | $0 | $0 |
Deed and Sales History
| 1 | 10/28/2020 | SWD | STATUTORY WARRANTY DEED | PAOLINO VICTOR F & AMY D | STEPHENS MATTHEW & ROCHELLE ANN | | 2-PARCELS | $333,000.00 | 140210 | 2020-11284 |
|   | |
| 2 | 07/16/2016 | QCD | QUIT CLAIM DEED | PAOLINO VICTOR F | PAOLINO VICTOR F & AMY D | | | $0.00 | 130715 | 2016-06534 |
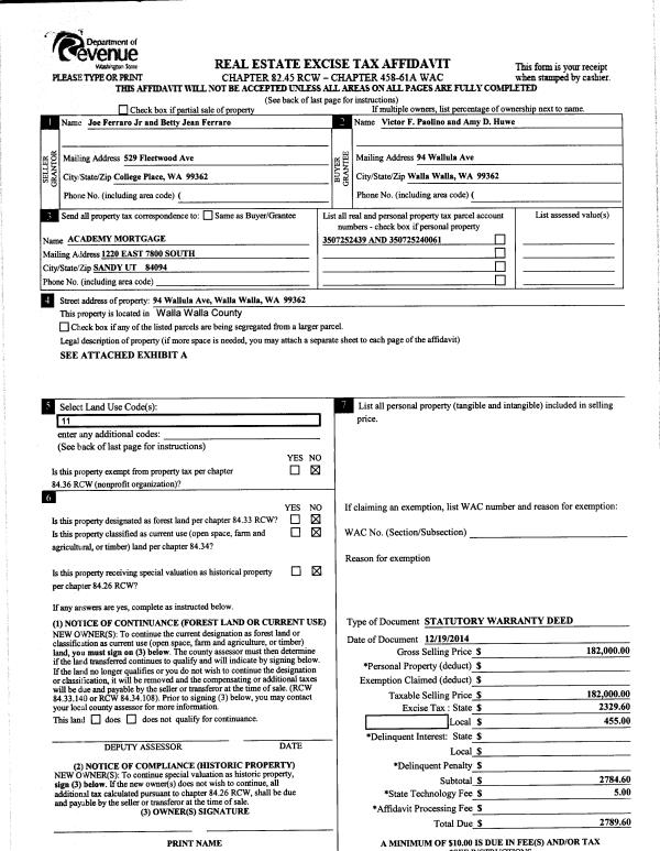
| 3 | 12/19/2014 | SWD | STATUTORY WARRANTY DEED | FERRARO JOE JR | PAOLINO VICTOR F | | 2- PARCELS | $182,000.00 | 127150 | 2014-09259 |
|   | |
Payout Agreement
| No payout information available.. |