Property
Account |
| Property ID: | 2728 | Abbreviated Legal Description: | AUTUMN MEADOWS LT 8 BLK 3 |
| Parcel Number: | 350736970308 | Agent Code: | |
| Type: | Real | | |
| Tax Area: | 77 - CP-250-F | Land Use Code | 11 |
| Open Space: | N | DFL | N |
| Historic Property: | N | Remodel Property: | N |
| Multi-Family Redevelopment: | N | | |
| Township: | 7 | Section: | 36 |
| Range: | 35 |
Location |
| Address: | 1232 SE FALBO DR WA 99324 | Mapsco: | |
| Neighborhood: | A SFR | Map ID: | |
| Neighborhood CD: | 113011 |
Owner |
| Name: | IWASA DAVID A & KATHLEEN L | Owner ID: | 65692 |
| Mailing Address: | 1232 SE FALBO DR COLLEGE PLACE, WA 99324 | % Ownership: | 100.0000000000% |
| | | Exemptions: | |
Taxes and Assessment Details
Values
| (+) Improvement Homesite Value: | + | $0 | |
| (+) Improvement Non-Homesite Value: | + | $365,070 | |
| (+) Land Homesite Value: | + | $0 | |
| (+) Land Non-Homesite Value: | + | $70,000 | |
| (+) Curr Use (HS): | + | $0 | $0 |
| (+) Curr Use (NHS): | + | $0 | $0 |
| | | -------------------------- | |
| (=) Market Value: | = | $435,070 | |
| (–) Productivity Loss: | – | $0 | |
| | | -------------------------- | |
| (=) Subtotal: | = | $435,070 | |
| (+) Senior Appraised Value: | + | $0 | |
| (+) Non-Senior Appraised Value: | + | $435,070 | |
| | | -------------------------- | |
| (=) Total Appraised Value: | = | $435,070 | |
| (–) Senior Exemption Loss: | – | $0 | |
| (–) Exemption Loss: | – | $0 | |
| | | -------------------------- | |
| (=) Taxable Value: | = | $435,070 | |
Taxing Jurisdiction
| Owner: | IWASA DAVID A & KATHLEEN L | | |
| % Ownership: | 100.0000000000% | | |
| Total Value: | $435,070 | | |
| Tax Area: | 77 - CP-250-F |
| CERFD | CURRENT EXPENSE REFUND 010 | 0.0000000000 | $435,070 | $435,070 | $0.00 | | |
| CURREXP | CURRENT EXPENSE 010 | 1.0175366760 | $435,070 | $435,070 | $442.70 | | |
| HUMNSERV | HUMAN SERVICES 119 | 0.0250000000 | $435,070 | $435,070 | $10.88 | | |
| SLDREL | SOLDIERS RELIEF 121 | 0.0155990005 | $435,070 | $435,070 | $6.79 | | |
| COLLPLBOND | C OF CP BOND 644 | 0.4374241808 | $435,070 | $435,070 | $190.31 | | |
| COLLPLGEN | CITY OF CP 632 | 1.4453819216 | $435,070 | $435,070 | $628.84 | | |
| EMERGSER | EMS 147 | 0.3792580840 | $435,070 | $435,070 | $165.00 | | |
| EMSRFD | EMS REFUND 147 | 0.0000000000 | $435,070 | $435,070 | $0.00 | | |
| RURALLIB | RURAL LIBRARY 623 | 0.3710609029 | $435,070 | $435,070 | $161.44 | | |
| PORTRFD | PORT REFUND 640 | 0.0000000000 | $435,070 | $435,070 | $0.00 | | |
| PORTWWGEN | PORT OF WW 640 | 0.2460186015 | $435,070 | $435,070 | $107.04 | | |
| SD250BOND | SD #250 BOND 773 | 1.4560608159 | $435,070 | $435,070 | $633.49 | | |
| SD250GEN | SD #250 GENERAL 770 | 2.3880724087 | $435,070 | $435,070 | $1,038.98 | | |
| ST2 | STATE SCHOOL PART 2 600 | 0.8131451643 | $435,070 | $435,070 | $353.78 | | |
| STATESCHL | STATE SCHOOL 600 | 1.5158548041 | $435,070 | $435,070 | $659.50 | | |
| STREFUND | STATE REFUND LEVY 603 | 0.0000000000 | $435,070 | $435,070 | $0.00 | | |
| | Total Tax Rate: | 10.1104125603 | | | | | |
| | | | | Taxes w/Current Exemptions: | $4,398.75 | | |
| | | | | Taxes w/o Exemptions: | $4,398.75 | | |
Improvement / Building
| Improvement #1: | RESIDENTIAL | State Code: | 11 | 2576.0 sqft | Value: | $365,070 |
| Exterior Wall: | PLYWOOD | Heating/Cooling: | WARM & COOLED AIR | | Number of Bathrooms: | 2.5 | Number of Bedrooms: | 4 | | Plumbing: | 11 | Roof Covering: | COMP SHINGLE |
|
| | Type | Description | Class CD | Sub Class CD | Year Built | Area |
| | MA | Main Area | 2 | 30 | 2003 | 2576.0 |
| | UPFL | Upper Floor (included in main area) | 2 | 30 | 2003 | 1568.0 |
| | SI1 | SITE IMPROVEMENT | 2 | 30 | 2003 | 2.0 |
| | ATG | Attached Garage | 2 | 30 | 2003 | 560.0 |
| | RPO | OPEN PORCH W/ROOF | 2 | 30 | 2003 | 96.0 |
| | UTST | Utility Storage Shed | 2 | 30 | 2003 | 108.0 |
Sketch
Property Image
Land
| 1 | RES 1 | Converted: Residential | 0.1377 | 6000.00 | 0.00 | 0.00 | 1.00 | $70,000 | $0 |
Roll Value History
| 2026 | N/A | N/A | N/A | N/A | N/A |
| 2025 | $328,560 | $125,000 | $0 | $453,560 | $453,560 |
| 2024 | $365,070 | $70,000 | $0 | $435,070 | $435,070 |
| 2023 | $365,070 | $70,000 | $0 | $435,070 | $435,070 |
| 2022 | $365,070 | $70,000 | $0 | $435,070 | $435,070 |
| 2021 | $270,420 | $70,000 | $0 | $340,420 | $340,420 |
| 2020 | $180,280 | $70,000 | $0 | $250,280 | $250,280 |
| 2019 | $195,280 | $55,000 | $0 | $250,280 | $250,280 |
| 2018 | $185,980 | $55,000 | $0 | $240,980 | $240,980 |
| 2017 | $185,980 | $55,000 | $0 | $240,980 | $240,980 |
| 2016 | $185,980 | $55,000 | $0 | $240,980 | $240,980 |
| 2015 | $177,120 | $55,000 | $0 | $232,120 | $232,120 |
| 2014 | $147,600 | $55,000 | $0 | $202,600 | $202,600 |
| 2013 | $147,600 | $55,000 | $0 | $202,600 | $202,600 |
| 2012 | $147,600 | $55,000 | $0 | $0 | $0 |
| 2011 | $183,300 | $55,000 | $0 | $0 | $0 |
| 2010 | $183,300 | $55,000 | $0 | $0 | $0 |
| 2009 | $160,900 | $55,000 | $0 | $0 | $0 |
| 2008 | $115,400 | $30,000 | $0 | $0 | $0 |
| 2007 | $115,400 | $30,000 | $0 | $0 | $0 |
Deed and Sales History
| 1 | 08/09/2019 | SWD | STATUTORY WARRANTY DEED | LANGLEY ELIZABETH LYNN | IWASA DAVID A & KATHLEEN L | | | $297,000.00 | 137455 | 2019-05970 |
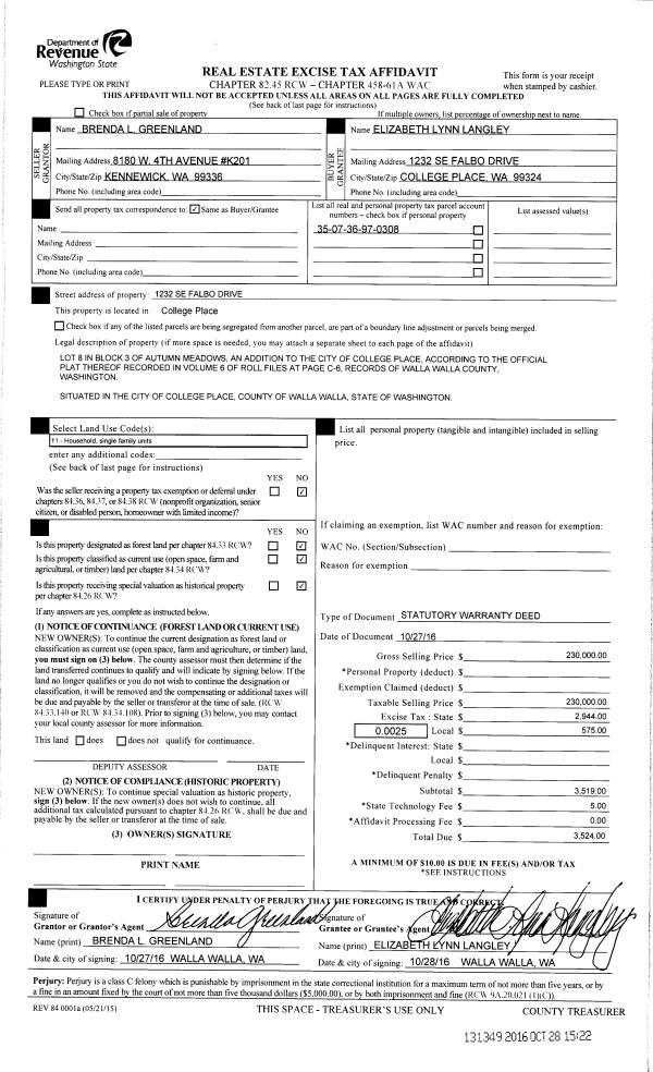
| 2 | 10/28/2016 | SWD | STATUTORY WARRANTY DEED | GREENLAND BRENDA | LANGLEY ELIZABETH LYNN | | | $230,000.00 | 131349 | 2016-08973 |
| 3 | 07/17/2009 | WARRANTY D | WARRANTY DEED | GREENLAND, MATTHEW | GREENLAND, BRENDA | | | | 0 | CC #09-3-00049-7 |
| 4 | 01/30/2003 | WARRANTY D | WARRANTY DEED | HAYDEN ENTERPRISES INC | GREENLAND, MATTHEW J & BRENDA | | | $145,270.00 | 101296 | 2003-01342 |
| 5 | 08/21/2002 | WARRANTY D | WARRANTY DEED | VILLAGE PARK COLLEGE PLACE~LLC | | | | | 100199 | 2002-09391 |
Payout Agreement
| No payout information available.. |