Property
Account |
| Property ID: | 27221 | Abbreviated Legal Description: | EVANS PARCEL #27 TAX 1 LESS SLY STRIP |
| Parcel Number: | 360729600027 | Agent Code: | |
| Type: | Real | | |
| Tax Area: | 1 - OL-140-F | Land Use Code | 11 |
| Open Space: | N | DFL | N |
| Historic Property: | N | Remodel Property: | N |
| Multi-Family Redevelopment: | N | | |
| Township: | 7 | Section: | 29 |
| Range: | 36 |
Location |
| Address: | 502 S 1ST AVE WA 99362 | Mapsco: | |
| Neighborhood: | G-SFR | Map ID: | |
| Neighborhood CD: | 514011 |
Owner |
| Name: | SWANSON FAMILY TRUST | Owner ID: | 72588 |
| Mailing Address: | 1383 LICK AVE SAN JOSE, CA 95110 | % Ownership: | 100.0000000000% |
| | | Exemptions: | |
Taxes and Assessment Details
Values
| (+) Improvement Homesite Value: | + | $0 | |
| (+) Improvement Non-Homesite Value: | + | $371,580 | |
| (+) Land Homesite Value: | + | $0 | |
| (+) Land Non-Homesite Value: | + | $53,570 | |
| (+) Curr Use (HS): | + | $0 | $0 |
| (+) Curr Use (NHS): | + | $0 | $0 |
| | | -------------------------- | |
| (=) Market Value: | = | $425,150 | |
| (–) Productivity Loss: | – | $0 | |
| | | -------------------------- | |
| (=) Subtotal: | = | $425,150 | |
| (+) Senior Appraised Value: | + | $0 | |
| (+) Non-Senior Appraised Value: | + | $425,150 | |
| | | -------------------------- | |
| (=) Total Appraised Value: | = | $425,150 | |
| (–) Senior Exemption Loss: | – | $0 | |
| (–) Exemption Loss: | – | $0 | |
| | | -------------------------- | |
| (=) Taxable Value: | = | $425,150 | |
Taxing Jurisdiction
| Owner: | SWANSON FAMILY TRUST | | |
| % Ownership: | 100.0000000000% | | |
| Total Value: | $425,150 | | |
| Tax Area: | 1 - OL-140-F |
| CERFD | CURRENT EXPENSE REFUND 010 | 0.0000000000 | $425,150 | $425,150 | $0.00 | | |
| CURREXP | CURRENT EXPENSE 010 | 1.0175366760 | $425,150 | $425,150 | $432.61 | | |
| HUMNSERV | HUMAN SERVICES 119 | 0.0250000000 | $425,150 | $425,150 | $10.63 | | |
| SLDREL | SOLDIERS RELIEF 121 | 0.0155990005 | $425,150 | $425,150 | $6.63 | | |
| EMERGSER | EMS 147 | 0.3792580840 | $425,150 | $425,150 | $161.24 | | |
| EMSRFD | EMS REFUND 147 | 0.0000000000 | $425,150 | $425,150 | $0.00 | | |
| PORTRFD | PORT REFUND 640 | 0.0000000000 | $425,150 | $425,150 | $0.00 | | |
| PORTWWGEN | PORT OF WW 640 | 0.2460186015 | $425,150 | $425,150 | $104.59 | | |
| SD140BOND | SD #140 BOND 764 | 0.8342371393 | $425,150 | $425,150 | $354.68 | | |
| SD140GEN | SD #140 GENERAL 760 | 2.0646500647 | $425,150 | $425,150 | $877.79 | | |
| ST2 | STATE SCHOOL PART 2 600 | 0.8131451643 | $425,150 | $425,150 | $345.71 | | |
| STATESCHL | STATE SCHOOL 600 | 1.5158548041 | $425,150 | $425,150 | $644.47 | | |
| STREFUND | STATE REFUND LEVY 603 | 0.0000000000 | $425,150 | $425,150 | $0.00 | | |
| CWWBOND | C OF WW BOND 643 | 0.2760494372 | $425,150 | $425,150 | $117.36 | | |
| CWWGEN | CITY OF WW 631 | 1.6100204973 | $425,150 | $425,150 | $684.50 | | |
| CWWRFD | CITY OF WALLA WALLA REFUND 631 | 0.0000000000 | $425,150 | $425,150 | $0.00 | | |
| | Total Tax Rate: | 8.7973694689 | | | | | |
| | | | | Taxes w/Current Exemptions: | $3,740.21 | | |
| | | | | Taxes w/o Exemptions: | $3,740.21 | | |
Improvement / Building
| Improvement #1: | RESIDENTIAL | State Code: | 11 | 2128.0 sqft | Value: | $371,580 |
| Exterior Wall: | SIDING | Heating/Cooling: | BASEBOARD HOT WATER | | Number of Bathrooms: | 3 | Number of Bedrooms: | 5 | | Plumbing: | 12 | Roof Covering: | COMP SHINGLE |
|
| | Type | Description | Class CD | Sub Class CD | Year Built | Area |
| | MA | Main Area | 4 | 35 | 1900 | 2128.0 |
| | SI1 | SITE IMPROVEMENT | 4 | 35 | 1900 | 2.0 |
| | BASE | BASEMENT | 4 | 35 | 1900 | 676.0 |
| | UPFL | Upper Floor (included in main area) | 4 | 35 | 1900 | 920.0 |
| | BIG | Built In Garage | 4 | 35 | 1900 | 280.0 |
| | S1F | Single One Story Fireplace | 4 | 35 | 1900 | 1.0 |
| | CPC | COVERED CARPORT/PATIO | 4 | 35 | 1900 | 260.0 |
| | RCD | WOOD DECK W/ROOF, CEILED | 4 | 35 | 1900 | 192.0 |
| | TOOL | TOOL SHED | 4 | 35 | 1900 | 140.0 |
| | OUT | OUTSIDE BASEMENT ENTRY | 4 | 35 | 1900 | 1.0 |
Sketch
Property Image
Land
| 1 | RES 1 | Converted: Residential | 0.1696 | 7389.00 | 0.00 | 0.00 | 1.00 | $53,570 | $0 |
Roll Value History
| 2026 | N/A | N/A | N/A | N/A | N/A |
| 2025 | $384,120 | $81,280 | $0 | $465,400 | $465,400 |
| 2024 | $384,120 | $81,280 | $0 | $465,400 | $465,400 |
| 2023 | $371,580 | $53,570 | $0 | $425,150 | $425,150 |
| 2022 | $353,880 | $53,570 | $0 | $407,450 | $407,450 |
| 2021 | $228,310 | $53,570 | $0 | $281,880 | $281,880 |
| 2020 | $190,260 | $53,570 | $0 | $243,830 | $243,830 |
| 2019 | $190,260 | $53,570 | $0 | $243,830 | $243,830 |
| 2018 | $190,260 | $53,570 | $0 | $243,830 | $243,830 |
| 2017 | $141,470 | $29,600 | $0 | $171,070 | $171,070 |
| 2016 | $128,610 | $29,600 | $0 | $158,210 | $158,210 |
| 2015 | $128,610 | $29,600 | $0 | $158,210 | $158,210 |
| 2014 | $142,900 | $29,600 | $0 | $172,500 | $172,500 |
| 2013 | $142,900 | $29,600 | $0 | $172,500 | $172,500 |
| 2012 | $140,400 | $29,600 | $0 | $0 | $0 |
| 2011 | $140,400 | $29,600 | $0 | $0 | $0 |
| 2010 | $204,000 | $29,600 | $0 | $0 | $0 |
| 2009 | $230,000 | $29,600 | $0 | $0 | $0 |
| 2008 | $215,000 | $44,600 | $0 | $0 | $0 |
| 2007 | $116,900 | $14,900 | $0 | $0 | $0 |
Deed and Sales History
| 1 | 10/15/2024 | SWD | STATUTORY WARRANTY DEED | SWANSON FAMILY TRUST | SMITH STEPHANIE D | | | $449,900.00 | 148376 | 2024-05990 |
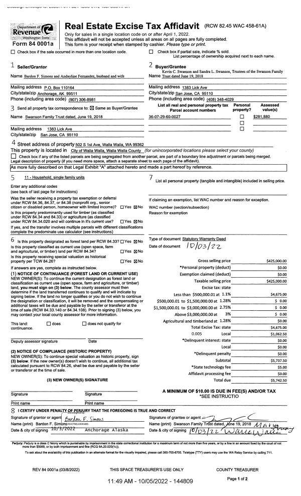
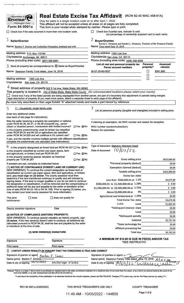
| 2 | 10/05/2022 | SWD | STATUTORY WARRANTY DEED | SIMONS BARDON F | SWANSON FAMILY TRUST | | | $425,000.00 | 144809 | 2022-08222 |
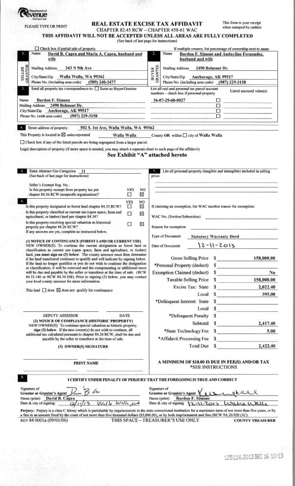
| 3 | 12/16/2013 | WARRANTY D | WARRANTY DEED | CAPRA DAVID B & MARLA A | SIMONS BARDON F | | | $158,000.00 | 125116 | 2013-11962 |
| 4 | 07/23/2009 | WARRANTY D | WARRANTY DEED | HEIN, NATHANIEL & LISA | CAPRA, DAVID B & MARLA A | | | $151,500.00 | 117055 | 2009-07499 |
| 5 | 02/07/2008 | WARRANTY D | WARRANTY DEED | "HEIN, NATHANIEL & LISA" | | | | | 114486 | 2008-01158 |
| 6 | 02/07/2008 | QCD | QUIT CLAIM DEED | ROPP, ARTHUR E & CAROL C | HEIN, NATHANIEL & LISA | | | | 114485 | 2008-01157 |
| 7 | 10/18/2007 | QCD | QUIT CLAIM DEED | HEIN, NATHANIEL & LISA | ROPP, ARTHUR E & CAROL C | | | $650.00 | 113918 | 2007-12161 |
| 8 | 08/02/2004 | WARRANTY D | WARRANTY DEED | GRATON, JAMES S | HEIN, NATHANIEL & LISA | | | $129,000.00 | 105402 | 2004-08786 |
| 9 | 06/28/1994 | WARRANTY D | WARRANTY DEED | | | | | $110,000.00 | 81981 | 2209-407573 |
Payout Agreement
| No payout information available.. |