Property
Account |
| Property ID: | 27220 | Abbreviated Legal Description: | STONES TAX 3 LOT 1 BLK 9 |
| Parcel Number: | 360729830915 | Agent Code: | |
| Type: | Real | | |
| Tax Area: | 1 - OL-140-F | Land Use Code | 11 |
| Open Space: | N | DFL | N |
| Historic Property: | N | Remodel Property: | N |
| Multi-Family Redevelopment: | N | | |
| Township: | 7 | Section: | 29 |
| Range: | 36 |
Location |
| Address: | 51 NATCHES ST WA 99362 | Mapsco: | |
| Neighborhood: | A Res | Map ID: | |
| Neighborhood CD: | 613011 |
Owner |
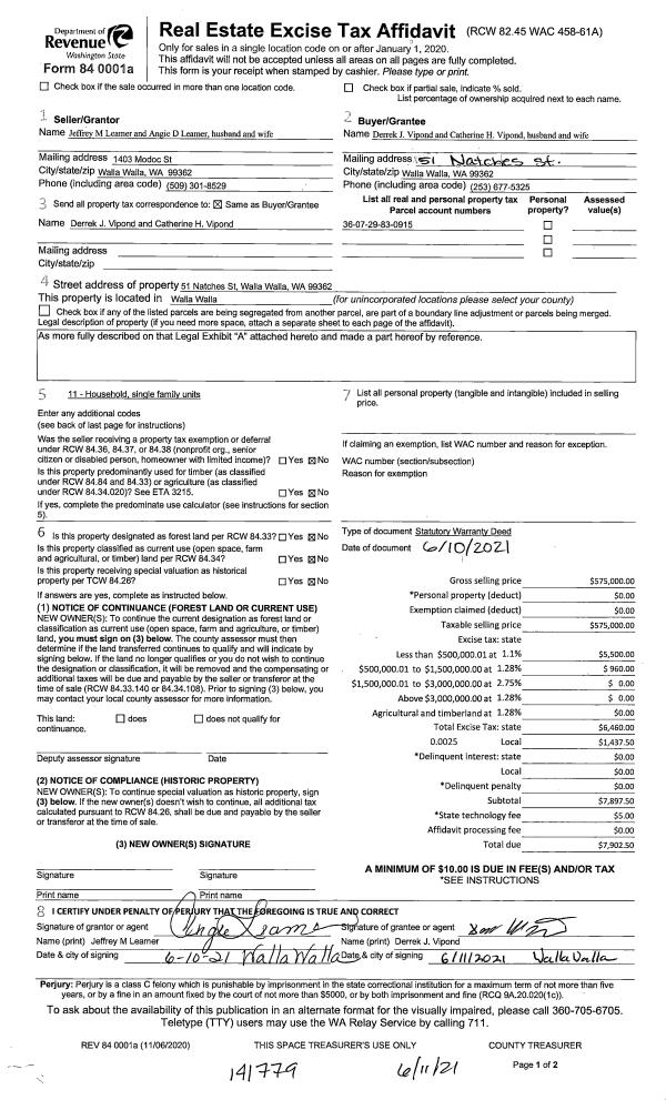
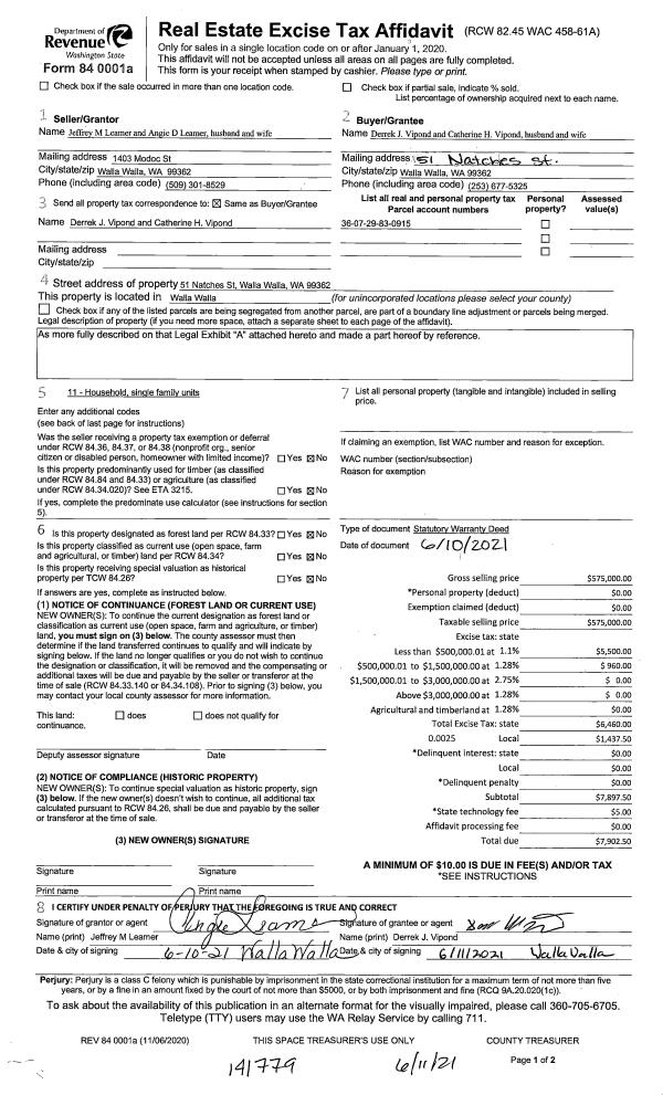
| Name: | VIPOND DERREK J & CATHERINE H | Owner ID: | 69578 |
| Mailing Address: | 51 NATCHES ST WALLA WALLA, WA 99362 | % Ownership: | 100.0000000000% |
| | | Exemptions: | |
Taxes and Assessment Details
Values
| (+) Improvement Homesite Value: | + | $0 | |
| (+) Improvement Non-Homesite Value: | + | $556,070 | |
| (+) Land Homesite Value: | + | $0 | |
| (+) Land Non-Homesite Value: | + | $73,640 | |
| (+) Curr Use (HS): | + | $0 | $0 |
| (+) Curr Use (NHS): | + | $0 | $0 |
| | | -------------------------- | |
| (=) Market Value: | = | $629,710 | |
| (–) Productivity Loss: | – | $0 | |
| | | -------------------------- | |
| (=) Subtotal: | = | $629,710 | |
| (+) Senior Appraised Value: | + | $0 | |
| (+) Non-Senior Appraised Value: | + | $629,710 | |
| | | -------------------------- | |
| (=) Total Appraised Value: | = | $629,710 | |
| (–) Senior Exemption Loss: | – | $0 | |
| (–) Exemption Loss: | – | $0 | |
| | | -------------------------- | |
| (=) Taxable Value: | = | $629,710 | |
Taxing Jurisdiction
| Owner: | VIPOND DERREK J & CATHERINE H | | |
| % Ownership: | 100.0000000000% | | |
| Total Value: | $629,710 | | |
| Tax Area: | 1 - OL-140-F |
| CERFD | CURRENT EXPENSE REFUND 010 | 0.0000000000 | $629,710 | $629,710 | $0.00 | | |
| CURREXP | CURRENT EXPENSE 010 | 1.0175366760 | $629,710 | $629,710 | $640.75 | | |
| HUMNSERV | HUMAN SERVICES 119 | 0.0250000000 | $629,710 | $629,710 | $15.74 | | |
| SLDREL | SOLDIERS RELIEF 121 | 0.0155990005 | $629,710 | $629,710 | $9.82 | | |
| EMERGSER | EMS 147 | 0.3792580840 | $629,710 | $629,710 | $238.82 | | |
| EMSRFD | EMS REFUND 147 | 0.0000000000 | $629,710 | $629,710 | $0.00 | | |
| PORTRFD | PORT REFUND 640 | 0.0000000000 | $629,710 | $629,710 | $0.00 | | |
| PORTWWGEN | PORT OF WW 640 | 0.2460186015 | $629,710 | $629,710 | $154.92 | | |
| SD140BOND | SD #140 BOND 764 | 0.8342371393 | $629,710 | $629,710 | $525.33 | | |
| SD140GEN | SD #140 GENERAL 760 | 2.0646500647 | $629,710 | $629,710 | $1,300.13 | | |
| ST2 | STATE SCHOOL PART 2 600 | 0.8131451643 | $629,710 | $629,710 | $512.05 | | |
| STATESCHL | STATE SCHOOL 600 | 1.5158548041 | $629,710 | $629,710 | $954.55 | | |
| STREFUND | STATE REFUND LEVY 603 | 0.0000000000 | $629,710 | $629,710 | $0.00 | | |
| CWWBOND | C OF WW BOND 643 | 0.2760494372 | $629,710 | $629,710 | $173.83 | | |
| CWWGEN | CITY OF WW 631 | 1.6100204973 | $629,710 | $629,710 | $1,013.85 | | |
| CWWRFD | CITY OF WALLA WALLA REFUND 631 | 0.0000000000 | $629,710 | $629,710 | $0.00 | | |
| | Total Tax Rate: | 8.7973694689 | | | | | |
| | | | | Taxes w/Current Exemptions: | $5,539.79 | | |
| | | | | Taxes w/o Exemptions: | $5,539.79 | | |
Improvement / Building
| Improvement #1: | RESIDENTIAL | State Code: | 11 | 1134.0 sqft | Value: | $556,070 |
| Exterior Wall: | STUCCO | Heating/Cooling: | WARM & COOLED AIR | | Number of Bathrooms: | 2 | Number of Bedrooms: | 3 | | Plumbing: | 9 | Roof Covering: | COMP SHINGLE |
|
| | Type | Description | Class CD | Sub Class CD | Year Built | Area |
| | MA | Main Area | 1 | 45 | 1954 | 1134.0 |
| | SI1 | SITE IMPROVEMENT | 1 | 45 | 1954 | 2.0 |
| | BASE | BASEMENT | 1 | 45 | 1954 | 1134.0 |
| | BPF | BASEMENT -PARTITIONED FINISH | 1 | 45 | 1954 | 1134.0 |
| | DTG | Detached Garage | 1 | 45 | 1954 | 308.0 |
| | RPS | PORCH W/STEPS,ROOF | 1 | 45 | 1954 | 40.0 |
| | S1F | Single One Story Fireplace | 1 | 45 | 1954 | 1.0 |
| | CPC | COVERED CARPORT/PATIO | 1 | 45 | 1954 | 368.0 |
Sketch
Property Image
Land
| 1 | RES 1 | Converted: Residential | 0.1878 | 8182.70 | 0.00 | 0.00 | 1.00 | $73,640 | $0 |
Roll Value History
| 2026 | N/A | N/A | N/A | N/A | N/A |
| 2025 | $486,700 | $90,010 | $0 | $576,710 | $576,710 |
| 2024 | $556,070 | $73,640 | $0 | $629,710 | $629,710 |
| 2023 | $556,070 | $73,640 | $0 | $629,710 | $629,710 |
| 2022 | $505,520 | $59,330 | $0 | $564,850 | $564,850 |
| 2021 | $439,580 | $59,330 | $0 | $498,910 | $498,910 |
| 2020 | $212,170 | $59,330 | $0 | $271,500 | $271,500 |
| 2019 | $212,170 | $59,330 | $0 | $271,500 | $271,500 |
| 2018 | $169,040 | $45,600 | $0 | $214,640 | $214,640 |
| 2017 | $153,670 | $45,600 | $0 | $199,270 | $199,270 |
| 2016 | $153,670 | $45,600 | $0 | $199,270 | $199,270 |
| 2015 | $153,670 | $45,600 | $0 | $199,270 | $199,270 |
| 2014 | $139,700 | $45,600 | $0 | $185,300 | $185,300 |
| 2013 | $139,700 | $45,600 | $0 | $185,300 | $185,300 |
| 2012 | $125,600 | $45,600 | $0 | $0 | $0 |
| 2011 | $125,600 | $45,600 | $0 | $0 | $0 |
| 2010 | $103,300 | $45,600 | $0 | $0 | $0 |
| 2009 | $119,800 | $45,600 | $0 | $0 | $0 |
| 2008 | $119,800 | $45,600 | $0 | $0 | $0 |
| 2007 | $96,500 | $16,300 | $0 | $0 | $0 |
Deed and Sales History
| 1 | 06/11/2021 | SWD | STATUTORY WARRANTY DEED | LEAMER JEFFREY M & ANGIE D | VIPOND DERREK J & CATHERINE H | | | $575,000.00 | 141779 | 2021-07160 |
| 2 | 10/27/2016 | SURVEY | SURVEY | | | | | | 0 | 2016-08928 |
| 3 | 07/17/2009 | WARRANTY D | WARRANTY DEED | COFFENBERRY, DOROTHY H | LEAMER, JEFFREY M & ANGIE D | | | $183,000.00 | 117022 | 2009-07291 |
| 4 | 09/26/2005 | WARRANTY D | WARRANTY DEED | COLLINS, RUTH H | COFFENBERRY, DOROTHY H | | | $165,000.00 | 108586 | 2005-11991 |
| 5 | 01/01/1962 | WARRANTY D | WARRANTY DEED | | | | | $0.00 | 0 | 2950-424573 |
| 6 | | WARRANTY D | WARRANTY DEED | "COLLINS, GEORGE W" | | | | | 0 | 0 |
Payout Agreement
| No payout information available.. |