Property
Account |
| Property ID: | 27143 | Abbreviated Legal Description: | 25-7-35 LOT 6 OF SHORT PLAT (PTN LY IN SLY PT TAX 22 ALL WITHINNE1/4NE1/4) |
| Parcel Number: | 350725140035 | Agent Code: | |
| Type: | Real | | |
| Tax Area: | 1 - OL-140-F | Land Use Code | 11 |
| Open Space: | N | DFL | N |
| Historic Property: | N | Remodel Property: | N |
| Multi-Family Redevelopment: | N | | |
| Township: | 7 | Section: | 25 |
| Range: | 35 |
Location |
| Address: | 122 ARTESIA AVE WA 99362 | Mapsco: | |
| Neighborhood: | A-SFR | Map ID: | |
| Neighborhood CD: | 313011 |
Owner |
| Name: | KNOWLES ROSE | Owner ID: | 67177 |
| Mailing Address: | 475 GALLOWAY RD TOUCHET, WA 99360 | % Ownership: | 100.0000000000% |
| | | Exemptions: | |
Taxes and Assessment Details
Values
| (+) Improvement Homesite Value: | + | $0 | |
| (+) Improvement Non-Homesite Value: | + | $233,620 | |
| (+) Land Homesite Value: | + | $0 | |
| (+) Land Non-Homesite Value: | + | $71,430 | |
| (+) Curr Use (HS): | + | $0 | $0 |
| (+) Curr Use (NHS): | + | $0 | $0 |
| | | -------------------------- | |
| (=) Market Value: | = | $305,050 | |
| (–) Productivity Loss: | – | $0 | |
| | | -------------------------- | |
| (=) Subtotal: | = | $305,050 | |
| (+) Senior Appraised Value: | + | $0 | |
| (+) Non-Senior Appraised Value: | + | $305,050 | |
| | | -------------------------- | |
| (=) Total Appraised Value: | = | $305,050 | |
| (–) Senior Exemption Loss: | – | $0 | |
| (–) Exemption Loss: | – | $0 | |
| | | -------------------------- | |
| (=) Taxable Value: | = | $305,050 | |
Taxing Jurisdiction
| Owner: | KNOWLES ROSE | | |
| % Ownership: | 100.0000000000% | | |
| Total Value: | $305,050 | | |
| Tax Area: | 1 - OL-140-F |
| CERFD | CURRENT EXPENSE REFUND 010 | 0.0000000000 | $305,050 | $305,050 | $0.00 | | |
| CURREXP | CURRENT EXPENSE 010 | 1.0175366760 | $305,050 | $305,050 | $310.40 | | |
| HUMNSERV | HUMAN SERVICES 119 | 0.0250000000 | $305,050 | $305,050 | $7.63 | | |
| SLDREL | SOLDIERS RELIEF 121 | 0.0155990005 | $305,050 | $305,050 | $4.76 | | |
| EMERGSER | EMS 147 | 0.3792580840 | $305,050 | $305,050 | $115.69 | | |
| EMSRFD | EMS REFUND 147 | 0.0000000000 | $305,050 | $305,050 | $0.00 | | |
| PORTRFD | PORT REFUND 640 | 0.0000000000 | $305,050 | $305,050 | $0.00 | | |
| PORTWWGEN | PORT OF WW 640 | 0.2460186015 | $305,050 | $305,050 | $75.05 | | |
| SD140BOND | SD #140 BOND 764 | 0.8342371393 | $305,050 | $305,050 | $254.48 | | |
| SD140GEN | SD #140 GENERAL 760 | 2.0646500647 | $305,050 | $305,050 | $629.82 | | |
| ST2 | STATE SCHOOL PART 2 600 | 0.8131451643 | $305,050 | $305,050 | $248.05 | | |
| STATESCHL | STATE SCHOOL 600 | 1.5158548041 | $305,050 | $305,050 | $462.41 | | |
| STREFUND | STATE REFUND LEVY 603 | 0.0000000000 | $305,050 | $305,050 | $0.00 | | |
| CWWBOND | C OF WW BOND 643 | 0.2760494372 | $305,050 | $305,050 | $84.21 | | |
| CWWGEN | CITY OF WW 631 | 1.6100204973 | $305,050 | $305,050 | $491.14 | | |
| CWWRFD | CITY OF WALLA WALLA REFUND 631 | 0.0000000000 | $305,050 | $305,050 | $0.00 | | |
| | Total Tax Rate: | 8.7973694689 | | | | | |
| | | | | Taxes w/Current Exemptions: | $2,683.64 | | |
| | | | | Taxes w/o Exemptions: | $2,683.64 | | |
Improvement / Building
| Improvement #1: | RESIDENTIAL | State Code: | 11 | 1208.0 sqft | Value: | $233,620 |
| Exterior Wall: | HARDBOARD | Heating/Cooling: | WARM & COOLED AIR | | Number of Bathrooms: | 2 | Number of Bedrooms: | 3 | | Plumbing: | 10 | Roof Covering: | COMP SHINGLE |
|
| | Type | Description | Class CD | Sub Class CD | Year Built | Area |
| | MA | Main Area | 1 | 30 | 2014 | 1208.0 |
| | ATG | Attached Garage | 1 | 30 | 2014 | 404.0 |
| | RPO | OPEN PORCH W/ROOF | 1 | 30 | 2014 | 72.0 |
| | SI1 | SITE IMPROVEMENT | 1 | 30 | 2014 | 1.5 |
| | OSP | Open | 1 | 30 | 2014 | 120.0 |
Sketch
Property Image
Land
| 1 | RES 1 | Converted: Residential | 0.2882 | 12554.00 | 0.00 | 0.00 | 1.00 | $71,430 | $0 |
Roll Value History
| 2026 | N/A | N/A | N/A | N/A | N/A |
| 2025 | $256,990 | $71,430 | $0 | $328,420 | $328,420 |
| 2024 | $256,990 | $71,430 | $0 | $328,420 | $328,420 |
| 2023 | $233,620 | $71,430 | $0 | $305,050 | $305,050 |
| 2022 | $179,710 | $71,430 | $0 | $251,140 | $251,140 |
| 2021 | $185,660 | $60,000 | $0 | $245,660 | $245,660 |
| 2020 | $142,820 | $60,000 | $0 | $202,820 | $202,820 |
| 2019 | $136,020 | $60,000 | $0 | $196,020 | $196,020 |
| 2018 | $118,280 | $60,000 | $0 | $178,280 | $178,280 |
| 2017 | $112,640 | $60,000 | $0 | $172,640 | $172,640 |
| 2016 | $97,950 | $60,000 | $0 | $157,950 | $157,950 |
| 2015 | $132,000 | $26,300 | $0 | $158,300 | $158,300 |
| 2014 | $76,000 | $26,300 | $0 | $102,300 | $102,300 |
| 2013 | $0 | $49,300 | $0 | $49,300 | $49,300 |
| 2012 | $0 | $49,300 | $0 | $0 | $0 |
| 2011 | $0 | $27,000 | $0 | $0 | $0 |
| 2010 | $0 | $26,300 | $0 | $0 | $0 |
| 2009 | $0 | $49,300 | $0 | $0 | $0 |
Deed and Sales History
| 1 | 05/21/2020 | SWD | STATUTORY WARRANTY DEED | BARNETT SHELBY | KNOWLES ROSE | | | $253,360.00 | 139142 | 2020-04474 |
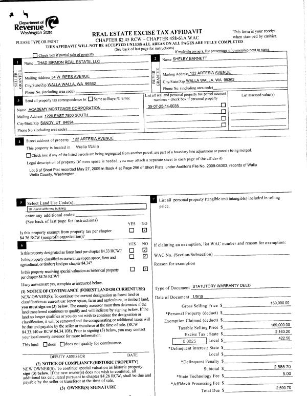
| 2 | 01/09/2015 | SWD | STATUTORY WARRANTY DEED | SIRMON THAD REAL ESTATE LLC | BARNETT SHELBY | | | $169,000.00 | 127243 | 2015-00215 |
Payout Agreement
| No payout information available.. |