Property
Account |
| Property ID: | 27142 | Abbreviated Legal Description: | 25-7-35 LOT 5 OF SHORT PLAT (PTN LY IN SLY PT TAX 22 ALL WITHINNE1/4NE1/4) |
| Parcel Number: | 350725140034 | Agent Code: | |
| Type: | Real | | |
| Tax Area: | 1 - OL-140-F | Land Use Code | 11 |
| Open Space: | N | DFL | N |
| Historic Property: | N | Remodel Property: | N |
| Multi-Family Redevelopment: | N | | |
| Township: | 7 | Section: | 25 |
| Range: | 35 |
Location |
| Address: | 108 ARTESIA AVE WA 99362 | Mapsco: | |
| Neighborhood: | A-SFR | Map ID: | |
| Neighborhood CD: | 313011 |
Owner |
| Name: | BRAKORA PAUL M | Owner ID: | 73780 |
| Mailing Address: | 108 ARTESIA AVE WALLA WALLA, WA 99362 | % Ownership: | 100.0000000000% |
| | | Exemptions: | |
Taxes and Assessment Details
Values
| (+) Improvement Homesite Value: | + | $0 | |
| (+) Improvement Non-Homesite Value: | + | $260,920 | |
| (+) Land Homesite Value: | + | $0 | |
| (+) Land Non-Homesite Value: | + | $59,400 | |
| (+) Curr Use (HS): | + | $0 | $0 |
| (+) Curr Use (NHS): | + | $0 | $0 |
| | | -------------------------- | |
| (=) Market Value: | = | $320,320 | |
| (–) Productivity Loss: | – | $0 | |
| | | -------------------------- | |
| (=) Subtotal: | = | $320,320 | |
| (+) Senior Appraised Value: | + | $0 | |
| (+) Non-Senior Appraised Value: | + | $320,320 | |
| | | -------------------------- | |
| (=) Total Appraised Value: | = | $320,320 | |
| (–) Senior Exemption Loss: | – | $0 | |
| (–) Exemption Loss: | – | $0 | |
| | | -------------------------- | |
| (=) Taxable Value: | = | $320,320 | |
Taxing Jurisdiction
| Owner: | BRAKORA PAUL M | | |
| % Ownership: | 100.0000000000% | | |
| Total Value: | $320,320 | | |
| Tax Area: | 1 - OL-140-F |
| CERFD | CURRENT EXPENSE REFUND 010 | 0.0000000000 | $320,320 | $320,320 | $0.00 | | |
| CURREXP | CURRENT EXPENSE 010 | 1.0175366760 | $320,320 | $320,320 | $325.94 | | |
| HUMNSERV | HUMAN SERVICES 119 | 0.0250000000 | $320,320 | $320,320 | $8.01 | | |
| SLDREL | SOLDIERS RELIEF 121 | 0.0155990005 | $320,320 | $320,320 | $5.00 | | |
| EMERGSER | EMS 147 | 0.3792580840 | $320,320 | $320,320 | $121.48 | | |
| EMSRFD | EMS REFUND 147 | 0.0000000000 | $320,320 | $320,320 | $0.00 | | |
| PORTRFD | PORT REFUND 640 | 0.0000000000 | $320,320 | $320,320 | $0.00 | | |
| PORTWWGEN | PORT OF WW 640 | 0.2460186015 | $320,320 | $320,320 | $78.80 | | |
| SD140BOND | SD #140 BOND 764 | 0.8342371393 | $320,320 | $320,320 | $267.22 | | |
| SD140GEN | SD #140 GENERAL 760 | 2.0646500647 | $320,320 | $320,320 | $661.35 | | |
| ST2 | STATE SCHOOL PART 2 600 | 0.8131451643 | $320,320 | $320,320 | $260.47 | | |
| STATESCHL | STATE SCHOOL 600 | 1.5158548041 | $320,320 | $320,320 | $485.56 | | |
| STREFUND | STATE REFUND LEVY 603 | 0.0000000000 | $320,320 | $320,320 | $0.00 | | |
| CWWBOND | C OF WW BOND 643 | 0.2760494372 | $320,320 | $320,320 | $88.42 | | |
| CWWGEN | CITY OF WW 631 | 1.6100204973 | $320,320 | $320,320 | $515.72 | | |
| CWWRFD | CITY OF WALLA WALLA REFUND 631 | 0.0000000000 | $320,320 | $320,320 | $0.00 | | |
| | Total Tax Rate: | 8.7973694689 | | | | | |
| | | | | Taxes w/Current Exemptions: | $2,817.97 | | |
| | | | | Taxes w/o Exemptions: | $2,817.97 | | |
Improvement / Building
| Improvement #1: | RESIDENTIAL | State Code: | 11 | 1215.0 sqft | Value: | $260,920 |
| Exterior Wall: | HARDBOARD | Heating/Cooling: | WARM & COOLED AIR | | Number of Bathrooms: | 2 | Number of Bedrooms: | 3 | | Plumbing: | 10 | Roof Covering: | COMP SHINGLE |
|
| | Type | Description | Class CD | Sub Class CD | Year Built | Area |
| | MA | Main Area | 1 | 30 | 2014 | 1215.0 |
| | ATG | Attached Garage | 1 | 30 | 2014 | 407.0 |
| | RPO | OPEN PORCH W/ROOF | 1 | 30 | 2014 | 130.0 |
| | SI1 | SITE IMPROVEMENT | 1 | 30 | 2014 | 1.5 |
| | OSP | Open | 1 | 30 | 2014 | 100.0 |
Sketch
Property Image
Land
| 1 | RES 1 | Converted: Residential | 0.1653 | 7200.00 | 0.00 | 0.00 | 1.00 | $59,400 | $0 |
Roll Value History
| 2026 | N/A | N/A | N/A | N/A | N/A |
| 2025 | $287,010 | $59,400 | $0 | $346,410 | $346,410 |
| 2024 | $287,010 | $59,400 | $0 | $346,410 | $346,410 |
| 2023 | $260,920 | $59,400 | $0 | $320,320 | $320,320 |
| 2022 | $186,370 | $59,400 | $0 | $245,770 | $245,770 |
| 2021 | $185,770 | $60,000 | $0 | $245,770 | $245,770 |
| 2020 | $137,610 | $60,000 | $0 | $197,610 | $197,610 |
| 2019 | $137,610 | $60,000 | $0 | $197,610 | $197,610 |
| 2018 | $119,660 | $60,000 | $0 | $179,660 | $179,660 |
| 2017 | $113,970 | $60,000 | $0 | $173,970 | $173,970 |
| 2016 | $99,100 | $60,000 | $0 | $159,100 | $159,100 |
| 2015 | $130,200 | $21,600 | $0 | $151,800 | $151,800 |
| 2014 | $130,200 | $21,600 | $0 | $151,800 | $151,800 |
| 2013 | $0 | $43,200 | $0 | $43,200 | $43,200 |
| 2012 | $0 | $43,200 | $0 | $0 | $0 |
| 2011 | $0 | $21,600 | $0 | $0 | $0 |
| 2010 | $0 | $21,600 | $0 | $0 | $0 |
| 2009 | $0 | $43,200 | $0 | $0 | $0 |
Deed and Sales History
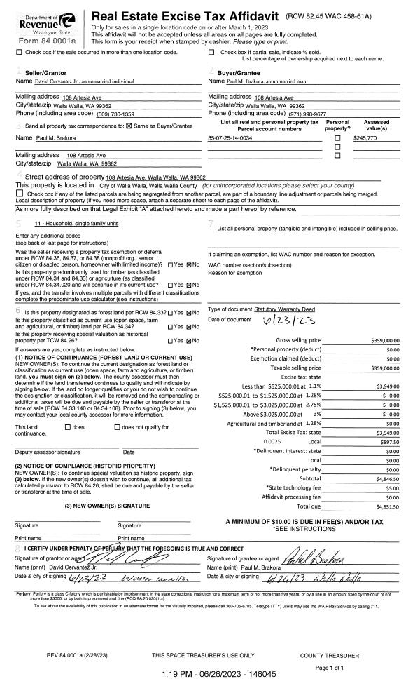
| 1 | 06/26/2023 | SWD | STATUTORY WARRANTY DEED | CERVANTEZ DAVID JR | BRAKORA PAUL M | | | $359,000.00 | 146045 | 2023-03531 |
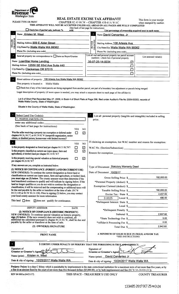
| 2 | 10/25/2017 | SWD | STATUTORY WARRANTY DEED | WEST KRISTEN M | CERVANTEZ DAVID JR | | | $192,000.00 | 133485 | 2017-08543 |
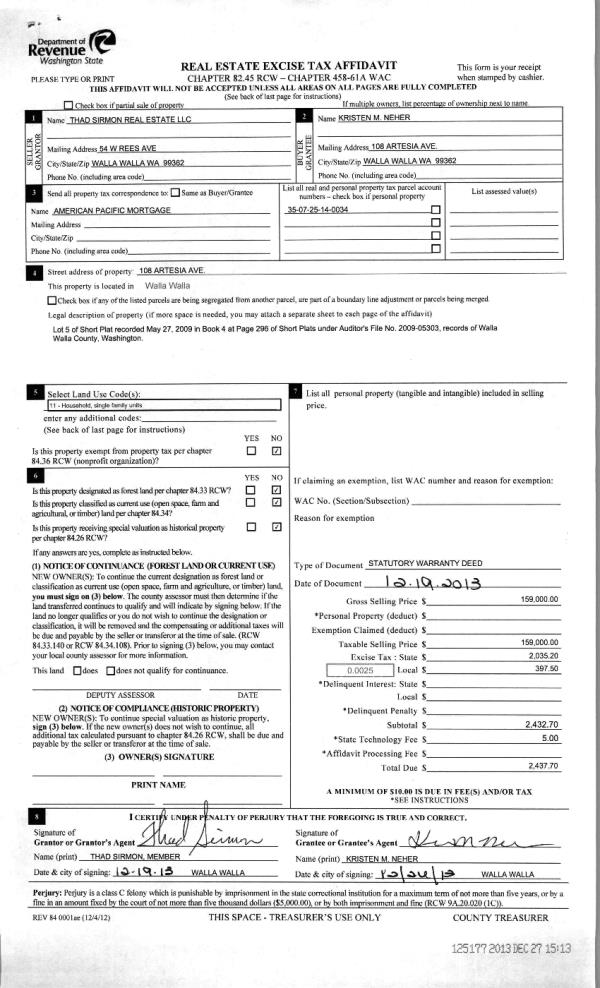
| 3 | 12/27/2013 | WARRANTY D | WARRANTY DEED | SIRMON THAD REAL ESTATE LLC | WEST KRISTEN M | | | $159,000.00 | 125177 | 2013-12292 |
Payout Agreement
| No payout information available.. |