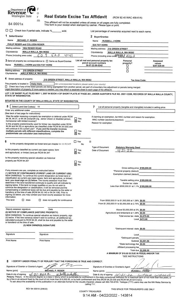
Property
Account |
| Property ID: | 27140 | Abbreviated Legal Description: | VALLEY HOMES LOT 1 OF SHORT PLAT (NWLY PTN LOT 35) |
| Parcel Number: | 360722560242 | Agent Code: | |
| Type: | Real | | |
| Tax Area: | 6 - OL-140-F-FB | Land Use Code | 11 |
| Open Space: | N | DFL | N |
| Historic Property: | N | Remodel Property: | N |
| Multi-Family Redevelopment: | N | | |
| Township: | 7 | Section: | 22 |
| Range: | 36 |
Location |
| Address: | 215 GREEN ST WA 99362 | Mapsco: | |
| Neighborhood: | A SFR | Map ID: | |
| Neighborhood CD: | 413011 |
Owner |
| Name: | HORN RUSSELL J & IDA FAY | Owner ID: | 71506 |
| Mailing Address: | 215 GREEN ST WALLA WALLA, WA 99362 | % Ownership: | 100.0000000000% |
| | | Exemptions: | |
Taxes and Assessment Details
Property Tax Information as of
02/21/2026
Click on "Statement Details" to expand or collapse a tax statement.
* Please enter a valid date ** Please enter a valid date *
Statement Details |
| | TOTAL: | $0.00 | $0.00 | $0.00 | $0.00 | $0.00 | $0.00 |
|
| | $0.00 | $0.00 | $0.00 | $0.00 | $0.00 | $0.00 |
Values
| (+) Improvement Homesite Value: | + | $0 | |
| (+) Improvement Non-Homesite Value: | + | $282,200 | |
| (+) Land Homesite Value: | + | $0 | |
| (+) Land Non-Homesite Value: | + | $56,660 | |
| (+) Curr Use (HS): | + | $0 | $0 |
| (+) Curr Use (NHS): | + | $0 | $0 |
| | | -------------------------- | |
| (=) Market Value: | = | $338,860 | |
| (–) Productivity Loss: | – | $0 | |
| | | -------------------------- | |
| (=) Subtotal: | = | $338,860 | |
| (+) Senior Appraised Value: | + | $0 | |
| (+) Non-Senior Appraised Value: | + | $338,860 | |
| | | -------------------------- | |
| (=) Total Appraised Value: | = | $338,860 | |
| (–) Senior Exemption Loss: | – | $0 | |
| (–) Exemption Loss: | – | $0 | |
| | | -------------------------- | |
| (=) Taxable Value: | = | $338,860 | |
Taxing Jurisdiction
| Owner: | HORN RUSSELL J & IDA FAY | | |
| % Ownership: | 100.0000000000% | | |
| Total Value: | $338,860 | | |
| Tax Area: | 6 - OL-140-F-FB |
| CERFD | CURRENT EXPENSE REFUND 010 | 0.0000000000 | $338,860 | $338,860 | $0.00 | | |
| CURREXP | CURRENT EXPENSE 010 | 1.0175366760 | $338,860 | $338,860 | $344.80 | | |
| HUMNSERV | HUMAN SERVICES 119 | 0.0250000000 | $338,860 | $338,860 | $8.47 | | |
| SLDREL | SOLDIERS RELIEF 121 | 0.0155990005 | $338,860 | $338,860 | $5.29 | | |
| EMERGSER | EMS 147 | 0.3792580840 | $338,860 | $338,860 | $128.52 | | |
| EMSRFD | EMS REFUND 147 | 0.0000000000 | $338,860 | $338,860 | $0.00 | | |
| PORTRFD | PORT REFUND 640 | 0.0000000000 | $338,860 | $338,860 | $0.00 | | |
| PORTWWGEN | PORT OF WW 640 | 0.2460186015 | $338,860 | $338,860 | $83.37 | | |
| SD140BOND | SD #140 BOND 764 | 0.8342371393 | $338,860 | $338,860 | $282.69 | | |
| SD140GEN | SD #140 GENERAL 760 | 2.0646500647 | $338,860 | $338,860 | $699.63 | | |
| ST2 | STATE SCHOOL PART 2 600 | 0.8131451643 | $338,860 | $338,860 | $275.54 | | |
| STATESCHL | STATE SCHOOL 600 | 1.5158548041 | $338,860 | $338,860 | $513.66 | | |
| STREFUND | STATE REFUND LEVY 603 | 0.0000000000 | $338,860 | $338,860 | $0.00 | | |
| CWWBOND | C OF WW BOND 643 | 0.2760494372 | $338,860 | $338,860 | $93.54 | | |
| CWWGEN | CITY OF WW 631 | 1.6100204973 | $338,860 | $338,860 | $545.57 | | |
| CWWRFD | CITY OF WALLA WALLA REFUND 631 | 0.0000000000 | $338,860 | $338,860 | $0.00 | | |
| | Total Tax Rate: | 8.7973694689 | | | | | |
| | | | | Taxes w/Current Exemptions: | $2,981.08 | | |
| | | | | Taxes w/o Exemptions: | $2,981.08 | | |
Improvement / Building
| Improvement #1: | RESIDENTIAL | State Code: | 11 | 1432.0 sqft | Value: | $282,200 |
| Exterior Wall: | CEMENT FIBER | Heating/Cooling: | HEAT PUMP | | Number of Bathrooms: | 2 | Number of Bedrooms: | 3 | | Plumbing: | 9 | Roof Covering: | COMP SHINGLE |
|
| | Type | Description | Class CD | Sub Class CD | Year Built | Area |
| | MA | Main Area | 1 | 30 | 1900 | 1432.0 |
| | CPC | COVERED CARPORT/PATIO | 1 | 30 | 0 | 112.0 |
| | GFP | GAS FIREPLACE | 1 | 30 | 0 | 2.0 |
| | SI1 | SITE IMPROVEMENT | 1 | 30 | 0 | 2.5 |
| | OPS | OPEN PORCH W/STEPS | 1 | | 1900 | 15.0 |
Sketch
Property Image
Land
| 1 | RES 1 | Converted: Residential | 0.1626 | 7082.00 | 0.00 | 0.00 | 1.00 | $56,660 | $0 |
Roll Value History
| 2026 | N/A | N/A | N/A | N/A | N/A |
| 2025 | $282,200 | $56,660 | $0 | $338,860 | $338,860 |
| 2024 | $282,200 | $56,660 | $0 | $338,860 | $338,860 |
| 2023 | $282,200 | $56,660 | $0 | $338,860 | $338,860 |
| 2022 | $287,040 | $45,000 | $0 | $332,040 | $332,040 |
| 2021 | $212,620 | $45,000 | $0 | $257,620 | $257,620 |
| 2020 | $141,750 | $45,000 | $0 | $186,750 | $186,750 |
| 2019 | $141,750 | $45,000 | $0 | $186,750 | $186,750 |
| 2018 | $123,260 | $45,000 | $0 | $168,260 | $168,260 |
| 2017 | $123,260 | $45,000 | $0 | $168,260 | $168,260 |
| 2016 | $123,260 | $45,000 | $0 | $168,260 | $168,260 |
| 2015 | $117,390 | $45,000 | $0 | $162,390 | $162,390 |
| 2014 | $111,800 | $45,000 | $0 | $156,800 | $156,800 |
| 2013 | $111,800 | $45,000 | $0 | $156,800 | $156,800 |
| 2012 | $108,700 | $45,000 | $0 | $0 | $0 |
| 2011 | $110,100 | $45,000 | $0 | $0 | $0 |
| 2010 | $41,600 | $45,000 | $0 | $0 | $0 |
| 2009 | $67,900 | $28,300 | $0 | $0 | $0 |
| 2008 | $67,900 | $28,300 | $0 | $0 | $0 |
| 2007 | $111,800 | $45,000 | $0 | $0 | $0 |
Deed and Sales History
| 1 | 04/22/2022 | SWD | STATUTORY WARRANTY DEED | RESER MICHAEL P | HORN RUSSELL J & IDA FAY | | | $189,000.00 | 143814 | 2022-03430 |
| 2 | 07/09/2009 | QCD | QUIT CLAIM DEED | AMANDA K SCHAEFFER | RESER, MICHAEL P | | | $0.00 | 116990 | 2009-06966 |
| 3 | 07/09/2009 | WARRANTY D | WARRANTY DEED | DAWSON, BEN J | RESER, MICHAEL P | | | $158,000.00 | 116991 | 2009-06967 |
Payout Agreement
| No payout information available.. |