Property
Account |
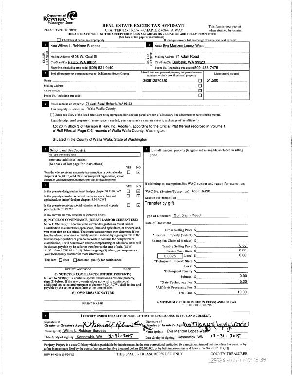
| Property ID: | 27138 | Abbreviated Legal Description: | HARRISON & RAY INC ADD LOT 20 BLK 3 |
| Parcel Number: | 300812570320 | Agent Code: | |
| Type: | Real | | |
| Tax Area: | 331 - 400-M-5-W4 | Land Use Code | 11 |
| Open Space: | N | DFL | N |
| Historic Property: | N | Remodel Property: | N |
| Multi-Family Redevelopment: | N | | |
| Township: | 8 | Section: | 12 |
| Range: | 30 |
Location |
| Address: | 71 ADAIR RD WA 99323 | Mapsco: | |
| Neighborhood: | Burbank A MH | Map ID: | |
| Neighborhood CD: | 213761 |
Owner |
| Name: | LOPEZ-WADE EVA MARJZON | Owner ID: | 58302 |
| Mailing Address: | 71 ADAIR RD BURBANK, WA 99323 | % Ownership: | 100.0000000000% |
| | | Exemptions: | |
Taxes and Assessment Details
Values
| (+) Improvement Homesite Value: | + | $0 | |
| (+) Improvement Non-Homesite Value: | + | $187,870 | |
| (+) Land Homesite Value: | + | $0 | |
| (+) Land Non-Homesite Value: | + | $61,310 | |
| (+) Curr Use (HS): | + | $0 | $0 |
| (+) Curr Use (NHS): | + | $0 | $0 |
| | | -------------------------- | |
| (=) Market Value: | = | $249,180 | |
| (–) Productivity Loss: | – | $0 | |
| | | -------------------------- | |
| (=) Subtotal: | = | $249,180 | |
| (+) Senior Appraised Value: | + | $0 | |
| (+) Non-Senior Appraised Value: | + | $249,180 | |
| | | -------------------------- | |
| (=) Total Appraised Value: | = | $249,180 | |
| (–) Senior Exemption Loss: | – | $0 | |
| (–) Exemption Loss: | – | $0 | |
| | | -------------------------- | |
| (=) Taxable Value: | = | $249,180 | |
Taxing Jurisdiction
| Owner: | LOPEZ-WADE EVA MARJZON | | |
| % Ownership: | 100.0000000000% | | |
| Total Value: | $249,180 | | |
| Tax Area: | 331 - 400-M-5-W4 |
| CERFD | CURRENT EXPENSE REFUND 010 | 0.0000000000 | $249,180 | $249,180 | $0.00 | | |
| CURREXP | CURRENT EXPENSE 010 | 1.0175366760 | $249,180 | $249,180 | $253.55 | | |
| HUMNSERV | HUMAN SERVICES 119 | 0.0250000000 | $249,180 | $249,180 | $6.23 | | |
| SLDREL | SOLDIERS RELIEF 121 | 0.0155990005 | $249,180 | $249,180 | $3.89 | | |
| EMERGSER | EMS 147 | 0.3792580840 | $249,180 | $249,180 | $94.50 | | |
| EMSRFD | EMS REFUND 147 | 0.0000000000 | $249,180 | $249,180 | $0.00 | | |
| FD5EXP | FD #5 EXPENSE 689 | 1.2045331840 | $249,180 | $249,180 | $300.15 | | |
| RLBRFD | RURAL LIBRARY REFUND 623 | 0.0000000000 | $249,180 | $249,180 | $0.00 | | |
| RURALLIB | RURAL LIBRARY 623 | 0.3710609029 | $249,180 | $249,180 | $92.46 | | |
| PORTRFD | PORT REFUND 640 | 0.0000000000 | $249,180 | $249,180 | $0.00 | | |
| PORTWWGEN | PORT OF WW 640 | 0.2460186015 | $249,180 | $249,180 | $61.30 | | |
| SD400BOND | SD #400 BOND 793 | 0.0000000000 | $249,180 | $249,180 | $0.00 | | |
| SD400CAP | SD #400 CP 792 | 0.3443722657 | $249,180 | $249,180 | $85.81 | | |
| SD400GEN | SD #400 GENERAL 790 | 1.9278469916 | $249,180 | $249,180 | $480.38 | | |
| ST2 | STATE SCHOOL PART 2 600 | 0.8131451643 | $249,180 | $249,180 | $202.62 | | |
| STATESCHL | STATE SCHOOL 600 | 1.5158548041 | $249,180 | $249,180 | $377.72 | | |
| STREFUND | STATE REFUND LEVY 603 | 0.0000000000 | $249,180 | $249,180 | $0.00 | | |
| COROAD | COUNTY ROAD 115 | 1.6549953990 | $249,180 | $249,180 | $412.39 | | |
| CRPRD | COUNTY ROAD REFUND 115 | 0.0000000000 | $249,180 | $249,180 | $0.00 | | |
| | Total Tax Rate: | 9.5152210736 | | | | | |
| | | | | Taxes w/Current Exemptions: | $2,371.00 | | |
| | | | | Taxes w/o Exemptions: | $2,371.00 | | |
Improvement / Building
| Improvement #1: | MANUFACTURED HOME | State Code: | 11 | 1755.0 sqft | Value: | $187,870 |
| Exterior Wall: | HARDBOARD | Heating/Cooling: | WARM & COOLED AIR | | Number of Bathrooms: | 2 | Number of Bedrooms: | 3 | | Plumbing: | 9 | Roof Covering: | COMP SHINGLE |
|
| | Type | Description | Class CD | Sub Class CD | Year Built | Area |
| | MOBHOME | MANUFACTURD HOMES | 1 | 30 | 1998 | 1755.0 |
| | MI1 | MH SET-UP COSTS | 1 | 30 | 1998 | 1.0 |
| | POL2 | POLE BUILDING-CONCRETE | 1 | 30 | 1998 | 960.0 |
| | WOD | Wood Deck | 1 | 30 | 1998 | 300.0 |
Sketch
Property Image
Land
| 1 | RES 1 | Converted: Residential | 0.3931 | 17125.00 | 0.00 | 0.00 | 1.00 | $61,310 | $0 |
Roll Value History
| 2026 | N/A | N/A | N/A | N/A | N/A |
| 2025 | $216,060 | $61,310 | $0 | $277,370 | $277,370 |
| 2024 | $187,870 | $61,310 | $0 | $249,180 | $249,180 |
| 2023 | $187,870 | $61,310 | $0 | $249,180 | $249,180 |
| 2022 | $134,200 | $61,310 | $0 | $195,510 | $195,510 |
| 2021 | $111,830 | $61,310 | $0 | $173,140 | $173,140 |
| 2020 | $104,290 | $25,100 | $0 | $129,390 | $129,390 |
| 2019 | $104,290 | $25,100 | $0 | $129,390 | $129,390 |
| 2018 | $90,680 | $25,100 | $0 | $115,780 | $115,780 |
| 2017 | $50,380 | $25,100 | $0 | $75,480 | $75,480 |
| 2016 | $26,400 | $25,100 | $0 | $51,500 | $51,500 |
| 2015 | $26,400 | $25,100 | $0 | $51,500 | $51,500 |
| 2014 | $26,400 | $25,100 | $0 | $51,500 | $51,500 |
| 2013 | $26,400 | $25,100 | $0 | $51,500 | $51,500 |
| 2012 | $26,400 | $25,100 | $0 | $0 | $0 |
| 2011 | $26,400 | $25,100 | $0 | $0 | $0 |
| 2010 | $26,400 | $25,100 | $0 | $0 | $0 |
| 2009 | $110,700 | $22,200 | $0 | $0 | $0 |
| 2008 | $93,400 | $22,200 | $0 | $0 | $0 |
| 2007 | $93,400 | $22,200 | $0 | $0 | $0 |
Deed and Sales History
| 1 | 12/31/2015 | QCD | QUIT CLAIM DEED | BURGESS WILMA ROBISON | LOPEZ-WADE EVA MARJZON | | | $0.00 | 129724 | 2016-01331 |
| 2 | 08/10/2009 | WARRANTY D | WARRANTY DEED | FEDERAL NATIONAL MORTGAGE ASSO | BURGESS, WILMA ROBISON | | | $52,000.00 | 117144 | 2009-08127 |
| 3 | 06/11/2009 | WARRANTY D | WARRANTY DEED | FIRST AMERICAN TITLE INS COMPA | FEDERAL NATIONAL MORTGAGE~ASSO | | | $96,236.00 | 116869 | 2009-05905 |
Payout Agreement
| No payout information available.. |