Property
Account |
| Property ID: | 27119 | Abbreviated Legal Description: | PROSPECT TERRACE LOT 25 |
| Parcel Number: | 360732810025 | Agent Code: | |
| Type: | Real | | |
| Tax Area: | 6 - OL-140-F-FB | Land Use Code | 11 |
| Open Space: | N | DFL | N |
| Historic Property: | N | Remodel Property: | N |
| Multi-Family Redevelopment: | N | | |
| Township: | 7 | Section: | 32 |
| Range: | 36 |
Location |
| Address: | 941 HIGHLAND RD WA 99362 | Mapsco: | |
| Neighborhood: | G Res Rural/City Inf | Map ID: | |
| Neighborhood CD: | 614012 |
Owner |
| Name: | MENDOZA BRENDON & LACEY | Owner ID: | 72851 |
| Mailing Address: | 941 HIGHLAND RD WALLA WALLA, WA 99362 | % Ownership: | 100.0000000000% |
| | | Exemptions: | |
Taxes and Assessment Details
Values
| (+) Improvement Homesite Value: | + | $0 | |
| (+) Improvement Non-Homesite Value: | + | $447,470 | |
| (+) Land Homesite Value: | + | $0 | |
| (+) Land Non-Homesite Value: | + | $85,000 | |
| (+) Curr Use (HS): | + | $0 | $0 |
| (+) Curr Use (NHS): | + | $0 | $0 |
| | | -------------------------- | |
| (=) Market Value: | = | $532,470 | |
| (–) Productivity Loss: | – | $0 | |
| | | -------------------------- | |
| (=) Subtotal: | = | $532,470 | |
| (+) Senior Appraised Value: | + | $0 | |
| (+) Non-Senior Appraised Value: | + | $532,470 | |
| | | -------------------------- | |
| (=) Total Appraised Value: | = | $532,470 | |
| (–) Senior Exemption Loss: | – | $0 | |
| (–) Exemption Loss: | – | $0 | |
| | | -------------------------- | |
| (=) Taxable Value: | = | $532,470 | |
Taxing Jurisdiction
| Owner: | MENDOZA BRENDON & LACEY | | |
| % Ownership: | 100.0000000000% | | |
| Total Value: | $532,470 | | |
| Tax Area: | 6 - OL-140-F-FB |
| CERFD | CURRENT EXPENSE REFUND 010 | 0.0000000000 | $532,470 | $532,470 | $0.00 | | |
| CURREXP | CURRENT EXPENSE 010 | 1.0175366760 | $532,470 | $532,470 | $541.81 | | |
| HUMNSERV | HUMAN SERVICES 119 | 0.0250000000 | $532,470 | $532,470 | $13.31 | | |
| SLDREL | SOLDIERS RELIEF 121 | 0.0155990005 | $532,470 | $532,470 | $8.31 | | |
| EMERGSER | EMS 147 | 0.3792580840 | $532,470 | $532,470 | $201.94 | | |
| EMSRFD | EMS REFUND 147 | 0.0000000000 | $532,470 | $532,470 | $0.00 | | |
| PORTRFD | PORT REFUND 640 | 0.0000000000 | $532,470 | $532,470 | $0.00 | | |
| PORTWWGEN | PORT OF WW 640 | 0.2460186015 | $532,470 | $532,470 | $131.00 | | |
| SD140BOND | SD #140 BOND 764 | 0.8342371393 | $532,470 | $532,470 | $444.21 | | |
| SD140GEN | SD #140 GENERAL 760 | 2.0646500647 | $532,470 | $532,470 | $1,099.36 | | |
| ST2 | STATE SCHOOL PART 2 600 | 0.8131451643 | $532,470 | $532,470 | $432.98 | | |
| STATESCHL | STATE SCHOOL 600 | 1.5158548041 | $532,470 | $532,470 | $807.15 | | |
| STREFUND | STATE REFUND LEVY 603 | 0.0000000000 | $532,470 | $532,470 | $0.00 | | |
| CWWBOND | C OF WW BOND 643 | 0.2760494372 | $532,470 | $532,470 | $146.99 | | |
| CWWGEN | CITY OF WW 631 | 1.6100204973 | $532,470 | $532,470 | $857.29 | | |
| CWWRFD | CITY OF WALLA WALLA REFUND 631 | 0.0000000000 | $532,470 | $532,470 | $0.00 | | |
| | Total Tax Rate: | 8.7973694689 | | | | | |
| | | | | Taxes w/Current Exemptions: | $4,684.35 | | |
| | | | | Taxes w/o Exemptions: | $4,684.35 | | |
Improvement / Building
| Improvement #1: | RESIDENTIAL | State Code: | 11 | 2810.0 sqft | Value: | $447,470 |
| Exterior Wall: | PLYWOOD | Heating/Cooling: | WARM & COOLED AIR | | Number of Bathrooms: | 2.5 | Number of Bedrooms: | 4 | | Plumbing: | 13 | Roof Covering: | COMP SHINGLE |
|
| | Type | Description | Class CD | Sub Class CD | Year Built | Area |
| | MA | Main Area | 2 | 35 | 2008 | 2810.0 |
| | SI1 | SITE IMPROVEMENT | 2 | 35 | 2008 | 3.0 |
| | UPFL | Upper Floor (included in main area) | 2 | 35 | 2008 | 1200.0 |
| | BIG | Built In Garage | 2 | 35 | 2008 | 440.0 |
| | GFP | GAS FIREPLACE | 2 | 35 | 2008 | 1.0 |
| | RPO | OPEN PORCH W/ROOF | 2 | 35 | 2008 | 24.0 |
Sketch
Property Image
Land
| 1 | RES 1 | Converted: Residential | 0.1814 | 7903.00 | 0.00 | 0.00 | 1.00 | $85,000 | $0 |
Roll Value History
| 2026 | N/A | N/A | N/A | N/A | N/A |
| 2025 | $442,250 | $125,000 | $0 | $567,250 | $567,250 |
| 2024 | $469,840 | $85,000 | $0 | $554,840 | $554,840 |
| 2023 | $447,470 | $85,000 | $0 | $532,470 | $532,470 |
| 2022 | $389,100 | $70,000 | $0 | $459,100 | $459,100 |
| 2021 | $353,730 | $70,000 | $0 | $423,730 | $423,730 |
| 2020 | $272,100 | $70,000 | $0 | $342,100 | $342,100 |
| 2019 | $272,100 | $70,000 | $0 | $342,100 | $342,100 |
| 2018 | $250,880 | $60,000 | $0 | $310,880 | $310,880 |
| 2017 | $243,570 | $60,000 | $0 | $303,570 | $303,570 |
| 2016 | $211,800 | $60,000 | $0 | $271,800 | $271,800 |
| 2015 | $211,800 | $60,000 | $0 | $271,800 | $271,800 |
| 2014 | $176,500 | $60,000 | $0 | $236,500 | $236,500 |
| 2013 | $176,500 | $60,000 | $0 | $236,500 | $236,500 |
| 2012 | $188,800 | $60,000 | $0 | $0 | $0 |
| 2011 | $188,800 | $60,000 | $0 | $0 | $0 |
| 2010 | $201,900 | $60,000 | $0 | $0 | $0 |
| 2009 | $231,000 | $60,000 | $0 | $0 | $0 |
| 2008 | $0 | $3,800 | $0 | $0 | $0 |
| 2007 | $176,500 | $60,000 | $0 | $0 | $0 |
Deed and Sales History
| 1 | 12/05/2022 | SWD | STATUTORY WARRANTY DEED | ZAGELOW ROBERT L & JILL J | MENDOZA BRENDON & LACEY | | | $0.00 | 145092 | 2022-09493 |
| 2 | 04/23/2020 | QCD | QUIT CLAIM DEED | ZAGELOW ROBERT L | ZAGELOW ROBERT L & JILL J | | | $0.00 | 138987 | 2020-03608 |
| 3 | 09/14/2018 | SWD | STATUTORY WARRANTY DEED | OLIVER SEAN & ANANDA | ZAGELOW ROBERT L | | | $356,000.00 | 135543 | 2018-07668 |
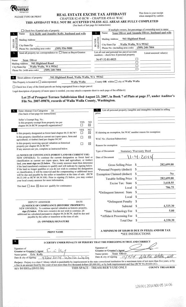
| 4 | 11/04/2014 | SWD | STATUTORY WARRANTY DEED | KELLY ERIC B & JENNIFER R | OLIVER SEAN & ANANDA | | | $282,699.00 | 126901 | 2014-08101 |
| 5 | 07/01/2009 | WARRANTY D | WARRANTY DEED | HAYDEN HOMES LLC | KELLY, ERIC B & JENNIFER R | | | $249,990.00 | 116958 | 2009-06668 |
| 6 | 12/05/2007 | WARRANTY D | WARRANTY DEED | HAYDEN ENTERPRISES INC | | | | | 114183 | 2007-13846 |
Payout Agreement
| No payout information available.. |