Property
Account |
| Property ID: | 27115 | Abbreviated Legal Description: | PARK ST GARDENS LOT 4 BLK 3 |
| Parcel Number: | 360728650304 | Agent Code: | |
| Type: | Real | | |
| Tax Area: | 1 - OL-140-F | Land Use Code | 11 |
| Open Space: | N | DFL | N |
| Historic Property: | N | Remodel Property: | N |
| Multi-Family Redevelopment: | N | | |
| Township: | 7 | Section: | 28 |
| Range: | 36 |
Location |
| Address: | 520 E CHESTNUT ST WA 99362 | Mapsco: | |
| Neighborhood: | A Res | Map ID: | |
| Neighborhood CD: | 613011 |
Owner |
| Name: | FOWLER AARON ZECHARIAH & SAMANTHA L | Owner ID: | 65545 |
| Mailing Address: | 520 E CHESTNUT ST WALLA WALLA, WA 99362 | % Ownership: | 100.0000000000% |
| | | Exemptions: | |
Taxes and Assessment Details
Property Tax Information as of
02/21/2026
Click on "Statement Details" to expand or collapse a tax statement.
* Please enter a valid date ** Please enter a valid date *
Statement Details |
| | TOTAL: | $0.00 | $0.00 | $0.00 | $0.00 | $0.00 | $0.00 |
|
| | $0.00 | $0.00 | $0.00 | $0.00 | $0.00 | $0.00 |
Values
| (+) Improvement Homesite Value: | + | $0 | |
| (+) Improvement Non-Homesite Value: | + | $295,870 | |
| (+) Land Homesite Value: | + | $0 | |
| (+) Land Non-Homesite Value: | + | $70,000 | |
| (+) Curr Use (HS): | + | $0 | $0 |
| (+) Curr Use (NHS): | + | $0 | $0 |
| | | -------------------------- | |
| (=) Market Value: | = | $365,870 | |
| (–) Productivity Loss: | – | $0 | |
| | | -------------------------- | |
| (=) Subtotal: | = | $365,870 | |
| (+) Senior Appraised Value: | + | $0 | |
| (+) Non-Senior Appraised Value: | + | $365,870 | |
| | | -------------------------- | |
| (=) Total Appraised Value: | = | $365,870 | |
| (–) Senior Exemption Loss: | – | $0 | |
| (–) Exemption Loss: | – | $0 | |
| | | -------------------------- | |
| (=) Taxable Value: | = | $365,870 | |
Taxing Jurisdiction
| Owner: | FOWLER AARON ZECHARIAH & SAMANTHA L | | |
| % Ownership: | 100.0000000000% | | |
| Total Value: | $365,870 | | |
| Tax Area: | 1 - OL-140-F |
| CERFD | CURRENT EXPENSE REFUND 010 | 0.0000000000 | $365,870 | $365,870 | $0.00 | | |
| CURREXP | CURRENT EXPENSE 010 | 1.0175366760 | $365,870 | $365,870 | $372.29 | | |
| HUMNSERV | HUMAN SERVICES 119 | 0.0250000000 | $365,870 | $365,870 | $9.15 | | |
| SLDREL | SOLDIERS RELIEF 121 | 0.0155990005 | $365,870 | $365,870 | $5.71 | | |
| EMERGSER | EMS 147 | 0.3792580840 | $365,870 | $365,870 | $138.76 | | |
| EMSRFD | EMS REFUND 147 | 0.0000000000 | $365,870 | $365,870 | $0.00 | | |
| PORTRFD | PORT REFUND 640 | 0.0000000000 | $365,870 | $365,870 | $0.00 | | |
| PORTWWGEN | PORT OF WW 640 | 0.2460186015 | $365,870 | $365,870 | $90.01 | | |
| SD140BOND | SD #140 BOND 764 | 0.8342371393 | $365,870 | $365,870 | $305.22 | | |
| SD140GEN | SD #140 GENERAL 760 | 2.0646500647 | $365,870 | $365,870 | $755.39 | | |
| ST2 | STATE SCHOOL PART 2 600 | 0.8131451643 | $365,870 | $365,870 | $297.51 | | |
| STATESCHL | STATE SCHOOL 600 | 1.5158548041 | $365,870 | $365,870 | $554.61 | | |
| STREFUND | STATE REFUND LEVY 603 | 0.0000000000 | $365,870 | $365,870 | $0.00 | | |
| CWWBOND | C OF WW BOND 643 | 0.2760494372 | $365,870 | $365,870 | $101.00 | | |
| CWWGEN | CITY OF WW 631 | 1.6100204973 | $365,870 | $365,870 | $589.06 | | |
| CWWRFD | CITY OF WALLA WALLA REFUND 631 | 0.0000000000 | $365,870 | $365,870 | $0.00 | | |
| | Total Tax Rate: | 8.7973694689 | | | | | |
| | | | | Taxes w/Current Exemptions: | $3,218.71 | | |
| | | | | Taxes w/o Exemptions: | $3,218.71 | | |
Improvement / Building
| Improvement #1: | RESIDENTIAL | State Code: | 11 | 1206.0 sqft | Value: | $295,870 |
| Exterior Wall: | SIDING | Heating/Cooling: | WARM & COOLED AIR | | Number of Bathrooms: | 2.5 | Number of Bedrooms: | 4 | | Plumbing: | 12 | Roof Covering: | COMP SHINGLE |
|
| | Type | Description | Class CD | Sub Class CD | Year Built | Area |
| | MA | Main Area | 1 | 30 | 1936 | 1206.0 |
| | SI1 | SITE IMPROVEMENT | 1 | 30 | 1936 | 1.5 |
| | BASE | BASEMENT | 1 | 30 | 1936 | 1134.0 |
| | BPF | BASEMENT -PARTITIONED FINISH | 1 | 30 | 1936 | 1134.0 |
| | RCD | WOOD DECK W/ROOF, CEILED | 1 | 30 | 1936 | 98.0 |
| | CPC | COVERED CARPORT/PATIO | 1 | 30 | 1936 | 144.0 |
| | CPC | COVERED CARPORT/PATIO | 1 | 30 | 1936 | 584.0 |
Sketch
Property Image
Land
| 1 | RES 1 | Converted: Residential | 0.1377 | 6000.00 | 0.00 | 0.00 | 1.00 | $70,000 | $0 |
Roll Value History
| 2026 | N/A | N/A | N/A | N/A | N/A |
| 2025 | $299,700 | $66,000 | $0 | $365,700 | $365,700 |
| 2024 | $295,870 | $70,000 | $0 | $365,870 | $365,870 |
| 2023 | $295,870 | $70,000 | $0 | $365,870 | $365,870 |
| 2022 | $295,870 | $55,000 | $0 | $350,870 | $350,870 |
| 2021 | $204,050 | $55,000 | $0 | $259,050 | $259,050 |
| 2020 | $163,240 | $55,000 | $0 | $218,240 | $218,240 |
| 2019 | $163,240 | $55,000 | $0 | $218,240 | $218,240 |
| 2018 | $182,240 | $36,000 | $0 | $218,240 | $218,240 |
| 2017 | $173,560 | $36,000 | $0 | $209,560 | $209,560 |
| 2016 | $150,920 | $36,000 | $0 | $186,920 | $186,920 |
| 2015 | $150,920 | $36,000 | $0 | $186,920 | $186,920 |
| 2014 | $137,200 | $36,000 | $0 | $173,200 | $173,200 |
| 2013 | $137,200 | $36,000 | $0 | $173,200 | $173,200 |
| 2012 | $137,200 | $36,000 | $0 | $0 | $0 |
| 2011 | $137,200 | $36,000 | $0 | $0 | $0 |
| 2010 | $114,600 | $36,000 | $0 | $0 | $0 |
| 2009 | $131,300 | $36,000 | $0 | $0 | $0 |
| 2008 | $131,300 | $36,000 | $0 | $0 | $0 |
| 2007 | $81,500 | $18,000 | $0 | $0 | $0 |
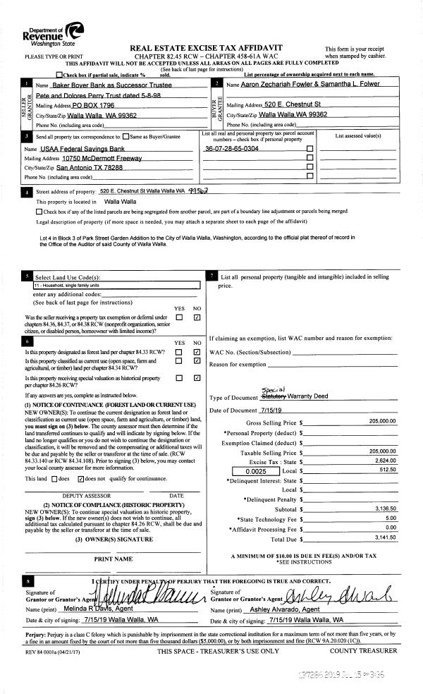
Deed and Sales History
| 1 | 12/14/2023 | SWD | STATUTORY WARRANTY DEED | FOWLER AARON ZECHARIAH & SAMANTHA L | DINSMOOR PERRY | | | $257,500.00 | 146925 | 2023-07254 |
| 2 | 07/15/2019 | SWP | Special Warranty Deed | W W PEERY TRUSTEE PETE & DOLORES PEERY | FOWLER AARON ZECHARIAH & SAMANTHA L | | | $205,000.00 | 137286 | 2019-05135 |
| 3 | 06/26/2009 | WARRANTY D | WARRANTY DEED | ONGERS, TONY A & DEBBIE M | W W PEERY, TRUSTEE PETE & DOLO | | | $179,900.00 | 116920 | 2009-06480 |
| 4 | 06/20/1985 | WARRANTY D | WARRANTY DEED | | | | | $41,000.00 | 0 | 1508-504093 |
Payout Agreement
| No payout information available.. |